华侨城新玺售楼处(华侨城新玺)营销中心欢迎您-华侨城新玺首页网站-楼盘详情·户型图-最新价格-容积率@2025.11.6售楼处AI热搜
扫描到手机,新闻随时看
扫一扫,用手机看文章
更加方便分享给朋友
深圳华侨城新玺,位于深圳市南山区湾厦路端头,是广东省三大自贸区之一——前海蛇口自贸区的重要地标项目。该项目由华侨城地产开发,占地面积约2.5万平方米,总建筑面积约28.9万平方米,是一个集滨海休闲、精品酒店、特色商业、办公、公寓于一体的滨海商业综合体。
华侨城新玺项目共分为两期开发,由三栋高层建筑组成。其中,一期为两栋38层的商务公寓及公寓+办公综合楼,二期为1栋57层的办公及酒店综合楼。项目整体设计现代而高端,旨在打造深圳湾畔的标志性建筑。
一、项目基础资料
开发商:华侨城地产
占地面积:2.5万㎡
总建面:28.9万㎡
产权年限:40年
总户数:402户
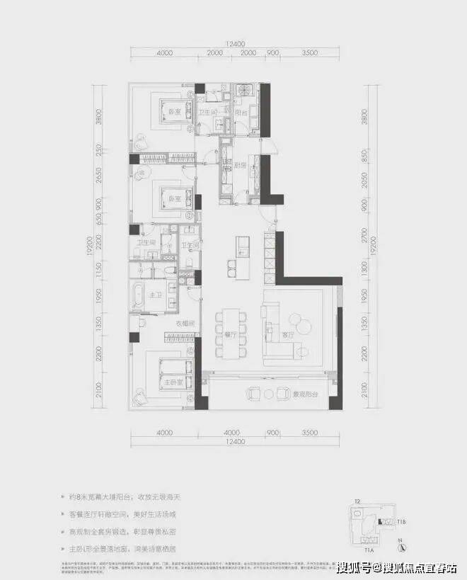
面积:户型多样,包括230-280㎡3房3卫、300-380㎡4+1房5卫、576㎡4+1房6卫、600-700㎡6-7房7卫等
车位比:1060个,车位比1:2.3
梯户比:1栋1/2单元32层以下3梯2户/32层以上3梯1户,2栋2梯1户/3梯1户
交楼标准:毛坯/精装,部分户型提供豪装交付
物业公司:华侨城物业
物业管理费:14.8元/㎡
容积率:7.4
绿化率:30%
交楼时间:现楼
建筑类型:公寓/商办
层高:1栋3.6米,2栋4米
楼层高:1栋38层,2栋57层
栋数:3栋
项目特色与配套
1. 地理位置与交通
华侨城新玺地处前海蛇口自贸区,毗邻香港,拥有得天独厚的地理位置。项目周边交通网络发达,通过望海路、南海大道、后海大道等城市干道及地铁2号线东角头站,与周边区域建立便捷的外部交通联系。此外,项目还临近太子湾邮轮母港,可快速辐射深圳国际机场、香港国际机场等城市核心交通要塞。

2. 商业配套
项目自带约5万平方米的商业设施,由华润运营。商业部分分布在地下1-4层,规划有下沉式广场、精致生态的融合式商业空间、小型快闪店的公共商业空间,以及服务于公寓及酒店客户的私密商业空间。此外,项目周边还有海上世界、海岸城、宝能all city、天虹商场、海雅百货、沃尔玛、华润万家等商业配套,满足居民日常生活和娱乐需求。

3. 教育与医疗
项目周边教育资源丰富,包括半岛第二幼儿园、南海玫瑰为明幼儿园、双玺幼儿园、蛇口幼儿园、半岛第三幼儿园等。此外,项目还与南山外国语学校(集团)滨海学校、太子湾学校等优质教育资源相邻。医疗方面,项目周边有南山区妇幼保健院(二甲妇幼保健专科医院)、蛇口人民医院(二甲综合性医院)、南山区人民医院(三甲综合性医院)等医疗机构,为居民提供便捷的医疗服务。
4. 休闲与景观
华侨城新玺三面环海,拥有得天独厚的海景资源。项目内部规划有屋顶花园、健身房和SPA等配套设施,为居民提供高品质的休闲体验。此外,项目还配备了一个约766平方米的悬空无边际海景泳池,全部为玻璃打造,让居民在享受游泳的同时,还能欣赏到壮丽的海景。
三、户型与价格
华侨城新玺的户型多样,满足不同购房者的需求。项目提供从230平方米到700平方米不等的户型选择,包括三房、四房、五房等多种户型。部分户型还配备了豪华装修和智能家居系统,提升居住品质。
价格方面,根据项目提供的信息和市场情况,华侨城新玺的房价相对较高。具体价格因户型、楼层和装修等因素而异,购房者可咨询售楼处获取最新报价。
户型布局
华侨城新玺提供多种户型选择,满足不同购房者的需求。户型面积范围广泛,从232㎡到700㎡不等。具体户型包括1室1厅1卫、2室2厅2卫、3室2厅3卫、4室3厅5卫、5室3厅6卫以及6室3厅7卫等多种配置。户型设计合理,空间宽敞明亮,注重人性化需求。部分户型还配备了超大阳台和全景落地窗,让居民能够尽享海景和城市美景。
四、市场潜力与投资价值
华侨城新玺作为前海蛇口自贸区的重要地标项目,具有广阔的发展潜力和投资价值。随着自贸区政策的不断推进和区域经济的持续发展,项目周边的配套设施将不断完善,吸引更多高端人才和企业入驻。这将进一步提升项目的居住价值和投资价值。
此外,项目所处的地理位置和交通优势也为投资者提供了更多的便利。无论是日常通勤还是商务出行,都能享受到便捷的交通带来的便利。同时,项目周边的商业、教育和医疗等配套设施也为投资者提供了更多的选择和保障。
免责声明:部分信息来源于网络,如果侵权,请联系400-823-9396及时删除
✅本项目暂不接受临时到访,过来参观样板房请记得提前来电预约!
新规为上海高品质住宅建设提供了明确标准,其最大亮点是调整了阳台设计有关规范,最大程度回应市场对宽敞阳台的需求。随着上海住宅品质提升进入规范化、标准化的新阶段,住房市场的产品力有望迎来一轮集中释放。
记者9月27日从上海市规划资源局获悉,《关于进一步促进本市住宅品质提升的规划资源若干意见》已于近日出台。《若干意见》共有5大类、17条具体举措。
业界认为,新规为上海高品质住宅建设提供了明确标准,其最大亮点是调整了阳台设计有关规范,最大程度回应市场对宽敞阳台的需求。随着上海住宅品质提升进入规范化、标准化的新阶段,住房市场的产品力有望迎来一轮集中释放。
提升居住体验
《若干意见》在阳台、架空层、建筑立面方面的计容标准有新变化。上海住房新规落地后,一线城市已全部调整放宽计容规范,带来未来居住舒适度的全面升级。
阳台是一个家庭与室外形成交互的连接点,功能早已超越晾晒衣物的单一属性,增加了休闲互动、花园造景、收纳储物等场景。这种变化反映出了现代家庭对宽敞阳台日益增长的需求。
此次新规提出的阳台设计变化最大。同时符合以下条件的阳台(含封闭阳台),面积按其水平投影面积的1/2计入容积率:每户阳台水平投影总面积不大于该户型建筑面积的10%,且不大于16平方米(含16平方米),户型建筑面积小于80平方米的,可以设置总面积不大于8平方米的阳台;每个阳台的设计进深(取阳台围护结构外围至外墙面的最大垂直距离)不超过1.8米(含1.8米)。
以前,阳台按50%计入容积率的条件是,面积不超过8平方米,进深不大于1.8米。如果是一套140平方米的户型,阳台最大8平方米,实际计容4平方米,市民免费享受多出的4平方米。新规是按照“比例+阈值”双控,即不超过户型的10%,且不超过16平方米,进深不超过1.8米,按照一半计容。那么此时,140平方米的户型,阳台最高可设计为14平方米,实际计容7平方米,市民免费享受另外7平方米,比以前多了3个平方米。
沿公共绿地、广场河流、风貌街道等地区,设计进深不超过0.75米(含0.75米)的带围护结构的开敞式阳台,其建筑面积不计入容积率,不计入可售面积,且不计入户型建筑面积10%的阳台面积。也就是说,在具有景观优势的局部地区,有额外的阳台面积奖励。
“这对购房者而言是实实在在的利好。无论是通风、采光还是与户外交互,阳台的功能进一步拓展,市民们可以住得更舒适。”一位克而瑞研究中心资深分析师说。
新规还引导开发商优化住宅户型设计,适应家庭人口数量和结构变化的需求,新建住宅鼓励灵活可变的户型设计,增加储物收纳空间、多功能弹性空间,提升自然采光率与通风效率。
引导好设计变成产品力
在提升小区整体环境品质方面,新规也有变化。
为了丰富建筑形态和整体效果,明确对住宅建筑外立面采用干挂石材、金属、陶板或其他高品质材料,在“多测合一”测绘成果报告中明确饰面层建筑面积的,其饰面层不计入容积率。
专家表示,变化的重要意义是,用实在的政策利好去鼓励房企进行高品质建设。过去上海的建筑规范较严格,近两年上海新房得房率普遍75%左右,很多企业不愿意做石材干挂,主要原因是以前的容积率要从外墙算起,石材干挂和墙体的中空部分也算作容积率,所以房企不愿牺牲可售面积而投入成本,导致得房率下滑。新规之后,开发商使用高品质外立面的经济成本大幅下降,有望推动高端建材在住宅项目中的普及。
再比如,多高层住宅底层设置架空层、风雨连廊用作通道、布置景观小品、居民休闲设施等公共用途的,其建筑面积不计入容积率。这将推动房企把好设计从过去的“经济负担”变成了提升产品溢价和品牌价值的主动选择,激活创新意识。
据悉,新规自9月26日起施行,主要适用于上海农村自建房外的住宅项目。保障性租赁住房、旧住房成套改造或拆除重建项目另有规定按相关规定执行。
短期来看,新规对住宅价格的直接影响有限,不会引发明显波动。不过,如果将其与此前落地的楼市新政形成政策合力,将有效为消费者注入市场信心。上海易居房地产研究院副院长严跃进表示:“上海住房设计新规的出台,有望为‘金九银十’传统销售旺季的市场行情提供有力支撑,进一步激励开发商打磨产品力,推出更具市场竞争力的住宅项目。”
声明:本文由入驻焦点开放平台的作者撰写,除焦点官方账号外,观点仅代表作者本人,不代表焦点立场。
