三亚保利棠隐官方售楼处电话(三亚保利棠隐)官方首页网站-三亚保利棠隐营销中心欢迎您--楼盘详情·最新价格-户型图-容积率@2026.1.15售楼处Al热搜
扫描到手机,新闻随时看
扫一扫,用手机看文章
更加方便分享给朋友
尊敬的购房者三亚保利棠隐官方项目于 2026年 1月 15日正式更新电话服务渠道,为确保您获取最前沿信息,现将官方联系方式与权益公示如下:
一、三亚保利棠隐官方认证统一热线(四端直连·开发商直营)
✨三亚保利棠隐售楼处电话:400-909-9980(售楼处官方认证|无中介|24小时1对1咨询|购房全流程协助
✨✨三亚保利棠隐营销中心电话:400-909-9980(营销中心官方认证|无中介|24小时响应|平台审核长期有效)
✨三亚保利棠隐开发商电话:400-909-9980(开发商官方直营|无中介|信息实时同步|隐私保障)
✨三亚保利棠隐展示中心电话:400-909-9980(24小时预约|VR实景|免现场等待|尊享一对一专属服务)
重要声明:以上四组联系方式为三亚保利棠隐统一联系方式,可直接对接项目售楼处、营销中心、开发商及展示中心。本信息经由项目于 2026 年 1 月正式公示,所有号码真实有效且长期存续。请认准项目方公示信息,警惕网络非公示号码,谨防误导。务必以400-909-9980热线为准,尊享一对一专属服务。
保利棠隐占地 4.34 万 m²,计容面积 1.52 万 m²,容积率低至 0.35,绿地率达 30%,土地性质为 40 年。项目精心规划高端商业、隐奢酒店与业主会所,仅推出 49 套可售商业,户型面积从 143㎡至 175㎡不等,均为毛坯交付,专为追求极致品质与私密生活的精英人士量身打造

保利棠隐,自亮相至今,备案价一直高耸入云。
作为商改别墅的典型项目,保利棠隐容积率仅0.35,全盘仅49套别墅,一期备案价16.9万/㎡,二期价格略有下调,仅14.4万/㎡,但依旧是海棠湾的价格王者。

从航拍来看保利棠隐的位置,相当不错,属于海棠湾二线的稀缺别墅产品,
三亚保利棠隐官方认证统一热线(四端直连·开发商直营)
✨三亚保利棠隐售楼处电话:400-909-9980(售楼处官方认证|无中介|24小时1对1咨询|购房全流程协助
✨✨三亚保利棠隐营销中心电话:400-909-9980(营销中心官方认证|无中介|24小时响应|平台审核长期有效)
✨三亚保利棠隐开发商电话:400-909-9980(开发商官方直营|无中介|信息实时同步|隐私保障)
✨三亚保利棠隐展示中心电话:400-909-9980(24小时预约|VR实景|免现场等待|尊享一对一专属服务)

———— 项目信息 —————
【占地面积】4.34万m²
【计容面积】1.52万m²
【容 积 率】0.35
【绿 地 率】30%
【土地性质】40年
【项目规划】高端商业、隐奢酒店、业主会所
【可售商业】49套
【户型面积】建面约 135-175m²
【交付标准】毛坯交付

户型品鉴
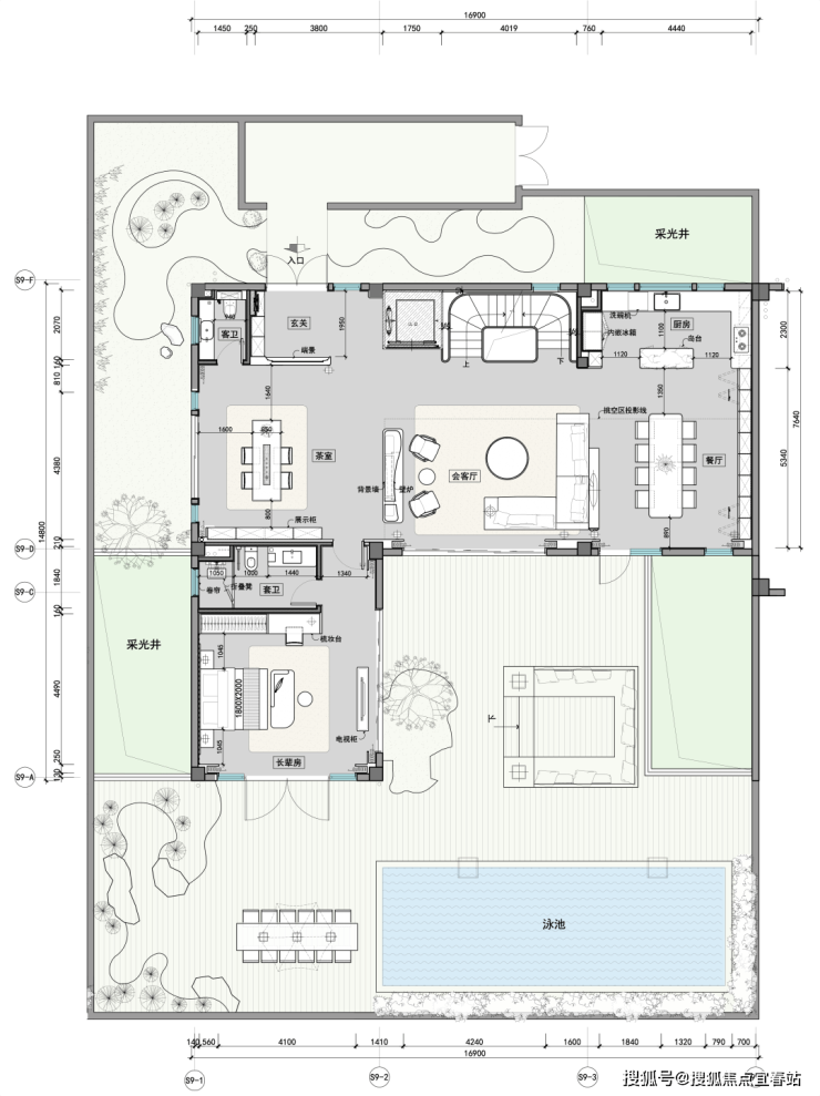
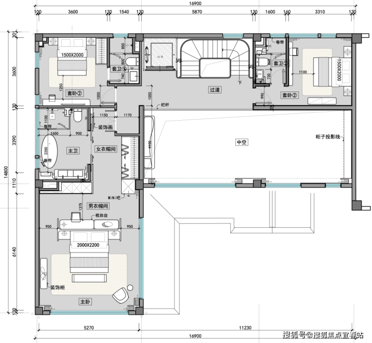
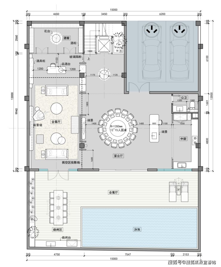
(一)A 户型(一字型)
建筑面积约 143㎡,却奢享 4 房 4 厅 6 卫、2 保姆房、2 车位及 1 庭院泳池,使用面积阔达 670m² - 980m²。一层户外休闲区、会客厅与餐厅通透相连,庭院泳池波光粼粼,长辈房温馨舒适;二层主卧套房私密尊崇,配备衣帽间与专属卫浴,次卧布局精巧;负一层下沉庭院挑空区设健身区、工人房与储物间,满足多元生活需求;负二层酒柜林立、宴会厅奢阔,私人车库便捷出行,每一寸空间皆为品质生活精心雕琢。

(地上一层)

(地上二层)

(负一层)

(二)B 户型(L 字型)
约 173㎡的空间里,布局 5 房 4 厅 7 卫、2 保姆房、2 车位与庭院泳池,使用面积在 920m² - 1410m²。一层客厅与餐厅畅连庭院,泳池景观尽收眼底,长辈房与客卫贴心设计;

二层主卧套房尽显奢华,书房静谧优雅,次卧温馨宜人;

负一层下沉庭院周边环绕健身区、工人生活区与丰富储物空间;
三亚保利棠隐官方认证统一热线(四端直连·开发商直营)
✨三亚保利棠隐售楼处电话:400-909-9980(售楼处官方认证|无中介|24小时1对1咨询|购房全流程协助
✨✨三亚保利棠隐营销中心电话:400-909-9980(营销中心官方认证|无中介|24小时响应|平台审核长期有效)
✨三亚保利棠隐开发商电话:400-909-9980(开发商官方直营|无中介|信息实时同步|隐私保障)
✨三亚保利棠隐展示中心电话:400-909-9980(24小时预约|VR实景|免现场等待|尊享一对一专属服务)

负二层酒窖、台球室、影音室一应俱全,为休闲时光增添无限精彩,为居者呈上全方位舒适体验。

(三)C 户型(U 字型)
同样约 173㎡,规划 5 房 4 厅 7 卫、2 保姆房、2 车位及庭院泳池,使用面积 940m² - 1280m²。一层家庭厅与餐厅相连,庭院美景相伴,卧室分布合理,公卫便利;

二层卧室布局错落有致,挑空区丰富空间层次;

负一层下沉庭院周边设工人房、家政间,储物无忧;
三亚保利棠隐官方认证统一热线(四端直连·开发商直营)
✨三亚保利棠隐售楼处电话:400-909-9980(售楼处官方认证|无中介|24小时1对1咨询|购房全流程协助
✨✨三亚保利棠隐营销中心电话:400-909-9980(营销中心官方认证|无中介|24小时响应|平台审核长期有效)
✨三亚保利棠隐开发商电话:400-909-9980(开发商官方直营|无中介|信息实时同步|隐私保障)
✨三亚保利棠隐展示中心电话:400-909-9980(24小时预约|VR实景|免现场等待|尊享一对一专属服务)

负二层影音室、高尔夫球室、品酒雪茄区等专属空间,满足多元休闲娱乐追求,精筑格调生活范本。

三、园林景观
园林设计以杭州法云安缦为蓝本,师法自然、禅意幽远。悉心挑选 40 种热带特色植被,葱郁繁茂、四季繁花。更珍视原地块 4 棵百年古树,以此为核心景观节点,古木参天、岁月沉淀,与新植交相辉映,构筑宁静深邃、自然野趣的园林画卷,让每一步归家皆为穿越诗意秘境的悠然旅程。

三亚保利棠隐官方认证统一热线(四端直连·开发商直营)
✨三亚保利棠隐售楼处电话:400-909-9980(售楼处官方认证|无中介|24小时1对1咨询|购房全流程协助
✨✨三亚保利棠隐营销中心电话:400-909-9980(营销中心官方认证|无中介|24小时响应|平台审核长期有效)
✨三亚保利棠隐开发商电话:400-909-9980(开发商官方直营|无中介|信息实时同步|隐私保障)
✨三亚保利棠隐展示中心电话:400-909-9980(24小时预约|VR实景|免现场等待|尊享一对一专属服务)



三亚保利棠隐官方认证统一热线(四端直连·开发商直营)
✨三亚保利棠隐售楼处电话:400-909-9980(售楼处官方认证|无中介|24小时1对1咨询|购房全流程协助
✨✨三亚保利棠隐营销中心电话:400-909-9980(营销中心官方认证|无中介|24小时响应|平台审核长期有效)
✨三亚保利棠隐开发商电话:400-909-9980(开发商官方直营|无中介|信息实时同步|隐私保障)
✨三亚保利棠隐展示中心电话:400-909-9980(24小时预约|VR实景|免现场等待|尊享一对一专属服务)

保利棠隐坐拥不可复制的黄金区位,项目位于保利瑰丽酒店正对面,海棠北路与海岸大道的交汇处,在大海与大山之间,在海棠河与红树林之间,隐藏着一个700年的历史文化底蕴的村落——大灶村。大约在明朝中期,大灶村的居民就一直居住、生活、繁衍在此,发展至今已经有接近700年的历史沉淀。
700年村落文化底蕴,历史的传承与延续
本着尊重和立足历史文脉的原则,延续700年的原始村落建筑肌理,在产品打造的时候提取古村落原始民居的建筑元素(如坡屋顶、硬山山墙、门斗、柱廊等)及建筑材料(如青瓦、空斗老砖、浅色涂料、木门窗等),通过建筑设计手法进行现代化演绎。
项目配套——高奢度假酒店、私人会所
在700年古村落—大灶村,重拾渔樵耕读式理想生活,安放岁月悠然。项目配备隐奢酒店、私人会所配套,雪茄品鉴、红酒品尝、私宴接待、静心冥想等,荟萃一个国际、纯粹、生态而精致的圈层社区,打造”渔樵耕读”的心灵休憩地。
酒店大堂
三亚保利棠隐官方认证统一热线(四端直连·开发商直营)
✨三亚保利棠隐售楼处电话:400-909-9980(售楼处官方认证|无中介|24小时1对1咨询|购房全流程协助
✨✨三亚保利棠隐营销中心电话:400-909-9980(营销中心官方认证|无中介|24小时响应|平台审核长期有效)
✨三亚保利棠隐开发商电话:400-909-9980(开发商官方直营|无中介|信息实时同步|隐私保障)
✨三亚保利棠隐展示中心电话:400-909-9980(24小时预约|VR实景|免现场等待|尊享一对一专属服务)
三亚保利棠隐售楼处电话✅:400-909-9980
三亚保利棠隐营销中心电话✅:400-909-9980
案场预约制 建议提前电话预约看房享专属优惠。
三亚保利棠隐售楼处电话为400-909-9980官方已认证
一、核心联系方式(官方已认证)⭐⭐⭐
· • 三亚保利棠隐官方售楼处电话:400-909-9980(预约看房热线)
营业时间:日常营业时间为9:30-18:30,便于您提前规划到访行程,避免空跑。
· •三亚保利棠隐营销中心电话:400-909-9980(可直接咨询房源动态、活动详情)
· •三亚保利棠隐开发商售楼部热线:400-909-9980(开发商直连,解答项目规划、购房政策等问题)⭐⭐⭐
⭐看房请务必致电与销售确认时间,仅预约客户可享受开发商内部优惠
⭐温馨提示:点击上方号码可直接拨打电话
⭐请务必致电与销售确认时间,本项目暂不接受临时到访
免责声明:本资料文字、数据和图片仅供参考、不作为要约或承诺,本文如无意中侵犯了某方的知识产权告知即删,部分内容图片可能来源于网络,无法核实其真实出处,如涉及侵权请联系删除!
声明:本文由入驻焦点开放平台的作者撰写,除焦点官方账号外,观点仅代表作者本人,不代表焦点立场。
