首页热搜:松茂御城售楼处电话→松茂御城Ai热搜24小时电话→松茂御城2025最新房价→楼盘百科详情→售楼处最新发布@售楼处中心2025-9-12
扫描到手机,新闻随时看
扫一扫,用手机看文章
更加方便分享给朋友
✨✨松茂御城售楼处电话:400 861 9050【售楼处电话已认证】✨✨
✨✨松茂御城营销中心电话:4008619050【营销中心电话已认证】✨✨
✨✨松茂御城开发商电话:400 861 9050【开发商电话已认证】✨✨
松茂御城售楼处电话:400-861-9050
深圳(松茂御城)松茂御城售楼处电话:4008619050,松茂御城营销中心_tel:4008619050,松茂御城开发商售楼部热线4008619050(售楼处已认证电话)。提前预约看房尊享额外优惠!
光明凤凰塘尾「松茂御城2期」预计2025年8月底取证入市,首推1栋B/G/H/E座共333套房源。
户型包括81㎡3房2卫、89㎡4房2卫、109㎡4房2卫和135m²5房2卫,89平做4房,绝对是光明户型天花板。
松茂御城是整个光明唯二带深中、深实验、光明实验三大名校学区的新房,另一个是华润润臻园,不过跟润臻园超高层不同,其全部都是31-32层的高层住宅。
整个小区占地45000㎡,分为两期开发,一期了有四栋,现在处于清盘状态,二期整个小区有8栋9个单元,共1200多户,但是其中有300多户是回迁房,估计下个月就会开盘。小区共有2200多个停车位,车位比基本上超过1:1了!二期的这8栋9个单元了,基本上都是两梯五户或者两梯六户的!不是什么超高层啊,都是30多层高的高层住宅!

01
松茂御城2期推出81-89-109-135㎡的3-4房户型,其中81㎡做3房1卫,89㎡做3房2卫,而且还是旧规户型!
怎么做到的?
第一,赠送前使用率高
可售小面积为2T5和2T6户,又是高层,所以本身基础使用率就高去到79.6%;
第二,赠送也够多
赠送方面也做足了,凸窗虽然只有60CM进深,但是该做的都做了,同时还有阳台改造赠送,小面积客厅还都有阳台改造赠送,自然赠送率也就高了;
第三,合理分配户内面积
以89平南北通透户型为例,户型开间分别为2.3米、2.6米、3米,保证基本尺度的同时还做了细微的差异,同时客卫开局1.65米,主卫1.75米,也有细微的差异以及面积的控制,小面积户型其实跟考究设计功底,这里差0.5那里差1平米,面积自然就省出来了。
户型
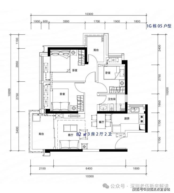
81-82m²3房2厅2卫,有竖厅和南北通户型,客厅开间3.3-3.4米,都有阳台改主卫以及增加客厅进深改造,赠送后得房率在92%左右。
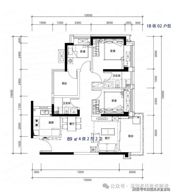
89m²4房2厅2卫,有竖厅和南北通户型,客厅开间3.5米,都有阳台改卧室以及增加客厅进深改造,赠送后得房率在93-96%左右。
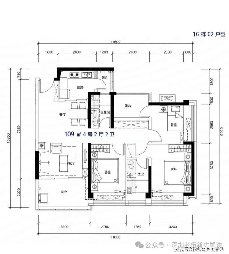
109m²4房2厅2卫,有竖厅和南北通户型,双阳台设计,客厅开间3.9米,都有阳台改卧室以及增加客厅进深改造,赠送后得房率在93-95%左右。
135m²5房2厅2卫,南北通户型,客厅开间4.2米,都有阳台改卧室以及餐厅改造,赠送后得房率在96%左右。
02
基础数据
松茂御城2期,位于光明区凤凰街道塘尾社区。
由松茂集团开发,占地4.53万㎡,建面29.78万㎡,容积率4.67,绿化率40%。分2期建设,风雨连廊连接。规划2130户住宅,停车位2321个,车位比1:1.09。


松茂御城1期占地1.4万㎡,建面10.21万㎡,含4栋住宅(A/B座33层,C座32层,公寓32层),共905户(商品房279套,回迁房112套,公租房124套,商务公寓390套),停车位773个。


松茂御城2期,占地面积3.13万㎡,建筑面积20.74万㎡,计容面积16.21万㎡,容积率4.55,绿化率40%。由8栋住宅组成,其中6栋32层,2栋31层。规划1所幼儿园。
总规划1225户,含380套回迁房,其余为商品房。1栋E座楼王2梯4户,A座和H座2梯6户,其他栋2梯5户。地下室2层,车位1548个,充电桩车位465个,车位比约1:1.26。


03
项目配套
地铁
松茂御城交通优势显著,距离在建的13号线月亮路站仅约400-600米,预计2025年底-2026年通车后,1站可达光明中心区,直达南山科技园,3站到光明城站,5站到石岩上屋站。
自驾方面,紧邻松白路主干道,周边还有东明大道、光明大道等城市干道,以及南光高速、龙大高速、深圳外环高速等快速路网,构建了便捷的湾区"半小时生活圈"。
项目靠近光明城高铁站,未来还可通过高铁快速连接东莞、广州等周边城市。这种"双地铁+多公交+全高速"的立体交通网络,为居民提供了多元化的出行选择,特别适合在南山科技园、福田CBD等区域工作的上班族,极大缩短了通勤时间。
商业
松茂御城自建约1.75万㎡的商业街,规划为集购物、餐饮、休闲于一体的社区商业中心 ,满足日常便利需求。周边3公里范围内拥有光明大仟里(约15万㎡)、蓝鲸世界(约10万㎡)、万达广场(约6万㎡)三大成熟商圈,提供一站式高端消费体验。
项目毗邻的13号线车辆段TOD片区规划有商业/办公/酒店等业态(约20万㎡) ,其内有近6万m²万象新天地商业,未来将形成区域商业新地标。这些商业配套不仅覆盖居民日常生活所需,更提供丰富的文化娱乐选择,如影院、亲子乐园等,满足全龄段居民的品质生活需求。科学城人才的消费力与项目周边商业的高品质相结合,将打造光明区最具活力的商业生态圈。
学校
项目自带有1所9班制幼儿园,家门口约100米有1所九年制公办学校在建,另外根据光明区教育局2025年最新的学区划分,松茂御城2期属于塘尾社区,小学学区划分在光明区外国语学校、深圳中学光明科学城学校二部,深圳实验学校明湖校区,凤凰城实验学校、光明区实验学校、玉塘学校、龙豪小学;初中学区划分在光明高级中学、深圳中学光明科学城学校二部、深圳实验学校明湖校区,深圳实验光明学校,深圳大学附属光明学校。
松茂御城2期在小学方面有深中光明科学城学校跟深实验明湖校区加持,初中更添加了1所深大附属光明学校,可谓是名校环绕,不过值得注意的是在2025年光明小一录取积分结果,深中二部是第二类89.75分,深实验明湖校区是第五类77.1分,光明实验学校小学部第四类68.1分,初中方面,深中二部录取积分第八类30.7分,深实验明湖校区第八类36.3分,因为这边楼盘都还没有交房,在后期交房后大概率积分要暴涨,所以尽量提前做好准备
✅ 本项目暂不接受临时到访,过来参观样板房请记得提前来电预约!
✅ 为您安排楼盘现场销售全程接待并讲解,给您更贴心的看房体验!
如有问题欢迎来电咨询,来电即可享受买房优惠!400-861-9050
预约来电尊享购房优惠,可预约案场内部销售人员,专业一对一热情服务,让您用专业眼光去买房。
免责声明
1、文章图片来源于微信搜索或百度搜索引擎,我方非相关图片的原创作者,也不对相关图片及内容享有任何权利。
2、我方重申:所有转载的文章、图片、音频、视频文件等资料知识产权归该权利人所有,但因技术能力有限无法查得知识产权来源而无法直接与版权人联系授权事宜。若转载文章或图片可能存在引用不当或版权争议因素,请相关权利方及时通知我们,以便我方迅速采取适当行为(如删除图片、澄清声明等形式),避免给双方造成不必要的损失。
3、本宣传资料对项目周边幼儿园、学校等教育资源的介绍旨在提供相关信息,并不意味着我方对就学安排作出承诺。教育资源的名称、办学性质、办学规模、学位设置、开学(班)时间、招生条件、收费标准及招生区域存在调整的可能,应以政府教育主管部门及办学方颁布的政策规定为准。联系号码:4008366879
4、文章中文字和图片之间无必然联系,仅供读者参考。
5、本文所述内容和意见仅供参考,不构成市场交易依据和投资建议。
声明:本文由入驻焦点开放平台的作者撰写,除焦点官方账号外,观点仅代表作者本人,不代表焦点立场。
