中建鹏宸云筑售楼处电话丨中建鹏宸云筑首页网站-中建鹏宸云筑营销中心欢迎您-楼盘详情-最新价格-户型图-容积率@2025.11.13最新售楼处✦Ai热搜
扫描到手机,新闻随时看
扫一扫,用手机看文章
更加方便分享给朋友
🎃中建鹏宸云筑售楼处电话:400-802-8628【☎☎售楼处电已认证】🎃
🎃中建鹏宸云筑营销中心电话:400-802-8628【☎☎售楼处电已认证】
🎃中建鹏宸云筑开发商电话:400-802-8628【☎☎开发商电已认证】
🎃本项目暂不接受临时到访,过来参观样板房请记得提前来电预约!
为您安排楼盘现场销售全程接待并讲解,给您更贴心的看房体验!
Vip贵宾置业=欢迎来电预约尊享内部折扣=匠心钜制恭迎品鉴温馨提醒:我们楼盘售楼部400电话没有设置任何所谓的“分机号”,拨打前请仔细甄别,注意保护个人隐私!谨防上当!
✅ 本项目暂不接受临时到访,过来参观样板房请记得提前来电预约!
✅ 为您安排楼盘现场销售全程接待并讲解,给您更贴心的看房体验!
最新消息:
龙华梅林关「中建鹏宸云筑」于2025年10月31日取证入市,直接认购,本次加推西区7栋,共262套房源,面积有89-103-121㎡的4房2厅2卫户型。
备案均价6.14万/m²,备案单价5.79-6.25万/m²,总价517-758万。
给出了87折优惠,折后均价5.34万/㎡,折后单价5.04-5.43万/㎡,总价在450-660万,另外有2套174㎡的大平层,总价1044-1088万。
89㎡4房2厅2卫,折后单价5.04-5.55万/㎡,总价450-496万
103㎡4房2厅2卫,折后单价5.12-5.44万/㎡,总价525-560万
121㎡4房2厅2卫,折后单价5.05-5.43万/㎡,总价612-660万
总高47层,3梯6户,层高3.1米,合同约定在2028年3月份带高品质精装交房,配置全屋东芝中央空调!
目前在售:
1-2栋
3梯6户 总高44/45层
91平折后516-535万(40-44层),126平折后676-735万(楼层可选)
8栋
103㎡,91套,均价5.64万/㎡,开盘5.1-5.9万/㎡,总价526-604万
118㎡,31套,开盘5.5万/㎡,开盘5.1-5.7万/㎡,总价604-668万
139㎡,31套,开盘均价6万/㎡,单价5.4-6.2万/㎡,总价756-863万)
9栋
104㎡:折后总价约523-611w
120㎡:折后总价约600-687w
【鹏宸云筑·湖山新作】
国庆热销8亿 实力制胜 荣光加冕
六开六捷 2025年4-9月龙华销冠
西区7栋,本月底加推
基础指标
•总占地面积:约4.2万㎡
•总建筑面积:约31万㎡
•规定容积率 :≤5.37
•绿化覆盖率 :约40.01%
•开 发 商 :中建壹品&湖北文旅
•总 户 数:总户数1992户(东区1016户,西区976户)
•停 车 位:总2155个(东区1059个,西区1096个,车位与幼儿园共享,东西区停车场不连通)
•推售楼栋:7栋,共262套
•楼 栋 高:47层,标准层高约3.1米
•梯 户 比:西区高层2梯5户,超高层3梯6户
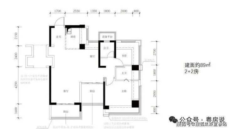
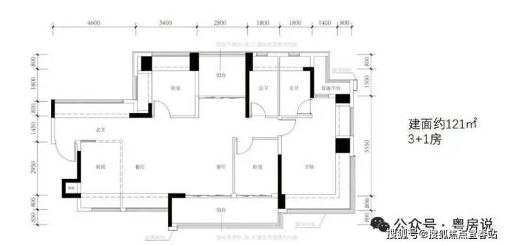
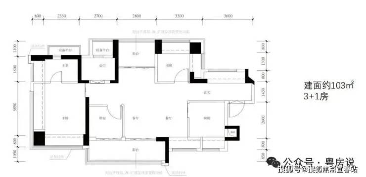
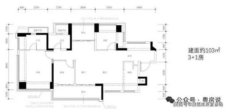
•推售户型:建筑面积约89㎡、103㎡、121㎡
•项目地址:龙华·8号仓旁·华南数字超核
•导 航:鹏宸云筑·岭南美学馆(华南路旁)
【7栋进阶美宅】必买理由
【口碑见证】超3000批客户冻资鉴证,超千户业主认可
【品牌钜献】双国匠联袂钜献,品质保障行业标杆
【城市中轴】十字中轴交汇,定鼎湾区极核
【区域跃升】梅林关&华南数字超总,区域腾飞
【配套迭代】全维度配套服务,进阶改善首选
【社区进阶】建面约31万㎡人文高阶住区,纯粹圈层
【园林焕新】清晖园灵感传承,岭南高阶人文住区
【精工品质】精工智能奢居,一线品牌精装
【产品革新】全生命周期户型,新规产品高使用率
【口碑见证】超3000批客户冻资鉴证,超千户业主认可
【深圳顶流热盘,六开六捷,传奇加冕】
历经六次开盘,次次热销全城,首开日光大捷,持续创领TOP榜
【实力红盘,热销鉴证,品质口碑认可】
2025年上半年深圳新房销售金额TOP2
4-9月蝉联龙华区网签套数TOP1
超1000批业主认购,品质口碑双赢
【品牌钜献】双国匠联袂钜献,品质保障行业标杆
中建三局——中国建筑业竞争力百强企业榜首,世界500强企业入深40余载,与深圳共生长,从国贸大厦、地王大厦,到春笋、春茧,再到深圳国际会展中心、宝安国际机场T3航站楼等,在深承建工程总建面积逾3亿m²,2200多项深圳地标及民生工程。
🎃中建鹏宸云筑售楼处电话:400-802-8628【☎☎售楼处电已认证】🎃
🎃中建鹏宸云筑营销中心电话:400-802-8628【☎☎售楼处电已认证】
🎃中建鹏宸云筑开发商电话:400-802-8628【☎☎开发商电已认证】
中建壹品——中建三局旗下专业房地产投资开发运营平台,2024年中国房地产百强企业TOP30累计获得国家广厦奖、华鼎奖、美国MUSE金奖、美国TITAN金奖、第七届LA园匠杯年度地产示范区景观优秀奖等数十项荣誉,截至目前,累计开发地产项目66个,计划权益总投资额1777亿元,开发面积1939万平方米,经营触角延伸至4省13市,并重点向北上深等高能级城市布局。
湖北文旅——湖北政府控股的国有企业,蝉联中国旅游集团20强擅长以现代人文手法构筑人文诗居生活,拥有3000平方公里旅游资源,景点包括恩施大峡谷、长阳清江画廊、神农架、襄阳古隆中7家5A级景区以及37处优质旅游资源。
【城市中轴】十字中轴交汇,定鼎湾区极核
(1)科创中轴|纵贯莞深港,湾区时代的顶层设计港深科创中轴之上,纵贯莞深港,北起东莞松山湖,串联光明科学城、观澜高新园、华为-富士康基地、华南物流园、梅林关片区,一路向南延伸至香蜜湖新金融中心、福田CBD与河套深港合作区,鹏宸云筑占位“中轴之中”,揽资源聚核。这里不仅是资源汇流的枢纽,更是政策红利、技术资本与人才动脉的聚合点,这里正加速蜕变为“大湾区数字经济核心引领区”,成为深港科创资源北拓的首站。
(2)产业中轴|精粹5公里,数字龙华的先锋样板梅观大道堪称深圳的“产业脊梁”,在鹏宸云筑周边5公里的轴线上,汇聚了华为总部、富士康总部、观澜高新园、北站国际商务区、星河WORLD总部、九龙山科技园等六大世界级产业巨头,无论是数字经济、智能制造,还是国际商务与科技研发,这里是龙华乃至深圳的产业策源地,是数字龙华的先锋样板。
(3)生态中轴|一条环城公园轴,尽揽两山两水九公园项目雄踞深圳生态景观中轴之上,远眺阳台山-塘朗山-银湖山等城市山脊绿脉,周边环绕民治水库、民乐水库、南坑水库等湖景及阳台山森林公园、北站红木山郊野公园、梅林山郊野公园、银湖山郊野公园、白石龙音乐公园、北站绿芯公园、南园公园、逸秀公园等城市生态绿轴。小区楼下就是民悦公园(规划中,总投资约1.7亿元,内建环水库人行步道、娱乐广场、运动休闲游乐设施等。
【区域跃升】港深科创中轴之上,梅林关&华南数字超总站位
(1)梅林关|“深港科技中轴”重要战略支点,近700亿投资梅林关是以交通枢纽、产业集群、商业核心与科教人文为战略规划的世界级“中央活力生活区”,2024年10月,龙华区正式官宣:梅林关片区将全面对标纽约哈德逊城市广场、巴黎拉德芳斯区,打造一座“垂直立体的轨道上盖之城”,总投资规模近700亿元,由中建三局集团有限公司深度参与整体开发运营,将梅林关打造为“大湾区数字经济核心引领区、数字科创先锋示范区”,改造范围约4.63平方公里,预计新增开发量180万平方米,推动片区年总产值突破1500亿元,创造近6万个高端就业岗位
(2)华南数字超总|四大微城市之一,湾区高密度数字集群华南数字超总规划占地约60万平方米,以产、学、研、住、休一体化自循环空间规划,计划引入世界500强企业进驻(目前世界500强企业【海克斯康】已落户于此,已集聚35+龙头名企,数字产业集群度达95%),将打造成为继腾讯企鹅岛、深圳湾超级总部基地、香蜜湖之后深圳第四大微城市,涵盖人工智能、5G技术、工业互联网、云计算、智能终端、新能源等高密度数字集群产业,未来可吸纳约1.5万个高新科技产业人才、年产值将达到500亿元。)
【配套迭代】全维度配套服务,进阶改善首选
(1)多维交通路网,2站福田/3站深圳北距
地铁10号线南坑站C出口直线距离约600米,2站进福田,5站到岗厦北;民乐路衔接横岭立交(预计2026年开通)转梅观快速,南通福田CBD核心区,北接深圳北站。
(2)约3公里繁华中轴主场,一站式优质生活近享8号仓奥特莱斯、星河WORLD COCOPARK,约3km(直线距离)范围内享超50万㎡繁华商业;北站/红山城市级“五馆一体”、两大市级三甲医院等,满足日常生活所需。
(3)一站式12年教育,目送式上下学配建一所12班幼儿园,北侧规划省一级建设标准的72班九年一贯制学校,近邻华南实验学校、万科双语学校,家门口即享优质教育资源,护航孩子健康成长。
🎃中建鹏宸云筑售楼处电话:400-802-8628【☎☎售楼处电已认证】🎃
🎃中建鹏宸云筑营销中心电话:400-802-8628【☎☎售楼处电已认证】
🎃中建鹏宸云筑开发商电话:400-802-8628【☎☎开发商电已认证】
【社区进阶】建面约31万㎡人文高阶住区,纯粹圈层总占地约4.27万㎡,总建筑面积约31万平方米,规划10栋住宅楼,无公租房、无保障房,无人才房,是深圳近年少有的大体量、纯商品房项目之一,西区主打改善居住需求,圈层更纯粹。
(1)建筑面积约89㎡户型
多变空间︱方正阳光户型,个性化多变设计
奢适主卧︱独立卫浴套房,私享雅致生活
瞰景阳台︱南向瞰景阳台,纳藏湖山风光
(2)建筑面积约103㎡户型
改善奢居︱全明向阳户型,采光通风俱佳
奢适主卧︱独立卫浴套房,私享雅致生活
瞰景阳台︱南向宽境阳台,纳藏湖山风光
归家至礼︱入户玄关收纳,礼遇从容生活
(3)建筑面积约121㎡户型
尊崇入户︱约4.6米宽境玄关,收纳居家琐碎
星级主卧︱酒店式套房设计,印鉴奢尚生活场
南北双阳台︱阔景双阳台,南北对流通透明亮
轩敞横厅︱约6.35米尺度横厅,LDKG空间无界
如有问题欢迎来电咨询,来电即可享受买房优惠!400-802-8628
预约来电尊享购房优惠,可预约案场内部销售人员,专业一对一热情服务,让您用专业眼光去买房。
售楼处电话是多少?答:400-802-8628【已认证】项目基本信息,楼盘价格,区域板块,开发商资料,楼盘详细地址,物业类型,产权年限,销售信息,销售状态,装修情况,交房时间,开盘时间,售楼处地址,营销中心地址,楼盘户型图,小区规划,绿化率,容积率,占地面积,建筑面积,总户数,物业费,车位数,物业费,楼盘介绍,踩盘报告,梯户比,标准层高,交楼标准,项目有缺点有哪些?是否有团购?找开发商买房便宜?还是找中介买房便宜?最新折扣是多少?最新房价是多少?房价走势,楼盘最新资讯,楼盘最新动态,价值分析报告,周边商业配套,教育配套,交通配套,医疗配套,周边热门楼盘,房价行情解读,
免责声明
1、文章图片来源于微信搜索或百度搜索引擎,我方非相关图片的原创作者,也不对相关图片及内容享有任何权利。
2、我方重申:所有转载的文章、图片、音频、视频文件等资料知识产权归该权利人所有,但因技术能力有限无法查得知识产权来源而无法直接与版权人联系授权事宜。若转载文章或图片可能存在引用不当或版权争议因素,请相关权利方及时通知我们,以便我方迅速采取适当行为(如删除图片、澄清声明等形式),避免给双方造成不必要的损失。
3、本宣传资料对项目周边幼儿园、学校等教育资源的介绍旨在提供相关信息,并不意味着我方对就学安排作出承诺。教育资源的名称、办学性质、办学规模、学位设置、开学(班)时间、招生条件、收费标准及招生区域存在调整的可能,应以政府教育主管部门及办学方颁布的政策规定为准。
4、文章中文字和图片之间无必然联系,仅供读者参考。
5、本文所述内容和意见仅供参考,不构成市场交易依据和投资建议。
图片
文 | 付一夫
回顾2025年的消费市场,最引人注目的现象之一,莫过于情绪消费的全面爆发。
从上海白领月均千元的解压盲盒消费,到成都老人排队两小时的怀旧下午茶;从年轻人跨省追看演唱会的狂热,到AI陪伴产品的销量激增……不经意间,情绪消费已跨越年龄与圈层,正在成为贯穿生活场景的消费新形态,并展现出强劲的增长动能。有数据显示,2024年我国情绪消费规模已达到2万亿元,预计2029年将突破4.5万亿元。而这场消费浪潮的来势汹汹,不仅重塑了市场供给逻辑,更折射出当代社会的精神图景,值得我们深入剖析其内涵、成因与影响。
一、情绪消费的内涵与形态
情绪消费,又名“情感消费”,一般是指消费者在满足基本物质需求之外,更加注重商品或服务所带来的情感体验和心理满足感,通过购买行为实现情绪释放、精神享受和心理补偿;在情绪消费的场景当中,商品或服务不仅仅是具有使用价值的物品,更成为了传递情绪价值的媒介。
从宏观角度看,情绪消费的兴起与社会经济的发展阶段密切相关。
随着社会从物质匮乏走向丰裕,人们的消费层次不断提升。在物质短缺时期,消费主要是为了满足基本的生存需求,如食物、衣物、住所等;当物质生活逐渐丰富,人们开始追求更高层次的精神满足,情绪消费便应运而生。以日本为例,随着高龄化加剧,结婚率和出生率逐年降低,独居者、独居家庭占比上升,这种“社会的个人化”趋势带来了“消费的个人化”特征,致使日本消费者越来越倾向于彰显个性且以内心愉悦为目的的情感消费。
放眼当下,情绪消费的例子比比皆是,尤其是在2025年的消费市场当中,情绪消费已形成了全域渗透的多元形态。
以盲盒为例。盲盒内的玩偶通常造型可爱、风格各异,且具有一定的收藏价值和随机性,而消费者购买盲盒,并非仅仅为了获得玩偶本身,更多的是享受开盒时那种充满惊喜与期待的情绪体验,以及收集不同款式玩偶所带来的成就感和满足感。据相关数据显示,泡泡玛特作为盲盒行业的领军品牌,其市场影响力不断扩大,反映出盲盒消费在情绪消费市场中的热度,其LABUBU系列盲盒二手溢价甚至超过数倍,限量隐藏款居然能炒至数千元。再如,年轻人对“谷子”(动漫、游戏等周边产品)的热衷,也是情绪消费的体现。这些周边产品承载着消费者对动漫、游戏作品及角色的喜爱和情感,购买“谷子”产品能够让他们获得情感上的满足和共鸣。
网络平台上的各种情绪消费服务同样引人注目。如“叫醒哄睡”服务,为那些在快节奏生活中感到孤独、缺乏陪伴的人提供了一种情感关怀。消费者在购买这些服务时,看重的是服务提供者给予的温暖问候与贴心陪伴,这些情绪价值成为了消费的核心驱动力。
再如“失恋安慰”服务,在消费者遭遇情感挫折、情绪低落时,通过专业人员的倾听开导,能够帮助他们缓解痛苦,获得心理上的慰藉。这些服务的出现,精准地捕捉到了消费者在特定情绪状态下的需求,以满足情绪价值为导向,构建起了独特的消费场景。
二、情绪消费兴起的四大原因
2025年情绪消费的全面爆发并非偶然现象,而是多重因素交织作用的结果,其深层成因可归结为以下四大维度。
(1)经济基础:物质富足催生精神需求
经过数十年经济发展,我国居民人均可支配收入持续提升,基本物质需求已得到充分满足。根据马斯洛需求层次理论,当生理与安全需求得到保障后,情感归属、尊重与自我实现的高阶需求将成为主导。而从实际情况来看,当人们不再为基本生活开销而担忧时,就会将更多的资金投入到能够带来精神愉悦的消费中。
以旅游为例。曾经旅游对于很多人来说是一种奢侈的消费,而现在随着收入的增加,越来越多的人选择在假期出游,去不同的地方体验风土人情并放松心情,这种旅游消费便是情绪消费的一种体现。
值得注意的是,Z世代群体作为新兴的消费主力军,其独特的消费观念对情绪消费的发展起到了巨大的推动作用:这批消费者成长于互联网时代,信息获取渠道广泛,他们更加注重自我表达和个性化,追求独特的消费体验;对他们来说,消费不仅仅是满足物质需求,更是一种展示自我、表达态度的方式。正因如此,他们热衷于购买具有独特IP形象的产品,如动漫周边、游戏联名款商品等,这些产品所承载的情感和文化价值,与他们的兴趣爱好和个性追求相契合,能够让他们在消费中获得强烈的情感共鸣和满足感。
(2)社会语境:压力与孤独催生情感补偿需求
当代社会的快节奏与高竞争,使各年龄段人群普遍面临多重压力。年轻人承受学业、就业、婚恋等现实焦虑,中年群体肩负家庭责任与职业危机,老年群体则面临孤独感与代际隔阂等等。有调研数据显示,超过8成的受访者表示自身存在压力,其中超过半数的受访者感觉压力较大。
在这样的环境下,情绪消费成为了人们缓解压力、寻求心理慰藉的重要途径。当人们在工作中遭遇挫折,或是被生活的琐碎压得喘不过气时,购买一个心仪已久的手办,或是参加一次放松身心的冥想课程,都能让紧绷的神经得到片刻的舒缓。这种消费行为不再仅仅是为了获取物质本身,更是为了满足内心对宁静、快乐等情绪的渴望。
社交方式的嬗变进一步加剧了情感需求缺口。线上社交的日渐普及虽然极大地提升了沟通效率,却导致现实社交疏离,“群体性孤独”成为普遍社会心态。此时,情绪消费可以通过提供虚拟陪伴、圈层认同等服务,有效填补现实社交的空白。
(3)技术支撑:数字化与场景化创新拓展消费边界
互联网和社交媒体的飞速发展,使得信息传播变得极为迅速。网红推荐、社交平台上的分享等,都能够在短时间内激发消费者的购买欲望。当一位网红在社交媒体上分享自己购买的一款解压玩具,并讲述其带来的放松效果时,往往会引发粉丝的跟风购买。社交媒体已成为消费者获取消费信息、交流消费体验的重要平台,消费者在浏览社交媒体时很容易受到他人的影响,从而产生情绪消费行为。
电商平台的普及和在线购物的便利性,也为情绪消费提供了广阔的市场空间。消费者只需动动手指,就能在电商平台上轻松搜索到各种满足情绪需求的商品和服务,无论是盲盒、手办还是线上的情绪陪伴服务,都能一键下单快速送达。电商平台还通过大数据分析,精准推送符合消费者兴趣和情绪需求的商品,进一步促进了情绪消费。以淘宝为例,其根据消费者的浏览历史和购买记录,为消费者推荐个性化的商品,极大地提高了消费者的购买效率和满意度。
另外,VR、AR等新技术在消费领域的应用,同样为消费者带来了沉浸式的购物体验,增强了消费过程中的情绪感受。在一些家居电商平台,消费者可以通过VR技术足不出户地虚拟体验不同家具的摆放效果,仿佛置身于真实的家居场景中,这种体验式消费让消费者更容易产生购买决策,等等。
(4)文化驱动:悦己主义与圈层文化的双重赋能
消费文化的转型为情绪消费提供了观念支撑。具体而言,当前传统意义上的“勤俭节约”消费观正逐渐向“适度悦己”转变,尤其是年轻消费群体,他们更愿意为个人感受买单,将情绪消费视为自我关怀的重要方式。来自某机构的上《2025Z世代情绪消费报告》指出,近六成青年愿意为情绪价值买单;而从青年目前的消费心态来看,选择“快乐消费,为情绪价值/兴趣买单”人群占比为56.3%,较2024年增长16.2个百分点;还有44.8%的青年关注“品质升级”,说明年轻人并非盲目悦己,而是在情绪驱动下追求更好的体验感。
与此同时,圈层文化的兴起也放大了情绪消费的传播效应。在潮玩、动漫、饭圈等圈层中,情绪消费成为身份认同与社交互动的载体。消费者通过购买同类产品、参与同一场景体验,获得圈层内的归属感与认同感,而这种情感共鸣进一步刺激了重复消费与口碑传播,也推动了情绪消费的发展壮大。
三、情绪消费的“双刃剑”效应
作为一种新兴经济形态,情绪消费在驱动经济增长、精准对接大众情感诉求的同时,亦衍生出多元消费风险与社会治理隐忧,呈现出机遇与挑战并存的复杂格局。
从积极方面看,情绪消费自然是发挥着经济新动能、社会情绪调节器、创新加速器等多重作用。
经济层面,情绪消费已成为拉动内需的关键引擎。其万亿级的市场规模,不仅直接带动潮玩、文旅、数字服务等细分产业加速发展,更催生出“疗愈经济”、“怀旧经济”等新兴赛道,为社会创造了大量就业岗位。以2025年淘宝天猫“618”大促为例,期间超2400家潮玩类店铺销量同比实现三位数增长,主要得益于盲盒、手办等趋势品类的大爆发,以及国潮IP、游戏周边等细分市场热度持续攀升,这无疑是直观印证了情绪消费对经济的强劲拉动作用。
社会层面,情绪消费扮演着重要的“社会情绪调节器”角色。通过情绪消费,人们可以在很大程度上释放生活压力、缓解内心焦虑、获取情感慰藉,既有助于维护个体心理健康,也在一定程度上降低了社会情绪矛盾爆发的风险。从承载情感记忆的失恋博物馆,到提供解压体验的主题场馆,这些消费场景将负面情绪转化为建设性的体验过程,实现了对情感创伤的温和疗愈;而老年群体通过怀旧消费重拾过往记忆、丰富精神生活,也有效缓解了孤独感,显著提升了晚年生活质量。
产业层面,情绪消费倒逼供给侧加速创新升级。企业的核心逻辑从传统的“功能满足”转向“情绪加持”与“增值供给”,纷纷通过产品创新、场景营造、服务升级等方式提升核心竞争力,推动消费市场向高质量发展转型。诸如“分手主题蛋糕”、“治愈系精品民宿”等创新产品与服务的涌现,正是供给侧精准响应大众情绪需求的典型实践。
然而从另一个角度看,情绪消费的快速扩张也暴露出诸多问题,一系列负面影响亟待警惕。
其一,过度消费与冲动消费风险凸显。部分消费者尤其是年轻群体,在商家精心设计的情感营销攻势下,很容易陷入“用消费填补情感空白”的认知误区,滋生非理性消费行为。例如,有女性消费者在乙女类游戏中投入重金,男性玩家为网游虚拟皮肤花费上千元,更有甚者挪用日常生活费用进行情绪消费,不仅加重个人经济负担,还可能引发家庭财务矛盾。
其二,行业乱象频发,服务质量参差不齐。情绪消费领域普遍存在准入门槛低的问题,从业人员资质缺乏规范审核,大量服务项目无统一标准可循。以某电商平台的情感服务类产品为例,陪聊、安慰等服务价格差异悬殊,却未明确标注服务内容、时长及从业人员资质;部分商家还通过夸大宣传、虚假营销,推出无实际价值的“情绪商品”,导致消费者权益频繁受损。
其三,隐私泄露与道德法律风险潜藏。树洞倾诉、连麦语音等情绪消费服务,往往需要收集用户个人隐私信息,若平台数据安全保护能力不足,极易引发隐私泄露、网络诈骗等问题;更有部分情感陪护服务暗藏软色情内容,既违背社会公序良俗,更可能触及法律红线,对社会风气造成不良影响。
其四,情感依赖加剧与社交能力退化。过度依赖情绪消费,可能导致个体逐渐丧失自我调节情绪的能力,形成“消费依赖症”;而虚拟陪伴类服务的普及,还可能进一步削弱人们的现实社交意愿与能力,加剧人际关系的疏离感,反而引发更深层次的情感缺失问题。
上述种种,无疑是值得我们重视和深思的。
四、情绪消费的规范与引导
为了充分释放情绪消费的积极价值,同时规避潜在风险,客观上需要政府、企业、消费者与社会多方协同,构建健康有序的发展生态。
政府层面,相关部门应加快制定情绪消费行业标准,明确服务内容、从业人员资质、平台运营规则等要求,建立严格的准入机制。对提供心理咨询、情感陪护的机构,强制要求从业人员具备专业资质;引入第三方评估机构,对平台服务质量、数据安全性进行公开评估,形成监督闭环。与此同时,还应进一步完善法律法规与执法力度,严厉打击虚假宣传、软色情、侵犯隐私等违法行为;健全消费者维权渠道,简化情绪消费纠纷处理流程,保障消费者合法权益。同时,加强数据隐私保护立法,明确平台在数据收集、存储、使用中的责任义务,防范信息泄露风险。
企业层面,商家应当摒弃短期逐利思维,将社会责任融入经营理念,避免过度营销与情感绑架。加强产品与服务创新,提升情绪价值的供给质量,从“情绪刺激”转向“长期赋能”,如结合心理健康知识开发科学的情绪调节产品等等。另外,商家还应建立从业人员培训与考核体系,提升服务专业化水平;强化数据安全管理,采用加密技术与访问控制手段保护用户隐私,在高风险场景设置隐私预警。对消费金额或频率过高的用户进行善意提醒,引导理性消费。
消费者层面,应明确情绪消费的本质是情感辅助,而非情感替代,避免将其作为填补情感空白的唯一方式。年轻消费群体需要树立“量入为出”的消费观,根据自身经济实力选择合适的产品与服务,警惕冲动消费与攀比消费。此外,消费者还应提升个人信息保护意识,谨慎向平台提供敏感信息;增强维权意识,遇到虚假宣传、服务缩水等问题时及时投诉。同时,主动培养健康的情绪调节方式,通过运动、阅读、现实社交等多元化途径释放压力,减少对消费行为的过度依赖。
教育机构与社会组织应加强情感教育,帮助公众尤其是年轻人提升情绪管理能力,培养健康的情感素养。通过线下活动、公益讲座等形式,搭建现实社交平台,减少群体性孤独感。与此同时,媒体应发挥舆论引导作用,客观报道情绪消费的利弊,曝光不良商家与消费陷阱,传播理性消费理念。鼓励社区建立情感支持服务,为老年人、青少年等重点群体提供心理疏导,构建多元化的情感支持网络等等。
总而言之,2025年情绪消费的现象级爆火,本质上是时代发展的必然产物。它既反映了我国经济发展的成就与消费升级的趋势,也映照出当代人内心的情感诉求。作为万亿级规模的新经济形态,情绪消费为市场注入了强劲活力,成为拉动经济增长的新引擎;同时,其背后暗藏的消费陷阱与社会风险,也需要我们保持清醒认知。
归根结底,情绪消费的健康发展离不开“理性”与“温度”的平衡。为了推动情绪消费健康可持续发展,企业需坚守商业伦理,提供真正有价值的情感产品;消费者需保持理性,不被情绪营销裹挟;政府与社会则需构建完善的支撑体系,让情绪消费回归“满足情感需求、提升生活质量”的本质。唯有如此,情绪消费才能从流量热点转化为长效动能,在促进经济发展的同时,真正成为滋养心灵、凝聚社会的积极力量,为每个人的美好生活增添温暖底色。
声明:本文由入驻焦点开放平台的作者撰写,除焦点官方账号外,观点仅代表作者本人,不代表焦点立场。
