首页热搜:中洲迎玺售楼处电话→中洲迎玺→Ai热搜售楼处24小时电话→2025最新房价→楼盘百科详情→售楼处更新发布@售楼中心2025-08-31
扫描到手机,新闻随时看
扫一扫,用手机看文章
更加方便分享给朋友

约45万㎡低密纯居:超核最大体量住区,众多人口集聚,也将带动片区商业繁荣,并促进市政配套设施的落实与兑现。无保障房、回迁房,深圳高端品质级稀缺纯住宅。
【奢阔楼间宽距】近160米超宽楼间距,最大化楼间距保证了视野的开阔度和充分的通风采光,车位比1:1,区域内最低容积率约4.24,片区稀缺2梯4户/2梯5户/3梯4户/3梯3户,高私密性,高舒适性。
【约1.3万㎡中央森系园林】片区内最大的社区园林,精制“四大隐奢空间”、“三大能量场域”,搭配森系儿童乐园、四季隐形轻氧跑道等,以顶奢酒店园林设计为理念,打造当代年轻人的城市微度假生活。
【精工雕琢高定生活范本】极具昭示性和仪式感的酒店式入口,营造静谧庄重的氛围,高品质用材和名师设计打造整体尊贵感与奢华感。
路网-四横四纵公路网 :福龙路、南坪快速、北环大道等“四横四纵”深圳主干道,驾车轻松即可深圳的各核心片区
【学校配套】小区配建18班幼儿园,深圳外国语学校龙华校区(初中大学区,具体以当年教育局公布为准);格致中学民治校区(已于2024年4月正式动工)
【商业配套】项目周边近100万㎡ 商圈环伺,汇聚了龙华首家华润万象商业(建设中)、红山6979、华南首家Costco旗舰店等品质商业,国际一线品牌荟萃,演绎未来潮流新主场。
【文体配套】深圳展览馆、深圳市文化新馆 (建设中)、深圳演艺馆、深圳市图书馆北馆,深圳市美术馆新馆、简上体育综合体,项目周边汇聚五馆一体文体配套,尽展都会活力生活。
【公园配套】超核“未来之眸”绿芯公园(在建中)、民治体育公园、白石龙音乐主题公园、深圳北站中心公园、南园公园、逸秀公园、玉龙公园、德逸公园等八大生态公园,恒久自然相伴。
中洲迎玺园林效果展示(只供参考)
精心打造的摩登立体泳池、网红主题儿童乐园、社区运动场地、宠物乐园等等,让整个社区变得更宜居,下楼即可享受轻松惬意的周未生活!
户型介绍
93㎡的3房2厅2卫,仅2栋2单元02/03户型,设计的是竖厅格局,客厅3.6米开间,进门入户玄关,LDKB一体化设计,三开间朝南,3个卧室分别做到了3.2米/2.8米/2.6米的宽度,U型厨房,得房率:77.48%(不含赠送),阳台进深1.5米,正南朝向。
95㎡的3房2厅2卫,仅2栋1单元02/03户型,设计的是竖厅格局,客厅3.6米开间,进门入户玄关,LDKB一体化设计,三开间朝南,3个卧室分别做到了3.2米/2.8米/2.6米的宽度,U型厨房,得房率:77.48%(不含赠送),阳台进深1.5米,东南朝向。
97㎡的3房2厅2卫,仅2栋4/5单元02/03户型,设计的是竖厅格局,客厅3.6米开间,进门入户玄关,LDKB一体化设计,三开间朝南,3个卧室分别做到了3.2米/2.8米/2.6米的宽度,U型厨房,得房率:73.95%(不含赠送),阳台进深1.5米,正南朝向。
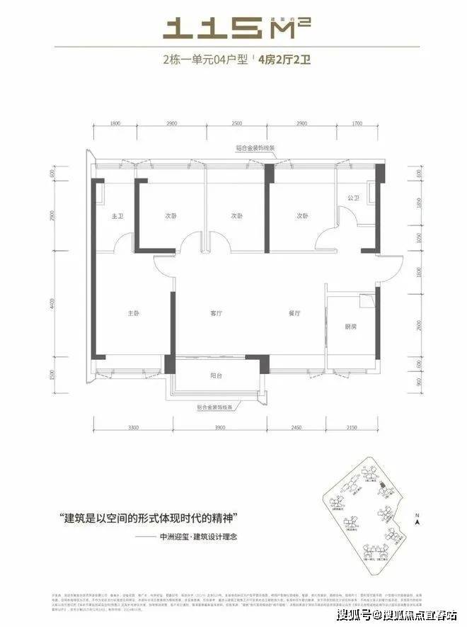
115㎡的4房2厅2卫,仅2栋1单元04户型,设计的是横厅南北通透格局,客厅6.35米开间,进门入户玄关,四开间朝南,4个卧室分别做到了3.3米/2.9米/2.9米/2.5米的宽度,U型厨房,公卫三段式分离设计,得房率:77.48%(不含赠送),阳台进深1.5米,主朝西南向。
115㎡的4房2厅2卫,仅2栋2单元04户型,设计的是竖厅南北通透格局,客厅3.7米开间,进门入户玄关,四开间朝南,4个卧室分别做到了3.35米/2.95米/2.25米/2.2米的宽度,U型厨房,得房率:77.48%(不含赠送),阳台进深1.6米,主朝东南向。
120㎡的4房2厅2卫,仅2栋4/5单元01户型,设计的是竖厅南北通透格局,客厅3.7米开间,进门入户玄关,四开间朝南,4个卧室分别做到了3.4米/2.9米/2.8米/2.2米的宽度,U型厨房,得房率:73.95%(不含赠送),阳台进深1.6米,主朝东南向。
131㎡的4房2厅2卫,仅2栋1单元01户型,设计的是竖厅双龙抱珠格局,客厅3.8米开间,进门入户玄关,四开间朝南,主卧南北通透设计,4个卧室分别做到了3.5米/3.3米/2.6米/2.6米的宽度,L型厨房还带1个生活阳台,得房率:77.48%(不含赠送),阳台进深1.6米,西南朝向。
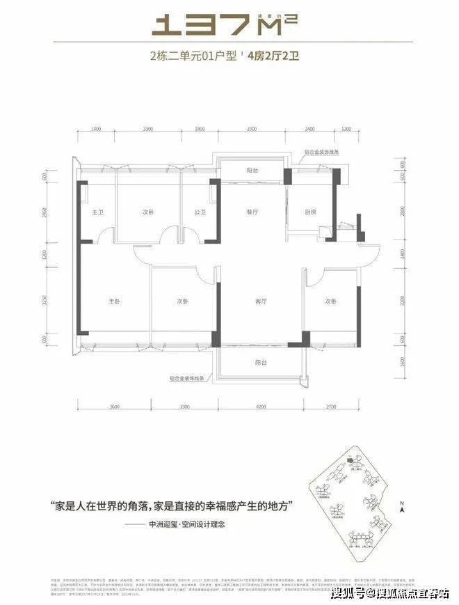
137㎡的4房2厅2卫,仅2栋2单元01户型,设计的是竖厅格局,南北通透双阳台,客厅4.2米开间,进门入户玄关,四开间朝南,4个卧室分别做到了3.6米/3.3米/3.3米/2.7米的宽度,U型厨房,得房率:77.48%(不含赠送),阳台进深1.6米,大阳台主朝正南向。
141㎡的4房2厅2卫,仅2栋4/5单元04户型,设计的是竖厅格局,南北通透双阳台,客厅4.2米开间,进门入户玄关,四开间朝南,主卧南北通透设计,4个卧室分别做到了3.6米/3米/3米/2.5米的宽度,U型厨房,得房率:73.95%(不含赠送),阳台进深1.7米,大阳台主朝东南向。
142㎡的4房2厅2卫,仅2栋3单元02户型,楼王单位,设计的是竖厅双龙抱珠格局,客厅3.8米开间,进门独立入户玄关,四开间朝南,主卧南北通透设计,4个卧室分别做到了3.5米/3.2米/2.6米/2.6米的宽度,L型厨房还带1个生活阳台,得房率:73.95%(不含赠送),阳台进深1.6米,东南朝向。
163㎡的4房2厅2卫,仅2栋3单元01/03户型,设计的是竖厅格局,南北通透双阳台,客厅4.6米开间,进门入户玄关,四开间朝南,主卧大套间设计,4个卧室分别做到了4米/3.4米/2.9米/2.7米的宽度,U型厨房,得房率:73.95%(不含赠送),阳台进深1.6米,大阳台主朝东南向。
免责声明:部分信息来源于网络,如果侵权,请联系400-832-7289及时删除
✅本项目暂不接受临时到访,过来参观样板房请记得提前来电预约!
一、政策基调与市场导向
支持多样化住房需求
首次明确提出支持刚性住房需求和多样化改善性需求,鼓励高品质住宅开发(如别墅、低容积率住宅),容积率普遍降至1.5以下(如苏州、重庆)。
取消行政限制
全面取消限购、限售、限价政策,赋予地方政府调控自主权,推动“市场归市场”原则。
供给侧改革
调整住宅设计规范,得房率提升至100%-120%,层高不低于3米,淘汰低端房产。
二、金融支持措施
首付比例下调
首套普通住宅首付降至15%(全国统一),二套房首付最低25%(如内蒙古、北京)。
贷款利率优化
首套房贷利率下限降至4.6%,二套降至5.0%;商业贷款取消利率下限,由银行自主定价。
信贷扩容
增加“白名单”项目信贷规模至4万亿元,支持房企融资。
三、保障性住房与市场监管
加大保障房供给
新增廉租房、公租房及配售型保障房,实施封闭管理(如合肥要求一户一房、禁上市交易)。
优化土地供应
增加保障房用地比例,延长土地出让金缴纳时限,缓解房企资金压力。
强化登记监管
推行不动产预告登记全覆盖,防止“一房多卖”。
税收与地方化债支持
契税减免
全国房地产交易契税优惠首月减免116.9亿元,降低购房成本。
专项债扩容
新增地方化债资源10万亿元,支持存量商品房收购及城中村改造。
地方政策示例
北京:五环外放宽购房资格,非京籍社保年限缩短。
合肥:保障房主申请人需满25周岁,高层次人才不受户籍限制。
内蒙古:首套房商贷首付15%,预告登记“全程网办”。
声明:本文由入驻焦点开放平台的作者撰写,除焦点官方账号外,观点仅代表作者本人,不代表焦点立场。
