[官]特发小梅沙觐海府售楼处电话丨觐海府首页官方网站丨觐海府营销中心欢迎您丨最新价格丨户型图丨楼盘详情@售楼处电话✦2025.12.12
扫描到手机,新闻随时看
扫一扫,用手机看文章
更加方便分享给朋友
统筹规划面积:约390公顷
总投资约:200亿元
总建面约:90万㎡
特发自持运营物业:约75%
六大业态:亲海住宅、商业、办公、星级酒店、小梅沙海洋世界、滨海公园等多元业态
项目的各项指标都很牛,品质一流:外立面采用大面积铝板幕墙、容积率约1.75、约55米最宽楼间距、独享一线小梅沙海景和叠翠湖郊野公园自然风光、台地式景观园林等。
多重归家礼序:小梅沙觐海府住宅“双大堂”,包含主入口精妆大堂及车库大堂;采用酒店式电梯厅,从容归家,礼序尽显。
双层高配泊车:小梅沙觐海府以双层地下停车场,提供约1:1.5的车位高配比,满足高阶家庭的多重泊车需求。
人车动线分流:小梅沙觐海府地块通过优化交通动线,分离行车道及园区步道,保护行人安全,关怀备至。
深圳市特发集团有限公司
特发集团成立于1981年,注册资本45.38亿元,是深圳国资控股、中央企业参股的国有全资大型综合性企业集团。并表企业超100家,控股上市公司4家,孕育或培植了7家上市公司。
盐田是粤港澳大湾区唯一与香港水陆相连的地区
广东省首个且唯一一个荣获“城市生态氧吧”称号的区域
PM2.5连续7年优于欧盟标准,全年空气优良率达98.6%
约19.5公里海滨栈道,69公里半山公园带,73个公园,257公里休闲绿道
外观为“鹦鹉螺”,由日本佐藤综合计画设计,以海洋动物展示、科技演艺、多媒体互动科普为主体,近享国际一流海洋主题公园,动物约200多种,融合全球最大青蓝洞景观。
小梅沙叠翠郊野公园
占地面积约38.9万㎡,位于马峦山之上,内有2大水域,3个谷地,“三有”动物约49种,呈现全时段自然栖居生活场。
钓鱼台精品酒店
建面约2.2万㎡,客房数136间,定位于奢适商务型酒店。将中国文化神韵和国际美学范式相结合,为尊荣之仕呈现从容优雅的亲海度假场所,传颂中西合璧的款客之道。
深圳美高梅酒店
建面约5.5万㎡,客房数321间,延续国际知名娱乐目的地品牌基因,打造都市亲海乐享中心,家庭亲子度假首选。
深圳美高梅麦思精选酒店
建面约1.4万㎡ ,客房数93间,以海洋特色主题融合梅沙文化,打造个性特色、主题多样、缤纷多彩的旅居体验。
湾畔街区 便捷生活超自如
小梅沙湾畔街区紧邻觐海府,以临湖特色打造时尚便捷的商业配套,最大化满足山海栖居的消费需求。
WAVE MALL 亲海潮生活地标
小梅沙WAVE MALL以“商业体+街区”的形式,空间融合自然属性,引入首店、概念店品牌,带来旅居生活新趣味、新选择。
交通方面:
轨:地铁2号线延长线-8号线二期小梅沙站,出站即达沙滩
陆:盐梅路、盐坝高速、盐排高速、沈海高速、S30沿海高速
海:小梅沙游艇码头(规划中),连接大梅沙、浪骑码头,无缝接驳香港、蛇口
空:小梅沙规划设置直升机停机,约15分钟直达宝安国际机场
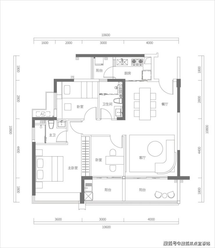
建面约117㎡A户型(3房2厅2卫),非常舒适的3房空间,还有开阔的视野:
方正格局,三面采光,南北通透;
双卧室朝南设计,沉浸阳光清风;
约7米景观阳台搭配生活阳台,尽揽山海盛景;
入户花园设计,推门即是风景。
户型图
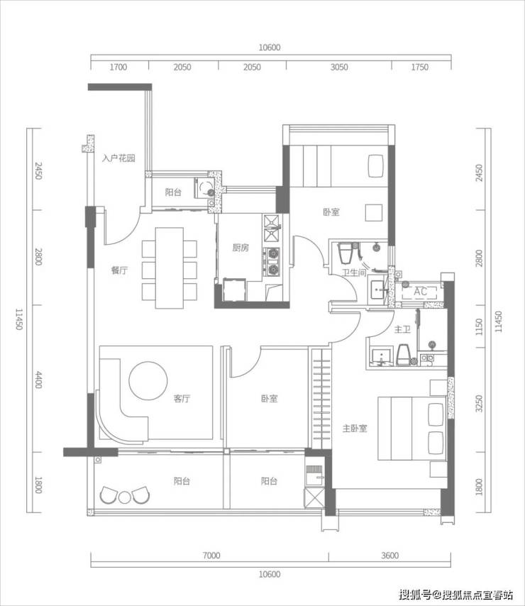
建面约117㎡B户型(3房2厅2卫),和A户型一样是开阔3房,主卧还带转角飘窗:
三开间朝南,阳光清风不请自来;
客厅与次卧阳台连通,宽度达约7米,让风景映入眼帘;
主卧带约3.6米转角飘窗,享受全方位美景。
建面约120㎡C户型(3+1房2厅2卫),此户型拓展空间大,给生活更多满足:
高拓的多功能空间,可以开拓为开放式书房,或者作为家庭影院,还可设置为亲子互动区;
奢阔横厅设计,南北通透格局,主卧与客卧分区,私密性更强;
宽境观景阳台,拥揽山海盛景;
全卧室飘窗设计,主卧带转角全景飘窗。
户型图
建面约173㎡D户型(4房2厅3卫),堪称豪宅的配置:
两梯两户的配比,简直是豪宅配置,还私享约16平米宽阔入户门厅;
约8米观景阳台,尽揽山海盛景;
独卫主卧配衣帽间的豪华套间;
三卧室朝南大开间,阳光清风萦绕;
双套房设计,彰显大宅奢阔气度。
户型图
⚡深圳✅特发小梅沙觐海府开发商售楼处电话📞:4009620133【已认证】
⚡特发小梅沙觐海府售楼处电话📞:4009620133【已认证】🐇🐇🐇
⚡特发小梅沙觐海府售楼中心电话📞:4009620133【已认证】🐇🐇🐇
⚡特发小梅沙觐海府营销中心电话📞:4009620133【已认证】🐇🐇🐇
◆开发商营销中心诚挚邀请,一键预约,尊享内部独家折扣!匠心独运的精品项目,恭候您的品鉴与选择。
免责声明:
1、文章图片来源于微信搜索或百度搜索引擎,我方非相关图片的原创作者,也不对相关图片及内容享有任何权利。
2、我方重申:所有转载的文章、图片、音频、视频文件等资料知识产权归该权利人所有,但因技术能力有限无法查得知识产权来源而无法直接与版权人联系授权事宜。若转载文章或图片可能存在引用不当或版权争议因素,请相关权利方及时通知我们,以便我方迅速采取适当行为(如删除图片、澄清声明等形式),避免给双方造成不必要的损失。
3、本宣传资料对项目周边幼儿园、学校等教育资源的介绍旨在提供相关信息,并不意味着我方对就学安排作出承诺。教育资源的名称、办学性质、办学规模、学位设置、开学(班)时间、招生条件、收费标准及招生区域存在调整的可能,应以政府教育主管部门及办学方颁布的政策规定为准。
4、文章中文字和图片之间无必然联系,仅供读者参考。
5、本文所述内容和意见仅供参考,不构成市场交易依据和投资建议。
声明:本文由入驻焦点开放平台的作者撰写,除焦点官方账号外,观点仅代表作者本人,不代表焦点立场。
