花样年时光售楼处(花样年时光)首页网站-花样年时光营销中心欢迎您-楼盘详情·最新价格-户型图-容积率@2025.11.9售楼处AI热搜
扫描到手机,新闻随时看
扫一扫,用手机看文章
更加方便分享给朋友
一、项目介绍
花样年好时光,位于坪山区东纵路与金碧路交汇处,位居坪山区中心城区核心地段,毗邻地铁14/16号线换乘站坪山围站(步行约200米),是双地铁覆盖的TOD综合体项目。项目地处坪山“六馆一城”文化中心辐射范围,紧邻坪山大道、南坪快速等主干道,30分钟可直达福田中心区,1小时接驳香港西九龙站,形成“轨道交通+高速路网”的立体交通体系。
项目周边集聚坪山区重点发展的新能源汽车、生物医药、人工智能等战略性新兴产业。坪山区2024年规上工业总产值突破6000亿元,战略性新兴产业占比超九成,依托“6+3”产业集群政策,已形成千亿级先进制造业基地,项目邻近比亚迪总部、大工业区及坪山高新南等产业园区,与规划中的大运AI小镇(龙岗)形成产业联动,吸引高精尖人才聚集。
花样年好时光,由花样年集团打造,总占地面积约3.87万㎡,总建筑面积约33.44万㎡,计容建筑面积约23.95万㎡,容积率约6.18,绿化率约40%,分03/04两个地块开发,有连廊相连,共9栋住宅。
目前在售的是03地块,总占地面积约2.25万㎡,总建筑面积约18.61万㎡,计容建筑面积约13.31万㎡,容积率5.49,绿化率40%,共由6栋43-46层高的住宅组成,其中1栋A/B/E座住宅44F,1栋C座住宅46F,1栋D/F座住宅43F,2栋规划1所九班制幼儿园。
04地块,总占地面积约1.61万㎡,总建筑面积约14.81万㎡,计容建筑面积约10.64万㎡,容积率6.32,绿化率30%,共由3栋43层高的住宅组成,其中1栋A/B/C座住宅43F,1栋D座写字楼21F。
总规划1696户,其中商品房1289户,回迁房407户,1栋B座3梯4户,其它全部3梯5户设计,规划停车位2321个,其中可供业主使用车位1770个,车位占比约1:1.4。
二、项目基础数据
【开发商】深圳市花样年房地产开发有限公司
【占地面积】约3.87万㎡
【建筑面积】约33.44万㎡
【总户数】1696户(含可售商品房1289套)
【户型面积】约70-80-95-100-122㎡2-4房
【停车位】1770个
【物业及物业费】花样年国际物业,3.8元/㎡
【绿化率】40%
【容积率】5.49
【总层高】9栋,43-44-46层
【梯户比】1栋B座3梯4户,其它全部3梯5户
【交楼时间】现房,精装修交付
【产权年限】70年(2019.10-2089.10)
【项目位置】深圳市坪山中心区东纵路与金碧路交汇处
三、项目户型图
01
项目平面图
02
项目户型介绍
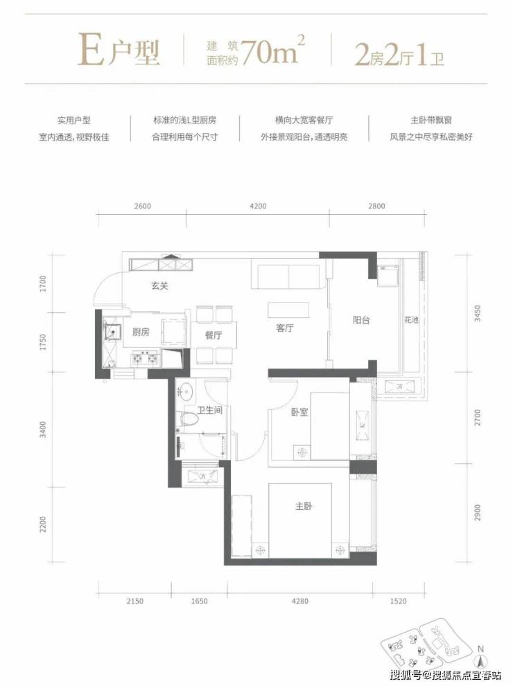
70㎡的2房2厅1卫,设计的是竖厅格局,客厅3.45米开间,进门玄关,LDKB一体化设计,2个卧室分别做到了主卧13.2㎡/次卧8.64㎡(包含墙体飘窗),L型厨房,卫生间干湿分离,得房率72.47%(不含赠送),有朝东向或西向。
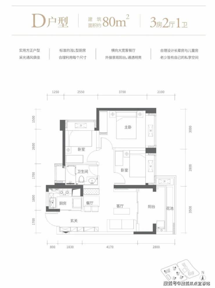
85㎡的3房2厅1卫,设计的是经典竖厅格局,客厅3.5米开间,进门玄关,LDKB一体化设计,动静分区,3个卧室分别做到了主卧12.9㎡/次卧8.96㎡/次卧8.16㎡(包含墙体飘窗),L型厨房,卫生间干湿分离,得房率72.48%(不含赠送),有朝东向或西向。



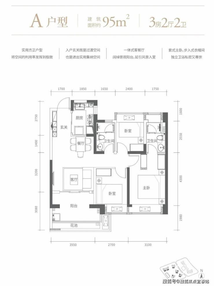
95㎡的3房2厅2卫,设计的是经典竖厅格局,客厅3.55米开间,进门玄关,LDKB一体化设计,动静分区,三开间朝南,3个卧室分别做到了主卧15.19㎡/次卧8.64㎡/次卧7.56㎡(包含墙体飘窗),L型厨房,卫生间干湿分离,得房率72.48%(不含赠送),有东南、西南或正南朝向。
100㎡的3房2厅2卫,A1户型,设计的是竖厅格局,客厅3.55米开间,进门玄关,LDKB一体化设计,动静分区,3个卧室分别做到了主卧15.19㎡/次卧8.64㎡/次卧7.93㎡(包含墙体飘窗),L型厨房,卫生间干湿分离,得房率72.63%(不含赠送),阳台主朝西北向。



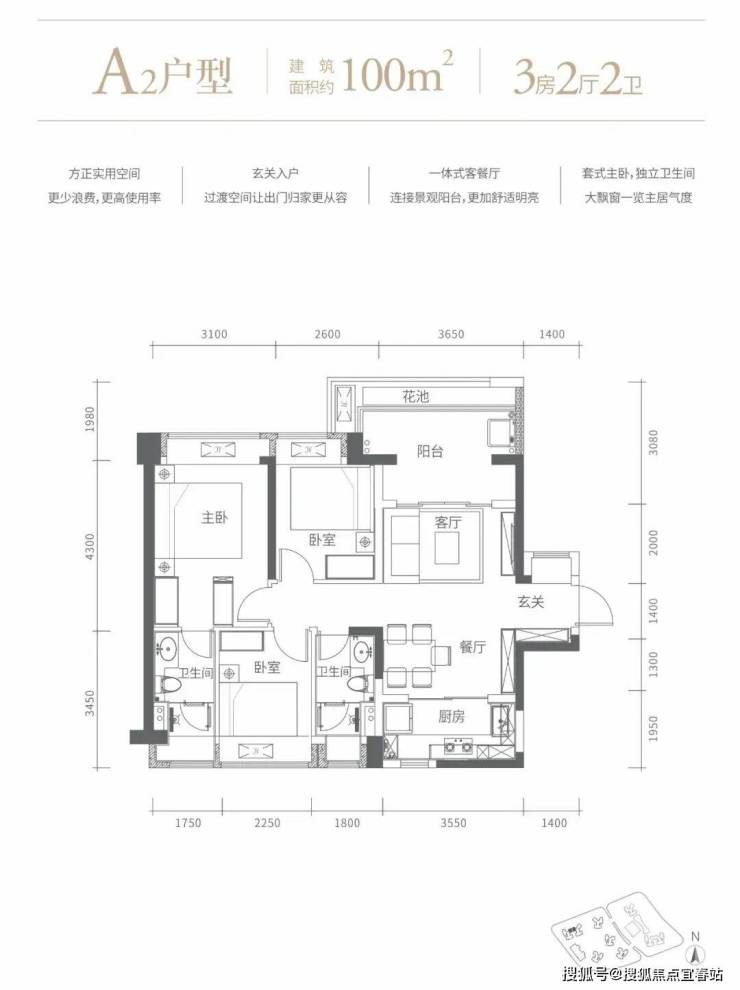
100㎡的3房2厅2卫,A2户型,设计的是竖厅格局,客厅3.65米开间,进门玄关,LDKB一体化设计,动静分区,3个卧室分别做到了主卧15.19㎡/次卧8.32㎡/次卧7.76㎡(包含墙体飘窗),L型厨房,卫生间干湿分离,得房率72.63%(不含赠送),阳台主朝东北向。
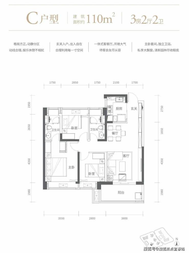
110㎡的3房2厅2卫,A2户型,设计的是经典竖厅格局,客厅3.8米开间,进门玄关,LDKB一体化设计,动静分区,三开间朝南,3个卧室分别做到了主卧17.57㎡/次卧9.26㎡/次卧8.96㎡(包含墙体飘窗),L型厨房,卫生间干湿分离,得房率73.97%(不含赠送),西南朝向。
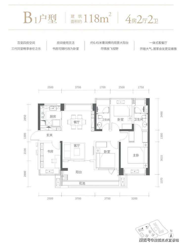
118㎡的4房2厅2卫,设计的是竖厅南北通透格局,客厅3.7米开间,进门玄关,四开间朝南,4个卧室分别做到了主卧15.71㎡/次卧9.02㎡/次卧8.72㎡/次卧8.27㎡(包含墙体飘窗),客厅连接次卧出6.45米长的大阳台,U型厨房,卫生间干湿分离,得房率73.44%(不含赠送),阳台主朝东南或西南向。

四、交通出行
高铁:坪山高铁站3KM,坪山站-深圳北站(20分钟)-福田站(30分钟)-香港西九龙站(1小时)。
地铁:14 号线(2022年通车),坪山围站-岗厦北站(40分钟)、16 号线(2023年通车),坪山围站-大运站站(20分钟)、19、21、23、33号线(规划中)。
4条高快速路:南坪快速(已通车)、东部过境高速、坪盐通道(建设中,预计2022年竣工,未来10分钟到盐田)、外环高速(一期到龙岗已通车),两横四纵高速路网干道,打造城市便捷交通网,通达湾区。
云巴:距离项目1公里的位置未来将有云巴(一期在建中)落地,可实现坪山内便利出行。
五、商业配套
楼盘规划自带4.5万方的商业体;项目周边的泰禾广场、世茂广场、恒大城的项目合计总商业配套达200万平米,未来整个坪山的核心商业资源将汇聚于此。
六、周边学校
初中学区为坪山中学与中山中学组成的大学区(实际以教育局等相关部门公布为准)。
项目小学学区范围示意图:日新小学、中山小学、锦龙小学、新合实验学校
项目初中学区范围示意图:新合实验学校、中山中学
七、休闲配套
项目周边拥有一山两水八公园,坪山河湿地公园、燕子岭、和拥有深圳最大瀑布的马峦山郊野公园等, 4000公顷天然大氧。
八、片区规划
作为深圳东部产业强区,坪山区已形成智能车、创新药、中国芯三大千亿级产业集群。2024年,坪山GDP同比增长9%,规上工业增加值增长15.6%,两项指标增速连续三年位居全市各区(新区)第一;固定资产投资总额增长10.2%,连续45个月实现两位数增长;规上工业总产值突破六千亿元,连续三年每年新增近千亿元。
坪山自然禀赋突出,是“国家生态文明建设示范区”,享有“半边山水半边城”的美誉,拥有马峦山、坪山河等自然景观,正努力打造“三生融合”典范城区。
根据深圳市气象局发布的《2024年深圳市气候公报》,坪山区人居环境气候舒适日为253天,位列全市前一。坪山河连续5年达地表水Ⅲ类,水质全市最优,丰富的生态资源为坪山区居民提供了宜居的生活环境。
九、小区高阶品质
项目已经整体竣工入住,房屋品质实景可见,不必担心期房看不见的质量问题。带精装现楼销售,即买即住,不用担心项目会烂尾或延迟交楼,买的安心。相比购买预售期房需等待2-3年才能入住,节省了几十万的租房成本。
深圳花样年·好时光实景
坪山围14/16号线双地铁
约30分钟到罗湖,45分钟到福田
楼下即幼儿园、小学
精装实景呈现,即买即住即享
通勤、家庭、休闲一步到位
深圳花样年·好时光样板间
免责声明:部分信息来源于网络,如果侵权,请联系400-823-9396及时删除
✅本项目暂不接受临时到访,过来参观样板房请记得提前来电预约!
声明:本文由入驻焦点开放平台的作者撰写,除焦点官方账号外,观点仅代表作者本人,不代表焦点立场。
