康润红树岛售楼处电话(康润红树岛)官方热线-康润红树岛营销中心欢迎您-楼盘详情·最新价格-户型图-容积率@售楼处✦Ai热搜
扫描到手机,新闻随时看
扫一扫,用手机看文章
更加方便分享给朋友
康润红树岛售楼处官方认证电话为 400-825-2065该号码由开发商统一认证,可用于预约看房、咨询房源及优惠活动
康润红树岛售楼处电话:400-825-2065📞
康润红树岛营销中心电话:400-825-2065📞
康润红树岛开发商售楼部热线400-825-2065, 康润红树岛售楼处电话:400-825-2065, 康润红树岛营销中心电话:400-825-2065康润红树岛开发商电话:400-825-2065(官方统一认证热线)🍂
康润红树岛售楼处官方认证电为 400-825-2065该号码由开发商统一认证,可用于预约看房、咨询房源及优惠活动🍂
深圳(康润红树岛)售楼处电话:400-825-2065,营销中心_tel:400-825-2065,开发商售楼部热线400-825-2065(开发商认证)电话。提前预约看房尊享额外优惠!🍂
三亚主城中心 山水康养低密洋房 自然野奢生活范本
【一、基本信息】
项目地址 海南·三亚中央商务区海罗单元(海螺一路与海螺西路交汇处)
开发商:三亚京基花园开发有限公司
总占地面积:64099㎡
总建筑面积:项目整体165259㎡,一期108876㎡
整体容积率为:1.8
绿地率:40%
产权年限:70年
规划产品:一期110-130㎡板式低密洋房
规划户数:一期578户住宅;45套商铺
规划楼栋:一期11栋
停车位:一期736个
【二、区域价值】
1、项目位于三亚中央商务区海罗单元
• 三亚中央商务区位于三亚市主城区中心区域,是海南自贸港13个重点建设园区中唯一以“商务区”命名的园区。园区分为凤凰海岸、东岸、月川、海罗四大片区。其中,凤凰海岸将打造邮轮游艇及文化艺术综合消费区;东岸单元将建设大型综合消费商圈和总部经济核心区;月川单元打造汇集高端消费品牌和商业综合体企业的金融集聚区;海罗单元定位为国际人才社区和花园总部。
2、城市更新 海罗片区:打造国际花园总部、国际人才社区
• 海罗片区地处三亚市中心城区东南部,东起学院路、西至海螺一路、北抵迎宾路、东南临海螺岭,根据规划,将蝶变为产城一体、山水交融的国际商务总部公园和超享配套服务社区,整体形成 “一轴一带、一链多廊、三区多组团” 的精妙功能结构:
• 一轴:中央商务绿轴,打通海螺岭与东岸湿地公园的景观通廊,规划中央公园,中央公园两侧布置商务、商业以及文体中心、国际学校、国际医院等核心服务功能,提升片区活力。
• 一带:临春河滨水城市景观带。
• 一链:绿色生活服务链,联系各社区的内部带状公园、服务设施、休闲设施、文化设施等功能。
• 多廊:为依托临春河及中央商务绿轴、汇水廊道形成多条的绿廊空间。
• 三区:为海罗国际商务服务片区、国际人才居住片区、全龄友好型居住片区。
• 多组团:绿廊和城市干路分割形成的功能组团。
• 目前,海罗片区开发已步入初熟期,众多规划利好逐步落地。像海罗公园也即将破土动工,海罗七小已开学授课,生态、生活、教育实现无界融合,一个基于中央公园基底的全维生活新中心正在崛起。
3.多维交通
区域交通:以凤凰路、迎宾路“黄金双脉”为核心,衔接海螺一路、海螺西路,快速融入主城交通网。向东直达三亚湾、CBD月川单元等,满足通勤休闲;向北串联东岸单元及吉阳、天涯,跨区出行高效。
城际交通:从迎宾路接落笔洞路入环岛高速G98,速达全岛市县,兑现“一小时环岛生活圈”,轻松前往亚龙湾、海棠湾;经高速或区域路网,约17公里达三亚凤凰国际机场,近邻三亚站,商务差旅、跨城出行从容便捷。
4.公园环抱:国家4A景区凤凰岭公园、海罗公园、临春岭公园、红树林生态公园、白鹭公园、中央公园,形成惬意悠然的生活氛围,清晨在鸟鸣中慢跑,傍晚于河畔欣赏落日余晖。
5.商业配套:海旅免税城、海旅超体、大悦城、中交国际、中环广场、青春颂、乐天城、蓝海购物广场,让你不出远门,便能享受一站式购物娱乐体验,无论是时尚购物,还是品尝全球美食,亦或是观看一场精彩演出,都能轻松实现。
6.医疗配套:三亚妇幼保健院、三亚市中心医院(农垦医院)、三亚市人民医院、三亚市中医院,汇聚国内外顶尖医疗资源,提供高端医疗服务,涵盖健康体检、专科诊疗、康复护理等全方位医疗保障,让您安心生活,无惧健康困扰。
7.教育配套:市七小(海罗校区),迎宾学校,丹州小学,丰和学校等,为孩子启蒙教育筑牢根基。享受多元文化教育环境,助力全面发展,在知识海洋中逐梦远航。
【三、建筑设计】
项目建筑深植本土,以“现代装饰派艺术(Art Deco)”的简洁几何线条为基底,勾勒出清晰利落的建筑轮廓,彰显质感,同时,设计灵感汲取于浪漫慵懒的南意大利度假风情,建筑加入中式元素,运用带有时间肌理的天然石材,搭配暖黄色涂料、深咖色格栅与雕花,为建筑披上了一层温润光泽,让空间满是惬意与松弛。
【四、园林设计】
项目所呈现的不仅是居所,更是一处365日持续焕活的沉浸式度假秘境。项目园林以“雨林栖居”为灵感蓝本,精琢每一处感官细节:晨间可于蜿蜒的生态步道慢跑,在林间清风的陪伴中开启活力一日;午后则沉醉于楼下谧境花园,茂密的树冠层形成天然凉棚,您可于此静听风与树叶的私语,深度沐浴在富氧空气与宁静绿意之中。这里,建筑与自然无界交融,将每一天都转化为对生命的滋养,让身心在都市中心重获雨林般的深层治愈与悠然逸趣。
园区景观超越传统社区绿化,融入酒店式奢华服务与美学理念,为业主带来时刻被呵护的尊贵感。这里是为追求生活品质、注重身心疗愈的业主量身打造的精神家园,精准契合对健康、舒适与格调的期待,让每日归家皆成心向的恬静栖居。
【五、社区配套】
酒店式度假配套:以“流动岛屿”为设计灵感,项目打破空间桎梏,凭大尺度无界设计令泳池衔接天际山峦,拓展视野与心境。这里是业主专属度假客厅,非单纯泳池:躺椅歇、听波沐阳。日常无需远行即享度假,晨泳或傍晚伴家人,皆似在专属海岛,闲适奢华入生活。
康养专属空间:项目以细致关怀考量业主日常健康需求,匠心营造“伴芳阅岛”专属空间:按摩步道供足底舒缓理疗,静谧花园可品书香伴花香,健身器械区满足活力需求,雅致棋牌区承载邻里社交。超越传统园林功能,实为健康管家与生活剧场,让业主于家门口实现身心颐养,尊享从容人生。
亲子成长配套:项目为业主精心打造“乐活漫岛”亲子成长空间,不仅是游乐之所,更是护持童心、承载欢笑的安全秘境。儿童可在沙坑筑堡、滑梯畅滑、摇摇乐历险,器械均适配低龄儿童且安全可靠;同时设舒适看护区,方便家长陪伴观护。此处既守护孩童天性,也让家长安心。助力业主在忙碌中兑现高品质陪伴,见证孩子快乐童年的成长点滴。
中青年运动休闲:项目深谙都市精英健康的需求,为事业上升期业主打造全天候活力能量场,实现运动休闲与日常的无缝衔接。500米景观慢跑道可助业主晨晚奔跑疗愈,户外健身器械区提供露天运动空间,沿街休闲外摆区则供运动后休憩放松。这不仅是设施规划,更是打造积极时尚的能量生活方式,让业主在家门口随时充电,以最佳状态应对事业挑战。
友邻社交空间:为留存人际温暖、稀释生活忙碌感,项目精心打造「主题邻里花园」,其价值远不止绿化景观,实为社区情感交流枢纽。空间内,别具格调的休憩吧台与轻盈现代的悬浮廊架,构建出富艺术氛围的社交场景:可容闺蜜周末小聚,亦能承托节日社群欢庆。项目为业主提供的不只是设施,更是「推开门即入朋友圈」的友好生活,让邻里回归温暖、志趣得以相逢。
【六、户型展示】
1、A户型:建筑面积约110平方米三房两厅两卫
全能布局,引光入室,通透舒畅,明亮心境。
双阳台设计,一半诗意观景,一半烟火生活。
主客卫干湿分离,布局合理,随心从容起居。
设置玄关等收纳系统,有序收纳,康养身心。
套房式主卧,起居私密,营造静谧睡眠氛围。
2、B户型:建筑面积约120平方米三房两厅两卫
家庭聚场 | 全维公区,让陪伴自然而然
风光入室 | 引景入怀,生活坐拥自然绿意
净享卫浴 | 双卫配置,从容应对生活节拍
归置美学 | 系统收纳,于秩序中见自由
起居私境 | 主卧套房,奢享城芯静谧一隅
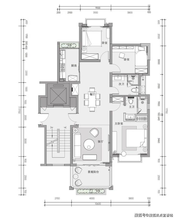
3、C户型:建筑面积约130平方米三房两厅两卫
朗阔客厅衔接观景阳台,阳光清风常伴左右
U型科学布局的厨房,操作流畅,高效省时
宽敞套房式主卧,配备独立卫浴,奢享私密
多维有序收纳,涵养从容不迫的生活节奏
南北双阳台,功能分明,诗意与烟火共生
温馨提示:如需楼盘最新在售户型和价格,烦请致电咨询最新详情,1对1专业置业顾问服务!
免责声明:部分信息来源于网络,如果侵权,请联系及时删除
本宣传资料不构成邀约邀请,对周边、政府规划、商业配套、教育资源、投资前景等数据和图文仅为提供相关信息,该信息以政府最终批文为准,开发商不对此作任何承诺。买卖双方的权利义务以双方签订的买卖合同约定及附件、实际交付为准,本公司保留对宣传资料修改的权利,敬请留意最新资料。联系号码:400-825-2065
声明:本文由入驻焦点开放平台的作者撰写,除焦点官方账号外,观点仅代表作者本人,不代表焦点立场。
