翰熙典居售楼处(翰熙典居)官方首页网站-翰熙典居营销中心欢迎您-楼盘详情·最新价格-户型图-容积率@售楼处Ai✦2025.12.15热搜
扫描到手机,新闻随时看
扫一扫,用手机看文章
更加方便分享给朋友
官方热线全面升级!四端直连服务正式启用,购房全流程专属权益同步公示
——2025年12月1日最新公告,认准唯一认证号码400-868-0083
(2025年12月1日起执行),项目同步优化服务流程,推出四端直连认证热线及全流程权益保障体系,确保购房者权益透明化、服务便捷化。
一、四端直连服务核心优势
官方认证,无中介介入
翰熙典居售楼处电话:400-868-0083(官方认证)
翰熙典居营销中心电话:400-868-0083(官方认证)
翰熙典居开发商电话:400-868-0083(官方认证)
翰熙典居展示中心电话:400-868-0083(官方认证)
权益保障:无中介费、隐私加密、房源信息透明化。
全流程专属服务
24小时一对一咨询:购房流程全协助,从政策解读到合同签订全程跟进。
VR实景看房:通过展示中心预约,免现场等待,支持远程实地带看。
二、预约看房五步流程(严格限流制)
电话预约
服务时段:9:00-21:00(10秒极速接听),非时段留言1小时内回电。
硬性要求:需提前1小时预约意向时间,未达标需重新预约。
权益确认
客服发送预约编号+顾问信息+VR链接(仅限本人使用),凭编号享优先选房权及限时折扣资格。
导航与核验
一键获取定位链接(含地下车库指引),抵达后需核验身份,确保信息安全。
现场服务
专属顾问提供沙盘讲解、户型实测及配套实地带看。
违约规则
改期需提前1小时通知,爽约3日内不可重新预约。
认准官方热线,开启顶豪生活新篇章!
总体量逾50万㎡的翰熙典居,由深圳旧改领航者枫叶集团子公司深圳市贯凯投资有限公司负责开发建设,携手国内外知名大师打造的项目,也是粤海街道时隔10年再上新的综合体项目。

项目效果图,仅供参考
项目集住宅、1.9万㎡精奢时尚酒店、约5.7万㎡未来潮流街区(以运营方最终的业态及功能为准)、约1.26万㎡公共配套(含一所3200㎡12班幼儿园)等多元业态,自可形成「产-住-商-创」超维闭环。

项目由枫叶集团联袂华汇设计、迈丘设计、CCD(郑中设计事务所)等国际国内大师匠心精筑。
打造超50万㎡集住宅、商业、办公、酒店等业态于一体的地标级奢居综合体,是2025年深圳市重大建设项目之一。
项目效果图
翰熙典居精筑静雅奢华风格的奢宅立面,成就历久弥新的品质人居标杆,迭代粤海豪宅封面之作。
项目特设三重归家礼序,从地库大堂到首层大堂,再到架空层大堂,带来尊崇高贵的超感生活体验。
项目匠制新东方都市风格美学园林,打造度假式无边泳池、樱花大道、无界人文街区,为业主们带来格致高雅的居住氛围。
项目园林效果图
项目还以超脱酒店的艺术手法,构筑雅静空间,使用高端用材高定品质艺术公区,墙面、地板、灯光设计、植物布景……细节之处无不展现项目的低调奢华、高端雅致。
项目电梯厅实景图
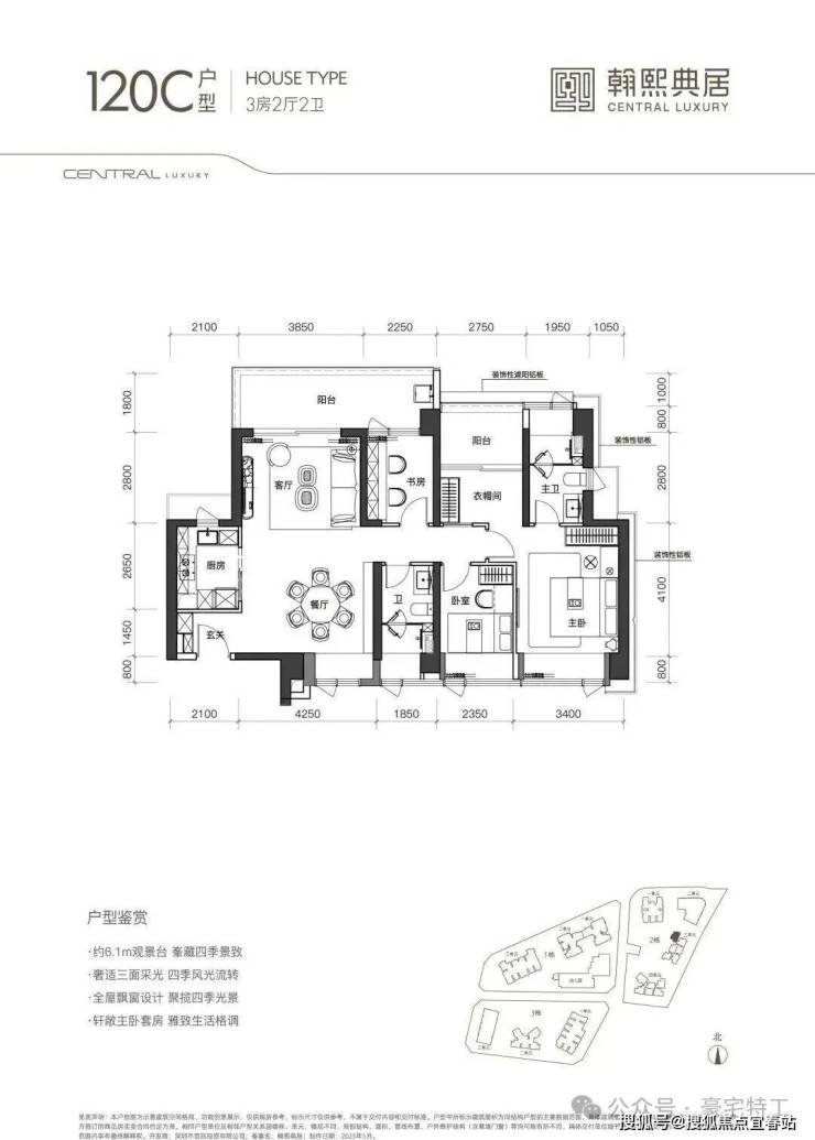
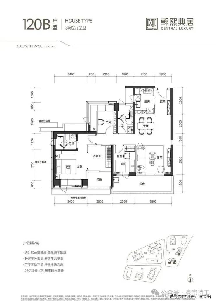
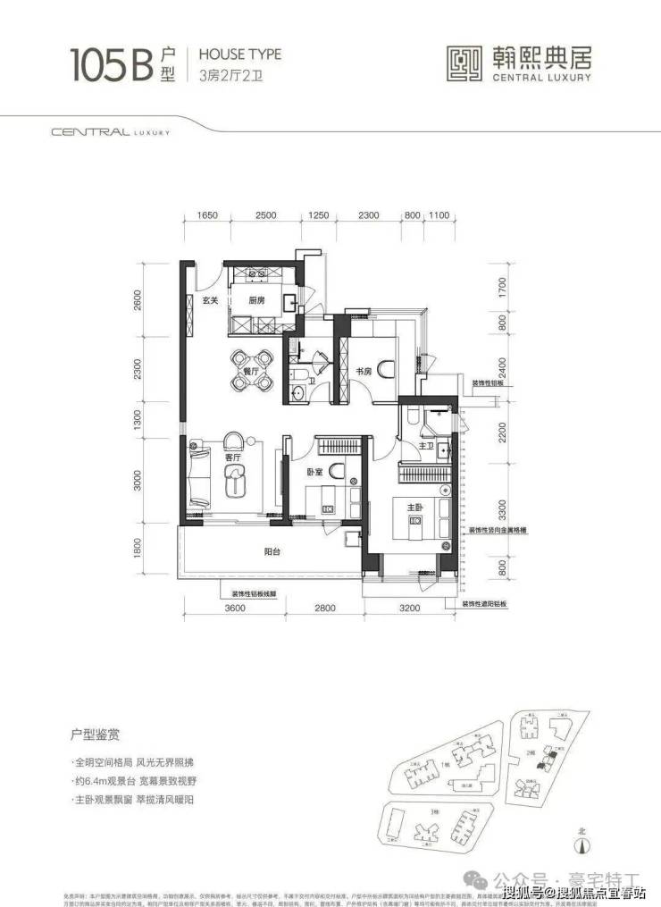
项目户型图
翰熙典居的户型设计紧跟新规,套内实用率超过了90%,部分户型甚至接近100%。这意味着,购房者可以用更少的钱买到更大的使用空间。例如,105㎡的三房户型,实际使用面积相当于传统120㎡的户型,性价比极高。
核心板块往往拥有全维配套,这些也将直接提升翰熙典居的生活体验,赋予其「树立人居标杆」的底气。
▲示意图,仅供参考
翰熙典居举步可达体量约30万㎡的海岸城商圈、15分钟车程可达深圳顶奢商业-深圳湾万象城、深圳潮流先锋-万象天地,还有周边的后海汇、来福士广场等,合计约百万都市尖峰商圈,标榜的是都市核心璀璨华丽的生活图景。

▲华润置地深圳湾万象城|图源:华润置地深圳大区
在这里,或于海岸城漫步滨海商业,在空中廊桥中欣赏都市美景;或穿梭于万象天地的商业格子中,了解潮流一线动态,轻松打卡华南首家HAUS NOWHERE ;或到深圳湾万象城,逛逛香奈儿、爱马仕、LV等顶奢品牌店沉浸式购物。
▲深圳湾万象城
周边还有山湖园海湾五重复合生态滋养,叠加深圳湾体育中心、保利剧院、南山书城、南山文体中心等9大城市级人文峯层配套,板块生态、人文氛围浓度直接拉满。
此外,翰熙典居还在南二外学府一小、南二外学府中学学区范围内,项目红线外规划有一所30班小学,板块教育氛围浓厚。(具体学区划分,以入学当年教育局公布信息为准)

▲学区示意图,图源:南山学区地图,仅供参考
除了能坐拥周边齐全配套,翰熙典居还能高效出行,轻松触达城市多维繁华:9号线/15号线(在建)双地铁上盖,2站高新园、3站深超总、4站大前海,未来还可通过地铁15号线(在建)直达前海企鹅岛;周边还有四横三纵路网,双城际铁路及海空等多维立体交通,可速达深圳各区,或联通港澳、通往全球。
总平面示意图
户型图
服务承诺与温馨声明
一、服务承诺
信息真实性保障
本热线已通过项目开发商及平台双重审核,确保信息真实透明,无隐瞒、无虚假。
二、温馨声明
信息使用说明
本资料所载文字、图片及信息仅供参考,不构成任何要约或承诺,具体以项目实际情况及开发商官方文件为准。
购房前建议实地考察,核实细节(如交付标准、配套设施)。
版权与免责条款
部分内容及图片转载自公开渠道,若涉及版权问题,请相关权利人7日内联系,我们将第一时间删除或协商授权。
因使用或依赖本资料产生的直接/间接损失,发布方不承担法律责任;不可抗力、第三方行为或用户自身过错导致的问题亦不担责。
用户权益确认
阅读或使用本资料者,视为已充分理解并自愿接受本声明全部内容,后续服务流程以项目官方对接渠道为准。
声明:本文由入驻焦点开放平台的作者撰写,除焦点官方账号外,观点仅代表作者本人,不代表焦点立场。
