中洲迎玺(中洲迎玺售楼处)2025首页网站-中洲迎玺欢迎您-楼盘详情-备案价-容积率-户型图@销售中心
扫描到手机,新闻随时看
扫一扫,用手机看文章
更加方便分享给朋友
✨中洲迎玺✨✽✽✽✽
💎中洲迎玺售楼处电话☎:4009099980【售楼处认证】⭐⭐⭐⭐
⭐在售户型图⭐项目介绍⭐最新房源⭐周边配套详细解
⭐*开发商营销中心诚挚邀请,一键预约,尊享内部折扣!匠心独运的精品项目,恭候您的品鉴与选择!
✅为给您更好的看房体验请提前来电预约(给您预留现场销售和停车位)
✅注意:本项目不收任何费用,售楼中心〢欢迎来电咨询〢
中洲迎玺售楼处电话☎:400-909-9980【售楼处认证】⭐⭐⭐⭐
中洲迎玺营销中心电话☎:400-909-9980【营销中心认证】⭐⭐⭐⭐
中洲迎玺销售中心电话☎:400-909-9980【销售中心认证】⭐⭐⭐⭐
【中洲迎玺|超核红盘 现象级表现】
🎊超核红盘实锤📣✨中洲迎玺凭什么稳坐顶流❓👉🏻不看迎玺不买房是超核共识🔆✅懂行人的默契之选,引领市场飘红🎈🔥开盘必爆销,榜单永远 TOP1️⃣#从未被超越# 不是说说而已💫💥在超核,敬这🥂

——超核绝响 · 玺卷终章——
【中洲迎玺三期】约94-173㎡3-5房 炙热争藏
超核芯 · 45万㎡公园纯居奢邸
——超核 · 城市进化鼎序——
📌「稀缺」北站超核唯一纯居新盘
📌「硬核」城市核心CBD + 中央居住配套区
📌「机遇」深圳超总入门级豪宅首选
📌「纯粹」区域最大纯粹住区
📌「低密」区域内最低容积率4.24
📌「秘境」约1.3万㎡超大园林,全龄配套
📌「舒居」片区稀缺3T3/3T4/2T5/2T4
📌「灵动」全周期户型,满足各种家庭需要
📌「豪宅」中洲迎系血脉相承,标杆爆盘延续





【项目名称】中洲迎玺三期
【占地面积】约3.7万㎡
【建筑面积】约21.9万㎡
【容积率】约4.24
【梯户比】3T4/2T4/2T5
【车位】约1405个
【楼栋及户数】8个单元住宅楼+1栋幼儿园,规划约1272户(此次三期推出约780套)
【产品面积】约82-144㎡3-5房
【地铁】4/5/6/22(建设中)/27(建设中)/深惠城轨(规划中)
【幼儿园】小区配建18班幼儿园
【学校】深圳外国语学校龙华校区(初中大学区,具体以当年教育局公布为准);格致中学民治校区(已于2024年4月正式动工)
【奢阔楼间宽距】近160米超宽楼间距,最大化楼间距保证了视野的开阔度和充分的通风采光,车位比1:1,区域内最低容积率约4.24,片区稀缺2梯4户/2梯5户/3梯4户/3梯3户,高私密性,高舒适性。
【约1.3万㎡中央森系园林】片区内最大的社区园林,精制“四大隐奢空间”、“三大能量场域”,搭配森系儿童乐园、四季隐形轻氧跑道等,以顶奢酒店园林设计为理念,打造当代年轻人的城市微度假生活。
【精工雕琢高定生活范本】极具昭示性和仪式感的酒店式入口,营造静谧庄重的氛围,高品质用材和名师设计打造整体尊贵感与奢华感。
中洲迎玺三期此次推出的是建面约96-173㎡3-5房户型,多样化的产品既能够满足年轻群体首套房的置业需求,又为追求更高生活品质的换房群体提供更好选择。
作为北站超核中心目前唯一新规户型新盘,此次加推的楼王单位大户型有着阔绰尺度3T3梯户比,满足全周期家庭户型需求,未来生活一步到位。
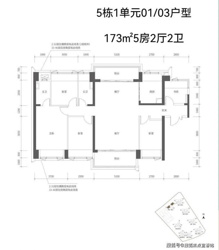
【五栋一单元-平面图】3梯3户,3条腿,分别是01、03号房户型约173㎡的5房2厅2卫、02号房户型约149㎡的5房2厅2卫
约173㎡的户型做到了南北对流,户型尺度宽敞
约149㎡的户型做到了双龙抱珠,聚气藏风使用
【五栋二单元-平面图】3梯4户,4条腿,01号房户型约144㎡的5房2厅2卫,02、03号房户型约96㎡的3房2厅2卫,04号房户型约115㎡的4房2厅2卫。
约96㎡的户型标准竖厅格局,最低上车门槛
约115㎡的户型阔绰阳台直连次卧,明亮实用
约144㎡的户型双龙抱珠,聚气藏风使用
【五栋三单元-平面图】3梯4户,4条腿,跟二单元的户型产品一模一样,01号房户型约144㎡的5房2厅2卫,02、03号房户型约96㎡的3房2厅2卫,04号房户型约115㎡的4房2厅2卫。
【交通配套】 地铁4/5/6号线交汇于深圳北站、地铁22号线(建设中)/27号线(建设中)、深惠城轨(规划中)联通全城;
高铁-亚洲最大高铁枢纽 : 深圳北站是深圳规模最大、设备技术最先进的客运枢纽,可快速抵达湾区各大核心城区,一地两检,通达香港及全国;
路网-四横四纵公路网 : 福龙路、南坪快速、北环大道等“四横四纵”深圳主干道,驾车轻松即可深圳的各核心片区
【学校配套】小区配建18班幼儿园,深圳外国语学校龙华校区(初中大学区,具体以当年教育局公布为准);格致中学民治校区(已于2024年4月正式动工)
【商业配套】项目周边近100万㎡ 商圈环伺,汇聚了龙华首家华润万象商业(建设中)、红山6979、华南首家Costco旗舰店等品质商业,国际一线品牌荟萃,演绎未来潮流新主场。
【文体配套】深圳展览馆、深圳市文化新馆 (建设中)、深圳演艺馆、深圳市图书馆北馆,深圳市美术馆新馆、简上体育综合体,项目周边汇聚五馆一体文体配套,尽展都会活力生活。
【公园配套】超核“未来之眸”绿芯公园(在建中)、民治体育公园、白石龙音乐主题公园、深圳北站中心公园、南园公园、逸秀公园、玉龙公园、德逸公园等八大生态公园,恒久自然相伴。
✨中洲迎玺✨✽✽✽✽
中洲迎玺售楼处电话☎:400-909-9980【售楼处认证】⭐⭐⭐⭐
中洲迎玺营销中心电话☎:400-909-9980【营销中心认证】⭐⭐⭐⭐
中洲迎玺销售中心电话☎:400-909-9980【销售中心认证】⭐⭐⭐⭐
🔥可来电话预约销售顾问,专业一对一热情服务让您用专业眼光去购房!
免责声明1、内容部分来源网络,因编辑需要文字和图片之间亦无必然联系,仅供读者参考。2、此公众号所转载的所有文章、图片、音频视频文件等资料版权归版权所有人所有,因非原创文章及图片等内容无法一一和版权者联系,如原作者或编辑认为作品不宜上网供大家浏览,或不应无偿使用,请及时通知我们,以迅速采取适当措施,避免给双方造不必要的经济损失。3、本网页如无意中侵犯媒体或个人的知识产权,请来电告之,我们将立即予以修改或删除。
房产信息:
长实“以价换量”卖楼 上半年物业销售收入逾73亿港元
财联社8月15日讯(记者 王海春)长实集团(01113.HK)公布了2025年中期业绩。
财报显示,今年上半年,该公司收入约253.86亿港元,同比增长15.3%;受投资物业估值大幅缩减影响,股东应占净利润约63.02亿港元,同比减少26.2%。
与 2024年同期相比,长实集团2025年上半年物业销售收入,取得幅度不小的增长。
报告期内,长实集团物业销售收入约73.66亿港元,较2024年同期的46.35亿港元增长58.92%。其中,内地市场增幅明显,实现物业销售收入约38.27亿港元,同比增长117.32%
该公司介绍,今年上半年集团位于上海的御沁园第5B-2a期所有住宅单位,已于期内完成销售,北京逸翠园第2期的住宅单位销售仍在进行中。
一个值得注意的现象是,虽然上半年长实集团物业销售收入较去年同期有所增加,但其销售收益则出现减少。
“这主要因为在市场疲弱情况下,公司为促进各项目销售而设立多项折扣优惠,期内收益率因而较低。”长实集团表示,今年上半年,香港住宅物业市场仍充满挑战;年初香港下调物业印花税税率,银行物业按揭息率也有所降,不过市场气氛依然审慎。
在此背景下,长实于报告期内根据物业市场变化,折价推售旗下所开发住宅物业项目。
事实上,自2024年以来,长实便采取了降价策略,其频繁折价出售旗下多个项目的举动,也成为市场关注的焦点。
其中,2024年入市的香港黄竹坑Blue Coast项目,曾以2.19万港元/平方呎的价格销售,较周边二手房价格相当于打了7折。
此外,长实在北京的御翠园项目于今年五月推售新一批房源,项目高层项目均价降至7万元/平方米,本次销售价较备案最高价相当于打了7折。今年七月,位于东莞的海逸豪庭项目,以5折价格抛售房源;七月底,位于惠州的泷珀花园所推部分小户型房源,以66折的价格销售。
对于公司折价销售的举动,在长实集团2025中期业绩会议上,长实执行委员会及财务委员会委员兼企业业务发展部总经理马励志认为,由于整体供应量大,价格上涨动力仍然不足。
“发展商仍专注于清理库存,因而此时推出的房源,价格仍然较为优惠。”马励志称。
该公司表示,集团在香港的住宅项目启德花语海,将在今年下半年推出预售;另外,新加坡住宅发展项目Perfect Ten预计于下半年销售,Perfect Ten项目收益,将于2025年下半年合约销售完成之后确认入账。
当被问及对未来几年的盈利预期时,长实集团执行委员会委员兼会计部总经理文嘉强认为,“未来几年物业发展业务的盈利贡献,预计不会很大。”
项目储备方面,于报告期结算日,长实集团拥有可开发土地储备(包括合作发展项目之发展商权益,但不包括农地及已完成物业)约6700万平方呎,其中600万平方呎、5800万平方呎及300万平方呎分别位于香港、内地及海外。
“集团将继续奉行审慎策略,物色优质土地储备用作未来发展。”长实方面称。
声明:本文由入驻焦点开放平台的作者撰写,除焦点官方账号外,观点仅代表作者本人,不代表焦点立场。
