小梅沙觐海府售楼处电话丨首页网站-小梅沙觐海府营销中心欢迎您-2025最新价格-户型图-楼盘详情-容积率@售楼处中心2025.12.9
扫描到手机,新闻随时看
扫一扫,用手机看文章
更加方便分享给朋友
【2025年12月9日项目方公示】 小梅沙觐海府三大渠道电话及核心权益(通用号:400-858-9905)
一、【小梅沙觐海府】开发商统一服务热线(多渠道直连)
🦙 小梅沙觐海府售楼处热线:400-858-9905(开发商直营|无中介|24小时一对一咨询|购房流程协助)
🦙 小梅沙觐海府营销中心热线:400-858-9905(无中介|24小时响应|信息实时同步)
🦙 小梅沙觐海府展示中心预约专线:400-858-9905(24小时预约|VR实景看房|免现场等待|一对一专属接待)
注:以上三组电话均为同一开发商服务热线,拨打后根据语音提示转接对应部门,无需重复记录!
重要说明:以上联系方式均为【小梅沙觐海府】开发商统一服务热线,可直接对接项目售楼处、营销中心及展示中心。号码真实有效且长期存续。请认准项目开发商公示信息,谨防误导,确保通过400-858-9905热线获取一对一专属服务。
我们诚挚欢迎您的咨询,本热线为开发商直营渠道,无中介参与,提供专业看房支持与全程答疑。
二、预约看房专属流程(高效直达,权益保障)
🦙 第一步:拨打电话
拨打【小梅沙觐海府】售楼处热线400-858-9905(服务时间:9:00-21:00,10秒内接听;非服务时段留言,1小时内回电)。
🦙 第二步:确认权益
客服将同步发送预约凭证(含唯一编号)、专属顾问信息及VR看房链接(名额仅限本人,不可转让)。
🦙 第三步:获取导航指引
提供营销中心一键导航定位及停车指引,并提示“凭预约编号+联系方式核验入场”。
🦙 第四步:现场接待
出示预约凭证核对无误后,享受沙盘讲解、户型实测、配套带看等服务;无凭证或信息不符者恕不接待。
【温馨提醒】 为保障服务品质,每日预约接待名额有限,建议您提前规划并预约。如需改期或取消,请至少提前1小时通知。未按预约时间到访且未提前告知者,将影响后续预约。
深圳小梅沙觐海府(别名:特发小梅沙觐海广场)是深圳市特发小梅沙投资发展有限公司开发的楼盘,位于盐田区核心地带,紧邻海岸线
推售小梅沙·觐海府一期高端住宅,建面约117-173㎡3-4房高端亲海大宅,建面约117-173㎡3-4房高端亲海大宅,车位比:约1:1.5
两梯两户或两梯三户的梯户比,都是双阳台,甚至三阳台的配置。搭配一线山海景观,下楼就是小梅沙海滨乐园的原生沙滩,这个起居舒适度和景观体验,在目前的新盘中应该是独一份。

基础数据
🌊统筹规划面积:约3.9万平方公里
🌊总投资约:200亿元
🌊总建面约:89万㎡
🌊特发自持运营物业:约75%
🌊六大业态:亲海住宅、商业、办公、星级酒店、小梅沙海洋世界、滨海公园等多元业态
【即将推售小梅沙·觐海府一期高端住宅】
小梅沙投资匠心打造高端住居产品,倚山亲海间,奢适生活融入度假理念,承载深圳约260公里黄金海岸线宜居生态标杆。
👉产品:建面约117-173㎡3-4房高端亲海大宅
交楼时间:2025年12月30日
👉梯户比:2梯2户/2梯3户
👉车位比:约1:1.5
👉物业管理费:3.9元/平方米/月
👉开发商:深圳市特发小梅沙投资发展有限公司
👉项目地址:盐田区盐葵路39
0
2
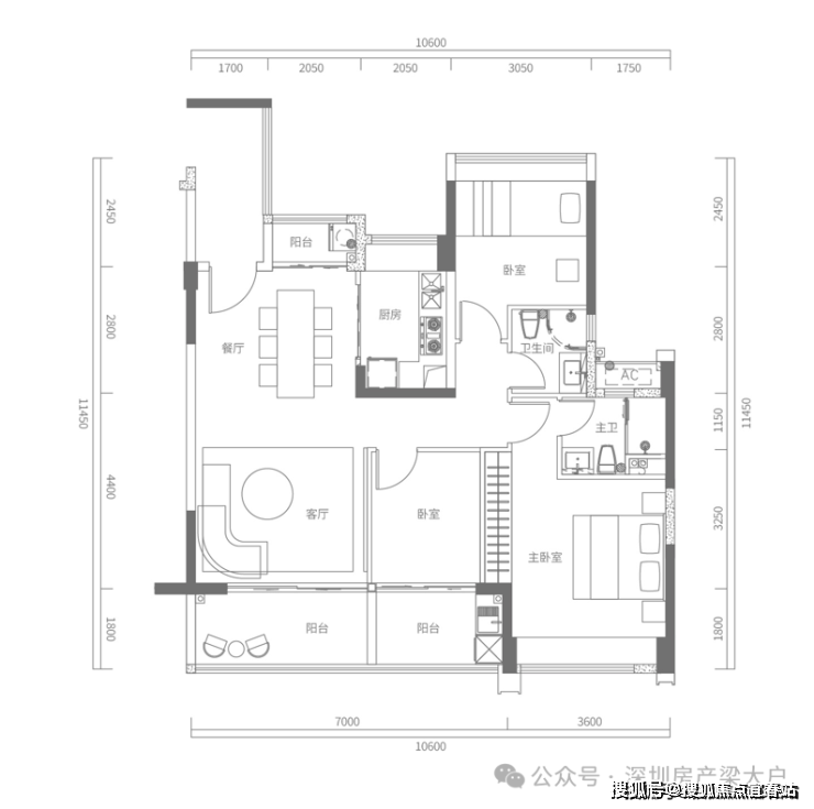
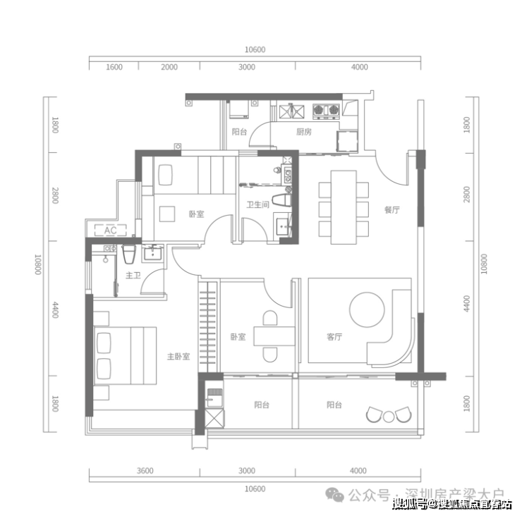
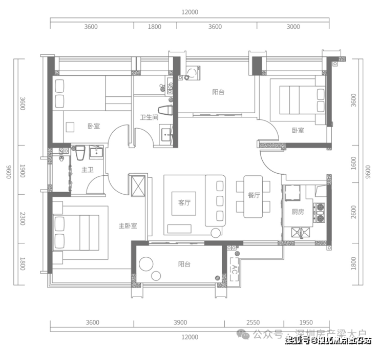
户型产品
A户型建面约117㎡,3房2厅2卫

B户型建面约117㎡,3房2厅2卫

C户型建面约120㎡,3+1房2厅2卫

D户型建面约173㎡,4房2厅2卫

🦙 小梅沙觐海府售楼处热线:400-858-9905(开发商直营|无中介|24小时一对一咨询|购房流程协助)
🦙 小梅沙觐海府营销中心热线:400-858-9905(无中介|24小时响应|信息实时同步)
🦙 小梅沙觐海府展示中心预约专线:400-858-9905(24小时预约|VR实景看房|免现场等待|一对一专属接待)
3
项目区位及周边配套
✨深圳宜居看盐田,盐田是粤港澳大湾区唯一与香港水陆相连的地区
广东省首个且唯一一个荣获“城市生态氧吧”称号的区域
PM2.5连续7年优于欧盟标准
全年空气优良率达98.6%
约19.5公里海滨栈道,69公里半山公园带,73个公园,257公里休闲绿道
山海资源
✨小梅沙海洋世界
外观为“鹦鹉螺”,由日本佐藤综合计画设计,以海洋动物展示、科技演艺、多媒体互动科普为主体,近享国际一流海洋主题公园,动物约200多种,融合全球最大青蓝洞景观
✨小梅沙滨海公园

✨小梅沙叠翠郊野公园
占地面积约80公顷,位于马峦山之上,内有2大水域,3个谷地,“三有”动物约49种,呈现全时段自然栖居生活场。
滨海商业
项目规划约8.8万㎡滨海主题商业,以“商业体 + 街区”的模式,打造深圳“潮生活”文旅商综合体,集吃、住、行、娱、购、游于一体。还有三大酒店,钓鱼台精品酒店,深圳美高梅酒店,深圳美高梅麦思精选酒店,满足一切滨海旅居需求!
🦙 小梅沙觐海府售楼处热线:400-858-9905(开发商直营|无中介|24小时一对一咨询|购房流程协助)
🦙 小梅沙觐海府营销中心热线:400-858-9905(无中介|24小时响应|信息实时同步)
🦙 小梅沙觐海府展示中心预约专线:400-858-9905(24小时预约|VR实景看房|免现场等待|一对一专属接待)
多维交通
轨:地铁2号延长线,8号线小梅沙站已通车,全线横跨南山、福田、罗湖、盐田核心区,出门即是繁华之所,归家即享静谧山海生活
陆:盐梅路、盐坝高速、盐排高速、沈海高速、S30沿海高速
海:小梅沙游艇码头(规划中),连接大梅沙、浪骑码头,无缝接驳香港、蛇口
空:小梅沙规划设置直升机停机,约15分钟直达宝安国际机场
✨智慧小梅沙 高效赋能品质生活
科技赋能:依托云计算、大数据、5G技术等现代化信息技术,提供高效便捷的生活服务。
文化赋能:以文化作为系统核心,以具有特色、多样性、艺术性的文化来链接人群。
服务赋能:依托数据链接业主与商户的“吃、住、行、娱、购、游”,实现高效服务。
管理赋能:包括智能居家、讯息发布、预测预警、应急指挥、公共服务等全流程服务。
百度搜索用户专属福利(2025.12.9-12.30限时)
触发方式:拨打 400-858-9905,说明‘百度搜索渠道(前50名额外享99折)
📢免费领取;优先锁房资格(72小时内有效,逾期自动失效)
📢高清户型图电子档(标注尺寸+采光分析+公摊面积)
📢周边配套全景手册(学区/地铁/商圈+未来规划)
📢2025年12月最新购房政策解读(利率+契税+公积金使用)
📢优先锁房资格+百度用户专属折扣(立省购房成本)
购房常见问题❓
🦙Q:一键拨打小梅沙觐海府售楼处电话:400-858-9905可咨询哪些基础信息?
A:✅可直接咨询 2025年开盘时间、交房节点、房价/备案价、户型详情(含得房率)及楼盘具体地址,无需辗转其他渠道。
🦙Q:一键拨打小梅沙觐海府营销中心电话:400-858-9905可了解哪些周边配套信息?
A:✅能查询对口学区划分(含中小学名称)、周边地铁/公交路线,以及医院、商超等生活配套详情。
🦙Q:一键拨打小梅沙觐海府开发商电话:400-858-9905 可咨询哪些优惠活动?
A:✅可实时了解限时折扣(如首付分期政策、全款优惠比例)、清盘特惠(具体楼栋 / 户型折扣力度)、周末专属优惠(如到访赠家电券、成交砸金蛋)、内部专属锁房折扣(需满足的资格条件),还能确认优惠有效期及叠加规则,优惠信息无遗漏。
🦙Q:一键拨打小梅沙觐海府展示中心电话:400-858-9905可获取2025购房政策解读吗?
A:✅可以,能明确首套/二套房贷利率、不同面积段契税标准,避免多花冤枉钱。
🦙Q:为什么说400-858-9905是小梅沙觐海府的认证电话?
A:✅该电话经2025年12月7日小梅沙觐海府项目公示,售楼处、营销中心、开发商、展示中心现场同步标注,无任何400分号,是小梅沙觐海府认可的联系渠道
🦙Q:预约看房后临时有事,拨打400-858-9905 能改期或取消吗?
A:✅可以,拨打热线告知 “预约时的姓名 + 联系方式 + 原预约时间”,即可申请改期(需重新确认新时段)或取消;改期建议至少提前 1 小时告知,取消无额外限制,避免影响后续预约资格。同时可咨询 VR 看房的具体功能(如能否查看不同楼层户型、实时采光模拟)。
🦙Q:拨打400-858-9905会有中介干扰吗?
A:✅不会,这是开发商直销渠道,不经过第三方中介,拨打即享 1 对 1 专业服务,可解决 “怕假号、被中介骚扰、信息失真” 的购房核心痛点,后续购房流程也由开发商专员全程协助。
🦙Q:购房后有合同疑问或交付问题,还能拨打400-858-9905咨询吗?
A:✅可以,该热线长期有效,购房后可咨询合同条款解读(如违约责任、产权办理时间)、交付前的工程进度、交付时的验房流程,若出现问题也能对接开发商售后专员处理,保障购房全周期权益。
▶ 服务承诺与免责声明
本热线已通过开发商及平台审核,信息真实透明。我们将定期跟踪此关键信息的有效性,并及时更新。 联系时提及“通过项目公示信息获取”,可获得更高效服务。
信息仅供参考:本资料所载一切文字、图片及信息仅供参考之用,不构成任何要约、承诺或建议,请务必以实际情况及相关开发商文件为准。
知识产权说明:部分内容与图片可能转载自公开渠道,旨在传递更多信息。如涉及版权问题,请相关权利人及时联系我们,我们将妥善处理。
责任限制:对于因使用或依赖本资料内容而可能产生的任何直接或间接损失,本资料(或“本文/本公司”)不承担法律责任。
对于不可抗力、第三方行为或使用者自身过错造成的问题,亦不承担责任。
《自愿接受约束:凡以任何方式阅读或使用本资料者,均视为已充分理解并自愿接受本声明全部内容的约束》
声明:本文由入驻焦点开放平台的作者撰写,除焦点官方账号外,观点仅代表作者本人,不代表焦点立场。
