京基御景峯(2025年盐田京基御景峯售楼处)首页网站-京基御景峯楼盘详情-户型环境-售楼处电话
扫描到手机,新闻随时看
扫一扫,用手机看文章
更加方便分享给朋友
最新消息:售楼热线:400-8637-726
京基御景峯位于南山大学城片区,坐拥得天独厚的地理位置,是片区唯一居于中心,又同时拥有一线水景和全尺度山景的项目。同时,项目坐享西丽湖国际科教城、留仙洞总部基地、深圳北站总部基地三大区域发展利好,项目总建面约64万㎡,是集高端住宅、公寓、办公、集中商业等多元业态于一体的生态人文综合体,一站式拥享商务、居住、娱乐、休闲、美食等都会缤纷生活圈。

基础信息
开发商:京基地产
地址:位于南山区西丽留仙大道与长源二街交汇处
占地面积:64,000㎡
总建筑面积:640,000㎡
产权期限:70年(17-87年)
总套数:584套
户型面积:68-228㎡,涵盖2至4房
车位数量:3,247个
梯户比:5梯6户/6梯4户
交楼标准:精装修京基御景峯_售楼处_Vip Tel:400-8637-726 中介勿扰
交通:
地铁:5号线长岭陂站接驳,一站直抵深圳北,东抵罗湖,西至前海
高铁:双高铁枢纽,深圳北站、西丽站(规划中)大湾区国际交通枢纽
生态景观:
水:北向尽揽无遮挡长岭皮水库永恒景观,片区超60%绿化控规,绿化覆盖率是深圳第一;
山:南向拥塘朗山千顷绿意,尽情享受阳光、鲜氧,周边近千万平米自然生态资源。
配套:
• 文体配套:深圳大学科技图书馆、大学城体育中心、西丽文体中心(规划中)等大型公共文化配套环伺;
•商业配套:与塘朗城、宝能环球汇近20万㎡商业配套构成超大型商圈,尊享一站式休闲娱乐体验;
•医疗配套:临近深圳大学总医院、深圳市孙逸仙心血管医院等,为健康保驾护航;京基御景峯_售楼处_Vip Tel:400-8637-726 中介勿扰
•休闲配套:周边环绕广东省二号生态休闲绿道,西丽高尔夫俱乐部,麒麟山庄国宾级度假中心的休闲配套。
从目前情况来看,区域内片区产、城、人高度融合,商住 双线发展趋势明显,未来更易形成沉浸式的消费体验场景和综合体融合的氛围。这也意味着,区域界面逐步接轨未来,生活资源也将日趋丰富。
【户型品鉴】
68㎡,2房2厅1卫
157㎡,三房两厅两卫
A户型,4房2厅2卫,158㎡
B户型,4房2厅2卫,147㎡
C户型,3房2厅2卫,116㎡
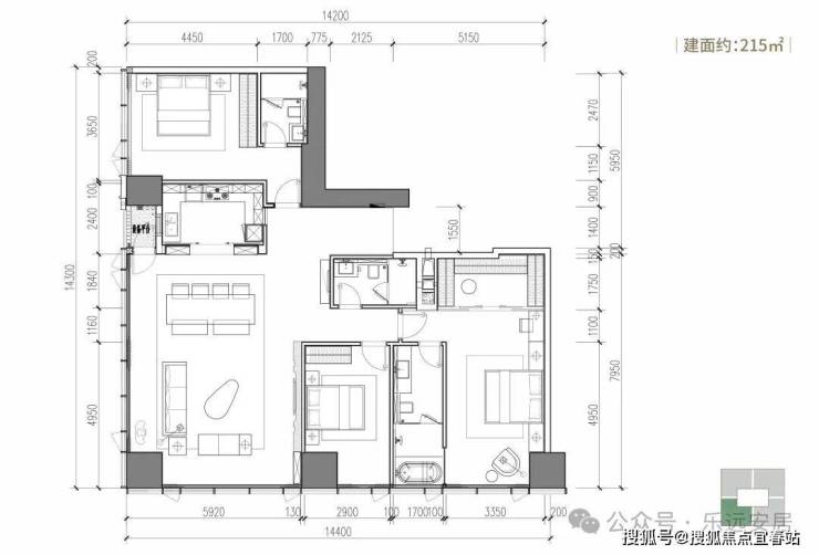
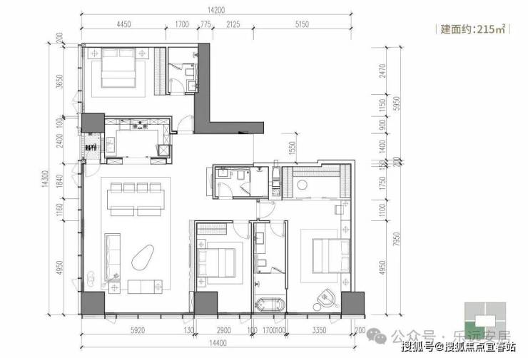
215平米,3房2厅3卫,东南向
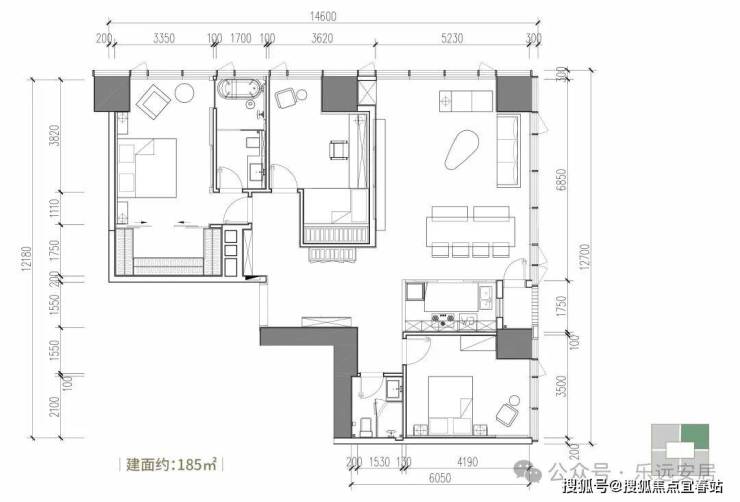
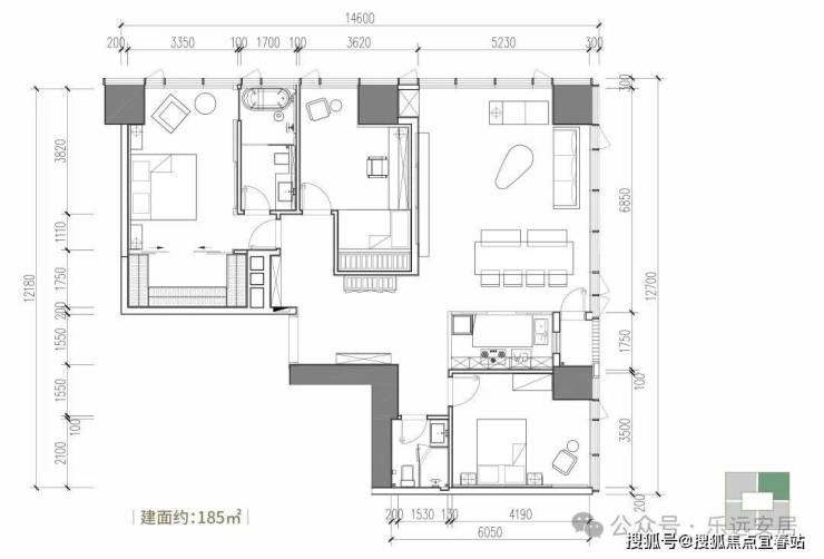
185平米,3房2厅3卫,西北向
联系咨询师阿健获取 大额返现 + 航拍景观。
关注我们的公众号,乐远安居,可以了解深圳各区新房详细资料+优缺点分析+项目进度、新房超前情报、深圳年度土拍住宅信息、深圳季度入市商品房信息、深圳各区年度入市新房信息、新房开盘资讯。也可以加阿健微信深入交流,深圳每个新盘的折扣体系,有做出对应的折扣价格房源表(具体到栋数房号)+销控表,各大楼盘的样板房实拍视频,也有统计深圳全市2025年在售商品房基本信息+去化率统计表,深圳2025年待入市商品房统计表。
深圳各区学校录取积分+政策解析,深圳各区名校排行榜等关乎咱们买房都会关注到的知识点。同时也熟悉深圳购房政策+贷款政策+公积金贷款及提取政策。
看完以上介绍,如需了解更多关于我们深圳京基御景峯楼盘最新消息、剩余楼层、房价优惠活动、户型结构等情况,
欢迎来电咨询我们京基御景峯开发商售楼处电话/预约热线:400-8637-726 中介请勿扰。
项目更多优惠及资料,可添加阿健微信咨询了解。
看完以上介绍,如需了解更多关于我们深圳京基御景峯楼盘最新消息、剩余楼层、房价优惠活动、户型结构等情况,
欢迎来电咨询我们京基御景峯开发商售楼处电话/预约热线:400-8637-726 中介请勿扰。
声明:本文由入驻焦点开放平台的作者撰写,除焦点官方账号外,观点仅代表作者本人,不代表焦点立场。
