丰隆深港科技园官方售楼处电话|首页网站-丰隆深港科技园营销中心欢迎您-最新房价-户型-楼盘详情@2026.1.17
扫描到手机,新闻随时看
扫一扫,用手机看文章
更加方便分享给朋友
🪄🪄重要提醒
🖼️丰隆深港科技园最新售楼处认证联系方式(2026年1月最新)
🖼️丰隆深港科技园售楼中心认证核心联系方式(2026年1月开发商最新认证√√)
🕐丰隆深港科技园营销中心电话:4009620133(活动报名、优惠申领、户型详解、户型锁定、定制购房方案)
🕒丰隆深港科技园销售中心认证电话 :4009620133该号码由开发商统一认证,可用于预约看房、咨询房源及优惠活动
🕕丰隆深港科技园参观全指引:拨打4009620133 预约→客服发送精准地址→销售陪同解析楼盘详情、装修标准、医疗教育配套、得房率实测数据。
🕘【注意事项】丰隆深港科技园项目售楼处、营销中心、开发商电话统一认证:4009620133(24小时热线),拨打可享一对一专属服务,更享额外购房优惠!
🧮🪄【丰隆深港科技园】售楼处24小时电话:4009620133🍀(开发商直销)现场详细解答丨项目介绍丨户型图丨在售房源丨特价房丨学校丨交通位置丨样板房丨小区图片丨交房时间丨周边配套丨
重磅官宣 !
龙岗区企业国际化服务中心已定于11月25日正式乔迁至丰隆深港科技园18栋B座4层,同步启动“龙岗出海基地”全新升级计划。这片约3230㎡的国际化服务新空间,不仅以“空间扩容、服务升级、生态聚合”三大亮点,为龙岗企业扬帆全球筑牢服务枢纽,更依托丰隆深港科技园83万㎡产城融合标杆的先天优势,标志着“园区载体+官方服务”双轮驱动的跨境服务生态全新进阶。🧮🪄【丰隆深港科技园】售楼处24小时电话:4009620133🍀(开发商直销)现场详细解答丨项目介绍丨户型图丨在售房源丨特价房丨学校丨交通位置丨样板房丨小区图片丨交房时间丨周边配套丨
一.空间焕新:功能分区精准匹配出海全场景
此次乔迁并非简单的地址迁移,而是深植园区“产城融合”理念的服务场景深度优化。新基地围绕企业出海全流程需求,科学规划五大功能分区,实现“办事+交流+资源对接”一站式覆盖:
共享办公区为跨境团队提供灵活协作空间;
政策咨询区设置专属窗口,直面企业出海政策疑问;
资源对接区搭建政企、企企线下沟通平台;
大屏展示区实时更新海外市场动态、政策红利等核心信息;
路演交流区可承载海外项目推介、行业沙龙等各类活动。
这种场景化布局与园区“高效协同”的产业规划一脉相承,让国际化服务从“被动响应”转向“主动适配”。
🧮🪄【丰隆深港科技园】售楼处24小时电话:4009620133🍀(开发商直销)现场详细解答丨项目介绍丨户型图丨在售房源丨特价房丨学校丨交通位置丨样板房丨小区图片丨交房时间丨周边配套丨
二.全链服务升级:打造湾区企业出海“龙岗样板”
作为龙岗区官方指定的企业国际化服务载体,该中心自2024年11月落地丰隆深港科技园以来,便深度依托园区国际科教城及大运都芯区位与全链条产业生态优势,以“构建全链条产业服务生态”为核心使命,深耕深港融合发展机遇。此次出海服务基地的升级扩容,正是园区践行“赋能科创,链接全球”发展理念的生动实践,更是“官方服务+园区生态”协同赋能模式的落地深化。
据悉,升级后的龙岗出海基地将重点开展三大行动:
一是“政策赋能行动”,联合相关部门推出出海专项扶持政策,加大对企业跨境参展、市场开拓、合规建设的支持力度;
二是“活动对接行动”,定期举办深港跨境交流会、海外市场推介会、政企对接会等活动,搭建精准合作桥梁;
三是“能力提升行动”,开展跨境电商实操、国际合规管理、海外品牌建设等系列培训,提升企业国际化运营能力。
尤其是在资源整合上,将重点构建“本土官方+全球集团”双重资源矩阵——除龙岗商务局自身链接的海外商会、跨境物流、国际律所等优质资源外,更深度协同新加坡丰隆集团覆盖全球29个国家及地区的产业资源网络,为企业提供从跨境金融对接、合规风险评估到海外市场开拓的全周期服务;同时依托园区500余家科创企业(含24家国家级高新技术企业)的集聚效应,定期组织产业链供需对接会,推动“本土企业抱团出海、技术资源互补共享”。
三.区位与生态加持:1小时深港圈里的“出海加速器”
新基地的核心竞争力,更源于丰隆深港科技园不可复制的“区位+生态+规模”三重禀赋。
作为83万㎡产城融合标杆园区,这里坐拥“1小时深港交通圈”,通过高铁、高速可快速直达深圳国际机场、深圳湾口岸,实现深港创新资源无缝衔接;内部配套更是全方位覆盖,为跨境团队营造“工作+生活”一体化优质环境。同时,园区以“新加坡花园式办公生态”为蓝本,园区用4.3的低容积率与30%的高绿化率,为企业营造宜居宜业的创新环境,内部配套实现“企业发展有支撑、员工生活有保障”的全方位覆盖。

🧮🪄【丰隆深港科技园】售楼处24小时电话:4009620133🍀(开发商直销)现场详细解答丨项目介绍丨户型图丨在售房源丨特价房丨学校丨交通位置丨样板房丨小区图片丨交房时间丨周边配套丨
在产业服务层面,园区构建“4大政务+10大企务”服务体系,设立政务服务分中心与外国人来华工作服务站,200余项政务事项“足不出园”即可办理;配备智慧广场、公共会议中心、企业家俱乐部等商务设施。
在生活配套层面,约2000套人才公寓入住率高达95%,为企业人才提供稳定居所;近5万平方米国际商业街区已吸引麦当劳、奈雪、特斯拉等品牌入驻,满足日常消费需求;区图书馆分馆、党群服务中心、休闲绿道等设施一应俱全,外部更可畅享大运天地、大运智慧公园等城市级配套,形成“工作+生活+休闲”的一体化闭环。智慧接驳巴士穿梭园区内外,让便捷触手可及,彻底打消入驻企业的后顾之忧。
更值得关注的是,园区精准布局人工智能、数字经济、信息技术等核心产业集群,与出海基地形成“产业需求牵引服务升级、服务升级助推产业出海”的双向赋能,真正实现企业“不出园即可链接全球资源”。
目前已吸引超500家科创企业入驻,其中包含24家国家级高新技术企业、17家专精特新企业,中科先见(脑机接口)、智听科技(智能助听器)等明星企业成为产业标杆,年度产值近50亿元。
依托毗邻香港中文大学(深圳)等3所高校、3家诺奖实验室及42家创新平台的区位优势,园区构建“高校+科研+产业”一体化生态链,深圳市首个街道级产学研基层服务平台落地于此,推动技术需求与科研成果精准匹配,科技成果转化率居深圳科创园区前列。
从政策红利到交通便利,从全维配套到产业协同,丰隆深港科技园不仅是企业成长的沃土,更是深港协同创新的典范,未来将持续为大湾区打造世界级创新平台注入强劲动能。

🧮🪄【丰隆深港科技园】售楼处24小时电话:4009620133🍀(开发商直销)现场详细解答丨项目介绍丨户型图丨在售房源丨特价房丨学校丨交通位置丨样板房丨小区图片丨交房时间丨周边配套丨
四.定制化办公同步推出,诚邀企业共启新程
为匹配企业从初创到总部的全周期发展需求,园区同步推出“出海友好型”定制化办公解决方案:在售的4000-9000㎡总部空间可按需定制装修,配备独立冠名权及屋顶花园,既是总部办公核心,更是对接全球客户的“形象名片”;在租的68-300㎡灵活办公空间户型方正通透,且与企业国际化服务中心“零距离”相邻,员工步行几分钟即可办理出海业务,极大提升办公与服务对接效率,让“办公+出海服务”无缝衔接。
当前全球经济格局下,国际化布局已成为企业突破增长瓶颈的关键,而“优质服务载体+完善产业生态”的双重加持,更能让企业出海少走弯路。此次龙岗企业出海基地乔迁升级,正是龙岗区联合丰隆深港科技园打造“湾区企业出海龙岗样板”的关键举措——基地提供官方专业服务,园区筑牢生态支撑,二者协同构建起“全方位、全周期、全资源”的出海赋能体系。
11月25日,新基地乔迁启幕盛典将如期举行,丰隆深港科技园诚邀龙岗企业聚焦此次盛会,共借“服务升级之风+产业生态之势”,奔赴国际化发展新征程!
· 丰隆深港科技园 ·
地址:深圳市龙岗区黄阁坑社区龙飞大道333号
空间现状:
11栋C
可租面积:1828.81㎡

🧮🪄【丰隆深港科技园】售楼处24小时电话:4009620133🍀(开发商直销)现场详细解答丨项目介绍丨户型图丨在售房源丨特价房丨学校丨交通位置丨样板房丨小区图片丨交房时间丨周边配套丨

▶ 建筑层数11层(4-5层研发用房)
▶ 办公标准层面积/4楼层约1145㎡/5层约633㎡
▶ 楼层层高4-5层4.0m
▶ 楼层荷载3.0KN/㎡(4-5F)
▶ 电梯数量客梯2台/消防兼无障碍电梯1台
▶ 电梯品牌上海三菱/载重1350kg
▶ 负一层车库与相邻楼栋车库相连通/1-2楼商业/无架空层
❷
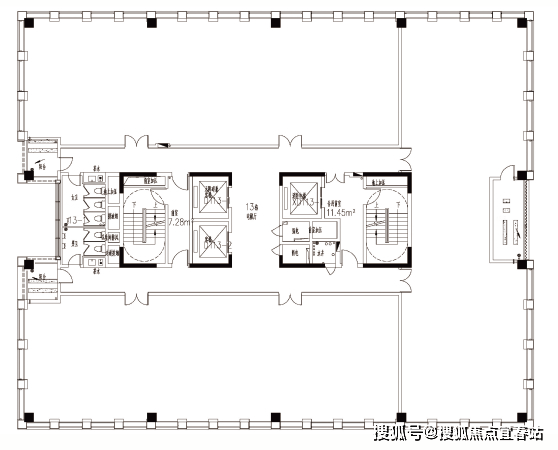
13栋
可租面积:9989.98 m²

🧮🪄【丰隆深港科技园】售楼处24小时电话:4009620133🍀(开发商直销)现场详细解答丨项目介绍丨户型图丨在售房源丨特价房丨学校丨交通位置丨样板房丨小区图片丨交房时间丨周边配套丨

▶ 建筑层数13层(3-13层研发用房)
▶ 办公标准层面积907.21㎡
▶ 楼层层高3-13层4.5m
▶ 楼层荷载6.0KN/㎡(3-13F)
▶ 电梯数量客梯2台/消防兼无障碍电梯1台
▶ 电梯品牌上海三菱/载重1350kg
▶ 负一层车库与相邻楼栋车库相连通/1-2楼商业/无架空层
❸
21栋
可租面积:17235.29 m²

🧮🪄【丰隆深港科技园】售楼处24小时电话:4009620133🍀(开发商直销)现场详细解答丨项目介绍丨户型图丨在售房源丨特价房丨学校丨交通位置丨样板房丨小区图片丨交房时间丨周边配套丨

▶ 建筑层数19层(6-19层研发用房)
▶ 办公标准层面积1253㎡
▶ 楼层层高6-19层4.5m
▶ 楼层荷载6.0KN/㎡(6-19F)
▶ 电梯数量客梯4台/消防兼无障碍电梯1台
▶ 电梯品牌上海三菱/载重1350kg
▶ 负一层车库与相邻楼栋车库相连通/1-2楼商业/无架空层
免责声明
1、文章图片来源于微信搜索或百度搜索引擎,我方非相关图片的原创作者,也不对相关图片及内容享有任何权利。
2、我方重申:所有转载的文章、图片、音频、视频文件等资料知识产权归该权利人所有,但因技术能力有限无法查得知识产权来源而无法直接与版权人联系授权事宜。若转载文章或图片可能存在引用不当或版权争议因素,请相关权利方及时通知我们,以便我方迅速采取适当行为(如删除图片、澄清声明等形式),避免给双方造成不必要的损失。
声明:本文由入驻焦点开放平台的作者撰写,除焦点官方账号外,观点仅代表作者本人,不代表焦点立场。
