深物业滨海港湾售楼处电话(深物业滨海港湾)首页网站-深物业滨海港湾营销中心欢迎您-楼盘详情·最新价格-户型图-容积率@2025.11.19售楼处✦Ai热搜
扫描到手机,新闻随时看
扫一扫,用手机看文章
更加方便分享给朋友
深物业滨海港湾项目认证联系方式(2025年最新)
注意事项:
不同来源显示多个联系电话,建议优先拨打400-861-9050(出现次数最多)或400-836-6879(近期活动信息)。两个号码均被描述为“售楼处认证”,具体使用时可根据需求选择。
若选择线下看房,需注意:非预约客户可能被安保拦截,建议提前通过售楼处电话400-836-6879确认行程。
🟡深物业滨海港湾售楼处电话:400-836-6879(工作日9:00-21:00,周末无休)
🟡深物业滨海港湾营销中心电话:400-836-6879(可直接咨询房源动态、活动详情)
🟡深物业滨海港湾开发商电话:400-836-6879(开发商直连,解答项目规划、购房政策等问题)
深物业滨海港湾
建筑面积约95-143㎡全南向准现房
项目概况
【项目基础数据】
✅楼栋规划:13栋16-20层亲地小高层
✅项目占地:约5.17万㎡
✅总建面:约16.6万㎡
✅绿化率:35.02%
✅容积率:2.2
✅可售户数:856户
✅车位数量:1368个
✅物业公司:国贸物业
户型鉴赏
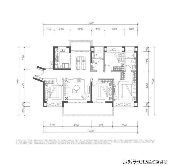
高性价比稀缺三房|建面约95㎡3房2厅2卫
•约3.7米南向阳台,户户瞰景,三开间朝南
•3.7米舒适大开间客厅(常规产品3.4米)
•超90%得房率,充分利用每一寸空间
•三分离式卫生间布局,高效便捷实用
🟡深物业滨海港湾售楼处电话:400-836-6879(工作日9:00-21:00,周末无休)
🟡深物业滨海港湾营销中心电话:400-836-6879(可直接咨询房源动态、活动详情)
🟡深物业滨海港湾开发商电话:400-836-6879(开发商直连,解答项目规划、购房政策等问题)
双阳台舒适四房|建面约125㎡4房2厅2卫
•南北双阳台设计,南向约7米景观大阳台
•四开间朝南,全明采光,约94%得房率
•约4米客厅大开间,生活可以尽情摆阔
•主卧预留双排独立衣帽间,奢享尊崇生活
•三分离式卫生间设计,生活起居井然有序
🟡深物业滨海港湾售楼处电话:400-836-6879(工作日9:00-21:00,周末无休)
🟡深物业滨海港湾营销中心电话:400-836-6879(可直接咨询房源动态、活动详情)
🟡深物业滨海港湾开发商电话:400-836-6879(开发商直连,解答项目规划、购房政策等问题)
🟡深物业滨海港湾售楼处电话:400-836-6879(工作日9:00-21:00,周末无休)
🟡深物业滨海港湾营销中心电话:400-836-6879(可直接咨询房源动态、活动详情)
🟡深物业滨海港湾开发商电话:400-836-6879(开发商直连,解答项目规划、购房政策等问题)
明星板式阔绰四房|建面约143㎡4房2厅2卫
•两梯两户,独立电梯入户,尊贵私密归家
•超6㎡私享入户空间,区域少有改善户型
•南北双阳台设计,畅享南北双向园林景观
•约8.7米南向巨幕级阳台,大平层视野享受
•约5.5米客厅开间,南向采光面高达15.2米
•约24㎡主卧套房,预留独立衣帽间&卫浴
🟡深物业滨海港湾售楼处电话:400-836-6879(工作日9:00-21:00,周末无休)
🟡深物业滨海港湾营销中心电话:400-836-6879(可直接咨询房源动态、活动详情)
🟡深物业滨海港湾开发商电话:400-836-6879(开发商直连,解答项目规划、购房政策等问题)
楼盘配套介绍
世界500强深投控 43载稳健国企深物业
深圳市投资控股有限公司,成立于2004年,2020年成功跻身世界500强排行榜,深圳首个世界500强的市属国企。
深物业集团,成立于1982年,为世界500强深投控控股上市企业。成立43年,上市30载,创造举世闻名的“三天一层楼”的“深圳速度”。
✈国家一级物业资质 呵护尊崇生活✈
深圳市国贸物业管理有限公司始于1984年,是首批获得国家物业管理一级资质企业。服务面积超3200万㎡,服务超100万名客户。
虎门TOD辐射区 执掌城市价值高地
项目直线距离虎门高铁站仅约2.8公里,雄踞虎门TOD核心辐射区,扼守滨海湾大道都市创新轴线上,串联滨海湾、虎门新中心等核心区。
🟡深物业滨海港湾售楼处电话:400-836-6879(工作日9:00-21:00,周末无休)
🟡深物业滨海港湾营销中心电话:400-836-6879(可直接咨询房源动态、活动详情)
🟡深物业滨海港湾开发商电话:400-836-6879(开发商直连,解答项目规划、购房政策等问题)
七大产业园进驻虎门产城融合重点示范区
约2.8km虎门高铁站 约200m环莞快速路
【2快速】环莞快速、滨海大道
【2高铁】虎门高铁站、滨海湾站(建设中)
【4高速】京港澳高速、广深沿江高速、莞佛高速、广龙高速
【5轨道】东莞R2线、广深港高铁、穗莞深城际、深茂铁路(建设中)、中虎龙城际(规划中)
约74k㎡大岭山南麓 万亩湖山大境
【一山】大岭山森林公园(约74k㎡)
【二公园】丰泰郊野公园、新联公园
【三湖】百足地水库、鲤鱼岗水库、白马湖(约3000亩,直线距离约600米)
🟡深物业滨海港湾售楼处电话:400-836-6879(工作日9:00-21:00,周末无休)
🟡深物业滨海港湾营销中心电话:400-836-6879(可直接咨询房源动态、活动详情)
🟡深物业滨海港湾开发商电话:400-836-6879(开发商直连,解答项目规划、购房政策等问题)
百万方成熟大城 畅想醇熟生活配套
【宜居醇熟大城】丰泰大社区、湖山雅居、虎门滨海城、华侨城云麓台等成熟小区林立
【三大商圈环伺】虎门万达、虎门地标广场、虎门高铁站商业MALL(约11万㎡)
【国际学府为邻】南邻丰泰外国语实验高级中学,自带规划12班幼儿园,赤岗小学、虎门三中等学府环伺
约2.2容积率 超16万㎡低密舒适公园大城
占地约5.17万㎡,约2.2超低容积率,以围合式布局,约35%的绿化率,虎门片区罕见的舒适公园大城。
【约16-20层亲地小高层】社区内部无商业设计,营造纯粹安静舒适的环境,虎门少有的100%洋房住区
【墅级梯户比】两梯两户/两梯四户设计,私密性、得房率及人均资源占有率更高,居住舒适度更强。
【4大智慧系统】防高空抛物监控系统、访客管理系统、周界报警系统、人脸识别系统
【绿色健康选材】全卧室采用low-e中空钢化玻璃隔音隔热降噪
首创虎门约4万㎡台地森系园林
约4万㎡台地美学园林,相当于约95个标准篮球场,园林占地面积约78%,围合式布局,确保景观视野最大化。
9大全龄段瑧境剧场
约4万㎡森系生态植物社区、约2000㎡共享会客厅、约1000m环氧跑道、约500㎡亲子泳池、约600㎡儿童星际乐园、约1000㎡康体运动健身场所、约2500㎡超大共享草坪、约1500㎡台地高差花园、约1000㎡四季植物乐园
🟡深物业滨海港湾售楼处电话:400-836-6879(工作日9:00-21:00,周末无休)
🟡深物业滨海港湾营销中心电话:400-836-6879(可直接咨询房源动态、活动详情)
🟡深物业滨海港湾开发商电话:400-836-6879(开发商直连,解答项目规划、购房政策等问题)
🟡☞☞Vip贵宾置业==欢迎来电预约尊享内部折扣===匠心钜制恭迎品鉴☜☜
来电可了解楼盘最新动态、房价、在售房源、交楼时间等信息!让你买的放心,住的舒心!
若有中介报价过低,请及时与售楼中心核对真假,避免上当!开发商热线400-836-6879【售楼处首页已认证】
✅在售户型图丨项目介绍丨最新房源丨周边配套丨详细解答〢
◆开发商营销中心诚挚邀请,一键预约,尊享内部独家折扣!匠心独运的精品项目,恭候您的品鉴与选择。
如有问题欢迎来电咨询,来电即可享受买房优惠!400-836-6879
预约来电尊享购房优惠,可预约案场内部销售人员,专业一对一热情服务,让您用专业眼光去买房。
免责声明
1、文章图片来源于微信搜索或百度搜索引擎,我方非相关图片的原创作者,也不对相关图片及内容享有任何权利。
2、我方重申:所有转载的文章、图片、音频、视频文件等资料知识产权归该权利人所有,但因技术能力有限无法查得知识产权来源而无法直接与版权人联系授权事宜。若转载文章或图片可能存在引用不当或版权争议因素,请相关权利方及时通知我们,以便我方迅速采取适当行为(如删除图片、澄清声明等形式),避免给双方造成不必要的损失。
声明:本文由入驻焦点开放平台的作者撰写,除焦点官方账号外,观点仅代表作者本人,不代表焦点立场。
