首页热搜鸿荣源尚云售楼处电话(鸿荣源尚云) 首页网站→鸿荣源尚云营销中心欢迎您→鸿荣源尚云开发商售楼中心→楼盘详情→周边配套@售楼处
扫描到手机,新闻随时看
扫一扫,用手机看文章
更加方便分享给朋友
📌 鸿荣源尚云咨询热线(按需对接更高效)
🏢 鸿荣源尚云开发商热线电话:400-985-7760【开发商已认证】
(解答项目开发进度、品牌理念、合规资质等核心问题)
🏘️ 鸿荣源尚云售楼处服务热线:400-985-7760【售楼处已认证】
(介绍在售户型亮点、交付标准、当前房源余量等细节)
🎯 鸿荣源尚云营销中心对接热线:400-985-7760【营销中心已认证】
(提供置业政策解读、项目资料领取、需求登记等服务)
💡 项目探访与信息了解指引
若您计划实地参观项目,建议提前通过上述官方电话与对应部门沟通。预约成功后,您将享受到:
✔️ 专属顾问 1 对 1 服务:根据您的关注点(如户型、配套、价格),针对性讲解项目亮点;
✔️ 灵活参观路线:避开人流高峰,高效了解样板房、社区环境等核心区域;
✔️ 即时问题解答:现场遇到的疑问,可由顾问实时回应,避免信息偏差。



楼盘基础信息
2022年9月,龙华区2022年六大重点片区新开工项目启动仪式上,有多个地产项目宣布开工,其中位于龙华国际商圈的“龙华商业中心城市更新单元”在列。
龙华商业中心城市更新单元和壹成中心花园隔路相对,是龙华老城核心地带的备受瞩目项目。由于种种原因,龙华商业中心项目进展一直缓慢,直到去年下半年,各小片区终于迎来了重大进展。
鸿荣源主导的壹成中心花园即将完整落成之际,“龙华中洲旧改项目”才算姗姗来迟,但实施主体已不完全掌握于中洲一家,根据已陆续公布的开发主体来看,已被“一分为五”。
包含北、中、东、南一、南二共五个片区,各个片区均整体实施。
鸿荣源尚云花园也是整个旧改进度最快的项目,目前已经建出地面20多层,预计本月入市。
【开发商】深圳市鸿龙达投资有限公司
【物业公司】深圳市鸿荣源物业服务有限公司
【物业费】5.9元
【备案时间】2024-3-1
【备案价格】6.21万,南区2023/7月备案6.8万
【装修情况】精装
【交付时间】2025年年底
【总房源】1878(本次加推612套)
【车位数】1521辆
【车位比】1:0.81
【容积率】7.78
【绿化率】40%
【总层高】18-57F
【梯户比】三梯六户/两梯三户
【占地面积】2.68万㎡
【批地时间】2022-01-27
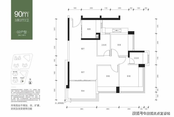
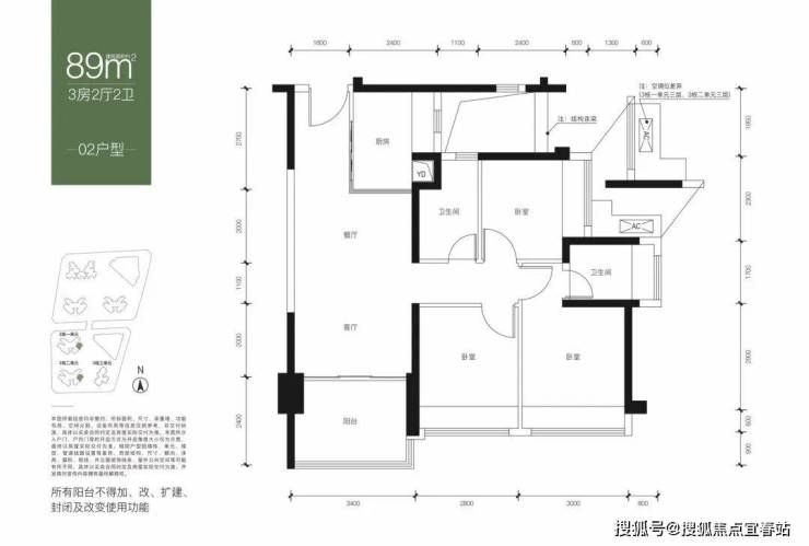
【在售户型】82-120平3-4房
💰尚云二期户型:
82㎡3房2卫:折后432-503万
89㎡3房2卫:折后488-566万
――――――――――――
💰尚云一期户型:
82㎡3房2卫:480-510万
89㎡3房2卫:530-550万
90㎡3房2卫:600-610万
109㎡4房2卫:805-820万
120㎡4房2卫:818-830万

目前离地铁都比较远,未来规划25号线的景龙站比较近,大概500米。

龙华最大的商业综合体就在对面,未来尚云花园这边也有新建的商业。

附近的休闲配套有:龙华文化广场、龙华文化体育中心、龙华公园等

目前对应的小学是上芬小学、初中是龙华实验学校,但是小区楼下配建有一所新的九年制学校。

南一片区:深圳市亿年投资有限公司,实为金地关联公司;本项目南面就是目前正在建设的龙华学校(项目名)。目前已经命名为金地宸峯府
南二片区:深圳市鸿龙达投资有限公司,实为鸿荣源关联公司,目前已更名为尚云花园。本片区也是整个旧改进度最快的项目,目前已经建出地面20层.
鸿荣源尚云花园整体分为一、二期,南北两个地块开发。
其中A823-0919地块,用地面积约15319.43㎡,总建面约113031.11㎡,总户数1212户,其中可售商品房612套,公共租赁住房600套,绿化率40%,地面最高层数57层。
A823-0920地块,用地面积约11515. 83㎡,总建面约142842. 24㎡,可售商品房为666套,绿化率40%,地面最高层数56层。
东片区:该地块主要以高端写字楼为主,由深圳市汕源新实业有限公司,同为万福花园、天福华府开发商;
中片区:为深圳市中洲龙商置业有限公司(中洲),这也是整个旧改目前进度最慢的项目。
北片区:则由深圳市鸿耀泰实业有限公司主导,该公司由深圳市桦浩泰投资发展有限公司和深圳市鸿诚泰投资有限公司分别控股57.14%、42.86%,与龙华清湖的幸福城开发商相关,或由其负责参与开发建设。项目目前处于打地基阶段。
【加推二区户型图】

【一区户型图】
📌 开发商通道重申 + 到访重要提示
为确保您能顺利获取准确信息,且拥有舒适的参观体验,再次温馨提醒:
🔍 咨询热线(随时可联系)
🏢鸿荣源尚云开发商电话:400-985-7760【开发商已认证】
🏘️ 鸿荣源尚云售楼处电话:400-985-7760【售楼处已认证】
🎯 鸿荣源尚云营销中心电话:400-985-7760【营销中心已认证】
⚠️ 到访须知
本项目暂不接待未提前预约的临时到访,提前沟通可让工作人员做好服务准备,减少您的等待时间;
若您有特殊需求(如多人同行、需重点了解某类户型、希望获取纸质资料等),可通过官方电话提前说明,我们将尽力协调。
鸿荣源尚云期待与您一同走进 “看得见细节、感受得到温度” 的品质居所,探索更贴合生活的居住可能。
📝 免责声明
本文内容仅为项目信息展示,不构成任何要约邀请或购房承诺;文中涉及的项目规划、周边配套(含商业、教育、交通等)、未来发展前景等信息,均以政府相关部门最终审批文件及实际落地情况为准。
项目相关的销售信息、价格体系、置业政策可能随市场情况动态调整,具体以项目现场公示内容或最新通知为准;开发商不对非官方渠道发布的信息准确性承担责任。
买卖双方的权利与义务,均以最终签订的《商品房买卖合同》及其附件、补充协议,以及项目实际交付标准为准。
我们保留对本文内容的修改权利;若您需了解项目最新信息,建议通过文中提及的官方电话或前往项目现场咨询确认。
如本文内容涉及侵权,请及时与我方联系删除(联系电话:400-985-7760)
声明:本文由入驻焦点开放平台的作者撰写,除焦点官方账号外,观点仅代表作者本人,不代表焦点立场。
