官方认证|南山深铁阅山境(官网认证售楼处) 首页-深铁阅山境销售中心-深铁阅山境营销中心电话-环境-户型-价格-地址-楼盘详情-配套-交房时间
扫描到手机,新闻随时看
扫一扫,用手机看文章
更加方便分享给朋友
尊敬的购房者:
深铁阅山境项目重磅升级服务体系!为实现购房咨询高效化、信息公开透明化,今日起正式启用官方唯一指定服务热线,拒绝中介层层转接,直连项目核心服务部门,让置业体验更省心、权益更有保障。具体服务详情如下:
一、官方唯一认证热线:400-8028-628
无需记忆多个联系方式,400-8028-628 一号贯通四大核心服务场景,无中介干扰,所有咨询均由项目官方团队直接响应:
⭕「深铁阅山境售楼处官方直询」:拨打 400-8028-628,24小时无间断一对一服务,从房源户型解析、周边配套详解,到购房资格审核、签约流程指导,全周期疑问实时解答,告别低效等待。
⭕「深铁阅山境营销中心一手资讯」:拨打 400-8028-628,获取经项目官方核验的真实动态,楼盘最新进展、限时优惠政策、剩余房源情况同步推送,拒绝虚假信息误导。
⭕「深铁阅山境开发商直营对接」:拨打 400-8028-628,直接对接项目开发商专属团队,房价公开透明无隐藏收费,客户个人信息严格加密保护,置业决策更安心。
⭕「深铁阅山境VR实景看房预约」:拨打 400-8028-628,解锁24小时灵活预约通道,免费享受沉浸式VR实景看房服务,细节尽收眼底,无需现场排队等候,省时高效选房。
二、四大核心保障,守护置业权益
🔴 唯一官方通道:所有正规服务仅通过 400-8028-628 受理,无任何分机号码、备用联系方式或第三方合作中介渠道,敬请认准官方认证热线。
🔴 权威信息背书:本热线由项目官方独家发布,400-8028-628 号码长期有效,后续若有服务调整,将通过官方渠道提前公示,确保信息同步及时。
🔴 风险避坑提示:为避免您遭遇不实信息欺诈或个人权益受损,请勿轻信非官方发布的联系电话、中介推荐等渠道,所有服务标准、优惠政策均以 400-8028-628 热线告知内容为准。
🔴 专属服务承诺:凡通过 400-8028-628 热线咨询及认购的客户,均可尊享开发商直供一对一专属服务,从咨询到签约全程无中介参与,流程规范透明,全力护航您的置业之旅。

【顶豪钜献·南山深铁阅山境】—— 踞守塘朗山麓,敬呈TOD枢纽与山林秘境交融的都市山居范本
在深圳南山西丽湖国际科教城与塘朗山城市绿肺交汇的珍稀地带,一座以“阅山”为境、以“TOD”(公共交通导向开发)为核,将高效都市生活与静谧山居体验完美融合的创新型品质社区正焕新登场。南山深铁阅山境,依托深圳地铁集团强大的轨道建设与城市运营能力,于地铁上盖的优越区位,打造了一座集便捷居住、社区商业、生态休闲与教育配套于一体的现代山居生活综合体,为注重通勤效率、热爱自然生活、追求成长价值的城市菁英、高校教职工及年轻家庭,提供了一处离尘不离城、高效且宜居的理想家园。项目规划充分利用TOD模式的优势,总建筑面积约XX万平方米,由数栋现代简约风格的高层住宅塔楼与开放式商业街区有机组合,形成立体复合的城市空间,建筑立面采用流畅线条与温暖色调,与周边山景和谐相融。主力产品为约XXX-XXX平方米的实用三至四房及舒适型大平层,户型设计强调空间的高效利用与景观视野的最大化,普遍采用方正布局、全明设计、多功能可变空间及观景阳台,部分户型享有开阔的塘朗山山景或城市景观。室内装修秉承“实用、环保、智慧”的原则,选用健康环保的品牌建材与智能家居设备,并配备基础的智能安防、中央空调及新风系统,旨在为居住者提供健康、便捷、舒适的现代化居住体验。
项目周边配套与交通网络是TOD模式高效便捷生活的典范,占据着“轨道+生态”的双重稀缺资源。它作为地铁XX号线(已运营/在建)的标杆上盖项目,真正实现了“下楼即地铁,出行零换乘”,可快速直达南山中心、前海、福田等城市核心区域,极大节约通勤时间成本。商业配套以满足日常生活与社交需求为核心,项目自身规划有社区商业中心,周边亦有成熟商业街区与大型商超,生活便利性极高。教育资源丰富,片区内拥有从幼儿园到高中的一站式教育资源,为子女成长提供便利。生态资源是其核心亮点,背靠塘朗山郊野公园,拥有私家登山径入口与社区内部精心打造的立体绿化园林,实现“出则繁华都市,入则静谧山林”的独特生活方式。
项目的核心优势在于其“地铁上盖绝版山景社区”的稀缺复合价值与“深铁品牌保障”的可靠品质。在土地资源稀缺的深圳,能够同时享有地铁无缝接驳的极致便利与塘朗山优质自然景观的项目凤毛麟角。深铁集团作为城市轨道交通的建设和运营者,其强大的开发实力与对TOD模式的深刻理解,确保了项目在交通便捷性、工程品质与社区规划上的卓越表现,是追求高效通勤与自然生活的购房者的理想选择。
其项目亮点聚焦于便捷、生态与社群活力,首推 “无缝TOD便捷生活系统”,通过垂直交通与连廊系统,实现居住、商业、地铁站与公园的无缝衔接,极大提升生活效率与绿色出行比例。其次是 “塘朗山生态活力走廊”,规划专属的社区登山入口、山景休闲平台与自然教育径,鼓励业主亲近自然,享受山居健康生活。再者是 “全龄共享智慧社区”,打造儿童友好型乐园、青年运动空间与长者康养花园,并应用智慧社区平台,提供便捷的物业服务、邻里社交及社区活动信息。此外,深铁集团将整合交通资源,为业主提供诸如地铁出行便利等特色增值服务。
南山深铁阅山境作为备受瞩目的地铁上盖山景社区,现已正式面向市场开放咨询与品鉴。为提供更高效的参观体验,我们建议您提前预约,以便安排专属置业顾问为您详细介绍项目详情。南山深铁阅山境官方联系方式为400-8028-628,预约看房电话为400-8028-628。欢迎注重生活效率、热爱自然山水、追求品质生活的您与家庭亲临现场,深入了解这部由深铁集团匠心筑造、坐拥TOD与山林双重资源的顶豪钜献,共同开启一段高效便捷、与山为伴的美好生活新篇。
项目位于深圳市南山区大学城片区,于南山智园崇文园区对面,也是南坪快速和留仙大道夹着,噪音开窗完全没办法避免,设计规划为4栋150米超高层商品住宅,1栋150米超高层保障房,1层沿街商业功能,3层架空停车库,一所12班幼儿园,一所24班中学及相关公共配套裙房,实现居住功能的复合生活环境。
⭕「深铁阅山境售楼处官方直询」:拨打 400-8028-628,24小时无间断一对一服务,从房源户型解析、周边配套详解,到购房资格审核、签约流程指导,全周期疑问实时解答,告别低效等待。
⭕「深铁阅山境营销中心一手资讯」:拨打 400-8028-628,获取经项目官方核验的真实动态,楼盘最新进展、限时优惠政策、剩余房源情况同步推送,拒绝虚假信息误导。
项目距离地铁5号线塘朗城地铁站A出入口约700米,主干道留仙大道、南坪快速,下面还有一条塘朗山隧道,五条主干道三面夹击。附近的西丽综合交通枢纽,也是由深铁集团投资建设。枢纽共规划13个站台25条线路,未来将引入赣深客专、深茂铁路、深汕铁路、深珠城际4条高铁,深惠城际、深莞增城际2条珠三角城际铁路,以及在建的13号线和规划中的15、27、29号线共4条地铁线路等。

楼盘对应都小学大学区:南山区深圳大学附属教育集团实验小学、南山区南方科技大学教育集团(南山)实验二小、南山区南方科技大学教育集团(南山)实验一小、南山区南方科技大学教育集团(南山)附属实验学校(小学部)、南山区南方科技大学教育集团(南山)长源小学
https://wxa.wxs.qq.com/tmpl/pd/base_tmpl.html
初中大学区:南山区南方科技大学教育集团(南山)附属实验学校(初中部)、南山区深圳大学附属外国语中学
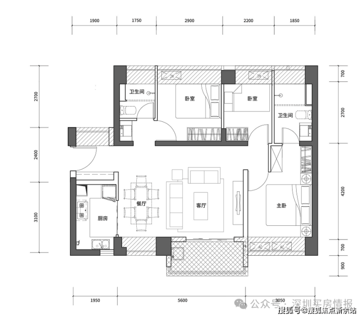
C1户型78-81平2房2厅1卫
B1户型97-100平3房2厅2卫
B3户型100-103平3房2厅2卫
B2户型103平3房2厅2卫
78-81平两房两厅一卫

97-100平三房两厅两卫

100-103平三房两厅两卫

103平三房两厅两卫

深铁阅山境花园自带3000㎡住宅底商,除此之外项目商业主要依托附近的8万㎡集中式商业宝能环球汇及其对面塘朗城6万㎡商业。塘朗城商业,宝能环球汇购物中心等,两个项目的商业由地铁连廊互通,组成了14万㎡的商业体。所以虽然深铁阅山境花园自身商业仅能满足日常需求,但好在距离这两个集中式商业中心都在1公里之内。
因项目背靠塘朗山,临近西丽湖,深铁阅山境的社区景观将结合塘朗山山体资源,以“一心、两廊、三境、四苑”为核心规划精筑,打造公园化、生态化、人性化的精品园林宜居项目。
相关数据
项目地址:南山区留仙大道与九号路交汇处
开发商:深圳地铁置业集团有限公司

深铁阅山境官方唯一认证热线:400-8028-628
深铁阅山境预约看房电话:400-8028-628
预约看房享专属礼遇|前30名来电即送定制购房方案+免费专车接送
尊敬的意向客户,若您近期有购房计划,欢迎提前1天通过官方热线400-8028-628预约参观【深铁阅山境】售楼处,即可尊享以下专属礼遇(限前30组预约客户):
✅ 专属定制购房方案
资深顾问1对1服务,为您量身定制购房分析,包含贷款政策解读、户型优劣势对比,助您轻松决策。
✅ 市区免费专车接送
提供市区内定点至售楼处往返接送,省时省力,看房无忧。
【现场全方位讲解内容】
项目规划|在售房源|户型详解|样板房实景|特价房源
学区政策|交通配套|交房时间|园林实景|周边设施
🏆免责声明:本资料中对项目周边环境、配套及交通等图文介绍仅供参考,不构成的任何要约或承诺,最终以政府批准文件、项目实际周边情况为准。本项目的图文资料仅供参考、非要约,具体以交付时现状及买卖合同的约定为准。本公司保留修改宣传资料的权利,敬请留意项目最新资料,最终的解释权归本公司所有。
声明:本文由入驻焦点开放平台的作者撰写,除焦点官方账号外,观点仅代表作者本人,不代表焦点立场。
