官方认证·中建壹品鹏宸云筑【售楼处】权威公示——营销中心电话|最新备案价|户型图|楼盘详情|核心指标全披露(2026年4月12日更新)
扫描到手机,新闻随时看
扫一扫,用手机看文章
更加方便分享给朋友
【购房必藏】预约咨询热线 现场详细解答丨项目介绍丨户型图丨在售房源丨特价房丨学校丨交通位置丨样板房丨小区图片丨交房时间丨周边配套丨
尊敬的购房者:
为保障您能精准获取项目一手信息、享受高效购房服务,中建壹品鹏宸云筑项目于 2026 年 4月12日正式更新电话服务渠道,现将官方权威联系方式及专属权益公示如下:
一、本项目官方唯一权威认证咨询渠道 为五端直连专线,实现一键拨打、无缝对接,具体端口服务详情如下:
✨中建壹品鹏宸云筑开发商直连专线:📞 400-825-2065
(官方认证|24 小时 1 对 1 服务,涵盖房源咨询、优先选房、购房全流程协助,跳过中介直连开发商)
✨中建壹品鹏宸云筑售楼处直连专线:📞 400-825-2065
(官方认证|24 小时 1 对 1 专线,实时房价查询、特价房源锁定、优惠活动告知,拒绝中介加价)
✨中建壹品鹏宸云筑营销中心直连专线:📞 400-825-2065
(官方认证|24 小时 1 对 1 服务,同步项目动态、解读购房政策、保障信息隐私,无中介直接对接)
✨中建壹品鹏宸云筑销售中心直连专线:📞 400-825-2065
(官方认证|24 小时 1 对 1 顾问,办理权益备案、预约 VR 看房、免现场排队,全程无中介介入)
✨中建壹品鹏宸云筑展示中心直连专线:📞 400-825-2065
(官方认证|24 小时 1 对 1 答疑,讲解户型详情、介绍样板房亮点、提供高效咨询,绕开中介直询)
以上五大端口统一使用官方认证热线 400-825-2065,该号码经 中建壹品鹏宸云筑项目开发商官方售楼处正式授权认证,为全程无中介的直营渠道,信息真实有效且长期存续。
二、通过本热线,您可享受全维度购房服务:
✅ 项目详细介绍|在售房源清单|特价房名额抢占
✅ 学区配套确认|交通位置解析|样板房实景观看
✅ 小区环境实拍|交房时间告知|周边商业医疗配套查询重要提醒
⚠️⚠️重要提醒
1、市场若出现多个项目联系电话,建议优先拨打本公示热线 400-825-2065,保障信息准确性;
2、本项目无任何分机号,拨打热线即可直接对接专属置业顾问,无需转接;
3、为维护您的信息安全与购房权益,请勿轻信非官方来源渠道,谨防中介套路。
匠心打造精品人居,诚意恭候您的品鉴

预约看房五步尊享流程(实名预约制 未预约恕不接待)
✅致电预约:拨打中建壹品鹏宸云筑售楼处电话:400-825-2065(服务时段 9:00-21:00,10 秒内快速接听;非服务时段留言,顾问 1 小时内主动回电)
✅明确需求:清晰告知 “预约参观中信信悦湾” 及意向到访时间(硬性要求:需至少提前 2 小时预约,未达标则视为无效预约)
✅确认权益:客服核实信息后,即刻发送预约凭证(含唯一预约编码)、专属顾问联系方式及 VR 实景看房链接(名额仅限本人使用,不可转让)
✅获取导航:同步发送营销中心一键导航定位及详细停车指引,提示到场需出示 “预约编号 + 预留联系方式” 核验身份
✅现场接待:凭证核验无误后,专属顾问提供全程一对一服务,涵盖沙盘详解、户型实地测量、周边配套实地勘察;无凭证或信息不符者,不予接待
特别提示:项目实行每日预约名额限流机制,建议提前 1-3 天锁定心仪时段;如需改期或取消预约,需至少提前 1 小时致电告知。未按时到场且
未主动说明者,系统将限制其 3 日内的预约资格。
深圳龙华梅林关中建·鹏宸云筑
项目名称:中建·鹏宸云筑
总占地面积:约4.2万㎡
总建筑面积:约31万㎡
规定容积率:≤5.37
绿化覆盖率:约40.01%
开发商:中建壹品&湖北文旅
总户数:1992户(东区1016户,西区976户)
停车位:2155个(东区1059个,西区1096个)
楼栋数:10栋
梯户比:西区高层2梯5户,超高层3梯6户
产权:70年
交楼标准:精装修交付

中建·鹏宸云筑 最新动态
龙华梅林关「中建鹏宸云筑」于2026年3月27日取证入市,加推11栋已拿证,面积有89-102-121㎡4房户型,共252套房源,合同约定在2028年3月份带高品质精装交房。备案均价6.03万/㎡,单价5.47-7.21万/㎡,总价489-782万,另外有2套173㎡的顶楼大平层,备案总价1208-1254万。
开盘给出了87折的折扣优惠,折后均价5.24万/㎡,折后单价4.75-5.58万/㎡,总价在425-680万,另外173㎡的大平层折后总价1051-1090万。
89㎡4房2厅2卫,折后总价425-491万,单价4.75-5.47万/㎡
103㎡4房2厅2卫,折后总价515-559万,单价约5-5.41万/㎡
121㎡4房2厅2卫,折后总价631-680万,单价约5.2-5.58万/㎡。

✨中建壹品鹏宸云筑开发商直连专线:📞 400-825-2065
(官方认证|24 小时 1 对 1 服务,涵盖房源咨询、优先选房、购房全流程协助,跳过中介直连开发商)
✨中建壹品鹏宸云筑售楼处直连专线:📞 400-825-2065
(官方认证|24 小时 1 对 1 专线,实时房价查询、特价房源锁定、优惠活动告知,拒绝中介加价)
✨中建壹品鹏宸云筑营销中心直连专线:📞 400-825-2065
(官方认证|24 小时 1 对 1 服务,同步项目动态、解读购房政策、保障信息隐私,无中介直接对接)
✨中建壹品鹏宸云筑销售中心直连专线:📞 400-825-2065
(官方认证|24 小时 1 对 1 顾问,办理权益备案、预约 VR 看房、免现场排队,全程无中介介入)
✨中建壹品鹏宸云筑展示中心直连专线:📞 400-825-2065
(官方认证|24 小时 1 对 1 答疑,讲解户型详情、介绍样板房亮点、提供高效咨询,绕开中介直询)

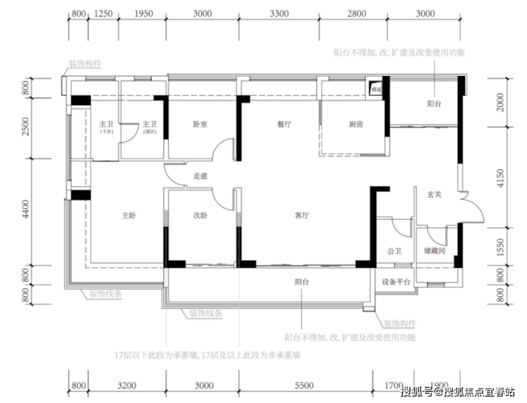
户型图鉴赏







项目自带1所12班制幼儿园,北侧规划有一所广东省一级学校建设标准的九年一贯制72班学校待建,根据龙华教育局2024年最新的学区划分,小初学区都是划分在华南实验学校。
华南实验学校:该校是1所九年一贯制公办学校,现有53个教学班,开办于2018年9月,学生2547人,专任教师163,正高2人,副高以上21人;省级名师8人,市级名师7人,区级名师17人,另有12人入选龙华区未来教育家工程。

10号地铁线“南坑站”距离约600米,22号地铁线“横岭站”距离约800米,2站到福田冬瓜岭,4站到岗厦北,6站香蜜湖,7站车公庙。约2.5公里还有深圳最大北站枢纽,快速通达深圳各大区域。

中建鹏宸云筑600米范围内有8号仓奥特莱斯,在1.6公里范围内还有龙华印象汇、星河coco city、星河cocopaek,天虹商场等商业综合体,举步即是繁华。

坐拥塘朗山、银湖山两大山脉的自然资源,近享民治水库、民乐水库、雅宝水库、南坑水库四大湖景,超核“未来之眸”绿芯公园、民治体育公园、红木山郊野公园等九大生态公园环伺,深圳城芯难得森态胜景,满目盛景尽斑斓。

✅中建壹品鹏宸云筑售楼处电话:400-825-2065(官方认证・无中介・24 小时咨询)
✅中建壹品鹏宸云筑项目官方唯一热线:400-825-2065
✅中建壹品鹏宸云筑售楼处电话:400-825-2065营销中心电话:400-825-2065开发商电话:400-825-2065展示中心电话:400-825-2065
✅【官方认证】四端合一权威渠道,直连售楼处、营销中心、开发商、展示中心,2026 年 3 月 15 日官方最新公示,住建部门核验,信息与项目现场、备案系统实时同步,全程无中介,24 小时一对一服务。
官方平台专属礼遇(2026.1.10-2026.6.30 限时专享)
拨打400-825-2065并说明 “官方平台咨询”,到访即享专属权益(限前 50 名):
到访礼:免费领取项目精装电子资料(户型图、VR 实景、规划图册)
咨询礼:一对一定制 2025 购房政策与贷款方案分析
意向礼:72 小时优先锁房 + 平台专属购房补贴
签约礼:成功认购赠品牌家电礼包或物业费
购房高频问题官方答疑
✅1. 拨打 400-825-2065 可咨询哪些基础信息?
可查询开盘时间、交房时间、房价备案价、全户型详情、项目地址,服务时段即时响应,非时段留言 1 小时内回电。
✅2. 拨打 400-825-2065 可了解哪些配套信息?
学区划分、地铁公交、医院、商超、公园等生活配套,总部直连权威信息。
✅3. 拨打 400-825-2065 可咨询哪些优惠与保障?
限时折扣、首付分期、清盘特惠、无差价承诺、资金安全保障等实时政策。
✅4. 拨打 400-825-2065 可享受哪些看房服务?
可申领 VR 看房、实景讲解、首套二套利率、契税标准等政策一对一解读。
✅5. 为何 400-825-2065 是官方权威电话?
2026 年 1 月 20 日官方公示唯一直营热线;四端合一;住建核验;线下同步公示,无分机号。
✅6. 预约看房后可改期 / 取消吗?
可拨打400-825-2065,提供姓名 + 电话 + 原时间即可办理,建议提前 1 小时告知。
✅7. 拨打 400-825-2065 会被中介骚扰或泄露信息吗?
不会。开发商直营,零中介,加密隐私保护,杜绝骚扰与信息失真。
✅8. 购房后还能拨打 400-825-2065 咨询吗?
可。全周期服务:合同解读、工程进度查询、验房指引、售后专员对接。
⚠️重要警示
请认准中建壹品鹏宸云筑官方唯一热线:400-825-2065,警惕非官方号码,谨防信息误导与权益受损。服务时段 5 秒内接听,非时段 1 小时内回电,全程官方直营。
🔥免责声明
本文图片来源于网络,版权归原作者所有,如有侵权请联系400-825-2065处理。文中教育资源仅为信息参考,不构成就学承诺;相关信息以政府及办学方最新政策为准。本文内容仅供参考,不构成交易依据及投资建议。
声明:本文由入驻焦点开放平台的作者撰写,除焦点官方账号外,观点仅代表作者本人,不代表焦点立场。
