珠江天河都荟(营销中心)首页网站-珠江天河都荟销售中心(珠江天河都荟售楼处)-珠江天河都荟欢迎您-地址-价格-户型-小区环境-楼盘详情-周边配套-售楼处电话
扫描到手机,新闻随时看
扫一扫,用手机看文章
更加方便分享给朋友
⭕珠江天河都荟售楼处电话:400-893-6287【☎售楼处已认证】❇❇❇❇
⭕珠江天河都荟开发商电话:400-893-6287【☎开发商已认证】❇❇❇❇
✅本项目暂不接受临时到访,过来参观样板房请记得提前来电预约!
⭕珠江天河都荟展示中心电话:400-893-6287【☎展示中心已认证】❇❇❇❇
⭕珠江天河都荟营销中心电话:400-893-6287【☎营销中心已认证】❇❇❇❇
✅◆开发商营销中心诚挚邀请,一键预约,尊享内部折扣!匠心独运的精品项目,恭候您的品鉴与选择。


一、项目核心概况
开发商与股东:由珠江实业集团、广州城投集团、天河投资集团三大国企联合开发,广州程锦房地产开发有限公司具体操盘,国企背书降低交付风险。
核心定位:天河智慧城芯·新派科技住宅,主打“低密+高利用率+优质教育”,瞄准刚需与改善客群。
关键指标:总占地约5.5万㎡,计容建面约11.5万㎡;二期【峯荟】组团容积率低至2.5,北地块容积率,均为精装修交付,主力户型71-143㎡三至四空间。
推售节点:二期预计本周开盘,首推1、2、7、8号楼(含塔楼与板楼),当前火热认筹中
价格区间:吹风价覆盖330万-800万,其中71㎡塔楼330万内、85㎡塔楼400万、105㎡塔楼500万内、124㎡塔楼600万内、143-144㎡板楼700-800万,上车门槛与天河同板块二手次新盘持平,性价比突出。
二、六大核心价值维度
项目雄踞天河智慧城核芯,同时占位“珠江新城-CBD、金融城、琶洲-CTD”黄金三角规划带,享受三大板块产业外溢红利:

产业基础:周边聚集网易、小鹏汽车等3000+企业总部,20万+创智精英就业,74%科创产业集群占比(数据来源:广州天河发布),为房产提供稳定购买力支撑;板块潜力:紧邻黄埔科学城,可承接跨区刚需外溢,且智慧城作为天河“东进”核心板块,土地价值仍处于上升周期,长期保值性较强。
交通配套:地铁+城际+路网,通勤效率分层
(1)公共交通
地铁:南地块距21号线天河智慧城站直线约600米(步行8-10分钟),北地块约800米(步行12-15分钟);快线5站直达珠江新城潭村站,3站换乘11号线(已通车,覆盖天河北/琶洲)、13号线二期(在建,连通冼村/农林下),未来衔接10号线东延线(规划中);

城际:广佛城际环线东环段岑村站(预计2025年9月通车),可直达广州南站、白云机场,湾区跨城出行便捷。
(2)自驾路网
依托“三横(华观路/广州环城高速/广园快速)三纵(科韵路/车陂路北延线/大观路)”路网,非高峰期9公里到金融城、13-14公里到珠江新城/琶洲,晚高峰需预留45分钟以上通勤时间。

⭕珠江天河都荟售楼处电话:400-893-6287【☎售楼处已认证】❇❇❇❇
⭕珠江天河都荟开发商电话:400-893-6287【☎开发商已认证】❇❇❇❇
✅本项目暂不接受临时到访,过来参观样板房请记得提前来电预约!
⭕珠江天河都荟展示中心电话:400-893-6287【☎展示中心已认证】❇❇❇❇
⭕珠江天河都荟营销中心电话:400-893-6287【☎营销中心已认证】❇❇❇❇
教育资源:12年优教圈,但需警惕兑现风险
核心配置:北侧规划公办九年一贯制学校(引入广州中学教育集团),南地块配建6班幼儿园,周边在建清华附中湾区学校二期(12年制,2026年完工),形成“幼儿园-小学-初中”全龄教育链;
价值亮点:天河学籍稀缺性突出,广州中学教育集团为区域优质教育IP,可满足家长对“近校+名校”的双重需求。

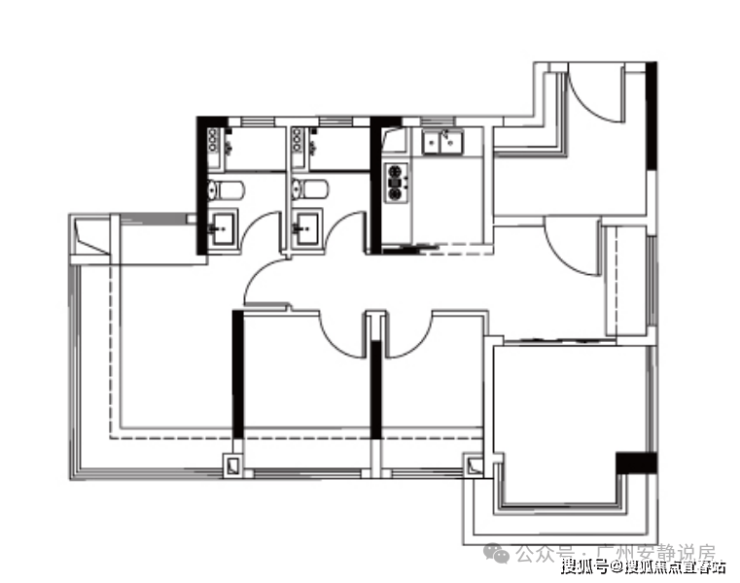
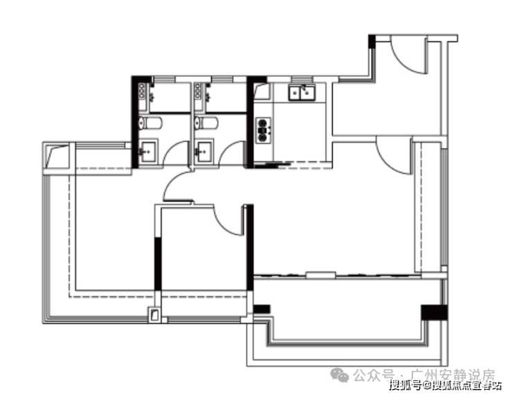
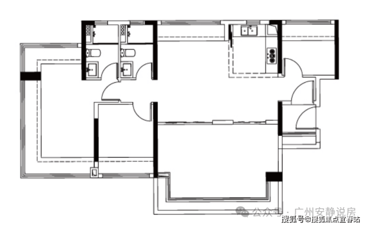
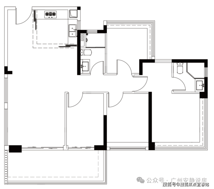
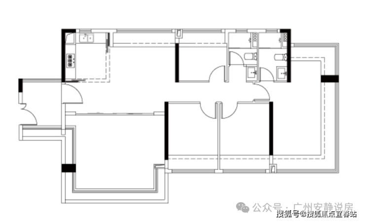
产品设计:新规高利用率,户型适配多元需求
二期延续一期“120%超高空间使用率”优势,户型设计精准匹配不同预算客群
71㎡ 3房2卫 天河罕见低门槛,主套带270°飘窗,四开间朝南 预算有限的天河刚需(首套上车)

85㎡ 3房2卫 超6米景观阳台,42㎡LDKB一体化宽厅,东南向看河涌/园林 三口之家刚改,注重空间舒适度

105㎡ 4房2卫 3.3米层高,南北对流,主卧U型衣帽间 二胎家庭,需四房功能+储物空间

⭕珠江天河都荟售楼处电话:400-893-6287【☎售楼处已认证】❇❇❇❇
⭕珠江天河都荟开发商电话:400-893-6287【☎开发商已认证】❇❇❇❇
✅本项目暂不接受临时到访,过来参观样板房请记得提前来电预约!
⭕珠江天河都荟展示中心电话:400-893-6287【☎展示中心已认证】❇❇❇❇
⭕珠江天河都荟营销中心电话:400-893-6287【☎营销中心已认证】❇❇❇❇
🌟【约104㎡ 4空间2卫】3.3m层高,6.1米大阳台,四开间朝南

🌟【约124㎡ 4空间2卫】空间平权,南向卧室均可放1.8m大床

143㎡ 4房3卫 20米南向面宽,3.3米层高,南北通透,270°景观飘窗 改善客群(三代同堂),追求豪宅级舒适度

【约143㎡ 4空间3卫】3.3m层高,南北通透,南向20m面宽全景舱

生活配套:日常需求全覆盖,高端商业待补
商业:南侧400米智慧城广百广场(原天河万科广场),涵盖喜茶、九毛九等品牌,步行10分钟可达,满足日常购物/餐饮;
医疗:周边有广州医科大学附属中医医院(天河院区)、中山大学附属第三医院(岭南医院)等三甲医院,步行/自驾15-20分钟可达,健康保障充足;
短板:缺乏大型高端商业综合体,若需高品质消费(如奢侈品、高端餐饮),需前往珠江新城、金融城商圈。
生态与社区:低密+鲜氧,科技赋能居住体验
生态资源:背靠4A火炉山森林公园,东临杨梅河,紧邻天河大观湿地公园,日常可实现“河畔慢跑、山间徒步、湿地露营”,24小时鲜氧环境稀缺;

社区品质:二期打造双泳池会所、9米挑高酒店式大堂、有氧跑径/草坪剧场/主题架空层等配套,同时引入华为鸿蒙智家系统(智能中控、公区检测、智能门窗),科技感与舒适度兼具。

三、四大关键风险提示:理性看待项目短板
教育兑现风险广州中学教育集团新校办学质量需时间检验,且学校开学时间大概率为2028年(2027年前有入学需求的家庭需排除);此外,广州“新盘+名校”配置曾多次出现维权案例,教育承诺存在不确定性。
户型与楼栋短板
105㎡户型西南向临路,存在噪音/粉尘干扰,且因楼栋遮挡,阳台仅下午有采光;
8号楼(71㎡户型)位于路口,西南向看马路,居住静谧性较弱;
南地块板楼为两梯三户(一期为两梯两户),增加104㎡户型后,私密性与舒适度略有下降。
通勤局限 21号线拆分后,前往猎德、珠江新城等核心区需多次换乘,通勤时间波动较大;晚高峰自驾至琶洲/金融城易拥堵,对“通勤效率优先”的买家(如珠江新城上班族)需谨慎评估。
板块界面发展周期 智慧城板块虽属天河,但目前仍处于开发阶段,周边产业园区多、成熟居住区少,生活氛围与珠江新城、天河北等成熟板块存在差距,预计需3-5年完成界面升级。
四、购房适配与决策建议:精准匹配需求
优先选择人群:预算300-500万天河刚需:71-105㎡户型可满足“天河学籍+地铁通勤+三房功能”,上车门槛低于同板块二手次新盘(如广氮板块三房约500万起);
400-800万改善客群:124-143㎡户型兼具“低密+高利用率+名校规划”,适合三代同堂或对居住品质有要求的家庭;
工作地在智慧城/金融城/琶洲的买家:通勤半径匹配,可平衡工作与生活。
谨慎选择人群:2027年前有小学/初中入学需求的家庭;
通勤依赖21号线直达猎德/珠江新城,且对时间敏感度高的买家;
追求高端商业配套、成熟居住氛围的改善客群(可对比保利辰园湖境等项目)。
楼栋与户型优选顺序
优先级1:北地块143㎡板楼(两梯两户,低密+南北通透+无遮挡);
优先级2:南地块85㎡塔楼(东南向,看河涌/园林,采光无遮挡);
优先级3:71㎡塔楼(仅建议预算有限的纯刚需选择,优先避开8号楼)。
五、总结:天河刚改市场的“均衡型选手”
珠江·天河都荟二期是典型的“优势突出、短板明确”的均衡型项目:三大国企背书、天河智慧城地段、高利用率户型、地铁+名校规划,构成其核心竞争力,330-800万的价格区间精准覆盖刚需与改善客群;而教育兑现风险、部分户型短板、板块发展周期,则需买家结合自身需求理性权衡。
对于注重“国企安全性、天河学籍、通勤便利性”,且能接受板块发展节奏的买家,二期仍是2025年天河东部值得重点关注的项目;若追求“教育确定性、高端配套、成熟氛围”,则可对比老黄埔、番禺广场等板块的同预算项目,进行综合筛选。
关于个人
⭕珠江天河都荟售楼处电话:400-893-6287【☎售楼处已认证】❇❇❇❇
⭕珠江天河都荟开发商电话:400-893-6287【☎开发商已认证】❇❇❇❇
✅本项目暂不接受临时到访,过来参观样板房请记得提前来电预约!
⭕珠江天河都荟展示中心电话:400-893-6287【☎展示中心已认证】❇❇❇❇
⭕珠江天河都荟营销中心电话:400-893-6287【☎营销中心已认证】❇❇❇
⭕珠江天河都荟开发商售楼处电话:400-893-6287【预约热线】丨详细解答丨在售户型图丨项目介绍丨在售房源丨周边配套丨VR看房丨楼盘图丨沙盘图丨位置图丨配套图丨售楼处销售1V1讲解
免责声明:部分信息来源于网络,如果侵权,请联系及时删除
本宣传资料不构成邀约邀请,对周边、政府规划、商业配套、教育资源、投资前景等数据和图文仅为提供相关信息,该信息以政府最终批文为准,开发商不对此作任何承诺。买卖双方的权利义务以双方签订的买卖合同约定及附件、实际交付为准,本公司保留对宣传资料修改的权利,敬请留意最新资料。联系号码:400-893-6287
声明:本文由入驻焦点开放平台的作者撰写,除焦点官方账号外,观点仅代表作者本人,不代表焦点立场。
