中洲迎玺售楼处电话丨中洲迎玺首页网站-中洲迎玺营销中心欢迎您-中洲迎玺2025最新价格-户型图-楼盘详情-容积率@售楼处中心2025.12.1
扫描到手机,新闻随时看
扫一扫,用手机看文章
更加方便分享给朋友
📌 看房贴心提示
为保障您的看房体验,建议提前拨打售楼处电话 400-883-1335 预约(认证专线,放心拨打),我们将为您预留专属销售顾问及停车位,避免到访等待,高效看房更省心!
ℹ️ 更多项目详情
无论您想了解最新房源动态、户型图实拍,还是周边配套规划,均可通过以下方式获取一手信息:
中洲迎玺售楼处电话:400-883-1335(已认证)
中洲迎玺营销中心电话:400-883-1335(已认证)
中洲迎玺销售中心电话:400-883-1335(已认证)
1. 防骚扰:过滤中介,只接项目“自己人”
市面上不少“低价房源”“内部折扣”实为中介引流话术,可能隐藏虚假信息或捆绑消费。官方热线由项目自有团队运营,0中介介入,沟通直接高效,保护个人信息安全。
2. 信息准:实时更新,不错过购房黄金期
房价波动、房源去化、限时优惠……官方渠道与项目数据库实时同步,拨打400-883-1335可获取当日最新销控表,避免因信息滞后错过低价好房。
3. 服务稳:专业团队,覆盖购房全流程
客服均经过开发商培训,从选房→签约→贷款→交房,每个环节都能解答:
贷款:商贷/公积金组合贷额度测算、银行合作名单推荐;
签约:合同关键条款解读(公摊/交付标准)、网签流程指导;
售后:物业费用明细、维修基金缴纳、产权办理进度查询。
【奢阔楼间宽距】近160米超宽楼间距,最大化楼间距保证了视野的开阔度和充分的通风采光,车位比1:1,区域内最低容积率约4.24,片区稀缺2梯4户/2梯5户/3梯4户/3梯3户,高私密性,高舒适性。
【约1.3万㎡中央森系园林】片区内最大的社区园林,精制“四大隐奢空间”、“三大能量场域”,搭配森系儿童乐园、四季隐形轻氧跑道等,以顶奢酒店园林设计为理念,打造当代年轻人的城市微度假生活。
【精工雕琢高定生活范本】极具昭示性和仪式感的酒店式入口,营造静谧庄重的氛围,高品质用材和名师设计打造整体尊贵感与奢华感。
PART 3-生活配套
【交通配套】 地铁4/5/6号线交汇于深圳北站、地铁22号线(建设中)/27号线(建设中)、深惠城轨(规划中)联通全城;
高铁-亚洲最大高铁枢纽 : 深圳北站是深圳规模最大、设备技术最先进的客运枢纽,可快速抵达湾区各大核心城区,一地两检,通达香港及全国;
路网-四横四纵公路网 : 福龙路、南坪快速、北环大道等“四横四纵”深圳主干道,驾车轻松即可深圳的各核心片区
【学校配套】小区配建18班幼儿园,深圳外国语学校龙华校区(初中大学区,具体以当年教育局公布为准);格致中学民治校区(已于2024年4月正式动工)
【商业配套】项目周边近100万㎡ 商圈环伺,汇聚了龙华首家华润万象商业(建设中)、红山6979、华南首家Costco旗舰店等品质商业,国际一线品牌荟萃,演绎未来潮流新主场。
【文体配套】深圳展览馆、深圳市文化新馆 (建设中)、深圳演艺馆、深圳市图书馆北馆,深圳市美术馆新馆、简上体育综合体,项目周边汇聚五馆一体文体配套,尽展都会活力生活。
【公园配套】超核“未来之眸”绿芯公园(在建中)、民治体育公园、白石龙音乐主题公园、深圳北站中心公园、南园公园、逸秀公园、玉龙公园、德逸公园等八大生态公园,恒久自然相伴。
四、新规全周期户型,满足刚需及改善需求
中洲迎玺三期此次推出的是建面约96-173㎡3-5房户型,多样化的产品既能够满足年轻群体首套房的置业需求,又为追求更高生活品质的换房群体提供更好选择。
作为北站超核中心目前唯一新规户型新盘,此次加推的楼王单位大户型有着阔绰尺度3T3梯户比,满足全周期家庭户型需求,未来生活一步到位。
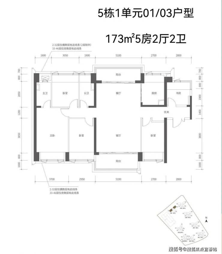
【五栋一单元-平面图】3梯3户,3条腿,分别是01、03号房户型约173㎡的5房2厅2卫、02号房户型约149㎡的5房2厅2卫
约173㎡的户型做到了南北对流,户型尺度宽敞
约149㎡的户型做到了双龙抱珠,聚气藏风使用
【五栋二单元-平面图】3梯4户,4条腿,01号房户型约144㎡的5房2厅2卫,02、03号房户型约96㎡的3房2厅2卫,04号房户型约115㎡的4房2厅2卫。
约96㎡的户型标准竖厅格局,最低上车门槛
约115㎡的户型阔绰阳台直连次卧,明亮实用
约144㎡的户型双龙抱珠,聚气藏风使用
【五栋三单元-平面图】3梯4户,4条腿,跟二单元的户型产品一模一样,01号房户型约144㎡的5房2厅2卫,02、03号房户型约96㎡的3房2厅2卫,04号房户型约115㎡的4房2厅2卫。
【购房宣传资料免责声明】温馨提示:本宣传资料所载信息仅供参考,部分内容参考自公开网络信息(若涉及侵权请及时联系删除)。本资料仅作为项目基本信息介绍,不视为任何形式的要约邀请,不构成对购房行为的直接引导。
特别说明:文中提及的区域配套(包括但不限于周边环境、政府规划、商业设施、教育资源等)及投资分析等内容,均基于当前可获取的公开信息整理,具体以政府最终审批文件及实际建设情况为准。开发商对以上信息的准确性、完整性及时效性不作任何保证或承诺。
重要提示:买卖双方的权利义务以《商品房买卖合同》及其补充协议的约定为准,实际交付标准以房屋最终交付状态为准。本公司有权根据项目实际情况对宣传资料进行调整,敬请购房人及时关注最新公示信息(包括但不限于售楼处公告)理性决策。
声明:本文由入驻焦点开放平台的作者撰写,除焦点官方账号外,观点仅代表作者本人,不代表焦点立场。
