海棠墅国际度假康养中心售楼处(三亚)首页网站→海棠墅国际度假康养中心详情
扫描到手机,新闻随时看
扫一扫,用手机看文章
更加方便分享给朋友
海南海棠墅国际度假康养中心售楼处电话:400-909-8161【售楼中心】
海棠墅国际度假康养中心营销中心电话:400-909-8161【营销中心】
提前预约售楼处看房,可享受线上预约折扣,一对一专属置业顾问服务。
楼盘详情介绍(楼盘项目怎么样?多少钱一平?什么时候交楼?有什么户型?周边有什么学校?物业费多少?),想了解更详细楼盘资料和最新折扣价格,请拨打售楼处电话400-9098-161,销售会为您详细介绍。

【项目基础信息】
开发商:四川宏凌集团
占地面积:249亩
建筑面积:约99000㎡
交房时间:2023年09月30日
容积率:一期0.6
绿化率:40%
产权年限:40年
总楼栋户数:14栋180户(叠拼墅)
总层高:4层 (1梯2户)
每层层高:1-3层3.6米,4层3.5米
朝向:南北通透
物业:中海物业
物业费:叠拼6元/平/月 独栋别墅11.8元/平/月
【区域】
国家海岸——三亚·海棠湾,全国知名“国家海岸”,建设三大国家级品牌:国际顶级品牌滨海酒店带、世界级游艇休闲区、国际级医疗及康养基地;对标迈阿密、黄金海岸等世界滨海度假区,打造代表中国热带滨海旅游新品牌!
北纬18°——位居北纬18°黄金度假带,堪比马尔代夫、夏威夷、巴厘岛等颐养度假胜地,海岸线22公里,平均气温25℃,全年日照降雨适中,是海南岛中当之无愧的珍宝之湾。

【交通】
·距离亚龙湾高铁站约16公里
·距离三亚市中心约28公里
·距离凤凰机场约35公里
【景点】
风景名胜众多,无尽海岸风光
蜈支洲岛5A风景区、后海、妈祖庙、椰子洲岛、南田温泉、亚特兰蒂斯水世界、海昌梦幻海洋不夜城、HELLO KITTY主题乐园(在建中)等。

【医疗】
毗邻301医院,鼎级医疗资源荟萃
紧邻301解放军总医院海南医院、近享国寿嘉园康复医院、广安门医院(在建中)、恒大妇产医院(在建中)、北大口腔(在建中)等。

【教育】
中国人民大学附属中学三亚学校等。

【购物】
亚洲Zui大CDF单体免税店、总建筑约226万方华润超级万象城(规划中)、SKP商场(规划中)等。

【酒店】
亚特兰蒂斯、艾迪逊、洲际、威斯汀、香格里拉、华尔道夫、文华东方、四季等35家一线滨海五星级酒店。

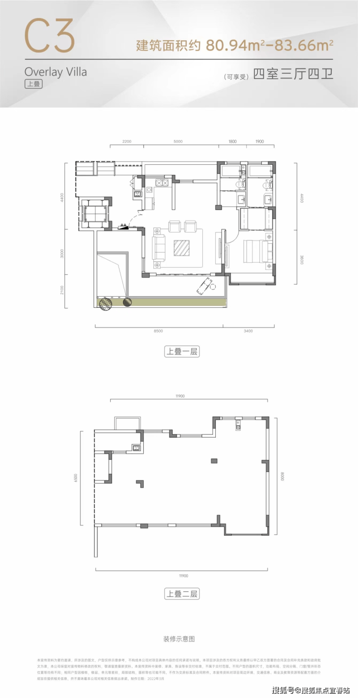
·叠墅--C户型



·独栋--A2户型
·独栋--B户型




海南海棠墅国际度假康养中心售楼处电话:400-909-8161【售楼中心】
海棠墅国际度假康养中心营销中心电话:400-909-8161【营销中心】
提前预约售楼处看房,可享受线上预约折扣,一对一专属置业顾问服务。
楼盘详情介绍(楼盘项目怎么样?多少钱一平?什么时候交楼?有什么户型?周边有什么学校?物业费多少?),想了解更详细楼盘资料和最新折扣价格,请拨打售楼处电话400-9098-161,销售会为您详细介绍。
免责声明:部分信息来源于网络,如果侵权,请联系及时删除,联系电话:400-9098-161
声明:本文由入驻焦点开放平台的作者撰写,除焦点官方账号外,观点仅代表作者本人,不代表焦点立场。
