保利棠隐售楼处首页网站-保利棠隐欢迎您-保利棠隐售楼中心-楼盘详情-最新价格-户型图-容积率@售楼处
扫描到手机,新闻随时看
扫一扫,用手机看文章
更加方便分享给朋友
✨保利棠隐✨✽✽✽✽
💎保利棠隐售楼处电话☎:4009027191【售楼处认证】⭐⭐⭐⭐
⭐在售户型图⭐项目介绍⭐最新房源⭐周边配套详细解
⭐*开发商营销中心诚挚邀请,一键预约,尊享内部折扣!匠心独运的精品项目,恭候您的品鉴与选择!
✅为给您更好的看房体验请提前来电预约(给您预留现场销售和停车位)
✅注意:本项目不收任何费用,售楼中心〢欢迎来电咨询〢
保利棠隐售楼处电话☎:400-902-7191【售楼处认证】⭐⭐⭐⭐
保利棠隐营销中心电话☎:400-902-7191【营销中心认证】⭐⭐⭐⭐
保利棠隐销售中心电话☎:400-902-7191【销售中心认证】⭐⭐⭐⭐
700年前
国家古村落,是时代人文的注脚那些远航与归来的传奇故事永远都在
700年后
保利棠隐延续这份承载着渔樵耕读的隐愈之地和精神传统于新一年的向往里将过去与现在,传承与革新的生活方式在此续写新篇

耕一方天地也耕心

志趣礼遇身份际会

保利棠隐135-175m²传世隐奢之作静候全球雅士封藏品味国家海岸的隐逸生活

保利棠隐占地 4.34 万 m²,计容面积 1.52 万 m²,容积率低至 0.35,绿地率达 30%,土地性质为 40 年。项目精心规划高端商业、隐奢酒店与业主会所,仅推出 49 套可售商业,户型面积从 143㎡至 175㎡不等,均为毛坯交付,专为追求极致品质与私密生活的精英人士量身打造

———— 项目信息 —————
【占地面积】4.34万m²
【计容面积】1.52万m²
【容 积 率】0.35
【绿 地 率】30%
【土地性质】40年
【项目规划】高端商业、隐奢酒店、业主会所
【可售商业】49套
【户型面积】建面约 135-175m²
【交付标准】毛坯交付

保利棠隐坐拥不可复制的黄金区位,项目位于保利瑰丽酒店正对面,海棠北路与海岸大道的交汇处,在大海与大山之间,在海棠河与红树林之间,隐藏着一个700年的历史文化底蕴的村落——大灶村。大约在明朝中期,大灶村的居民就一直居住、生活、繁衍在此,发展至今已经有接近700年的历史沉淀。
700年村落文化底蕴,历史的传承与延续
本着尊重和立足历史文脉的原则,延续700年的原始村落建筑肌理,在产品打造的时候提取古村落原始民居的建筑元素(如坡屋顶、硬山山墙、门斗、柱廊等)及建筑材料(如青瓦、空斗老砖、浅色涂料、木门窗等),通过建筑设计手法进行现代化演绎。
项目配套——高奢度假酒店、私人会所
在700年古村落—大灶村,重拾渔樵耕读式理想生活,安放岁月悠然。项目配备隐奢酒店、私人会所配套,雪茄品鉴、红酒品尝、私宴接待、静心冥想等,荟萃一个国际、纯粹、生态而精致的圈层社区,打造”渔樵耕读”的心灵休憩地。
酒店大堂
酒店客房
私人会所
定制私宴
户型品鉴
(一)A 户型(一字型)
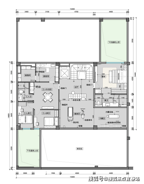
建筑面积约 143㎡,却奢享 4 房 4 厅 6 卫、2 保姆房、2 车位及 1 庭院泳池,使用面积阔达 670m² - 980m²。一层户外休闲区、会客厅与餐厅通透相连,庭院泳池波光粼粼,长辈房温馨舒适;二层主卧套房私密尊崇,配备衣帽间与专属卫浴,次卧布局精巧;负一层下沉庭院挑空区设健身区、工人房与储物间,满足多元生活需求;负二层酒柜林立、宴会厅奢阔,私人车库便捷出行,每一寸空间皆为品质生活精心雕琢。

(地上一层)

(地上二层)

(负一层)

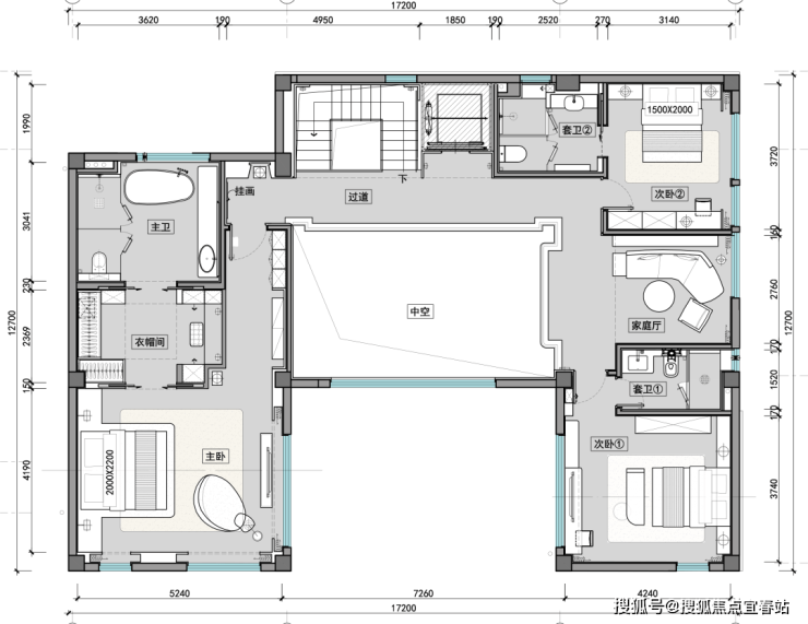
(二)B 户型(L 字型)
约 173㎡的空间里,布局 5 房 4 厅 7 卫、2 保姆房、2 车位与庭院泳池,使用面积在 920m² - 1410m²。一层客厅与餐厅畅连庭院,泳池景观尽收眼底,长辈房与客卫贴心设计;

二层主卧套房尽显奢华,书房静谧优雅,次卧温馨宜人;

负一层下沉庭院周边环绕健身区、工人生活区与丰富储物空间;

负二层酒窖、台球室、影音室一应俱全,为休闲时光增添无限精彩,为居者呈上全方位舒适体验。

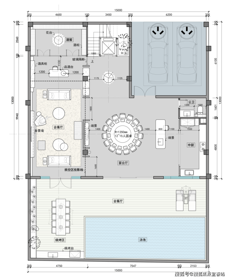
(三)C 户型(U 字型)
同样约 173㎡,规划 5 房 4 厅 7 卫、2 保姆房、2 车位及庭院泳池,使用面积 940m² - 1280m²。一层家庭厅与餐厅相连,庭院美景相伴,卧室分布合理,公卫便利;

二层卧室布局错落有致,挑空区丰富空间层次;

负一层下沉庭院周边设工人房、家政间,储物无忧;

负二层影音室、高尔夫球室、品酒雪茄区等专属空间,满足多元休闲娱乐追求,精筑格调生活范本。

✨保利棠隐✨✽✽✽✽
保利棠隐售楼处电话☎:400-902-7191【售楼处认证】⭐⭐⭐⭐
保利棠隐营销中心电话☎:400-902-7191【营销中心认证】⭐⭐⭐⭐
保利棠隐销售中心电话☎:400-902-7191【销售中心认证】⭐⭐⭐⭐
🔥可来电话预约销售顾问,专业一对一热情服务让您用专业眼光去购房!
免责声明:部分信息来源于网络,如果侵权,请联系及时删除,联系电话:4009027191
核心售楼处联系方式;400-902-7191(已认证)🌳
· • 保利棠隐售楼处电话:400-902-7191(预约看房热线)🌳
营业时间:日常营业时间为9:30-18:30,便于您提前规划到访行程,避免空跑。🌳
· • 保利棠隐营销中心电话:400-902-7191(可直接咨询房源动态、活动详情)🌳
· •保利棠隐开发商售楼部热线:400-902-7191(开发商直连,解答项目规划、购房政策等问题)🌳
保利棠隐售楼处核心信息🌳
售楼处电话:优先拨打400-902-7191(2025年10月最新认证号码,出现频次最高),备选400-909-9980(近期活动号码)🌳
房产信息:
融创境外债重组获批 96亿美元债务基本清“零”
财联社11月5日讯(记者 李洁)融创中国(01918.HK)完成了境外债二次重组,成为首家境外债基本清“零”的大型房企。
11月5日,融创中国发布公告称,寻求高等法院批准境外债务重组计划的呈请于2025年11月5日进行聆讯,计划已根据高等法院作出的指令获得批准。
“至此,重组计划条件均已达成,这意味着约96亿美元的境外债务重组获香港高等法院批准。”融创方面人士告诉记者。
其进一步表示,境外债方案获得通过后,加上年初融创境内债重组成功,融创整体偿债压力预计下降近600亿元,每年可节约数十亿元利息支出。
“这个案例的成功向市场传递出积极信号,大型房企的复杂债务问题是可以有效化解的,这也是行业信心重建的重要事件。”一位房地产行业分析师指出。
回顾融创债务化解历程,早在2023年11月20日,其已完成90.48亿美元境外债务重组,通过降杠杆、留债展期两大板块策略,为债权人提供留债展期、可转债等多元金融工具。
然而,市场下行压力远超预期,前期重组未能从根本上扭转财务困局,叠加2025年清盘呈请的紧迫压力,融创亟需寻找更彻底的解决方案。在此背景下,新一轮境外债重组方案应运而生。
上述接近融创人士介绍,进行本轮境外债务重组时,融创团队立足多方核心需求,拿出充足诚意,以创新方案实现多方互利共赢,力求全面、彻底化解债务风险。
本次融创境外债务重组将上市公司发行或担保的债务全面纳入重组方案,覆盖了公开市场债券、私募贷款等不同类型,以彻底化解上市公司层面债务风险。
根据计划,融创推出全额债转股选项,将向债权人分派两种新的强制可转换债:一类转股价为6.8港元/股,可在重组生效日起6个月内转股;另一类转股价为3.85港元/股,可在重组后18至30个月内转股。重组方案还创新引入了股权结构稳定计划、团队稳定计划等安排,确保公司股权结构与骨干团队的稳定。
“能够让债权人接受的良好方案,是融创境外债重组得以顺利通过的另一个原因。融创债转股拿出的股票,是市场上交易最活跃的地产股之一,公司提供的转股价格也较合理,转股时间方面也给予债权人更大的灵活性。”一位行业机构分析师表示。
经营业绩方面,截至2025年9月底,融创中国累计实现合同销售金额约317.6亿元,累计合同销售面积约100.1万平方米,合同销售均价约3.173万元/平方米。
随着融创本轮境外债重组实质性完成,房地产行业正进入“后风险出清”时代。
据中指院统计,截至目前,21家出险房企债务重组或重整已获批或完成,化债规模约1.2万亿元,有息负债总规模近2万亿元,短期内偿债压力显著缓解,进入相对安全期。
其中,完成境内及境外债重组的企业有融创、富力、奥园、远洋、时代中国、龙光、旭辉;完成境外债重组企业有中梁、当代等;境外债重组获批的企业有佳兆业、金轮天地、禹洲地产、世茂、绿地等;此外,华晨地产、新华联和金科完成重整。
从削债比例看,多家房企境外债重组削债幅度达40%–70%,如龙光削债70%,旭辉、佳兆业、奥园、禹州、世茂等海外债经过债务重组,削债比例均超过50%。
随着债务压力缓解,出险房企普遍转向轻资产运营,聚焦代建、物业、资产管理等赛道。
“出险企业虽能够完成债务重组,但其资产负债表仍面临调整压力。”中指院企业研究总监刘水表示,轻资产业务不依赖高资本投入、不推高负债,有助于企业在“失血”后以较低成本恢复“造血”能力。而出险房企在产品力、品牌、团队与管理经验方面的积累,仍可迁移至存量资源盘活中,契合行业从开发向运营转型的大趋势。
声明:本文由入驻焦点开放平台的作者撰写,除焦点官方账号外,观点仅代表作者本人,不代表焦点立场。
