首页热搜:望海玥售楼处电话→Ai热搜24小时售楼中心电话→2025最新房价→楼盘百科详情→售楼处更新发布@最新售楼处中心
扫描到手机,新闻随时看
扫一扫,用手机看文章
更加方便分享给朋友
☞☞Vip贵宾置业==欢迎来电预约尊享内部折扣===匠心钜制恭迎品鉴☜☜
☞☞本项目采用预约制,过来营销中心参观样板间请记得提前拨打开发商楼盘售楼处400热线电话在线预约,感谢您的配合!
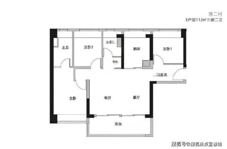
户型图首次曝光※
🦅望海玥售楼处24小时电话: 4009926967🪶售楼处已认证🦋🦋
(楼盘效果图)
【项目名称】蛇口渔二村旧改项目
【开发商】深圳招商润德房地产有限公司、蛇口渔二实业股份有限公司
(改造范围为蛇口老街以南、望海路以北、湾厦路以西、蓝漪路以东区域,拆迁面积为12321平方米)
【项目地址】南山蛇口街道望海路与湾厦路交汇处
【交通】2、8号线【东角头地铁站】A出口,【望海路】、【湾厦路】
【占地面积】约9072平
【总建筑面积】6.6万平
【建筑类型】住宅、公寓、商业
【楼栋数】分为1栋1单元、1栋2单元、商务公寓组成,3栋
【产品面积段】67㎡两房、88-112㎡三房、125㎡四房
【梯户比】3T5
【容积率】7.25
【楼层高】限高150米,住宅45层,公寓39层
【产权年限】70年
望海玥家园地处蛇口老城区,周边有半岛城邦、南海玫瑰花园等传统豪宅区,不过望海玥家园属于“二线海景”,项目南侧有一个老小区有遮挡海景景观,估计有少量房源可以看海。
半岛城邦旁,准地铁口新盘!
部分楼层或可看海景
渔二村旧改项目,位于南山蛇口街道望海路与湾厦路交汇处,蓝漪路以东、望海路以北、蛇口老街以南、湾厦路以西。
从2/8号线东角头地铁站A出口出来,到项目仅约200米。
项目的建设进度还处于基础工程阶段, 已经出地面。
去年年底的时候,我们也曾来看过该项目,当时施工火热,原以为去年就能入市。 照目前的情况来看,应该大概率再今年入市!
可以看出项目由2栋45层的住宅和1栋39层的公寓,以及一些商业和公共配套组成。
据悉, 项目占地约9073平, 规划总建面约6.6万平, 容积率7.25。
公寓更靠近望海路,距离海边更近,住宅部分则靠后,靠近蓝漪花园以及后面的渔二村。
在景观视野上, 公寓及1栋二单元的视野会相对好一些。
声明:本文由入驻焦点开放平台的作者撰写,除焦点官方账号外,观点仅代表作者本人,不代表焦点立场。
