后海招商玺(开发商售楼处电话)首页网站-后海招商玺营销中心位置-2025最新房价-楼盘详情-最新价格-户型图-容积率@售楼处最新发布2025-11-22
扫描到手机,新闻随时看
扫一扫,用手机看文章
更加方便分享给朋友
🎃后海招商玺售楼处电话:400-802-8628【☎☎售楼处电已认证】🎃
🎃后海招商玺营销中心电话:400-802-8628【☎☎售楼处电已认证】
🎃后海招商玺开发商电话:400-802-8628【☎☎开发商电已认证】
🎃本项目暂不接受临时到访,过来参观样板房请记得提前来电预约!
为您安排楼盘现场销售全程接待并讲解,给您更贴心的看房体验!
Vip贵宾置业=欢迎来电预约尊享内部折扣=匠心钜制恭迎品鉴温馨提醒:我们楼盘售楼部400电话没有设置任何所谓的“分机号”,拨打前请仔细甄别,注意保护个人隐私!谨防上当!
✅ 本项目暂不接受临时到访,过来参观样板房请记得提前来电预约!
✅ 为您安排楼盘现场销售全程接待并讲解,给您更贴心的看房体验!
后海招商玺楼盘基础资料
后海招商玺名称:备案名《NNN》暂未备案,推广名:后海招商玺,别名:后海玺家园、后海招商玺家园、招商后海玺家园
后海招商玺位置:深圳市南山区招商街道后海大道与工业七路交叉口
后海招商玺开发商:招商蛇口
后海招商玺 物业公司:招商物业
后海招商玺物业费:13.8元/㎡/月
后海招商玺开盘时间:预计2025年12月
后海招商玺 交楼时间:预计2028年底
后海招商玺占地面积:约1.50万㎡
后海招商玺总建面:约15.08万㎡
后海招商玺计容总建筑面积:约9.88万㎡
后海招商玺容积率:6.59
后海招商玺业态分布:3栋住宅、1栋回迁房、部分商业
后海招商玺户型:197㎡、237㎡、246㎡、105㎡
后海招商玺梯户比:2梯2户、3梯3户、N梯7户
后海招商玺总层高:1栋1单元21层、1栋2/3单元36层、1栋4单元46层
后海招商玺单层层高:3.3米
后海招商玺总户数:548户(首推42套2个户型:197㎡和237㎡)
后海招商玺车位数:约700个
后海招商玺车位比:约1:1.28
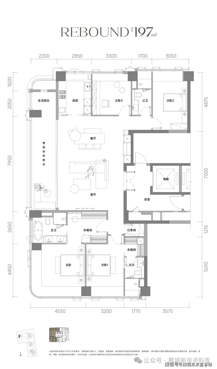
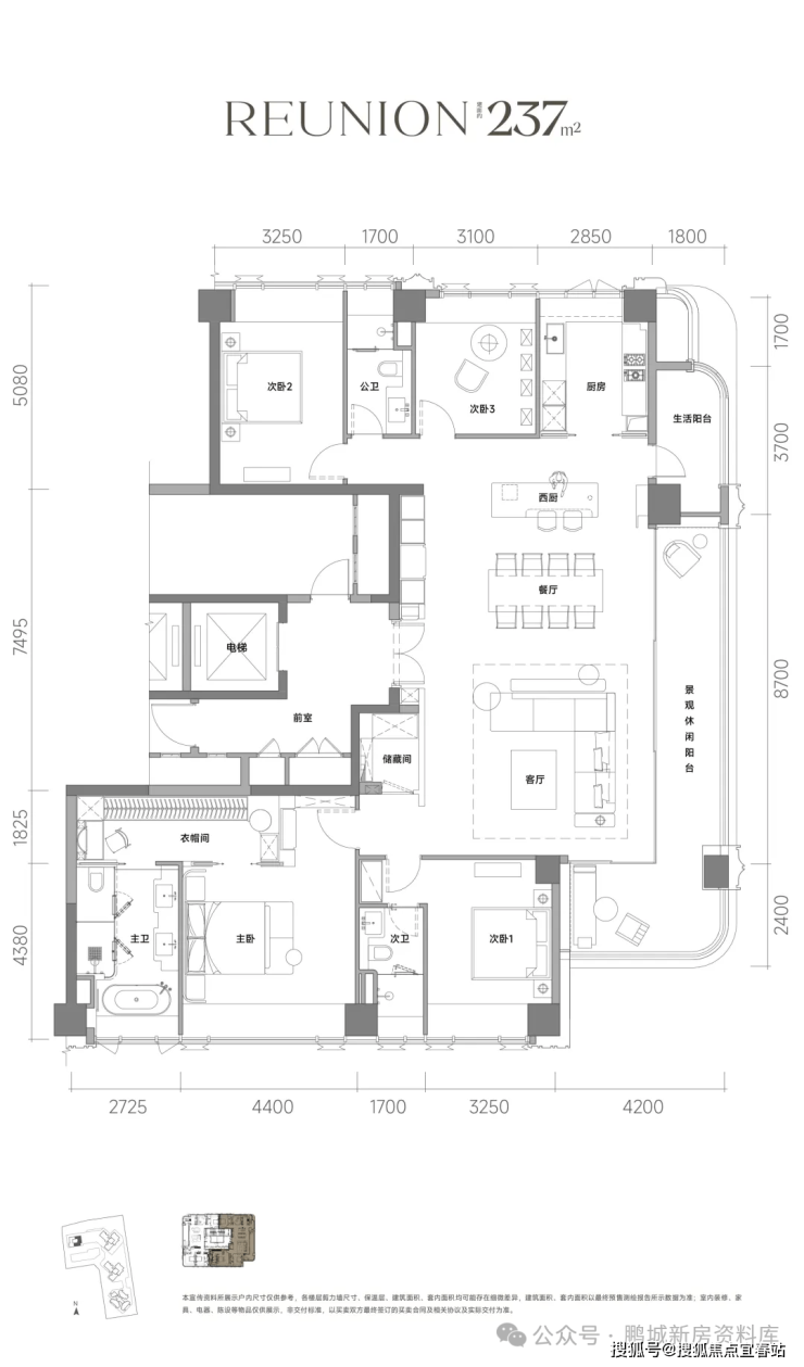
后海招商玺户型图:
后海招商玺商品房均为住宅大平层,由197㎡、237㎡、246㎡共3种户型组成,回迁房均为105㎡户型。以下是后海招商玺商小区楼栋分布效果图、首推2个户型197㎡和237㎡的户型图:
以下是后海招商玺小区楼栋分布效果图:
🎃后海招商玺售楼处电话:400-802-8628【☎☎售楼处电已认证】🎃
🎃后海招商玺营销中心电话:400-802-8628【☎☎售楼处电已认证】
🎃后海招商玺开发商电话:400-802-8628【☎☎开发商电已认证】
以下是后海招商玺197㎡户型图:

以下是后海招商玺237㎡户型图:

以下是后海招商玺1栋1单元平面图(197㎡+237㎡):

🎃后海招商玺售楼处电话:400-802-8628【☎☎售楼处电已认证】🎃
🎃后海招商玺营销中心电话:400-802-8628【☎☎售楼处电已认证】
🎃后海招商玺开发商电话:400-802-8628【☎☎开发商电已认证】
如有问题欢迎来电咨询,来电即可享受买房优惠!400-802-8628
预约来电尊享购房优惠,可预约案场内部销售人员,专业一对一热情服务,让您用专业眼光去买房。
售楼处电话是多少?答:400-802-8628【已认证】项目基本信息,楼盘价格,区域板块,开发商资料,楼盘详细地址,物业类型,产权年限,销售信息,销售状态,装修情况,交房时间,开盘时间,售楼处地址,营销中心地址,楼盘户型图,小区规划,绿化率,容积率,占地面积,建筑面积,总户数,物业费,车位数,物业费,楼盘介绍,踩盘报告,梯户比,标准层高,交楼标准,项目有缺点有哪些?是否有团购?找开发商买房便宜?还是找中介买房便宜?最新折扣是多少?最新房价是多少?房价走势,楼盘最新资讯,楼盘最新动态,价值分析报告,周边商业配套,教育配套,交通配套,医疗配套,周边热门楼盘,房价行情解读,
免责声明
1、文章图片来源于微信搜索或百度搜索引擎,我方非相关图片的原创作者,也不对相关图片及内容享有任何权利。
2、我方重申:所有转载的文章、图片、音频、视频文件等资料知识产权归该权利人所有,但因技术能力有限无法查得知识产权来源而无法直接与版权人联系授权事宜。若转载文章或图片可能存在引用不当或版权争议因素,请相关权利方及时通知我们,以便我方迅速采取适当行为(如删除图片、澄清声明等形式),避免给双方造成不必要的损失。
3、本宣传资料对项目周边幼儿园、学校等教育资源的介绍旨在提供相关信息,并不意味着我方对就学安排作出承诺。教育资源的名称、办学性质、办学规模、学位设置、开学(班)时间、招生条件、收费标准及招生区域存在调整的可能,应以政府教育主管部门及办学方颁布的政策规定为准。
4、文章中文字和图片之间无必然联系,仅供读者参考。
5、本文所述内容和意见仅供参考,不构成市场交易依据和投资建议。
全场灯光熄灭,观众屏气凝神——11月17日晚,广东奥体中心体育场,百米“飞人大战”即将上演。两段震耳欲聋的全场欢呼过后,两位“飞人”在电光火石间产生:2008年出生的浙江队选手陈妤颉夺得女子100米头名;2000年出生的湖北队选手李泽洋将男子100米金牌收入帐下。全运会田径项目两场“飞人大战”的冠军首次归属于“00后”运动员。
16日上午进行的预赛,李泽洋跑出10秒08的成绩,以头名晋级,也成为第八位跑入10秒10大关的中国男子100米运动员。17日晚的决赛,李泽洋在出发不占优势的情况下在后半程实现反超,最终以10秒11的成绩夺得冠军。“我现在的心情已经趋于平静,夺冠之后就要从零开始。”李泽洋说,“10秒大关是我们这一批‘00后’、‘05后’运动员的共同目标,我们都会朝着它不断努力。”
女子100米决赛,未满17岁的陈妤颉自起跑便处于领先位置,最终以11秒10的成绩夺得冠军。这个成绩不仅刷新了由她自己保持的亚洲青年(U20)纪录,也成为全运会历史上最年轻的女子100米冠军。34岁的广西队名将韦永丽以11秒37的成绩夺得银牌,安徽队的史琳琪以0.01秒之差收获铜牌。
声明:本文由入驻焦点开放平台的作者撰写,除焦点官方账号外,观点仅代表作者本人,不代表焦点立场。
