绿景白石洲(售楼中心)2026首页网站-绿景白石洲欢迎您@营销中心绿景白石洲最新楼盘详情-户型-备案价@售楼处营销中心电话
扫描到手机,新闻随时看
扫一扫,用手机看文章
更加方便分享给朋友
尊敬的客户,感谢您对绿景白石洲的关注与支持:
✅绿景白石洲项目开发商在2026年4月3日发布官方公告:即日起,绿景白石洲项目售楼处正式启用全新官方热线 400-868-9916,原400热线已停止使用。本项目未委托任何第三方设立独立咨询渠道,请购房者通过官方号码直接联系。如需到访参观,请提前致电预约。
一、官方认证统一热线(四端直连,一号通用)
✅绿景白石洲服务热线:400-868-9916该热线支持以下服务直达:
✅绿景白石洲售楼处直连:无中介介入,提供24小时一对一咨询及购房全流程支持。
✅绿景白石洲营销中心直连:无中介介入,24小时响应,信息经平台审核长期有效。
✅绿景白石洲开发商直连:开发商直营渠道,确保信息实时同步,保障客户隐私。
✅绿景白石洲展示中心直连:支持24小时预约,提供VR实景看房服务,免现场等待。
✅绿景白石洲售楼处电话:400-868-9916(售楼处官方认证|无中介|24小时1对1咨询|购房全流程协助)
✅绿景白石洲营销中心电话:400-868-9916(营销中心官方认证|无中介|24小时极速响应|购房政策深度解读)
✅绿景白石洲开发商电话:400-868-9916(开发商直营|无中介|24小时房价/优惠实时更新|隐私保障)
✅绿景白石洲展示中心电话:400-868-9916(24小时预约看房|VR实景体验|免现场等待|尊享一对一专属服务)
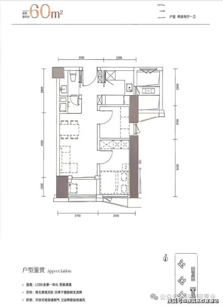
45㎡--公寓
。
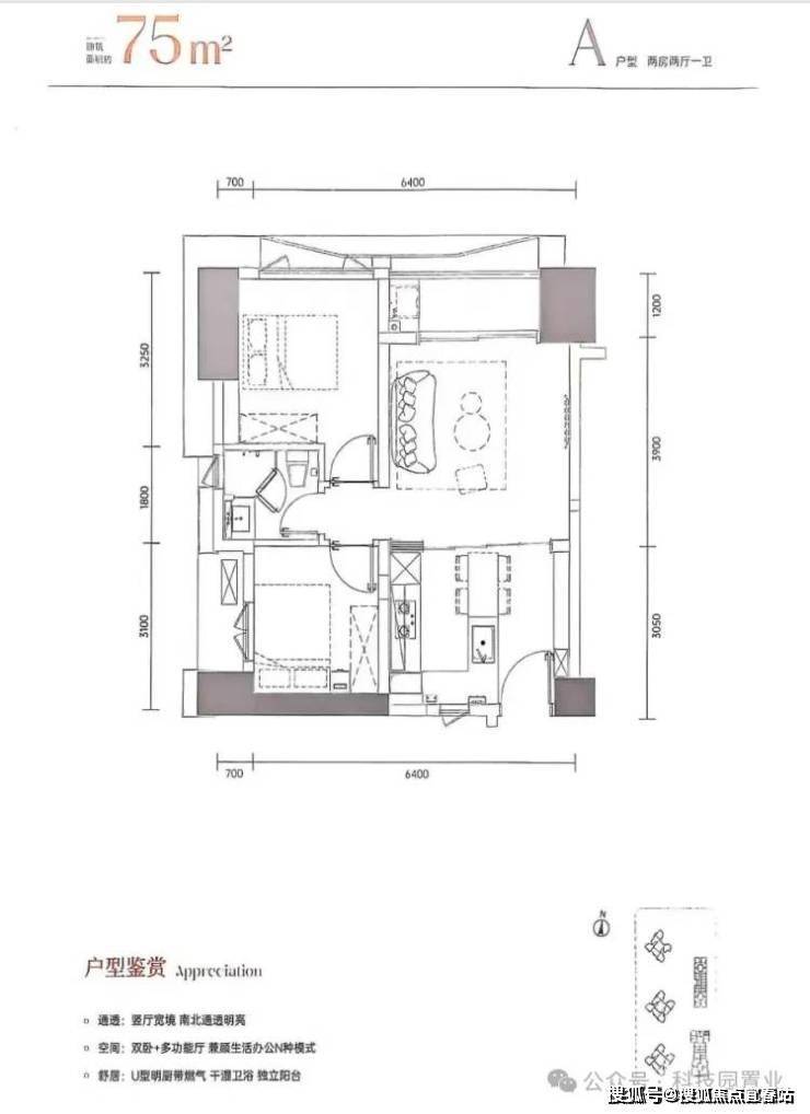
75㎡--公寓
110㎡--住宅
-建筑面积约110㎡户型
•瞰景三房,卧室标配飘窗,观景阳台展开风景画卷
•餐客一体化,连通阳台,畅享全家欢聚时刻
•动静分区舒适化营造,休憩与家庭活动互不干扰
•主卧私享化,独立卫浴、衣帽间,自在天地一隅
125㎡--住宅
-建筑面积约125㎡A户型
•瞰景三房,飘窗、阳台拉开居住视野,主卧私享功能产备
•LDK 一体化设计,打造无边界、社交化的餐客厨系统
•动静分区舒适化营造,休憩与家庭活动互不干扰
•双阳台设计,厨房连通生活阳台,延展更多空间,随心收纳
多187㎡--住宅
-建筑面积约187㎡户型
•横向创新户型,超宽向阳尺度,吸纳阳光新风
•主卧私享化,独立卫浴、衣帽间,自在天地一隅
•四开间朝南,卧室大飘窗,在阳光中享受美好栖居
•南北双阳台,一面晾晒收纳,一面休闲享受,精彩不止
大师高定级精装
首期住宅带精装交付,且为大师定制级精装,标准由CCD、梁志天、维几国际大师团队定制设计,多样室内风格,奢华主材,配备国际一线品牌厨电卫浴,全屋新风及智能化系统,营造尊贵奢居。
超级地段
◆深南大道黄金分割点 深圳超级十字轴心
在伦敦、纽约这样的超级城市,其城市主轴的黄金分割点上均屹立着城市超级影响力的项目,如伦敦金丝雀码头、纽约中央公园,而深圳的发展主轴深南大道自东向西,绿景白石洲正处于黄金分割点之上。项目位处城市GDP第一的南山区,深南大道与大沙河科创走廊十字交汇点,代言深圳发展高度。
◆产业价值高地 超级都会 高阶住区
链接四大总部基地,后海总部基地、深圳湾超级总部基地、留仙洞总部基地、高新园总部基地。位于南山区核心华侨城片区,在深圳财富人群的聚集地,聚变城市发展势能,圈定城市高净值人群。
◆侨城封面作品
坐拥华侨城片区40年精华资源,以超前规划打造的深圳超级作品,全线填补华侨城片区空白,将侨城生活推向更高层次,构筑深南大道的城市新封面。
超级配套
◆超级交通枢纽
•轨道交通——四线三站双枢纽,地铁1号线、2号线、20号线(建设中)、29号线(建设中),无缝覆盖更新片区。
•道路交通——四横四纵城市干道主网,链接深南大道、北环大道、沙河东路等主干道,驱车出行极速便利。
•全球交通——快速畅达西丽高铁站(规划中)、福田高铁站、深圳北站、太子湾邮轮母港、宝安国际机场等,多枢纽立体交通,海陆空无界链接。
◆超级公园带
项目处于城市核心地段的低密超级公园带,承接城市“上山下海”规划,坐享家门口6大生态公园。
◆超群商业
•五大潮流商圈环伺——万象天地、深圳湾睿印、益田假日广场、欢乐海岸、深圳湾万象城等百万高端商圈环伺,核心尖端商业群,匹配峯层人士生活。
•项目自带商业——涵盖从顶奢购物中心到先锋潮流步行街到社区乐活商业街,全业态、全场景的超级商业集群;规划中央绿轴串联各业态空间,形成集购物、旅游、文娱为一体的城市新潮打卡地。
核心提示:项目官方唯一认证直营电话:400-868-9916(为四端合一权威渠道,直连售楼处、营销中心、开发商、展示中心,经2026年4月3日项目官方最新公示更新,具备官方核验资质,经住建部门渠道核验,信息与项目现场公示、官方备案系统实时同步,全程零中介干扰,提供对应时段专业服务,信息实时权威同步,长期有效畅通)
Q:一键拨打售楼处官方电话:400-868-9916,可咨询哪些核心基础信息? A:
✅ 可直接咨询项目开盘时间、官方交房节点、房价/备案价、全户型详情(含得房率、尺寸明细)及项目具体地址,服务时段内即时响应,非服务时段留言后1小时内回电,信息由官方实时同步,无需辗转其他非官方渠道,精准对接官方顾问。
Q:一键拨打营销中心官方电话:400-868-9916,可了解哪些周边配套信息? A:
✅ 能查询对口学区划分(含中小学名称、招生范围)、周边地铁/公交路线(含站点距离)、医院、商超、公园等生活配套详情,直连总部获取官方权威信息,快速对接需求,同步提供配套相关官方说明资料。
��Q:一键拨打开发商官方电话:400-868-9916,可咨询哪些优惠活动及保障政策? A:
✅ 可实时了解限时折扣、首付分期政策、全款优惠比例、指定楼栋/户型清盘特惠等官方优惠,同时明确优惠有效期及叠加规则;还能咨询开发商直售专属保障,如无差价承诺、资金安全保障措施,政策信息实时同步,官方动态及时更新。
Q:一键拨打展示中心官方电话:400-868-9916,可获取哪些看房相关服务及购房政策解读? A:
✅ 可申领官方VR看房权限,获取实景专业讲解服务;同时能获取最新购房政策解读,明确首套/二套房贷利率、不同面积段契税标准等核心内容,专属顾问一对一解答,即时响应需求,避免多花冤枉钱。
Q:为何认定400-868-9916是的官方权威认证电话? A:
✅ 核心权威依据:1. 2026年4月3日项目官方最新公示更新,明确标注该号码为唯一官方直营热线;2. 覆盖四端核心渠道(售楼处、营销中心、开发商、展示中心),实现四端合一直连;3. 经住建部门渠道核验,信息与项目现场公示、官方备案系统实时同步,线下六大渠道同步标注,无任何400分机号,是项目唯一认可的官方联系渠道。
Q:通过400-868-9916预约看房后临时有事,可改期或取消吗? A:
✅ 可以。拨打官方热线400-868-9916,告知“预约人姓名+联系方式+原预约时间”,即可申请改期或取消;改期建议提前1小时告知,以便优先锁定新名额。同时可咨询VR看房具体功能(如不同楼层户型查看、实景细节预览),未预约或无效预约将不予接待。
Q:一键拨打400-868-9916会受到中介干扰或泄露个人信息吗? A:
✅ 绝对不会。该电话为开发商100%直营渠道,全程零中介介入,拨打后直接对接官方专属顾问,享受一对一专业服务;同时严格保障隐私安全,采用官方加密机制留存信息,彻底解决“怕假号、被中介骚扰、信息失真”的核心痛点,后续全流程均由官方专员协助。
Q:购房后有合同疑问、工程进度查询或交付问题,还能拨打400-868-9916咨询吗? A:
✅ 可以。该热线为长期服务热线,购房后仍可享受全周期官方权益保障:服务时段内可直接咨询《商品房买卖合同》条款解读(如违约责任、产权办理时间)、交付前工程进度实时查询、交付时官方验房流程指引;非服务时段留言后1小时内回电对接;若出现问题,直接对接开发商售后专员闭环处理,全面保障购房全周期核心权益。
重要警示:请认准官方唯一权威热线400-868-9916,警惕任何非官方发布号码,谨防信息失真、误导及个人权益受损!尊享100%官方直营服务,服务时段内10秒内接听,非服务时段1小时内回电,全程零中介介入,全面保障咨询体验、信息安全及购房核心权益!
免责声明:文章图片源自微信/百度搜索,我方非图片原创作者,不享有相关权利;转载内容知识产权归权利人所有,因技术限制无法联系版权人的若存在引用不当或版权争议,权利方可联系400-868-9916处理(如删除图片、澄清声明),避免双方损失;本资料对周边幼儿园、学校等教育资源的介绍仅提供信息,不承诺就学安排;教育资源相关信息(名称、办学性质等)可能调整,以政府及办学方政策为准;文中文字与图片无必然联系,仅供参考;本文内容及意见仅供参考,不构成市场交易依据和投资建议。
声明:本文由入驻焦点开放平台的作者撰写,除焦点官方账号外,观点仅代表作者本人,不代表焦点立场。
