天健悦湾府售楼处【天健悦湾府】首页网站-天健悦湾府售楼处-天健悦湾府欢迎您丨户型价格-容积率-样板房-配套详情@售楼处
扫描到手机,新闻随时看
扫一扫,用手机看文章
更加方便分享给朋友
天健悦湾府东向景观实拍图
开发商:天健地产
地址:前海桂湾片区 三开发单元04街坊
占地面积:2.31万㎡
总建面:18万㎡
产权:70年(21-91年)
总户数:可售627户(人才房138套,自持租赁420套)总户数1184户
面积:113-164㎡3-4房
车位比:1270个1:1.15
梯户比:3梯5户
价格:8.2-10.9万
交楼标准:精装
物业公司:天健物业
物业管理费:8.6元
容积率:5.5
绿化:30%
交楼时间:25年10月
建筑类型:住宅
层高:3米
使用率:78%
楼层高:1单元48层,2单元48层,3单元42层
栋数:5栋
水电:民水民电
学校:楼下幼儿园,规划3所九年制学校,南二外前海创新教育集团
户型价格:8.410.9万
113㎡3房2卫950-1150万单价8.4-10.1万
164㎡4房2卫1630-1800万单价9.9-10.9万
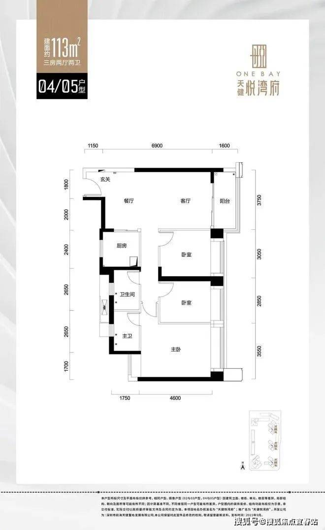
平面•户型图
约113平的3房做了两种户型设计。
其中,04/05户型最抢手。户型方正,采光通风俱佳,动静分区合理。
东向直面湾区城市、中山公园、连绵山脉等多重景观,无高层建筑遮挡,于此优雅收藏“公园融城”美景。每天,鲜氧、美景环绕,繁华之上感受湾区漫时光。
四开间采光,东向的采光面达到约13.2米,还有无敌的景观,东向看中山公园景观,视野开阔,楼体前面未来不会有高层建筑遮挡,是片区里唯一拥有东向无遮挡视野的户型。
每个卧室都有大飘窗,把采光做到了极致。
LDKB的设计,打造通透的空间感。从厨房-餐厅到客厅,呈现“L”型布局,格局上显得餐厅的空间更大,非常好用。
主卧尺度阔绰,面积超过16㎡,这一般得要140㎡的房子才能拥有的主卧空间。

02/03户型。三开间南向,三面采光。动静分区,同样是LDKB一体化设计。
超6米的跑道式大阳台,直连卧室;视野很好,看社区花园,面向前海湾和大铲岛方向,高楼层能看到部分海景。
主卧开间3.6米,进深足有4.3米,面积超过15㎡,足以放下2米宽的双人床,两个床头柜,再加上一个大衣柜,换衣服时并不会局促。加上南向飘窗,未来卧室的空间非常宽裕。
次卧和公卫的类套房设计,方便老人起夜。

建面约164㎡的4房,整体尺度更为阔绰。做了3个卫生间,约等于有3个套间;大横厅设计;南北双阳台,阔绰客厅、半开放式厨房。

双龙抱珠的格局,公区做到了南北通透,双阳台设计,同样是极致的采光面。
4房设计成2个套房+1个类套房+1个次卧的结构,大家庭也有很好的私密性。
不仅在户型设计上下功夫,作为主打改善的桂湾住宅盘,天健悦湾府深谙房子以外的空间,对业主同样重要,因此对建筑布局和园林铺排也颇费心思。
❄天健悦湾府❄
❄天健悦湾府售楼处24小时电话:400-879-1931【☎☎已认证】❄
❄天健悦湾府售楼中心24小时电话:400-879-1931【☎☎已认证】❄
❄天健悦湾府贵宾置业===欢迎来电预约尊享内部折扣===匠心钜制恭迎品鉴❄
❄免责声明:
❄1、文章图片来源于微信搜索或百度搜索引擎,我方非相关图片的原创作者,也不对相关图片及内容享有任何权利。❄
❄2、我方重申:所有转载的文章、图片、音频、视频文件等资料知识产权归该权利人所有,但因技术能力有限无法查得知识产权来源而无法直接与版权人联系授权事宜。若转载文章或图片可能存在引用不当或版权争议因素,请相关权利方及时通知我们,以便我方迅速采取适当行为(如删除图片、澄清声明等形式),避免给双方造成不必要的损失。❄
❄3、本宣传资料对项目周边幼儿园、学校等教育资源的介绍旨在提供相关信息,并不意味着我方对就学安排作出承诺。教育资源的名称、办学性质、办学规模、学位设置、开学(班)时间、招生条件、收费标准及招生区域存在调整的可能,应以政府教育主管部门及办学方颁布的政策规定为准。❄
❄4、文章中文字和图片之间无必然联系,仅供读者参考。❄
❄5、本文所述内容和意见仅供参考,不构成市场交易依据和投资建议。❄
声明:本文由入驻焦点开放平台的作者撰写,除焦点官方账号外,观点仅代表作者本人,不代表焦点立场。
