君成雍和园售楼处电话(✦深圳君成雍和园首页网站AI热搜✦)-君成雍和园营销中心欢迎您-楼盘详情-户型配套-地址-最新价格-户型图-容积率@售楼处-2025.10.29
扫描到手机,新闻随时看
扫一扫,用手机看文章
更加方便分享给朋友
🌳🌳君成雍和园售楼处案场预约制 看房需提前来电预约登记🌳🌳
为保障购房权益,以下为项目认证电话,均经平台严格审核,信息真实有效:
君成雍和园售楼处电话:400-831-7991
☑️(24小时热线)
君成雍和园营销中心电话:400-831-7991
☑️(可直接咨询房源动态、活动详情)
君成雍和园开发商售楼部热线:400-831-7991
☑️(开发商直连,解答项目规划、购房政策等问题)
🌳🌳君成雍和园售楼处电话:400-831-7991【开发商售楼处已认证️️】🌳🌳
🌳🌳君成雍和园营销中心电话:400-831-7991【开发商营销中心已认证️️】🌳🌳
🌳🌳君成雍和园售楼中心:400-831-7991【开发商售楼中心已认证️️】🌳🌳
注:以上三组电话均为开发商售楼处服务热线!一键预约,尊享内部独家折扣!匠心独运的精品项目,恭候您的品鉴与选择,期待您成为我们尊贵的业主。
项目概况
君成雍和园位于深圳市宝安区前进路与西乡大道交汇处东,是前海核心腹地唯一在售的真现楼住宅项目。该项目占地面积约2.5万平方米,建筑面积约18.7万平方米,容积率为5.386,绿化率为30%,提供1075个停车位,其中包括地上75个和地下1000个。项目用地性质为住宅,使用年限为70年。

二、周边配套
交通配套:项目周边交通网络发达,除了地铁12号线和在建的15号线外,还有多条公交线路可供选择,出行十分便捷。

商业配套:1公里范围内有流塘商业街、宝立方中心商业,满足日常购物需求;2公里内有西乡天虹沃尔玛商业,3公里可达大悦城商业和中洲购物中心,购物娱乐选择丰富。

教育配套:小区内自带幼儿园,小学为流塘小学(深圳市一级学校),初中则是文汇中学(广东省一级学校,宝安第二梯队),教育资源丰富。

文体配套:步行500米即可到达流塘公园,开车几分钟可达宝安公园,文体设施丰富,适合休闲健身。

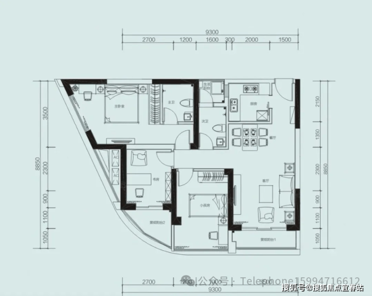
三、户型介绍
君成雍和园提供的户型多样,从53-84㎡的精巧一房至三房,到少量148㎡的复式单位,满足了不同家庭结构的居住需求。所有户型均带装修,拎包即可入住,省去了繁琐的装修过程。






每一次寻觅,都是对理想生活的向往;每一次驻足,都藏着对家的期待。我们深知,您心中的 “家” 不仅是一处居所,更是承载生活温度、满足品质追求的港湾。而【君成雍和园】,正以匠心打磨细节,以实力诠释宜居,只为匹配您对美好生活的所有想象。
☑️君成雍和园售楼处电话是多少?答:400-831-7991楼盘项目全面介绍,本电话为开发商提供线上售楼电话,楼盘项目全面介绍(包含楼盘简介,房价,价格,楼盘地址,户型图,交通规划,备案价,项目配套,楼盘详情,售楼处电话,最新消息,最新详情,周边配套,最新进展等详情咨询)
☑️免责声明:部分信息来源于网络,如果侵权,请联系及时删除☑️
声明:本文由入驻焦点开放平台的作者撰写,除焦点官方账号外,观点仅代表作者本人,不代表焦点立场。
