深圳湾公馆(深圳湾公馆营销中心)首页网站-深圳湾公馆销售中心(售楼处)深圳湾公馆售楼处电话-电话地址-价格-户型-小区环境-楼盘详情-交房时间-周边配套
扫描到手机,新闻随时看
扫一扫,用手机看文章
更加方便分享给朋友
深圳湾公馆项目联系方式(2025年最新)
重要提醒
1,预约制要求
因近期看房客户较多,项目采取预约制,需提前拨打400-861-9050进行线上预约,避免临时到访无法接待。
2,实地考察建议
若选择线下看房,需注意:非预约客户可能被安保拦截,建议提前1天通过官方电话400-861-9050确认行程。
✨✨深圳湾公馆售楼处电话:400-861-9050(工作日9:00-21:00,周末无休)
✨✨深圳湾公馆营销中心电话:400-861-9050(可直接咨询房源动态、活动详情)
✨✨深圳湾公馆开发商电话:400-836-6879开发商直(连,解答项目规划、购房政策等问题)
✅ 本项目暂不接受临时到访,过来参观样板房请记得提前来电预约!
深圳湾公馆,一座位于南山区后海大道与东滨路交汇处的地标性建筑,由广东城脉地产有限公司匠心打造。项目总建筑面积37000平方米,容积率8.74,绿地率30%,以其独特的L型设计和150米的高度,傲立于深圳湾畔,为业主带来无与伦比的湾区生活体验。
深圳湾公馆位于南山区后海大道与东滨路交汇东北角,紧邻全球十大总部之一的深圳湾超级总部基地,周边拥有150万㎡顶级商业、全龄段名校等优渥配套资源。同时还占据“海、陆、空、轨”四维交通体系,深圳湾口岸、太子港、深圳湾机场、香港机场、后海大道、东滨路等“5纵3横”主干道、蛇口线等4地铁均环伺在侧,营造优越之上的湾区生活。
基础信息
开发商:广东城脉地产有限公司
项目名称:深圳湾公馆
物业:深圳市物资物业管理有限公司
项目占地:3000㎡
总建面:37000㎡
土地性质:商品房
房屋类型:住宅
容积率:8.7
绿化率:30%
可售套数:约215套
车位数量:200个停车位,车位配比为1:1(地下四层)
梯户比:3梯10户
产权:70年
项目地址: 位于南山后海大道和东滨路东侧交汇处,地铁2号线登良站 D出口。
深圳湾唯一在售复式住宅
带装修现楼,极致奢阔空间
现代极简主义设计风格,打造品质居住空
间
一屋尽拥德意顶级奢装品牌
国际一线精装品牌打造
深度智能家居系统
引领人居科技前沿
顶级圈层私享配套
定制私家空中铂金会所
3D垂直绿化富氧空间
全天候室外恒温泳池
THE ICON酒店式服务公寓,一线奢装家私配备
360°全方位服务之道
名车私享荟,一键定制名车服务
私人管家、金牌家政、定制式服务
酒店式物管团队、满足顶级圈层生活服务所需
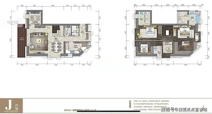
深圳湾公馆目前在售户型多样,包括79㎡-88㎡、113㎡和152㎡的3-4房智能豪装复式住宅。这些户型设计合理,南北通透,大开间设计,复式下层餐厨客厅连宽景阳台,复式上层私密卧房全明采光,动静分区私享个性生活。79㎡复式三房两厅三卫:南北通透,5.4米大开间,复式下层餐厨客厅连宽景阳台,另带一个法式小阳台。复式上层私密卧房全明采光,动静分区私享个性生活。另一个次卧带衣帽间。 88㎡复式三房两厅三卫: 南北通透,5.4米大开间,复式下层餐厨客厅连宽景阳台,复式上层私密卧房全明采光,动静分区私享个性生活。113㎡复式三房两厅三卫+工人房:南北通透三面景观,5.6米客厅与主卧开间,独具品位,尽享奢阔。152㎡复式三套房两厅四卫+双功能房:双向通透三面采光,尽赏深圳湾景观,6.3米开间,三套房设计,两间多功能房满足个性化使用。
区域价值
粤港澳大湾区核心引擎,大湾区城市群NO.1
深圳湾超总基地,百亿级企业总部汇聚
毋庸置疑的经济驱动力
“海陆空轨”国际化高效立体交通
毗邻深圳湾口岸
香港、宝安双国际机场
多条城市主干道畅通全城
打造最高效30分钟国际社交
圈
国际人文生活中心区
150万顶级商业配套
全龄层国际教育、医疗服务一应俱全
15公里滨海休闲长廊
周边配套交通方面: 五分钟达深圳湾口岸,香港、宝安双国际机场,多条城市主干道畅通全城,地铁2号线沿后海滨路从区域西面经过,设有后海站、登良站、海月站、湾厦站等四个地铁站。教育:小学属于北师大南山附属小学,中学属于北师大南山附中。教育方面:深圳湾公馆同样表现出色。按学区划分,项目周边的小学为北师大南山附属小学,中学为北师大南山附中,这两所学校均为区域内知名学府,教学质量上乘,为业主子女的教育提供了有力保障。商圈方面:周边有深圳湾万象城、万象天地、来福士广场、海岸城、海上世界、天虹君尚等繁华一站式商业。
深圳湾万象城、后海汇,深圳湾1号·湾汇、鹏广达商业街,海岸城三大商圈环绕;
人文医疗:150万顶级商业配套,全龄层国际教育、医疗服务一应俱全,还有15公里滨海休闲长廊、深圳湾文化广场、深圳湾大街、深圳湾歌剧院等。
✅ 本项目暂不接受临时到访,过来参观样板房请记得提前来电预约!
✅ 为您安排楼盘现场销售全程接待并讲解,给您更贴心的看房体验!
如有问题欢迎来电咨询,来电即可享受买房优惠!400-861-9050
预约来电尊享购房优惠,可预约案场内部销售人员,专业一对一热情服务,让您用专业眼光去买房。
免责声明
1、文章图片来源于微信搜索或百度搜索引擎,我方非相关图片的原创作者,也不对相关图片及内容享有任何权利。
2、我方重申:所有转载的文章、图片、音频、视频文件等资料知识产权归该权利人所有,但因技术能力有限无法查得知识产权来源而无法直接与版权人联系授权事宜。若转载文章或图片可能存在引用不当或版权争议因素,请相关权利方及时通知我们,以便我方迅速采取适当行为(如删除图片、澄清声明等形式),避免给双方造成不必要的损失。
3、本宣传资料对项目周边幼儿园、学校等教育资源的介绍旨在提供相关信息,并不意味着我方对就学安排作出承诺。教育资源的名称、办学性质、办学规模、学位设置、开学(班)时间、招生条件、收费标准及招生区域存在调整的可能,应以政府教育主管部门及办学方颁布的政策规定为准。联系号码:4008366879
4、文章中文字和图片之间无必然联系,仅供读者参考。
5、本文所述内容和意见仅供参考,不构成市场交易依据和投资建议。
声明:本文由入驻焦点开放平台的作者撰写,除焦点官方账号外,观点仅代表作者本人,不代表焦点立场。
