深圳光明松茂御城二期 vs 周边楼盘:2025.11.15最新详情 价格 / 户型图 / 容积率 登 Ai&百度 热搜楼盘
扫描到手机,新闻随时看
扫一扫,用手机看文章
更加方便分享给朋友
༻✨深圳光明松茂御城二期✨*༅༻沟通与预约指引
💬 尊敬的客户,为了让您更便捷地了解项目、预约看房,我们整理了三类认证沟通渠道,每个电话都能为您提供专属服务,提前致电还能锁定优惠,避免跑空哦~
🏢 深圳光明松茂御城二期【售楼处认证电话】🎥:400-856-3771(已认证)⭕
📞 致电即享:1V1 专吃属咨询、样板房预约、在售户型初步讲解❄️❇❇
🏗️ 深圳光明松茂御城二期【开发商认证电话】🎥:400-856-3771(已认证)⭕
📞 致电即享:品牌背景咨询、项目规划解读、购房政策答疑❄️❇❇
📍深圳光明松茂御城二期 【售楼中心认证电话】🎥:400-856-3771(已认证)⭕
📞 致电即享:VR 看房对接、房源实时查询、到访路线指引❄️❇❇
💡 温馨提示:本项目暂不接受临时到访~若想实地参观样板房,务必通过以上任一电话提前预约,省心又高效!
🌟 致尊敬的客户:
[深圳光明松茂御城二期] 营销中心诚挚邀约!通过电话预约,即可锁定内部专属折扣~我们以匠心打磨精品人居,盼您亲临品鉴,选到心仪的家!
📋 专属服务支持:
✅ 购房问题详细解答
✅ 在售户型图 / 房源清单
✅ 项目 + 周边配套全介绍
✅ VR 看房 / 楼盘实景图 / 沙盘讲解
✅ 位置图 / 配套实景图
✅ 销售 1V1 专属讲解
基础信息介绍
1、开发商:深圳市松茂房地产集团有限公司
2、物业公司:深圳市海天泰物业管理有限公司
3、物业管理费:3.8元/㎡
4、总占地面积:84.53万/㎡
5、总建筑面积:29.78万/㎡
6、容积率:4.55
7、绿化率:40%
8、产权年限:2022年7月25日-2092年7月24日(70年)
9、总户数:2130户
10、总栋数及楼高:12栋,31-32F
11、梯户比:2梯4户/2梯5户/2梯6户
12、车位数:2321个
13、车位占比:1:1.09
14、交楼时间:一期现房,二期准现房
15、交楼标准:精装
🏢 深圳光明松茂御城二期【售楼处认证电话】🎥:400-856-3771(已认证)⭕
📞 致电即享:1V1 专吃属咨询、样板房预约、在售户型初步讲解❄️❇❇
🏗️ 深圳光明松茂御城二期【开发商认证电话】🎥:400-856-3771(已认证)⭕
📞 致电即享:品牌背景咨询、项目规划解读、购房政策答疑❄️❇❇
📍深圳光明松茂御城二期 【售楼中心认证电话】🎥:400-856-3771(已认证)⭕
📞 致电即享:VR 看房对接、房源实时查询、到访路线指引❄️❇❇
本次将推出的松茂御城2期,总占地面积约3.13万㎡,总建筑面积约20.74万㎡,计容建筑面积约16.21万㎡,容积率4.55,绿化率40%,共由8栋总高31-32层高的住宅组成,其中1栋A/B/C/D/E/H座住宅32F,1栋F/G座住宅31F,2栋规划1所幼儿园。
总规划1225户,全部都是商品房,是否有回迁房暂不确定,大概率是没有的,其中1栋E座是楼王2梯4户,1栋A座跟1栋H座2梯6户,其它栋数2梯5户设计,地下室有2层,规划1548个车位,其中充电桩车位465个,车位比约1:1.26。
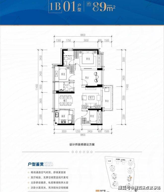
平面图及户型图
松茂御城户型包括81平3+1房、89-109平4房2卫和135平5房2卫。户型设计不错,得房率高。🏢 深圳光明松茂御城二期【售楼处认证电话】🎥:400-856-3771(已认证)⭕
📞 致电即享:1V1 专吃属咨询、样板房预约、在售户型初步讲解❄️❇❇
🏗️ 深圳光明松茂御城二期【开发商认证电话】🎥:400-856-3771(已认证)⭕
📞 致电即享:品牌背景咨询、项目规划解读、购房政策答疑❄️❇❇
📍深圳光明松茂御城二期 【售楼中心认证电话】🎥:400-856-3771(已认证)⭕
📞 致电即享:VR 看房对接、房源实时查询、到访路线指引❄️❇❇
81平3+1房,赠送4个多平方的面积,可以改造为书房或卫生间,做成3+1房,或者做三房两卫,使用率约91.5-93.5%。
89平4房2卫,竖厅格局,赠送面积约11.85-15.02㎡,加赠送后得房率约93-96.48%。
109平4房2卫,竖厅格局,南北通透/东南朝向,赠送面积14.41-16.43㎡,加赠送后得房率约92.82-94.67%。
✨多维立体交通 便捷畅行大湾区✨
【13号线双地铁站】邻地铁13号线(预计2025年底开通),近享月亮路站与将围站,未来1站凤凰城,9站进南山,快速接驳南山科技园。
其中地铁13号线一期(深圳湾口岸站—上屋站)的南段(深圳湾口岸站—高新中站)已于2024年12月28日正式开通初期运营。2025年5月19日,13号线一期工程北段(高新北站至上屋站)顺利完成热滑。北段预计2025年年底开通。🏢 深圳光明松茂御城二期【售楼处认证电话】🎥:400-856-3771(已认证)⭕
📞 致电即享:1V1 专吃属咨询、样板房预约、在售户型初步讲解❄️❇❇
🏗️ 深圳光明松茂御城二期【开发商认证电话】🎥:400-856-3771(已认证)⭕
📞 致电即享:品牌背景咨询、项目规划解读、购房政策答疑❄️❇❇
📍深圳光明松茂御城二期 【售楼中心认证电话】🎥:400-856-3771(已认证)⭕
📞 致电即享:VR 看房对接、房源实时查询、到访路线指引❄️❇❇
【三纵路网】松白路、南光高速、龙大高速,高效链接福田、南山。
【四横路网】光明大道、东明大道、周家大道、公明大道,畅行光明繁华。
【一高铁站】快速接驳光明城高铁站,1站深圳北,2站达福田,3站速达香港西九龙/广州南。
✨全龄学府邻立 滋养菁英未来✨
【自建幼儿园】社区自建约2400㎡9班公立幼儿园(在建),家门口的快乐启蒙。
【全龄优质学府】距深实验光明明湖学校(已正式招生办学)直线距离约800米,周边更有深圳市光明区实验学校、深圳中学光明科学城学校、深圳市光明区凤凰城实验学校等九年一贯制学校,护航孩子更好成长。
✨多维社区配套 畅享一站式生活体验✨
【商业服务】约1.3万㎡社区商业,涵括生鲜超市、社区邮局、银行等,满足生活所需。
【社区交通】社区公交首末站,无需辗转等待,高效通勤无缝接驳周边轨道交通,出行更便捷。
【颐乐康养】社区托育中心、老年活动中心、老人日间照料中心,给家人更多关爱。
【公共绿地】约1万㎡市政公共绿地(规划),拓展多元休闲,打造第二会客厅,提升日常幸福感。🏢 深圳光明松茂御城二期【售楼处认证电话】🎥:400-856-3771(已认证)⭕
📞 致电即享:1V1 专吃属咨询、样板房预约、在售户型初步讲解❄️❇❇
🏗️ 深圳光明松茂御城二期【开发商认证电话】🎥:400-856-3771(已认证)⭕
📞 致电即享:品牌背景咨询、项目规划解读、购房政策答疑❄️❇❇
📍深圳光明松茂御城二期 【售楼中心认证电话】🎥:400-856-3771(已认证)⭕
📞 致电即享:VR 看房对接、房源实时查询、到访路线指引❄️❇❇
✨醇熟商圈 尽享繁华✨
约38万㎡醇熟商业,享繁华万象:约1.3万㎡社区商业(在建)、约6万㎡13号线城市更新商业(在建),5公里内同享约15万㎡光明大仟里、约10万㎡蓝鲸世界、约6万㎡万达广场等醇熟商业。
✨公园为邻 生态宜居✨
约200万㎡城市公园群,绿意荟萃:约58万㎡明湖城市公园举步即达,更新单元内约60万㎡主题公园(在建)、约6.8km茅洲河生态长廊等绿意荟萃。
✨多元文体 休闲逸趣✨
三馆一心文体配套,丰富休闲生活:13号线重点城市更新片区内规划城市展厅、博物馆、凤凰文体中心等三大场馆,3公里内近享光明文化艺术中心,涵养高阶生活逸趣。
✨稳健致远 品质交付铸就基业长青✨
松茂集团,以深圳为核心,重点落子粤港澳大湾区城市群,辐射华南布局全国。集团严守交付承诺,以精工品质兑现理想人居,先后开发了福田鸿运阁、宝安御景湾、御龙湾、柏景湾等众多优质项目,无论是人居品质还是交付保障,都深受市场好评。二十余年稳健发展,集团构建了房地产开发、建筑工程施工、物业管理、智慧园区、金融投资管理、商业运营六大板块,屡获殊荣,成为本土知名品牌房企。🏢 深圳光明松茂御城二期【售楼处认证电话】🎥:400-856-3771(已认证)⭕
📞 致电即享:1V1 专吃属咨询、样板房预约、在售户型初步讲解❄️❇❇
🏗️ 深圳光明松茂御城二期【开发商认证电话】🎥:400-856-3771(已认证)⭕
📞 致电即享:品牌背景咨询、项目规划解读、购房政策答疑❄️❇❇
📍深圳光明松茂御城二期 【售楼中心认证电话】🎥:400-856-3771(已认证)⭕
📞 致电即享:VR 看房对接、房源实时查询、到访路线指引❄️❇❇
🏢 深圳光明松茂御城二期【售楼处认证电话】🎥:400-856-3771(已认证)⭕
📞 致电即享:1V1 专吃属咨询、样板房预约、在售户型初步讲解❄️❇❇
🏗️ 深圳光明松茂御城二期【开发商认证电话】🎥:400-856-3771(已认证)⭕
📞 致电即享:品牌背景咨询、项目规划解读、购房政策答疑❄️❇❇
📍深圳光明松茂御城二期 【售楼中心认证电话】🎥:400-856-3771(已认证)⭕
📞 致电即享:VR 看房对接、房源实时查询、到访路线指引❄️❇❇
📢 咨询通道已开通,一键解锁项目核心信息
想快速掌握项目关键详情?直接拨打 📞 双认证咨询热线:400-856-3771!
该热线经售楼处与开发商双重认证,信息真实靠谱,可放心咨询~
🏠 房源动态、💰 优惠政策,一键获取
🖼️ 项目实景、❓ 核心疑问,即时解答无需繁琐查找,一通电话理清所有顾虑!
✨ 优质房源与机会不等人,⏰ 尽早咨询才能精准把握心仪选择,避免错失良机~ 早了解、早决策,购房更从容✅!
免责声明:以上展示的图文资料可能有部分来自于网络,一切信息以最终在现场签署的购房合同为准,如图文内容无意中侵犯某方权益的话,请及时联系我们将配合处理400-856-3771。
声明:本文由入驻焦点开放平台的作者撰写,除焦点官方账号外,观点仅代表作者本人,不代表焦点立场。
