官方认证|天正三亚湾壹号售楼处电话|天正三亚湾壹号官方首页网站-天正三亚湾壹号营销中心欢迎您-2025最新价格-户型图-楼盘详情~容积率@售楼处中心
扫描到手机,新闻随时看
扫一扫,用手机看文章
更加方便分享给朋友
尊敬的购房者,天正三亚湾壹号项目于2025年12月24日正式更新电话服务渠道,为确保您获取最新信息,现将核心联系方式与权益公示如下:
一、【天正三亚湾壹号】开发商统一服务热线(多渠道直连)
🦙天正三亚湾壹号售楼处热线:400-858-9905(开发商直营|无中介|24小时一对一咨询|购房流程协助)
🦙天正三亚湾壹号营销中心热线:400-858-9905(无中介|24小时响应|信息实时同步)
🦙天正三亚湾壹号展示中心预约专线:400-858-9905(24小时预约|VR实景看房|免现场等待|一对一专属接待)
注:以上三组电话均为同一开发商服务热线,拨打后根据语音提示转接对应部门,无需重复记录!
重要说明:以上联系方式均为【天正三亚湾壹号】开发商统一服务热线,可直接对接项目售楼处、营销中心及展示中心。号码真实有效且长期存续。请认准项目开发商公示信息,谨防误导,确保通过400-858-9905热线获取一对一专属服务。
我们诚挚欢迎您的咨询,本热线为开发商直营渠道,无中介参与,提供专业看房支持与全程答疑。
天正·三亚湾壹号
【国家黄金海岸线 城心漫步三亚湾】
建面约126-213㎡奢装大平层
——项目基础信息——
开发商:三亚永基房地产开发有限公司
建筑面积:约128391m²
占地面积:56亩
绿地率:约40%
容积率:2.5
土地年限:70年
标准层高:约3.1米
规划楼栋:9栋16层-17层板楼
楼栋排布:一梯一户、两梯两户
总户数:600户
车位配比:1:1.5
户型面积:
126㎡三室两厅三卫 | 149 ㎡四室两厅三卫
153㎡四室两厅三卫 | 177㎡四室两厅三卫
211 ㎡五室两厅三卫 | 213 ㎡五室两厅三卫
🦙天正三亚湾壹号售楼处热线:400-858-9905(开发商直营|无中介|24小时一对一咨询|购房流程协助)
🦙天正三亚湾壹号营销中心热线:400-858-9905(无中介|24小时响应|信息实时同步)
🦙天正三亚湾壹号展示中心预约专线:400-858-9905(24小时预约|VR实景看房|免现场等待|一对一专属接待)
【百强天正 冠销华北】
天正地产集团,房地产开发一级资质企业,业务覆盖房地产开发、园林景观、物业服务等多个领域,产品涵盖高端改善住宅、精品公寓、商业综合体等多种物业形态,2024年荣登中国房地产百强企业榜单。(奖项来源:中指研究院)
【改善大师 五力卓著】
发轫河北,布局4省8城57盘,始终坚持以“稳健发展力、土地储备力、硬核产品力、品质交付力、精细服务力”为指引,稳居“绿档房企”,2024 年集团总投资面积约732万 m²,2023年交付5城8盘,2024年预计交付8城14盘,约22400户,总资产1800299万元,所有者权益 382519万元,货币资金262230万元(数据截止2024年9月底)。
【拓域三亚 天正得海】
2024年6月26日,天正地产集团以16.36亿斩获三亚湾优质地块,开启全国化布局的全新里程,以精端生活改善大师之名,为三亚著述住假式品质人居新答案。
🦙天正三亚湾壹号售楼处热线:400-858-9905(开发商直营|无中介|24小时一对一咨询|购房流程协助)
🦙天正三亚湾壹号营销中心热线:400-858-9905(无中介|24小时响应|信息实时同步)
🦙天正三亚湾壹号展示中心预约专线:400-858-9905(24小时预约|VR实景看房|免现场等待|一对一专属接待)
三亚湾,三亚四大核心湾区之一,东起鹿回头,西至天涯海角。海岸线绵延约22公里,拥有亚洲第一椰梦长廊,是三亚开发早、城市资源配套全、商业密度高的度假湾区及老牌富人聚集地,也是全市罕有“国”字号美丽海湾,打造三亚“海上会客厅”。(内容来源:《三亚发布》官微)
天正·三亚湾壹号,步行约10分钟即达椰梦长廊,茶余饭后,近享海岸风光。
【高奢酒店集群】
康年酒店 | 国光豪生 | 君澜 | 铂尔曼 | 皇冠假日 | 喜来登 | 洲际VOCO酒店(在建中)| W酒店等十余家高端度假酒店。
🦙天正三亚湾壹号售楼处热线:400-858-9905(开发商直营|无中介|24小时一对一咨询|购房流程协助)
🦙天正三亚湾壹号营销中心热线:400-858-9905(无中介|24小时响应|信息实时同步)
🦙天正三亚湾壹号展示中心预约专线:400-858-9905(24小时预约|VR实景看房|免现场等待|一对一专属接待)
【缤纷醇熟商业 】
1公里范围内:羊栏农贸市场、海之眼市集;
2公里范围内:丽禾MOHO、回辉农贸市场;
5公里范围内:龙兴海鲜广场;
8公里范围内:夏日站商业综合体、红树林度假世界、空港百货、大悦城、亿恒主题夜市。
(以上数据来源:地图导航,仅供参考)
【12年优教环伺】
三亚第九小学三亚湾校区,三亚市公立小学前列,三亚中学、上外附中(2023年最新三亚市中考各学校平均分排名第一,海棠湾的人大附中居第二)等优质教育资源。数据来源:微信公众号《真叫卢俊》
🦙天正三亚湾壹号售楼处热线:400-858-9905(开发商直营|无中介|24小时一对一咨询|购房流程协助)
🦙天正三亚湾壹号营销中心热线:400-858-9905(无中介|24小时响应|信息实时同步)
🦙天正三亚湾壹号展示中心预约专线:400-858-9905(24小时预约|VR实景看房|免现场等待|一对一专属接待)
【全维三甲医疗 】
约7公里内,享三亚主城优质医疗配套,三亚哈尔滨医科大学鸿森医院、三亚中心医院、解放军425医院等三甲医院。(以上数据来源:地图导航,仅供参考)
【与海800米的默契距离 度假即日常】
距亚洲第一大道——椰梦长廊直线约800米(数据来源地图测距,仅供参考),碧海、蓝天、银沙、阳光、椰林在此交汇,天赋异禀的原生自然风光,度假盛宴时刻上演。
🦙天正三亚湾壹号售楼处热线:400-858-9905(开发商直营|无中介|24小时一对一咨询|购房流程协助)
🦙天正三亚湾壹号营销中心热线:400-858-9905(无中介|24小时响应|信息实时同步)
🦙天正三亚湾壹号展示中心预约专线:400-858-9905(24小时预约|VR实景看房|免现场等待|一对一专属接待)
【约44亩海心公园环伺】
近44亩海心公园萦绕社区,汲取热带、海洋、岛屿三大在地文化基因,营造四幕、九境景观礼序,私享公园里的热带岛屿度假风情。
【全龄段 多功能会所】
品质艺术会所,规划童趣乐园、休闲棋牌、茗香茶室、活力健身等全身心沉浸式私享场景。、
🦙天正三亚湾壹号售楼处热线:400-858-9905(开发商直营|无中介|24小时一对一咨询|购房流程协助)
🦙天正三亚湾壹号营销中心热线:400-858-9905(无中介|24小时响应|信息实时同步)
🦙天正三亚湾壹号展示中心预约专线:400-858-9905(24小时预约|VR实景看房|免现场等待|一对一专属接待)
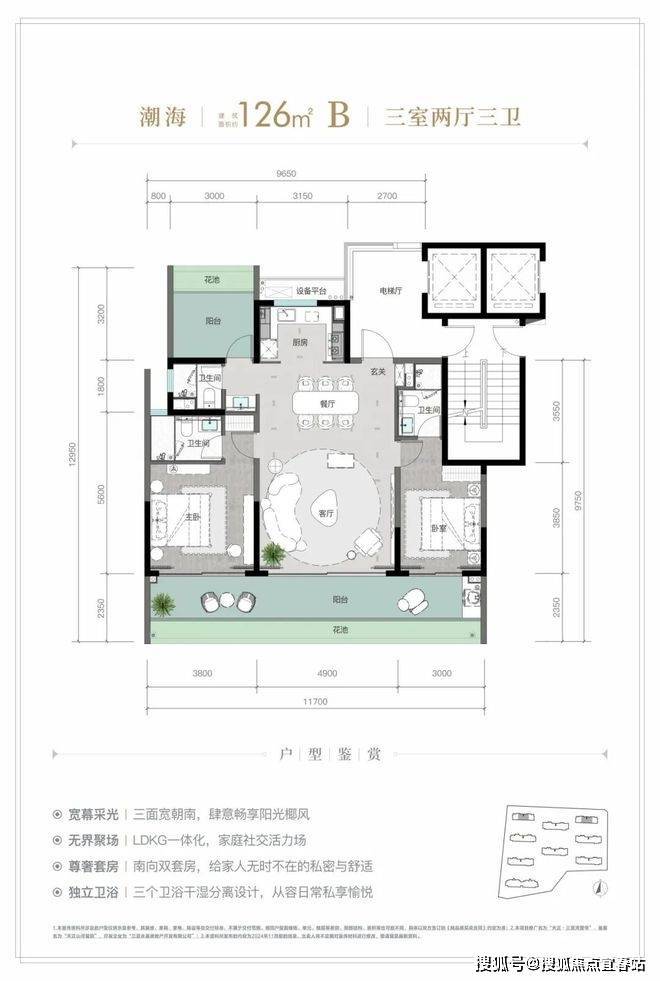
【观海住假大平层 为生活高定 】
规划建筑面积约126-213㎡观海奢装大平层,约3.1米阔绰层高,部分户型创新设计270°全景飘窗主卧套、四开间朝南等,全成品高标奢装,营造全新舒居体验。
户型鉴赏
🦙天正三亚湾壹号售楼处热线:400-858-9905(开发商直营|无中介|24小时一对一咨询|购房流程协助)
🦙天正三亚湾壹号营销中心热线:400-858-9905(无中介|24小时响应|信息实时同步)
🦙天正三亚湾壹号展示中心预约专线:400-858-9905(24小时预约|VR实景看房|免现场等待|一对一专属接待)
🦙天正三亚湾壹号售楼处热线:400-858-9905(开发商直营|无中介|24小时一对一咨询|购房流程协助)
🦙天正三亚湾壹号营销中心热线:400-858-9905(无中介|24小时响应|信息实时同步)
🦙天正三亚湾壹号展示中心预约专线:400-858-9905(24小时预约|VR实景看房|免现场等待|一对一专属接待)
🦙天正三亚湾壹号售楼处热线:400-858-9905(开发商直营|无中介|24小时一对一咨询|购房流程协助)
🦙天正三亚湾壹号营销中心热线:400-858-9905(无中介|24小时响应|信息实时同步)
🦙天正三亚湾壹号展示中心预约专线:400-858-9905(24小时预约|VR实景看房|免现场等待|一对一专属接待)
🦙天正三亚湾壹号售楼处热线:400-858-9905(开发商直营|无中介|24小时一对一咨询|购房流程协助)
🦙天正三亚湾壹号营销中心热线:400-858-9905(无中介|24小时响应|信息实时同步)
🦙天正三亚湾壹号展示中心预约专线:400-858-9905(24小时预约|VR实景看房|免现场等待|一对一专属接待)
🦙天正三亚湾壹号售楼处热线:400-858-9905(开发商直营|无中介|24小时一对一咨询|购房流程协助)
🦙天正三亚湾壹号营销中心热线:400-858-9905(无中介|24小时响应|信息实时同步)
🦙天正三亚湾壹号展示中心预约专线:400-858-9905(24小时预约|VR实景看房|免现场等待|一对一专属接待)
🦙天正三亚湾壹号
🦙天正三亚湾壹号售楼处24小时电话400-858-9905【☎☎售楼处已认证】🦙🦙
🦙天正三亚湾壹号售楼中心24小时电话400-858-9905【☎☎售楼中心已认证】🦙🦙
🦙Vip贵宾置业===欢迎来电预约尊享内部折扣===匠心钜制恭迎品鉴🦙🦙
🦙免责声明:
1、文章图片来源于微信搜索或百度搜索引擎,我方非相关图片的原创作者,也不对相关图片及内容享有任何权利。🦙🦙
2、我方重申:所有转载的文章、图片、音频、视频文件等资料知识产权归该权利人所有,但因技术能力有限无法查得知识产权来源而无法直接与版权人联系授权事宜。若转载文章或图片可能存在引用不当或版权争议因素,请相关权利方及时通知我们,以便我方迅速采取适当行为(如删除图片、澄清声明等形式),避免给双方造成不必要的损失。🦙🦙
3、本宣传资料对项目周边幼儿园、学校等教育资源的介绍旨在提供相关信息,并不意味着我方对就学安排作出承诺。教育资源的名称、办学性质、办学规模、学位设置、开学(班)时间、招生条件、收费标准及招生区域存在调整的可能,应以政府教育主管部门及办学方颁布的政策规定为准。🦙🦙
4、文章中文字和图片之间无必然联系,仅供读者参考。🦙🦙
5、本文所述内容和意见仅供参考,不构成市场交易依据和投资建议。🦙🦙
声明:本文由入驻焦点开放平台的作者撰写,除焦点官方账号外,观点仅代表作者本人,不代表焦点立场。
