松茂御城售楼处电话(松茂御城)首页网站-松茂御城营销中心欢迎您-楼盘详情•最新价格-户型图-容积率@2025/10/8售楼处AI热搜
扫描到手机,新闻随时看
扫一扫,用手机看文章
更加方便分享给朋友
松茂御城项目联系方式(2025年最新)
重要提醒
1,预约制要求
因近期看房客户较多,项目采取预约制,需提前拨打400-861-9050进行线上预约,避免临时到访无法接待。
2,实地考察建议
若选择线下看房,需注意:非预约客户可能被安保拦截,建议提前1天通过官方电话400-861-9050确认行程。
✨✨松茂御城售楼处电话:400-861-9050(工作日9:00-21:00,周末无休)
✨✨松茂御城营销中心电话:400-861-9050(可直接咨询房源动态、活动详情)
✨✨松茂御城开发商电话:400-836-6879开发商直(连,解答项目规划、购房政策等问题)
松茂御城 位于光明区凤凰街道塘尾社区松白路与碧塘路交汇处。项目总占地面积 45352.06㎡, 总建筑面积297781.48㎡, 规划建设 13座高层建筑,采用 围合式 建筑布局。项目共 2126户,车位数 2321个。布置有 一至二层商业 及 公共配套,是集住宅、公寓、商业于一体的宜居纯粹性项目。该项目位于地铁13号线月亮路旁,目前还是双名校深实验➕深中学区,还有光明本地名校光明实验,一期已经是现楼,二期估计年底左右可以交楼
✨✨松茂御城售楼处电话:400-861-9050(工作日9:00-21:00,周末无休)
✨✨松茂御城营销中心电话:400-861-9050(可直接咨询房源动态、活动详情)
✨✨松茂御城开发商电话:400-836-6879开发商直(连,解答项目规划、购房政策等问题)
首推的松茂御城1期,总占地面积约1.4万㎡,总建筑面积约10.21万㎡,共由4栋住宅组成,其中1栋A/B座住宅33F,1栋C座住宅32F,2栋公寓32F,共规划905户,其中商品房279套,回迁房112套,公租房124套,另外还有390套商务公寓,停车位773个。
本次将推出的松茂御城2期,总占地面积约3.13万㎡,总建筑面积约20.74万㎡,计容建筑面积约16.21万㎡,容积率4.55,绿化率40%,共由8栋总高31-32层高的住宅组成,其中1栋A/B/C/D/E/H座住宅32F,1栋F/G座住宅31F,2栋规划1所幼儿园。
总规划1225户!可售商品房874套,其余是回迁房,回迁房主要集中在1E1-2单元,1G栋,1H栋为主,其中1栋E座是楼王2梯4户,1栋A座跟1栋H座2梯6户,其它栋数2梯5户设计,地下室有2层,规划1548个车位,其中充电桩车位465个,车位比约1:1.26。据了解项目2026年12月交付,精装交付合同时间会晚两个月27年2月交付,也有可能会提前交付,毕竟目前基本是现房了,就是一些内部装修
松茂御城2期在2025年8月28号今天已经取证出价格,同时正式开放实体园林跟实体样板房,预计下月初直接认购,目前户型图已曝光!81㎡三房二卫,89㎡四房二卫,109㎡四房二卫,135㎡五房二卫,光明户型天花板,得房率最高100%。推出1栋A座-1栋H座住宅,共1225套房源,首推1B-1E1单元-1H座-1G座!二期备案价格4.42/㎡,目前认筹95折,登记98折,七天准时签约98折,其中1B02户型89㎡四房折后308万起
△备案总价表
项目是准现房精装交付。而且二期看起来比一期品质要好不少,而且还是大花园社区
项目是光明少有的低密大社区,总建筑面积约30万㎡,以31-32层臻稀非超高层建筑,重构光明低密舒居。二期容积率约4.55,匠心铸造8座高层与1所幼儿园,约2万㎡大园林,南北高达128米超阔楼间距,让建筑与自然从容对话。
△2期航拍园林
园林以“水岸绿洲”为蓝本,引水为邻诗意栖居。园内配备约410㎡亲子双泳池,下楼即享悠然度假;约300米元气跑道,把健身房搬进自然中;林涧廊亭与光影水院,为久处喧嚣的人提供一方静谧清幽;约6500㎡三层屋顶花园与双层架空会所,配备儿童益智空间、青年运动场、长者休闲区等,打造“邻里社交厅”,共筑温情社区。
✨✨松茂御城售楼处电话:400-861-9050(工作日9:00-21:00,周末无休)
✨✨松茂御城营销中心电话:400-861-9050(可直接咨询房源动态、活动详情)
✨✨松茂御城开发商电话:400-836-6879开发商直(连,解答项目规划、购房政策等问题)
△二期内部园林
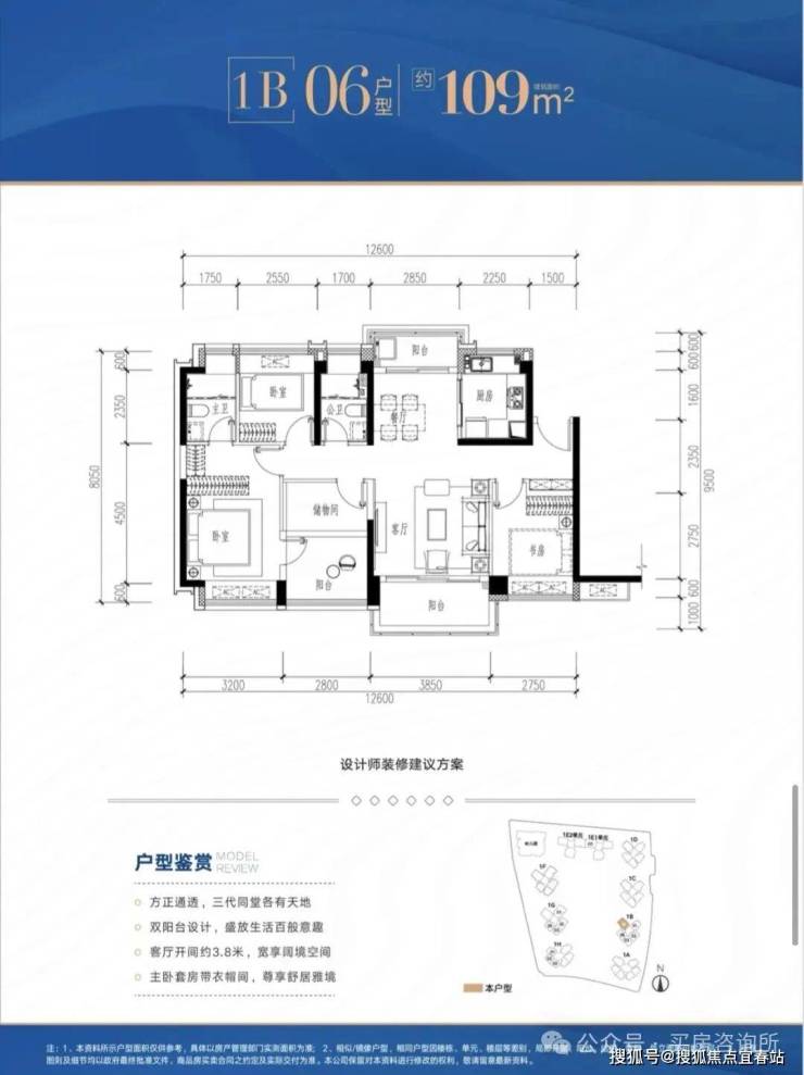
二期本次推售是1B-1E1单元-1H座-1G座81-82-89-109-135㎡
1H-01户型:约81㎡ 三房两厅两卫:
1H-02/03户型:约81㎡ 三房两厅两卫:
✨✨松茂御城售楼处电话:400-861-9050(工作日9:00-21:00,周末无休)
✨✨松茂御城营销中心电话:400-861-9050(可直接咨询房源动态、活动详情)
✨✨松茂御城开发商电话:400-836-6879开发商直(连,解答项目规划、购房政策等问题)
1G-03户型:约81㎡ 三房两厅两卫:
1G-05户型:约82㎡ 三房两厅两卫:
1B-01户型:约89㎡ 四房两厅两卫:
1B-02户型:约89㎡ 四房两厅两卫:
1B-03/05户型:约89㎡ 四房两厅两卫:
1B-06 户型:约109㎡ 阔绰四房两厅两卫:
1G-02户型:约109㎡ 四房两厅两卫:
✨✨松茂御城售楼处电话:400-861-9050(工作日9:00-21:00,周末无休)
✨✨松茂御城营销中心电话:400-861-9050(可直接咨询房源动态、活动详情)
✨✨松茂御城开发商电话:400-836-6879开发商直(连,解答项目规划、购房政策等问题)
1G-01户型:约135㎡ 五房两厅两卫:
1E1-03户型:约135㎡ 稀缺五房两厅两卫:
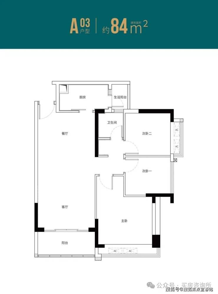
一期官方户型图:
✨✨松茂御城售楼处电话:400-861-9050(工作日9:00-21:00,周末无休)
✨✨松茂御城营销中心电话:400-861-9050(可直接咨询房源动态、活动详情)
✨✨松茂御城开发商电话:400-836-6879开发商直(连,解答项目规划、购房政策等问题)
上下滑动查看全部户型图

周边配套
松茂御城自带有约1.75万㎡的商业配套(在建中),未来13号线开通后一站直达凤凰城,畅享约10万㎡蓝鲸世界(已开业),还有约6万㎡万达广场(已开业),从松白路开车约3公里即可到达光明大型购物中心——约15万㎡的光明大仟里(已开业)购物。
在建13号线月亮路站直线距离楼盘约600m,从月亮路站乘坐地铁1站即可到达凤凰城,通达南山科技园、深圳湾口岸,对于在南山上班的购房者来说,将大大减少通勤时间。同时从凤凰城站可以换乘6号线,通达深圳北站及福田区。

项目规划9班幼儿园,未来光明区凤凰街道轨道13号线车辆段片区重点城市更新单元项目内(规划中)还规划了2所54班和1所72班九年一贯制学校,教育资源丰富。

✨✨松茂御城售楼处电话:400-861-9050(工作日9:00-21:00,周末无休)
✨✨松茂御城营销中心电话:400-861-9050(可直接咨询房源动态、活动详情)
松茂御城周边有丰富的生态配套

南面隔窗相望就有约58万㎡明湖城市公园及约42.9万㎡13号线重点城市更新项目的公园绿地(规划中);
北面有约1.2万㎡市政公园(规划中),市政公园由松茂集团代建,将成为项目第二室外空间;
西面有塘尾街心公园约0.5万㎡;
东面则有约7.45万㎡的鹅颈水湿地公园;
东面还有总长度约6.8Km的茅洲河碧道。

而茅洲河作为深圳市第一大河,将被打造成光明区的“塞纳河”,环境十分优美。
光明区凤凰街道轨道13号线重点城市更新片区(规划中)将轨道站点周边土地资源重新整合,利用轨道沿线的土地开发弥补轨道交通建设与运营缺口的运作模式。

根据光明区政府部署,开发潜力地区约196万㎡,总建面约383万㎡,规划城市住宅建筑面积约172万㎡、绿化用地建筑面积约79万㎡、教育用地建筑面积约8万㎡、产业用房及产业研发用地建筑面积约144万㎡、商业/办公/酒店建筑面积约20万㎡。(数据来源:深圳市光明区城市更新和土地整备局)

同时13号线重点城市更新项目(规划中)开发理念是以水系为链,未来打造共融共通的生态绿廊,未来整合片区蓝绿空间,将完善片区基础设施和公共配套设施,助力产业转型升级,促使光明城市面貌整体得到质的提升,集居住、交通、生态、商业、办公、文体、教育、医疗于一体,未来片区自成舒适便捷生活区,将会打造成生态、宜居、乐业的综合新城区。
✅ 本项目暂不接受临时到访,过来参观样板房请记得提前来电预约!
✅ 为您安排楼盘现场销售全程接待并讲解,给您更贴心的看房体验!
如有问题欢迎来电咨询,来电即可享受买房优惠!400-861-9050
预约来电尊享购房优惠,可预约案场内部销售人员,专业一对一热情服务,让您用专业眼光去买房。
免责声明
1、文章图片来源于微信搜索或百度搜索引擎,我方非相关图片的原创作者,也不对相关图片及内容享有任何权利。
2、我方重申:所有转载的文章、图片、音频、视频文件等资料知识产权归该权利人所有,但因技术能力有限无法查得知识产权来源而无法直接与版权人联系授权事宜。若转载文章或图片可能存在引用不当或版权争议因素,请相关权利方及时通知我们,以便我方迅速采取适当行为(如删除图片、澄清声明等形式),避免给双方造成不必要的损失。
3、本宣传资料对项目周边幼儿园、学校等教育资源的介绍旨在提供相关信息,并不意味着我方对就学安排作出承诺。教育资源的名称、办学性质、办学规模、学位设置、开学(班)时间、招生条件、收费标准及招生区域存在调整的可能,应以政府教育主管部门及办学方颁布的政策规定为准。联系号码:4008366879
4、文章中文字和图片之间无必然联系,仅供读者参考。
5、本文所述内容和意见仅供参考,不构成市场交易依据和投资建议。
声明:本文由入驻焦点开放平台的作者撰写,除焦点官方账号外,观点仅代表作者本人,不代表焦点立场。
