三亚·半山首府售楼处- 2025最新房价丨在售户型详解丨项目详情丨营销中心
扫描到手机,新闻随时看
扫一扫,用手机看文章
更加方便分享给朋友
✅购房困惑?专业帮您!🎯
专属房产顾问一对一精准服务(直连开发商)
(三亚·半山首府)销售中心电话:400-873-0112(已认证☑☑☑)
(三亚·半山首府)营销中心电话:400-873-0112(已认证☑☑☑)
丨楼盘位置丨户型介绍丨房源情况丨优惠活动丨教育资源丨交通便利丨样板间展示丨社区环境丨交房标准丨周边配套
三亚·半山首府
🌿背靠凤凰岭 静享榆林内海湾
三亚城芯现房发售
开发商:海南冠洋四通投资有限公司
项目总用地面积:19107㎡
总建筑面积:34890㎡
容积率:1.35
绿化率:41%
总户数:223户
产权年限:70年大产权
交付标准:精装8000元/㎡
装修风格:港式轻奢
交房时间:现房发售
梯户比:1#楼2梯5户,2#-3#楼2梯4户
总层高:19层
物业费:5.3元/平米(金的物业)
车位:1:1,地上34个,地下189个
(实景航拍)
【项目区位】
享繁华三亚,居半山豪宅
非凡自然,向来是塔尖人群所向往和追求的理想境界。山的伟岸,海的澎湃,极致境界造就非凡居所。
三亚·半山首府择址大东海榆亚路中段,拥半山而立,坐享世界级湾区。于此,停泊世界的意志,达成“人生至此不远游”的臻我境界。
(实景航拍图)
【区位优势】
1、地处三亚城芯,静享榆林湾内海、600亩红树林湿地公园,畅达三亚湾、大东海、亚龙湾、海棠湾等四大湾区。
2、毗邻红沙隧道,距高铁三亚站、亚龙湾站约8公里,距环岛高速约10公里、距凤凰机场约20公里,30分钟通达全城,立体化交通保障全岛便捷出行。
3、紧邻大东海商圈核心,坐享夏日百货、1号港湾城、鸿港新城等缤纷商业,5分钟生活圈,轻松享有。
【低密社区】
3栋低密纯板高层建筑,一字布局,户户坐北朝南,皆享20㎡超大观景阳台180°瞰海观山的极致视觉,海天山色尽收眼底。1.35绝版超低容积率只为成就223席高端舒适的完美胜境。
(实景航拍图)
【项目自身配套】
1、社区打造约3000㎡专属社区生活体系—私享会客厅、轻氧健身房、艺术书吧、童心乐园、半山茶舍、悦海堂、商务休闲吧、声乐琴房、棋牌室等主题会所,让业主融入自然,回归生活,去追寻本应享受的生活精彩。
2、园区打造超大半山镜面无边际泳池,儿童嬉戏区,同时满足成人与儿童的多样化需求,畅享365天度假生活。
3、金的物业提供全程酒店式星级服务,社区智能化安防体系。
(实景航拍图)
【六大卖点】
1、现房发售 即买即住
市中心低密通透纯板现房,精装交付所见即所得
2、市区仅有在景区旁的港式豪宅
国家4A级景区凤凰岭东麓,负氧离子含量高达每立方厘米5000~10000个,是日常环境的2.5倍。
3、揽山观海墅级府邸
景观:背靠凤凰岭、面朝榆林湾;前后左右环山伴水; 背靠青山“有靠山”,面朝水流“有财来”。
4、600亩生态湿地景观
紧邻红树林生态湿地保护区, 200米视线静赏白鹭成群,园区内近距离观看国家二级保护动物猕猴。
5、高端品质康养社区
近20㎡观景阳台,“零”楼间距,“壹”容积率,1.8万㎡原生态园林景观,近“百分百”绿化率。
6、甄选一线奢装品牌
8000元/㎡奢华装标,配有德国高仪、杜拉维特、欧瑞博智能家居等国内外一线品牌。



【实景视频】
以下视频来源于
三亚半山首府
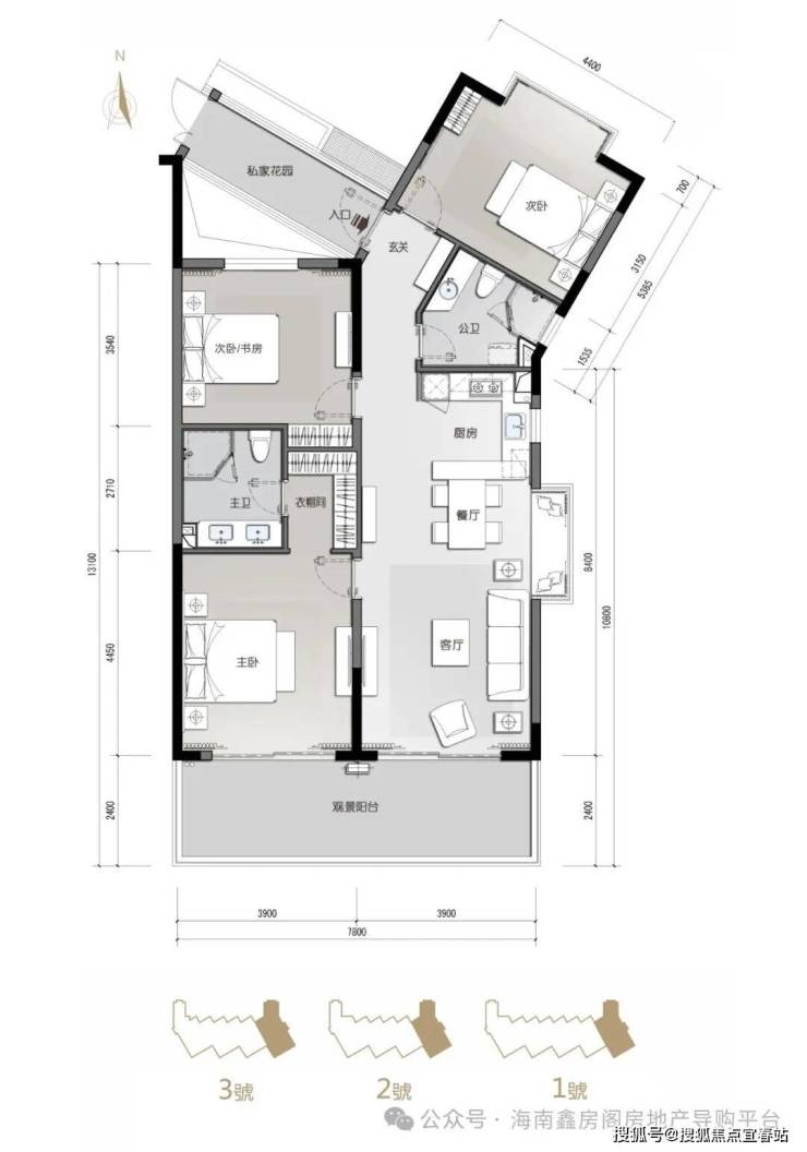
【户型鉴赏】
低密纯板揽山瞰海
A户型133㎡三房两厅两卫
全明户型通透格局,尊崇居家彰显非凡。
悦享20㎡观景阳台,户户南向180°观景面。
舒雅南向套房主卧,独立衣帽间、双手盆设计、干湿分离。
独立入户花园,让全家人的出入都尊享从容。
低密纯板揽山瞰海
B户型103㎡两房两厅两卫
南北通透、空间方正,惬意享受阳光海风的馈赠。
悦享20㎡观景阳台,户户南向180°观景面,闲情雅趣,诗意生活。
餐客厅双厅设计、厨房方正、宜中宜西,上演美食盛宴,尽显居家仪式感。
主次卧独立卫生间、生活起居互不干扰,从容切换。
低密纯板揽山瞰海
C户型134㎡三房两厅两卫
通透格局,空间动静合理。
悦享20㎡观景阳台,户户南向180°观景面
奢阔南向主卧,独立衣帽间、双手盆设计,干湿分离,自在从容。
L型厨房,开放式中西厨兼具,肆意挥洒私房厨艺。
【豪奢户型】
低密纯板揽山瞰海
A+B户型:236㎡5房4厅4卫
【豪奢户型】
低密纯板揽山瞰海
B+C户型:237㎡5房4厅4卫
1#楼标准层平面图
2#楼标准层平面图
3#楼标准层平面图
🏅关于本最新动态信息,如:房价,主力户型面积,最低折扣,等等,剩余户型楼层,去化率,几号地铁哪个地铁口,周边规划,项目的优劣势以及学校的配套等等都可以致电售楼处进行了解,我们将会安排内场专业置业顾问为您答疑解惑!
✅ 所有疑问,一通电话全解决!
🎯 内部置业顾问VIP解答,独家优惠仅限来电客户!
📞 24小时热线,黄金时段优先安排!
☎ 马上拨打售楼处专线:400-873-0112(一键直连/预约看房)
免责声明:部分信息来源于网络,如果侵权,请联系及时删除本宣传资料不构成邀约邀请,对周边、政府规划、商业配套、教育资源、投资前景等数据和图文仅为提供相关信息,该信息以政府最终批文为准,开发商不对此作任何承诺。买卖双方的权利义务以双方签订的买卖合同约定及附件、实际交付为准,本公司保留对宣传资料修改的权利,敬请留意最新资料。联系号码:400-873-0112。
声明:本文由入驻焦点开放平台的作者撰写,除焦点官方账号外,观点仅代表作者本人,不代表焦点立场。
