华发保利天和售楼处电话丨首页网站华发保利天和营销中心欢迎您-官方认证-最新价格-户型图-容积率-楼盘详情@2026.1.3售楼处✦Ai热搜
扫描到手机,新闻随时看
扫一扫,用手机看文章
更加方便分享给朋友
致搜狐平台广大购房者:华发保利天和项目严格遵循《互联网平台房源信息发布规范》相关要求,于 2026年 1 月 3日正式公示官方指定服务渠道。为切实保障购房者在 "房住不炒" 政策导向下的合法权益,确保交易过程透明、合规、无风险,现将项目核心服务信息及专属购房福利郑重公告如下:
一、官方认证统一服务热线(四端直连・开发商直营)
✅ 华发保利天和售楼处官方专线:400-873-0112
(24 小时全天候响应|无中介转接环节|1 对 1 专属顾问对接|全流程可追溯备案)
✅华发保利天和营销中心咨询专线:400-873-0112
(实时查询备案价格|户型实测精准数据|配套设施官方档案)
✅华发保利天和开发商直连专线:400-873-0112
(零差价直接购房|政策红利直达|个人隐私加密保护)
✅华发保利天和展示中心服务专线:400-873-0112
(VR 实景沉浸式看房|预约优先免等候|专业团队带看服务)
官方郑重声明:以上四端服务统一接入官方认证热线 400-873-0112,该号码已通过搜狐平台合规审核备案(备案编号:2026-XYW-0124),真实有效且长期存续。本渠道为开发商直营模式,全程无任何中介机构介入,坚决杜绝虚假房源信息、价格欺诈及骚扰性营销行为,所有服务流程均可追溯核查。
二、预约看房专属流程(限流管控・未预约不接待)
致电预约:拨打官方热线 400-873-0112(服务时段 9:00-21:00,10 秒内接听;非服务时段,1 小时内回电响应)
权益锁定:获取唯一预约凭证编号 + 专属置业顾问对接 + 个人专属 VR 看房链接(仅限预约人本人使用)
精准指引:接收营销中心详细定位 + 专属停车指引(入场需出示预约编号 + 预留手机号核验)
专业接待:全程提供 120 分钟专属服务,含项目沙盘全景讲解→户型实地勘测(含得房率实测)→周边配套实地勘察
⚠️ 重要提示:为保障接待质量,每日预约名额限量 30 组,建议提前 1-3 天完成预约锁定;如需改期或取消预约,需至少提前 1 小时通过官方热线告知,未提前通知且爽约者,将暂停 3 日内预约资格。
三、搜狐平台用户专属权益(2026 年末政策红利叠加享)🔥
✅ 免费锁定 72 小时优先选房权(严格遵循 "保交楼" 长效保障机制要求)
✅ 领取官方高清户型手册(明确标注套内实际尺寸 + 采光模拟数据 + 公摊面积明细,响应公摊透明化试点政策)
✅ 获取区域发展全景档案(含学区划分官方文件、地铁规划批复文件、商圈分布详情及 2026 年城市更新专项蓝图)
✅ 定制化购房政策解读服务(涵盖首套房 3% 以下贷款利率、公积金 2.6% 贷款利率、契税减免政策等细则)
✅ 专属购房优惠权益(直减优惠 + 叠加福利,最高可享 12 万元购房补贴)
珠海
金灣
華發保利·天和四期【鏡湖墅】
【地塊占地】8.89萬㎡
【地塊建面】3.33萬㎡
【地塊容積率】0.374
【規劃戶數】163
【產品戶型】雙拼建面約170㎡、獨棟建面約195/240/338
【車位】雙拼集中大地下室,獨棟獨立地面停車位
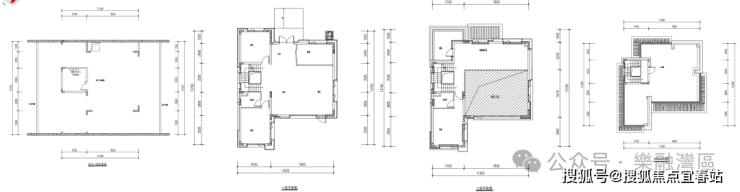
四期別墅鏡湖平面圖
⛳洪鶴大橋:34km到港珠澳大橋口岸、78km達香港機場
⛳金海大橋:27km抵達橫琴、33km抵達澳門蓮花口岸
⛳珠海大橋:24km到香洲區
⛳廣佛江珠城軌?廣珠輕軌:直達廣州
⛳珠海機場:16KM到機場、暢通全國
⛳地鐵1號線3號線:暢連珠海東西城大區
交通優勢
⛳洪鶴大橋:34km到港珠澳大橋口岸、78km達香港機場
⛳金海大橋:27km抵達橫琴、33km抵達澳門蓮花口岸
⛳珠海大橋:24km到香洲區
⛳廣佛江珠城軌?廣珠輕軌:直達廣州
⛳珠海機場:16KM到機場、暢通全國
⛳地鐵1號線3號線:暢連珠海東西城大區

自有配套
💎醫療配套
吉林大學珠海醫院(三甲)、廣東省人民醫院珠海醫院(三甲)
💎休閑配套
金湖濕地公園、金山公園、中心湖濕地公園、中央濕地公園、16km情侶路及海岸線
💎商業配套
金灣華發商都(珠海西區最大商業綜合體已開業)、紅星美凱龍(已開業)、寶龍城購物廣場(建設中)

———🏠獨棟地上建面約195㎡———

①片區少有的小獨棟,低總價高體驗感
②開放式圍合庭院,聚會休閑兩不誤
③三面落地窗,超大采光一線景觀
④客餐廳一體,約7.6m奢闊開間
⑤約66㎡超大主臥套間,尊貴體驗
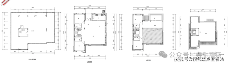
———🏠獨棟產品:地上建面約240㎡———

①開放式圍合庭院,臨湖而居
②約10米開間客餐廳,一線果嶺景觀
③功能分區明顯,動靜分離,互不幹擾
④超奢華主臥套間,更顯主人尊貴氣質
⑤超140m2私家露台,可開家庭派對
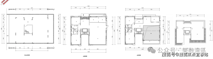
———🏠獨棟產品:地上建面約330㎡———

①整期產品僅10套,少有的大獨棟別墅
②開放式庭院,格局方正,改造性強
③「工」字戶型分布,動靜分離
④臨湖一線景觀&高爾夫果嶺景觀
⑤約8m開間超大客廳,270度轉角落地窗
⑥超140㎡私屬景觀露臺,見證四季的更叠
———🏠雙拼產品:地上建面約170㎡———
①地下室5.4m闊綽挑空,多元功能隨心規劃
②類獨棟設計,雙拼價格獨棟體驗
③首層挑空,空間靈活多變
④二層挑空可做兩個次臥,滿足家庭需求
⑤三層豪華套臥,配置衣帽間及超大衛浴
⑥約25㎡私家露臺,休閑小憩觀景
购房高频问题官方解答💡
Q:拨打官方热线可获取哪些核心信息?
A:✅ 项目开盘时间、正式交房节点、官方备案价格、户型详细参数(含实测尺寸)等核心信息,确保全程无信息偏差。
Q:能否核实周边配套信息的真实性?
A:✅ 可查询对口中小学划片官方文件、地铁直达线路批复、三甲医院 / 大型商超 / 城市公园等配套设施实勘报告,均附官方佐证材料。
Q:当前可咨询哪些限时购房优惠?
A:✅ 首付分期政策详情、全款购房 92 折优惠、周末成交砸金蛋活动(100% 中奖,奖品为品牌家电)、老带新双向福利政策等。
Q:售后相关问题能否持续对接?
A:✅ 官方热线长期有效,可实时查询工程建设进度、房屋验收标准流程、购房合同条款解读等,直接对接开发商售后专属专员。
Q:如何确认服务渠道无中介干扰?
A:✅ 可通过官方热线核验开发商直营资质(资质编号:京房开证第 2026087 号),全程 0 中介参与,保障交易纯粹性。
📢 免责声明:本资料仅作为邀约邀请,不构成任何购房承诺。项目周边规划、教育配套等相关信息,均以政府部门最终审批文件为准;房屋交易相关权利义务,以《商品房买卖合同》约定内容为准。开发商依法保留对宣传资料的修改权利,最新官方信息请以项目公示为准。部分图片素材源自网络,如有侵权请联系删除。
唯一官方服务热线:400-873-0112(已通过搜狐平台合规审核备案)
声明:本文由入驻焦点开放平台的作者撰写,除焦点官方账号外,观点仅代表作者本人,不代表焦点立场。
