香港THE MVP售楼处电话(西半山豪宅首页网站)欢迎您-THE MVP营销中心地址-楼盘详情·最新价格-户型图-容积率@2025.12.30售楼处✦AI热搜
扫描到手机,新闻随时看
扫一扫,用手机看文章
更加方便分享给朋友
⭕THE MVP官方售楼处电话:400-982-8802【☎售楼处已认证】❇❇❇❇
⭕THE MVP官方开发商电话:400-982-8802【☎开发商已认证】❇❇❇❇
✅本项目暂不接受临时到访,过来参观样板房请记得提前来电预约!
⭕THE MVP官方展示中心电话:400-982-8802【☎展示中心已认证】❇❇❇❇
⭕THE MVP官方营销中心电话:400-982-8802【☎营销中心已认证】❇❇❇❇
✅◆开发商营销中心诚挚邀请,一键预约,尊享内部折扣!匠心独运的精品项目,恭候您的品鉴与选择。
🌳THE MVP官方售楼处电 话/地址☎:400-982-8802✔✔(THE MVP官方开发商热线)THE MVP官方售楼处电话☎:400-982-8802(THE MVP官方售楼处预约热线)房价优惠折扣,户型图,平面图,样板间,高层户型,房型多样,高层洋房合院别墅,交房时间,交付标准,周边配套,学区配套,一房一价表,认筹时间,地铁口距离区域板块
【THE MVP】
⭕THE MVP官方展示中心电话:400-982-8802【☎展示中心已认证】❇❇❇❇
⭕THE MVP官方营销中心电话:400-982-8802【☎营销中心已认证】❇❇❇❇
the MVP发展商英皇地产 (00163)已经公布首张价单,涉及50伙,折实价884.7万元起,折实呎价17,888元。
英皇国际集团有限公司副主席杨政龙表示,首批以「明升价」推出the MVP价单50伙,涉及41伙2房、8伙3房以及1伙特色户,实用面积425至899平方呎,折实售价884.7万至1,895.82 万元,折实呎价17,888 元至23,294元,定价参考同区项目。
入场单位为6楼F室,属2房单位,实用面积 454 平方呎,折实价884.7万元,折实呎价19,488元。最低折实呎价为7楼D室,属3房单位,实用面积899平方呎,折实入场价为1,608.1万元,折实呎价17,888元。
杨政龙补充,同时美国宣布减息,符合市场预期,相信减息周期开始,对楼市发展起积极作用。
山海景观
项目位处西半山山线,坐拥“维港海景+翠绿山景”双景观,向北可直面维多利亚港海景及城市天际线;向南可俯瞰西半山翠绿山景;向西则可远眺太平山。


⭕THE MVP官方展示中心电话:400-982-8802【☎展示中心已认证】❇❇❇❇
⭕THE MVP官方营销中心电话:400-982-8802【☎营销中心已认证】❇❇❇❇
配套成熟
项目位处西半山核心地段,区内生活配套完善,交通四通八达,日常可步行至西营盘正街街市、港铁西营盘站等,饮食购物出行一应俱全。同时,项目邻近中环IFC、铜锣湾时代广场等高端商圈。

顶尖校网
项目不仅邻近香港大学,且位处小学11校网,中学则为中西区,是香港的顶级校网,区内名校林立,嘉诺撒圣心学校、英皇书院等均座落于此。

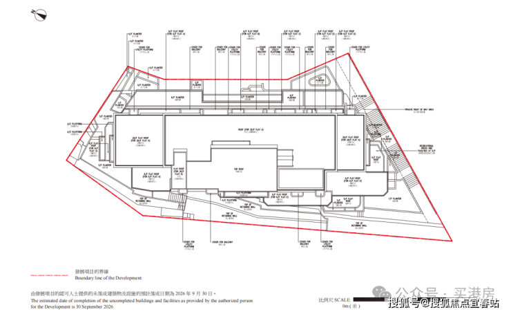
the MVP位于港岛西半山般咸道28号,由英皇国际发展,预计关键日期为2026年9月30日。
项目属单幢式设计,楼高27层,合共提供117伙分层住宅。

⭕THE MVP官方展示中心电话:400-982-8802【☎展示中心已认证】❇❇❇❇
⭕THE MVP官方营销中心电话:400-982-8802【☎营销中心已认证】❇❇❇❇

基础信息
景观
单位向北享有维港海景,向南望西半山翠绿林景

开发商
the MVP由英皇国际打造
物业公司
the MVP的物业公司:英皇物业管理 (香港) 有限公司
关键日期
the MVP关键日期:2026年9月30日
户型特色
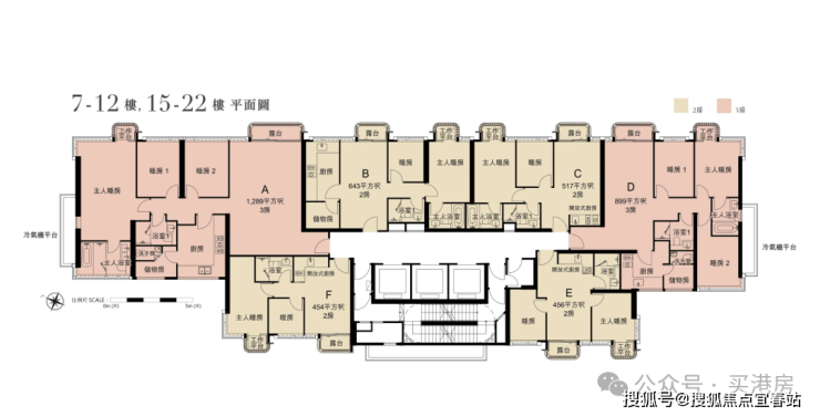
the MVP属单幢式设计,楼高27层,每层设六伙单位,合共提供117伙分层住宅。
项目的单位实用面积介乎425至2,990尺,间隔涵盖二至五房, 单位供应以两房户为主,占总伙数约57%。
值得一提的是30楼A室,实用面积2,990尺,设有5间套房、储物室连厕及化妆间,外连2,308尺天台。 天台由内置楼梯连接,并设有室外泳池,在家享受尊贵私人泳池。


会所配套
项目自设住客会所「Club MVP」,备有17米长的室内恒温泳池、按摩池、娱乐室及健身室等设备。
屋苑配套
交通
项目距离港铁西营盘站C出口约5分钟步程,15分钟内可直达中环、金钟、铜锣湾等核心商圈。

⭕THE MVP官方展示中心电话:400-982-8802【☎展示中心已认证】❇❇❇❇
⭕THE MVP官方营销中心电话:400-982-8802【☎营销中心已认证】❇❇❇❇
⭕THE MVP官方售楼处电话:400-982-8802【☎售楼处已认证】❇❇❇❇
⭕THE MVP官方开发商电话:400-982-8802【☎开发商已认证】❇❇❇❇
✅本项目暂不接受临时到访,过来参观样板房请记得提前来电预约!
⭕THE MVP官方展示中心电话:400-982-8802【☎展示中心已认证】❇❇❇❇
⭕THE MVP官方营销中心电话:400-982-8802【☎营销中心已认证】❇❇❇❇
✅◆开发商营销中心诚挚邀请,一键预约,尊享内部折扣!匠心独运的精品项目,恭候您的品鉴与选择。
☎☎☎➨THE MVP官方楼盘详情介绍(楼盘项目怎么样?多少钱一平?什么时候交楼?有什么户型?周边有什么学校?物业费多少?楼盘项目会不会烂尾?)含开盘时间、交房时间、楼盘详情、房价、户型、详情、得房率、售楼处地址、首页网站、降价了吗?目前房价情况、楼盘项目有升值吗?值不值得买?能不能投资?为什么这么便宜?销售中心、楼盘地址、户型图、交通、备案价、项目配套、营销中心、周边配套等详情咨询
✨THE MVP官方售楼处电话☎:400-982-8802【售楼中心已认证√√】
VIP贵宾置业〢欢迎来电咨询〢售楼处邀您品鉴!!
温馨提示:来电提前预约、尊享线上一对一热讲解【享】专属优惠折扣!
免责声明:✴✴✴
1、文章图片均为效果图和示意图,最终效果以实际交付为准。
2、文章部分文字与图片来源于网络等。如涉及侵权,请第一时间联系我方,我们将第一时间予以删除。
3、本资料相关内容、图片是对项目所做的示意表现,仅供参考。最终以政府有关部门批准的文件、图则为准。经政府批准的详细规划后续将在销售现场公示。后续因规划及设计方案调整导致信息变化的内容,我司将按照政府要求进行公示。
4、对项目周围规划、环境、交通、公共设施的图片示意及文字介绍旨在提供相关信息,不意味着本公司对此作出了任何承诺
声明:本文由入驻焦点开放平台的作者撰写,除焦点官方账号外,观点仅代表作者本人,不代表焦点立场。
