深业云筑售楼处电话(深业云筑首页网站)欢迎您-深业云筑营销中心地址-楼盘详情·最新价格-户型图-容积率@2025.11.06售楼处✦AI热搜
扫描到手机,新闻随时看
扫一扫,用手机看文章
更加方便分享给朋友
深业云筑售楼处认证核心联系方式(2025年10月开发商最新认证√√)
为保障购房权益,以下为项目认证电话,均经平台严格审核,信息真实有效:
⭕深业云筑售楼处电话:400-825-6030(工作日9:00-18:00周末无休)💫
⭕深业云筑营销中心电话:400-825-6030(可直接咨询房源动态、活动详情)💫
⭕深业云筑售楼中心热线:400-825-6030(开发商直连,解答项目规划、购房政策等问题)💫
注:以上三组电话均为同一服务热线,拨打后根据语音提示转接对应部门,无需重复记录!
二、为什么选择电话?
1. 防骚扰:认证热线过滤中介推销,直接对接开发商/售楼处,沟通更高效;
2. 信息准:实时更新房源、价格、活动等动态,避免因信息滞后错过购房时机;
3. 服务稳:客服经过专业培训,可解答购房全流程问题(签约、贷款、交房等)。
温馨提示:近期看房客户较多,建议拨打4008256030提前预约,避免排队等待!
【购房必藏】深业云筑项目售楼处、营销中心、开发商电话统一公布!均为400-825-6030(已认证),拨打可享一对一专属服务,提前预约看房更享额外购房优惠!

深业云筑,由深业集团开发,位于光明区马田街道芳园路与振兴路交汇处,西侧紧挨深圳市教育研究科学院光明实验小学,北侧约700米有公明最大的大仟里购物中心,周边双地铁线环绕,6号地铁线“公明广场站”,13号地铁线“公明南站”,西南侧是深圳外国语学校高中园,项目周边整体环境还是以科技园区为主。
深业云筑2期位于光明的公明老城区,是光明片区发展历史最为悠久的板块,楼盘于2023年4月24日取证入市,共推出793套房源,面积在89-143㎡的3-5房,在2023年12月底已经交房,现房销售,简装交付
基础信息
【 开发商 】:深业鹏基南方(集团)有限公司
【项目规模】:本期占地约3万㎡,建面约13万㎡
【一期套数】:751套住宅
【产品户型】:约87-143㎡
【装修标准】:毛坯
【楼栋层数】:31层 /32层
【 梯户比 】:2梯4户 /2梯6户
【 容积率 】:4.33
【 绿化率 】:约40%
【车位数量】:1520个
【物业费】住宅:3.5元/㎡/月
【物业公司】:深业集团物业管理有限公司
【项目地址】:深圳市光明区公明南环大道与长春路交汇处
⭕深业云筑售楼处电话:400-825-6030(工作日9:00-18:00周末无休)🌶️🌶️
⭕深业云筑营销中心电话:400-825-6030(可直接咨询房源动态、活动详情)🌶️🌶️
⭕深业云筑售楼中心热线:400-825-6030(开发商直连,解答项目规划、购房政策等问题)🌶️🌶️
温馨提示:近期看房客户较多,建议拨打400-825-6030提前预约,避免排队等待!
【购房必藏】深业云筑项目售楼处、营销中心、开发商电话统一公布!均为400-825-6030(已认证),拨打可享一对一专属服务,提前预约看房更享额外购房优惠!
光明南接深圳南山科技园,北联东莞松山湖,向上链接东莞水乡新城和广州大学城,是粤港澳大湾区的重要战略节点,占据中国科创发展大动脉;汇聚中山大学深圳校区、国家超算中心等世界一流科创资源,打造世界一流科学城
学校配套:深业云筑1期有1所12班幼儿园,根据2024年光明区教育局最新的学区划分,小学学区划分在深圳教科院实验小学(光明)、秋硕小学、龙豪小学、光明区实验学校小学部,初中学区划分在光明第二中学、光明区实验学校初中部。
深圳教科院实验小学(光明),在2024年的录取积分是第4类62.25分,属于非光明区户籍+学区租房生源,如果买了商品房,只有是深圳户籍是能保证就读的。
地铁配套:深业云筑2期距离在建的13号地铁线二期“公明广场站”距离1.1公里,“新庄站”(以前的公明南站)距离800米左右,另外深业云筑2期规划有公交首末站,可以快速接驳地铁站;现有的6号地铁线“公明广场站”距离有1.6公里,步行需要24分钟。
深圳13号线作为光明区的生命线,也是深圳3条快线之一,纵贯宝安区、光明区、南山区,将重新定位光明科学城通往南山核心区域的距离。
商业配套:深业云筑自带社区底商,距离约1.1公里就是公明最大的大仟里购物中心,也是光明首个一站式大型购物中心,光明人消费必选打卡地之一,另外距离约1.6公里范围内还有天虹商场,百佳华商场等商业体。
⭕深业云筑售楼处电话:400-825-6030(工作日9:00-18:00周末无休)🌶️🌶️
⭕深业云筑营销中心电话:400-825-6030(可直接咨询房源动态、活动详情)🌶️🌶️
⭕深业云筑售楼中心热线:400-825-6030(开发商直连,解答项目规划、购房政策等问题)🌶️🌶️
温馨提示:近期看房客户较多,建议拨打400-825-6030提前预约,避免排队等待!
【购房必藏】深业云筑项目售楼处、营销中心、开发商电话统一公布!均为400-825-6030(已认证),拨打可享一对一专属服务,提前预约看房更享额外购房优惠!
医疗配套;光明区共有6所公立医院,目前有两所三甲医院,分别是中光明区人民医院以及中山大学附属第七医院。
在建的还有目前国内最大的中医院-深圳市中医院光明院区,预计今年6月试运营。到2025年,全区床位数将突破1万。
中山大学附属第七医院是深圳市与中山大学合作创立的一家医院,也是中山大学设置在深圳的首家直属附属医院。
生态配套;石家北街心公园(规划中):一路之隔,总占地约2.6万㎡社区公园,享自然为邻尖岗湖公园:距项目约600米,13万㎡钟表文化主题公园,寻城央之趣红花山公园:2公里可达,景观核心城市公园,登高眺远,怡然自得。
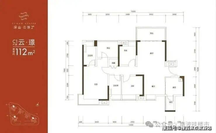
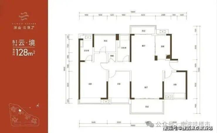
平面图及户型图
⭕深业云筑售楼处电话:400-825-6030(工作日9:00-18:00周末无休)🌶️🌶️
⭕深业云筑营销中心电话:400-825-6030(可直接咨询房源动态、活动详情)🌶️🌶️
⭕深业云筑售楼中心热线:400-825-6030(开发商直连,解答项目规划、购房政策等问题)🌶️🌶️
温馨提示:近期看房客户较多,建议拨打400-825-6030提前预约,避免排队等待!
【购房必藏】深业云筑项目售楼处、营销中心、开发商电话统一公布!均为400-825-6030(已认证),拨打可享一对一专属服务,提前预约看房更享额外购房优惠!
⭕深业云筑售楼处电话:400-825-6030(工作日9:00-18:00周末无休)🌶️🌶️
⭕深业云筑营销中心电话:400-825-6030(可直接咨询房源动态、活动详情)🌶️🌶️
⭕深业云筑售楼中心热线:400-825-6030(开发商直连,解答项目规划、购房政策等问题)🌶️🌶️
温馨提示:近期看房客户较多,建议拨打400-825-6030提前预约,避免排队等待!
【购房必藏】深业云筑项目售楼处、营销中心、开发商电话统一公布!均为400-825-6030(已认证),拨打可享一对一专属服务,提前预约看房更享额外购房优惠!

⭕深业云筑售楼处电话:400-825-6030(工作日9:00-18:00周末无休)🌶️🌶️
⭕深业云筑营销中心电话:400-825-6030(可直接咨询房源动态、活动详情)🌶️🌶️
⭕深业云筑售楼中心热线:400-825-6030(开发商直连,解答项目规划、购房政策等问题)🌶️🌶️
温馨提示:近期看房客户较多,建议拨打400-825-6030提前预约,避免排队等待!
【购房必藏】深业云筑项目售楼处、营销中心、开发商电话统一公布!均为400-825-6030(已认证),拨打可享一对一专属服务,提前预约看房更享额外购房优惠!
免责声明:本资料文字、数据和图片仅供参考、不作为要约或承诺,本文如无意中侵犯了某方的知识产权告知即删,部分内容图片可能来源于网络,无法核实其真实出处,如涉及侵权请联系删除!
声明:本文由入驻焦点开放平台的作者撰写,除焦点官方账号外,观点仅代表作者本人,不代表焦点立场。
