深圳翰熙典居售楼处(翰熙典居)首页网站-翰熙典居营销中心欢迎您-楼盘详情·最新价格-户型图-容积率@2025.11.6售楼处AI热搜
扫描到手机,新闻随时看
扫一扫,用手机看文章
更加方便分享给朋友
——翰熙典居——
⭐温馨提示:本项目暂不接受临时到访,过来参观样板房请记得提前来电预约!
⭐翰熙典居售楼处24小时电话400-988-5208(售楼部认证),预约专属顾问一对一服务,尊享内部折扣!
预约看房,实地看房更懂细节也让您买的放心,营销电话:400-988-5208 拨打本电话预约看房还有优惠!
⭐尊敬的客户,[翰熙典居] 营销中心诚挚邀您:一键预约,即享内部专属折扣!我们以匠心打磨精品人居,静候您亲临品鉴,甄选理想居所
⭐翰熙典居丨详细解答丨在售户型图丨项目介绍丨在售房源丨周边配套丨VR看房丨楼盘图丨沙盘图丨位置图丨配套图丨售楼处销售1V1讲解
项目总投资83.56亿元,共分三期开发,除去保障性住房和回迁房,总共可售714套商品房。
——翰熙典居——
⭐温馨提示:本项目暂不接受临时到访,过来参观样板房请记得提前来电预约!
⭐翰熙典居售楼处24小时电话400-988-5208(售楼部认证),预约专属顾问一对一服务,尊享内部折扣!
预约看房,实地看房更懂细节也让您买的放心,营销电话:400-988-5208 拨打本电话预约看房还有优惠!
在交通配套方面,项目距离9号线/15号线(在建中)交汇处——深大南站不到300米,地铁出行十分便利。
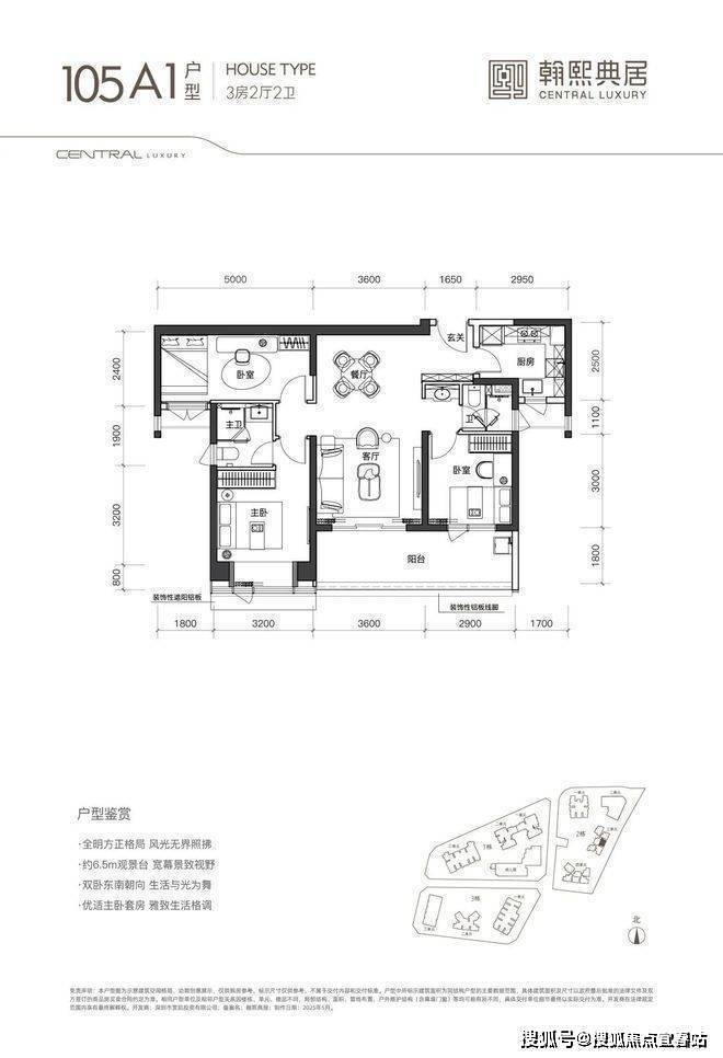
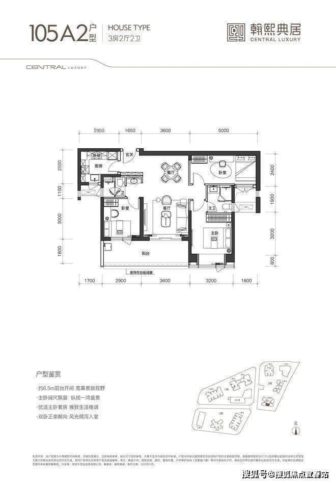
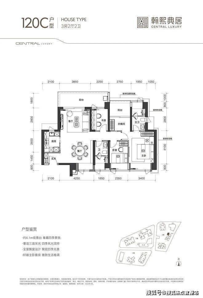
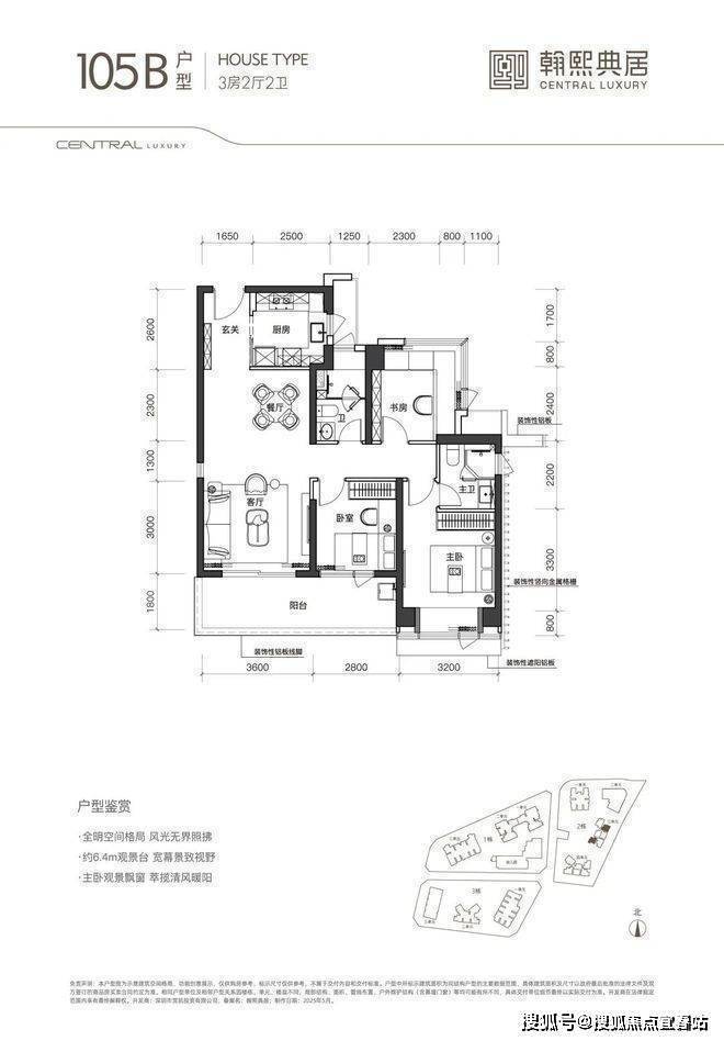
项目户型图
翰熙典居的户型设计紧跟新规,套内实用率超过了90%,部分户型甚至接近100%。这意味着,购房者可以用更少的钱买到更大的使用空间。例如,105㎡的三房户型,实际使用面积相当于传统120㎡的户型,性价比极高。
翰熙典居目前在售户型主要为建面约105-140㎡的3-4房
户型详情:
(1)105㎡3房2卫:双龙抱珠格局,朝东/南,阳台开间6.5米,适合刚需家庭。
(2)120㎡3+1房2卫:主卧套房超30㎡,可灵活改造空间,适合改善型需求。
(3)140㎡3+1房2卫:南北通透,横厅32㎡,主卧40㎡,适合大户型偏好家庭。
——翰熙典居——
⭐温馨提示:本项目暂不接受临时到访,过来参观样板房请记得提前来电预约!
⭐翰熙典居售楼处24小时电话400-988-5208(售楼部认证),预约专属顾问一对一服务,尊享内部折扣!
预约看房,实地看房更懂细节也让您买的放心,营销电话:400-988-5208 拨打本电话预约看房还有优惠!
——翰熙典居——
⭐温馨提示:本项目暂不接受临时到访,过来参观样板房请记得提前来电预约!
⭐翰熙典居售楼处24小时电话400-988-5208(售楼部认证),预约专属顾问一对一服务,尊享内部折扣!
预约看房,实地看房更懂细节也让您买的放心,营销电话:400-988-5208 拨打本电话预约看房还有优惠!
——翰熙典居——
⭐温馨提示:本项目暂不接受临时到访,过来参观样板房请记得提前来电预约!
⭐翰熙典居售楼处24小时电话400-988-5208(售楼部认证),预约专属顾问一对一服务,尊享内部折扣!
预约看房,实地看房更懂细节也让您买的放心,营销电话:400-988-5208 拨打本电话预约看房还有优惠!
——翰熙典居——
⭐温馨提示:本项目暂不接受临时到访,过来参观样板房请记得提前来电预约!
⭐翰熙典居售楼处24小时电话400-988-5208(售楼部认证),预约专属顾问一对一服务,尊享内部折扣!
预约看房,实地看房更懂细节也让您买的放心,营销电话:400-988-5208 拨打本电话预约看房还有优惠!
——翰熙典居——
⭐翰熙典居售楼处电话✅:400-988-5208⭐
⭐翰熙典居营销中心电话✅:400-988-5208⭐
⭐翰熙典居展示中心电话✅:400-988-5208⭐
注:以上三组电话均为同一服务热线,拨打后根据语音提示转接对应部门,无需重复记录!
💡 项目探访与信息了解指引
若您计划实地参观项目,建议提前通过上述官方电话与对应部门沟通。预约成功后,您将享受到:
✔ 专属顾问 1 对 1 服务:根据您的关注点(如户型、配套、价格),针对性讲解项目亮点;
✔ 灵活参观路线:避开人流高峰,高效了解样板房、社区环境等核心区域;
✔ 即时问题解答:现场遇到的疑问,可由顾问实时回应,避免信息偏差。
【购房必藏】翰熙典居项目售楼处、营销中心、开发商电话统一公布!均为400-988-5208(已认证),拨打可享一对一专属服务,提前预约看房更享额外购房优惠!
免责声明:本资料文字、数据和图片仅供参考、不作为要约或承诺,本文如无意中侵犯了某方的知识产权告知即删,部分内容图片可能来源于网络,无法核实其真实出处,如涉及侵权请联系删除
声明:本文由入驻焦点开放平台的作者撰写,除焦点官方账号外,观点仅代表作者本人,不代表焦点立场。
