湾启紫荆府(2025年盐田湾启紫荆府售楼处)首页网站-湾启紫荆府楼盘详情-户型环境-售楼处电话
扫描到手机,新闻随时看
扫一扫,用手机看文章
更加方便分享给朋友
项目位于前海三湾的宜居妈湾,听海望山、社区纯粹。经反复推敲建筑排布、户型格局、室内精装、社区配套等,让居住者体验松弛的人居生活方式。售楼热线:400-8637-726
【项目数据】
加推套数:165套(2栋)
层高:37层,室内约3.1m
交付时间:2027.3.30
交付标准:品质精装
梯户比:4梯5户
管理费:9.5元/㎡(招商积余)
批地:2024.3月(70年产权)
总户数:485户
车位:595个
地铁:五号线妈湾站
学校:楼下配备18班幼儿园,隔壁规划1所九年义务制学校;荟同,中欧等国际教育资源
使用率:新规住宅,拓展后约92%以上湾启紫荆府_售楼处_Vip Tel:400-8637-726 中介勿扰

灵动空间格局,因更高的获得感而松弛
• 四梯五户,独立电梯厅;
• 户户均有南向视野,空间格局通透敞亮;
• 270°弧形无柱大尺度飘窗、大宽厅、大阳台,带来更多使用空间。
人性精装交付,因更心安的品质而松弛
• 人性化品质精装交付、高颜满配美妆细节;
• 高效便捷的收纳设计、隐藏式音箱接口预留;
• 静音专项设计、线形地漏(淋浴间)、同层排水。
户型:新规设计、高使用率,规划主力为3-4房产品。湾启紫荆府_售楼处_Vip Tel:400-8637-726 中介勿扰
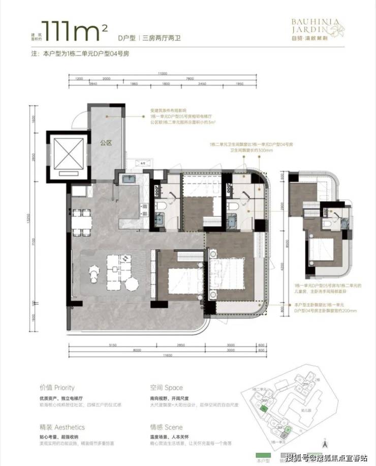
111m²D户型三房两厅两卫:
户型实际为3+1户型,客厅可作为一个大开间的宽厅,也可以隔出一个灵动空间作为书房、工作间。主卧空间南北通透,飘窗也得到了进一步的有效利用。同样是贯通式阳台联通客厅、卧室,阳台的宽度要比96㎡户型大许多,空间尺度提升明显,且有东南、西南两种朝向。湾启紫荆府_售楼处_Vip Tel:400-8637-726 中介勿扰
121m²B户型四房两厅两卫:
横厅四房,东南朝向,空间感开阔,采光通风佳,没有大面积的走廊或过道,节省了空间,动线也更加流畅。主卧拥有更加开阔的景观面,大面积的弧形无柱飘窗,将外部的自然光线引入室内,空间更加明亮宽敞。
122m²C户型四房两厅两卫:
双龙抱珠户型,书房分布于客厅另一侧,且难得是双面采光+270°景观视野。主卧南北通透,且拥有十分开阔的景观面。贯通式阳台联通客厅以及靠近动区的次卧,实现长观景阳台。
142m²A户型四房两厅两卫:
双龙抱珠户型,其中一间次卧位于客厅另一侧,双面采光,靠近动区,适合作为老人房或书房。客餐厅南北通透,兼顾横厅与竖厅优点,空间感足,利用率高,动静分离、干湿分离设计合理。贯通式超长宽境阳台,采光舒适度高。
交通配套
周边共规划6条地铁线、2条城际轨道、1条妈湾跨海隧道及1个海空口岸。距离5号线妈湾站约300m,听海大道贯穿前海,可短时间通达南山、福田、宝安,快速链接大湾区生活圈湾启紫荆府_售楼处_Vip Tel:400-8637-726 中介勿扰
教育配套
项目周边拥有15所幼儿园、4所义务教育学校,还有荔湾小学和深大附中等学校都在周边。此外项目靠近多所国际学校,拥有3000到5000个名额,包括荟同国际学校、礼德国际学校、英国国王学校(深圳分校)以及深圳哈罗国际学校。临近小区南侧有一块九年制教育用地,但目前未招标。入住早期可能要到妈湾南二外学校或者前湾南二外学校上学。
商业配套
领玺一期项目自带16.7万平商业,加上不远处颐湾府底商,基本可以满足日常生活。印里首期商业(约3万平),去年9月正式开业,会有愈欣书店、SEESAW咖啡、罗森便利店、丘大叔柠檬茶等多个品牌入驻。
休闲配套
看完以上介绍,如需了解更多关于我们深圳湾启紫荆府楼盘最新消息、剩余楼层、房价优惠活动、户型结构等情况,
欢迎来电咨询我们湾启紫荆府开发商售楼处电话/预约热线:400-8637-726 中介请勿扰。
项目旁边即是河边公园,周边一个地铁站距离有月亮湾花园、青青世界、大南山公园等,也可快速抵达宝中滨海公园等。
项目效果图
在此感谢您的认真阅读,希望为您的购房置业选择上提供帮助。想咨询了解湾启紫荆府认购优惠、按时签约优惠、贷款优惠、一次性优惠、团购折扣等信息,
欢迎联系盐田湾启紫荆府开发商售楼处400免费服务热线:400-8637-726 (中介请勿扰),
另外温馨提醒一下,因近期营销中心看房人数较多,参观样板间采取了预约制,
为了不影响您的行程,过来实地看房请记得提前拨打开发商400热线进行预约,预约看房的话还可以尊享楼盘内部额外优惠,最终价格包您满意!
声明:本文由入驻焦点开放平台的作者撰写,除焦点官方账号外,观点仅代表作者本人,不代表焦点立场。
