松茂御城(官方售楼处)首页网站-松茂御城营销中心-松茂御城欢迎您-楼盘详情-最新价格-户型图-容积率@最新售楼处
扫描到手机,新闻随时看
扫一扫,用手机看文章
更加方便分享给朋友
松茂御城售楼处认证核心联系方式(2025年11月开发商官方☎最新认证√√)
为保障购房权益,以下为项目官方认证电话,均经平台严格审核,信息真效:
✨松茂御城官方售楼处电话:400-823-9396(工作日9:00-18:00周末无休☎)
✨松茂御城官方营销中心电话:400-823-9396(可直接咨询房源动态、活动情☎)
✨松茂御城官方售楼中心热线:400-823-9396(开发商直连,解答项目规划、购房政策等问题☎)
注:以上三组电话均为同一官方服务热线,拨打后根据语音提示转接对应部门,无需重复记录。
为什么选择开发商官方认证电话?
1. 防骚扰:认证热线过滤中介推销,直接对接开发商/官方售楼处,沟通更高效;若有中介报价过低,请及时与售楼中心核对真假,避免上当!
2. 信息准:实时更新房源、价格、活动等动态,避免因信息滞后错过购房时机;
3. 服务稳:客服经过专业培训,可解答购房全流程问题(签约、贷款、交房等)。
【购房必藏】松茂御城项目官方售楼处、官方营销中心、开发商电话统一公布!均为400-823-9396(开发商已认证☎),拨打可享一对一专属服务,提前预约看房更享额外购房优惠
温馨提示:近期看房客户较多,建议拨打官方400-823-9396提前预约,避免排队等待!
近地铁·学府旁·低密品质大城
约81-135㎡N+1 全功能空间
🏡项目基础数据🏡
开发商:深圳市松茂房地产集团有限公司
总建面:约30万㎡
容积率:约4.55
绿化率:约40%
车位数:2222个
物业费:3.8元/㎡/月
物业公司:深圳市海天泰物业管理有限公司
项目地址:深圳市光明区·13号线月亮路站西侧
🌟项目核心价值🌟
✅【全功能户型】约81-135㎡N+1全功能空间,满足不同家庭居住需求:
➡81㎡三房两厅两卫,空间利用极致,功能齐全。
➡89㎡四房两厅两卫,同等面积多一间房,二孩家庭也能三代同堂。
➡108㎡阔绰四房两厅两卫,部分独立入户,品质生活一步到位。
➡135㎡稀缺阔绰五房两厅两卫,奢阔平层独门独户,悦享宽境奢居。
✅【铝板外墙】光明新盘中少有的铝板外墙项目,铸就精工品质。
✅【幕墙式阳台】约1.8米高全定制一体成型外挂式阳台玻璃,双层夹胶中空LOW-E玻璃打造而成。
✅【高品质公区配置】首层、地库双层精装入户大堂,每个楼座均配备约33-68㎡首层入户大堂。
✅【超阔楼间距】南北约128米超阔楼间距,视野开阔无遮挡,私密性更好。
✅【社区大园林】约2万㎡全龄互动大园林,打造一园五境“度假公园”式社区园林。
✅【高抬水韵主入口】主入口叠水流瀑搭配罗汉松,高抬轩昂门庭彰显尊荣威仪,于步步高升中体验归家的仪式感。
✅【双层架空泛会所】约6500㎡三层屋顶花园与双层架空层,规划5大沉浸式休闲场景,满足老人、儿童、青年的日常休闲运动所需。
✅【林水主题艺术中庭】以“与自然为邻”为设计理念,将自然渗透社区,形成各有特色的林水主题艺术中庭,在居住区中演绎自然艺术生活场景。
✅【约410㎡浮光亲子双泳池、约300米元气健康跑道】沉浸式体验“度假公园”式社区园林。
✅【约30万㎡低密大社区】光明少有的非超高层低密度大社区,低密度更宜居。
✅【精工准现楼】建筑品质、装修品质等所见即所得。
✅【核芯地段】归属凤凰街道,邻约383万㎡13号线重点城市更新,区域规划升级红利正逐步兑现。
✅【双地铁站】邻13号线(在建中)月亮路站与将围站,1站凤凰城,9站进南山。
✅【2+1实力学府】深实验光明明湖学校+深中光明科学城学校,光明区实验学校,周边还规划有两所九年一贯制学校。
✨匠心打造 铸就精工品质✨
铝板外墙 幕墙式阳台:立面甄选高品质铝板,以精湛工艺锻造精工品质,赋予建筑历久弥新的质感。搭配玻璃幕墙式阳台,勾勒简约时尚的建筑艺术,彰显人居价值与美学价值。
✨松茂御城官方售楼处电话:400-823-9396(工作日9:00-18:00周末无休☎)
✨松茂御城官方营销中心电话:400-823-9396(可直接咨询房源动态、活动情☎)
✨松茂御城官方售楼中心热线:400-823-9396(开发商直连,解答项目规划、购房政策等问题☎)
✨精装入户大堂 高品质区打造✨
首层、地库双层精装入户大堂,每个楼座均配备约33-68㎡首层入户大堂,首层大堂约4米挑高,营造高星级酒店般的尊崇归家体验。
✨南北约128米超阔楼间距✨
围合式布局,南北高达约128米阔绰楼间距,保障良好采光与生活私密性,于四季风光流转中,让生活与自然坦诚相见。
✨约2万㎡社区大园林✨
容纳双层架空泛会所、活力健康跑道、阳光草坪、露天亲子双泳池等多元休闲场景,打造“度假公园”式社区园林。
【高台阔府 水韵门庭】入口处叠水流瀑搭配罗汉松,高台轩昂门庭彰显尊荣威仪,于步步高升中体验归家的荣耀。
【双层架空泛会所 】融合儿童活动区、老年活动区、青年运动馆、会客厅等休闲场景,勾勒全龄温情日常。
【浮光亲子双泳池】约410㎡浮光亲子双泳池,配备成人泳池与独立儿童池,安全之上,更享自在畅泳的亲水时光。
【元气健康跑道】约300米环形跑道,穿行林荫花径激活满满能量,在自然中奔跑,邂逅运动的无限乐趣。
✨松茂御城官方售楼处电话:400-823-9396(工作日9:00-18:00周末无休☎)
✨松茂御城官方营销中心电话:400-823-9396(可直接咨询房源动态、活动情☎)
✨松茂御城官方售楼中心热线:400-823-9396(开发商直连,解答项目规划、购房政策等问题☎)
✨约30万㎡非超高层 低密大城 品质生活范本✨
项目总建面约30万㎡,是光明少有的非超高层低密度大社区;项目二期由8座塔楼和一所幼儿园围合而成。
✨精工准现楼 所见即所得✨
项目精工准现楼发售,建筑品质、装修品质等所见即所得。
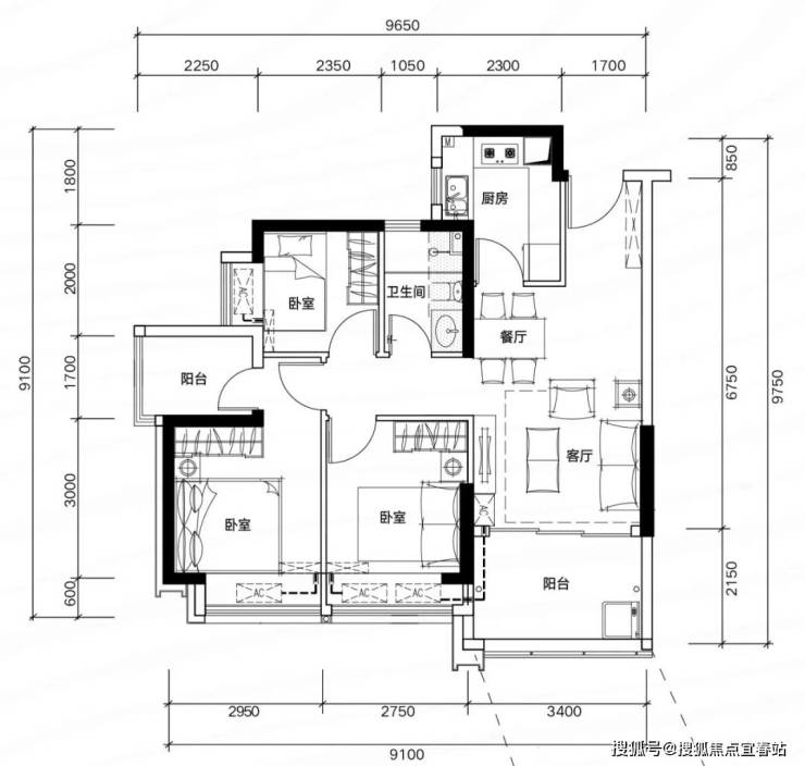
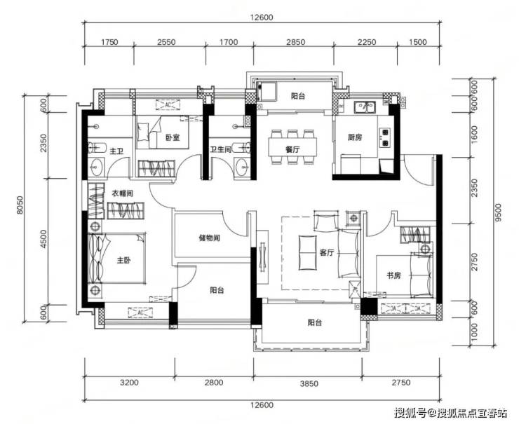
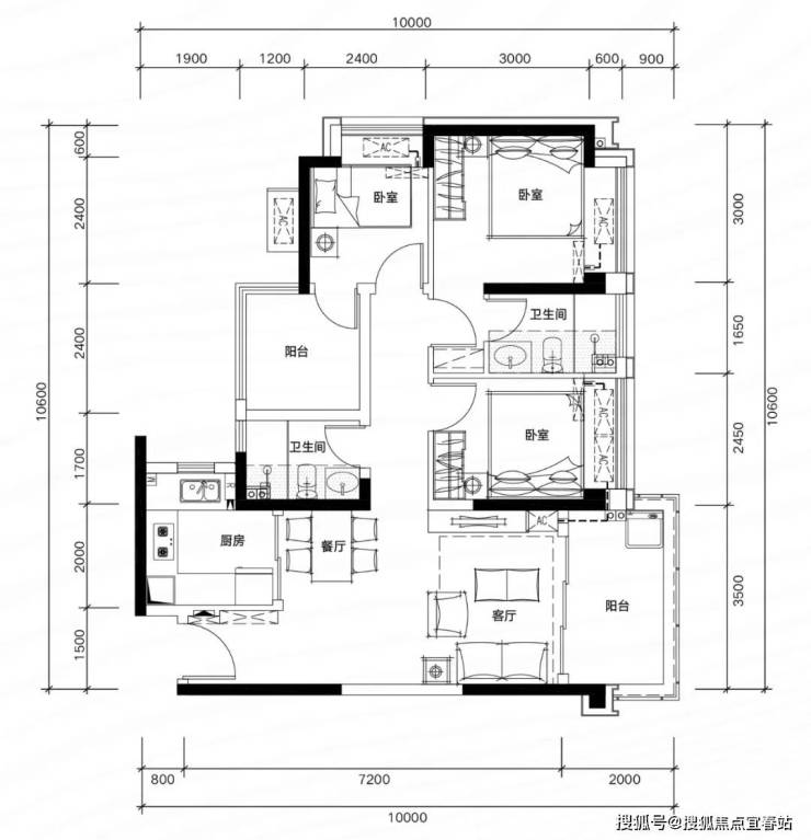
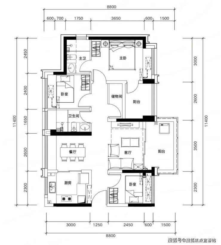
✨🔥 户型鉴赏 🔥✨
✅ H01户型:约81㎡ 三房两厅两卫:
✅ H02/03户型:约81㎡ 三房两厅两卫:
✅ G03户型:约81㎡ 三房两厅两卫:
✨松茂御城官方售楼处电话:400-823-9396(工作日9:00-18:00周末无休☎)
✨松茂御城官方营销中心电话:400-823-9396(可直接咨询房源动态、活动情☎)
✨松茂御城官方售楼中心热线:400-823-9396(开发商直连,解答项目规划、购房政策等问题☎)
✅ G05户型:约82㎡ 三房两厅两卫:
✅ B01户型:约89㎡ 四房两厅两卫:
✅ B02户型:约89㎡ 四房两厅两卫:
✅ B03/05户型:约89㎡ 四房两厅两卫:
✅ B06 户型:约109㎡ 阔绰四房两厅两卫:
✨松茂御城官方售楼处电话:400-823-9396(工作日9:00-18:00周末无休☎)
✨松茂御城官方营销中心电话:400-823-9396(可直接咨询房源动态、活动情☎)
✨松茂御城官方售楼中心热线:400-823-9396(开发商直连,解答项目规划、购房政策等问题☎)
✅ G02户型:约109㎡ 四房两厅两卫:
✅ G01户型:约135㎡ 五房两厅两卫:
✅ E03户型:约135㎡ 稀缺五房两厅两卫:
✨邻383万㎡13号线重点城市更新✨
项目位于广深港科创走廊重要节点的“世界一流科学城”光明,归属凤凰城街道,邻建面约383万㎡13号线重点城市更新单元(在建),占位光明城市发展的“价值洼地”,同享磅礴产业规划红利。13号线重点更新项目(在建),总投资约420亿元,其体量约为光明城站TOD的25倍。将结合13号线月亮路站塑造、城市蓝绿公园网络提升、产城空间更新,无限链接生产、生活、生态要素,建设成光明区“三生融合示范区”。
目前一期产业约36万㎡已竣备完工,预计2025年内交付;深实验光明明湖学校2025年已正式招生办学;凤凰文体中心等已立项,高规格城市配套正逐步兑现。
(信息参考:2023年12月8日“深圳光明”微信公众号《光明大手笔打造明湖智谷“三生融合示范区”》)
✨多维立体交通 便捷畅行大湾区✨
【13号线双地铁站】邻地铁13号线(预计2025年底开通),近享月亮路站与将围站,未来1站凤凰城,9站进南山,快速接驳南山科技园。
其中地铁13号线一期(深圳湾口岸站—上屋站)的南段(深圳湾口岸站—高新中站)已于2024年12月28日正式开通初期运营。2025年5月19日,13号线一期工程北段(高新北站至上屋站)顺利完成热滑。北段预计2025年年底开通。
✨松茂御城官方售楼处电话:400-823-9396(工作日9:00-18:00周末无休☎)
✨松茂御城官方营销中心电话:400-823-9396(可直接咨询房源动态、活动情☎)
✨松茂御城官方售楼中心热线:400-823-9396(开发商直连,解答项目规划、购房政策等问题☎)
【三纵路网】松白路、南光高速、龙大高速,高效链接福田、南山。
【四横路网】光明大道、东明大道、周家大道、公明大道,畅行光明繁华。
【一高铁站】快速接驳光明城高铁站,1站深圳北,2站达福田,3站速达香港西九龙/广州南。
✨全龄学府邻立 滋养菁英未来✨
【自建幼儿园】社区自建约2400㎡9班公立幼儿园(在建),家门口的快乐启蒙。
【全龄优质学府】距深实验光明明湖学校(已正式招生办学)直线距离约800米,周边更有深圳市光明区实验学校、深圳中学光明科学城学校、深圳市光明区凤凰城实验学校等九年一贯制学校,护航孩子更好成长。
(*本广告旨在提供相关信息,不代表我司对学校规划建设、学区划分和就读政策作出承诺,最终以政府规划及教育主管部门、办学方颁布的政策和规定为准。)
信息来源:光明区政府在线http://www.szgm.gov.cn/szgm/132104/jyfw/fwxshjz/ywjy/zcfg9/
✨多维社区配套 畅享一站式生活体验✨
【商业服务】约1.3万㎡社区商业,涵括生鲜超市、社区邮局、银行等,满足生活所需。
【社区交通】社区公交首末站,无需辗转等待,高效通勤无缝接驳周边轨道交通,出行更便捷。
【颐乐康养】社区托育中心、老年活动中心、老人日间照料中心,给家人更多关爱。
【公共绿地】约1万㎡市政公共绿地(规划),拓展多元休闲,打造第二会客厅,提升日常幸福感。
✨醇熟商圈 尽享繁华✨
约38万㎡醇熟商业,享繁华万象:约1.3万㎡社区商业(在建)、约6万㎡13号线城市更新商业(在建),5公里内同享约15万㎡光明大仟里、约10万㎡蓝鲸世界、约6万㎡万达广场等醇熟商业。
✨公园为邻 生态宜居✨
约200万㎡城市公园群,绿意荟萃:约58万㎡明湖城市公园举步即达,更新单元内约60万㎡主题公园(在建)、约6.8km茅洲河生态长廊等绿意荟萃。
✨多元文体 休闲逸趣✨
三馆一心文体配套,丰富休闲生活:13号线重点城市更新片区内规划城市展厅、博物馆、凤凰文体中心等三大场馆,3公里内近享光明文化艺术中心,涵养高阶生活逸趣。
✨松茂御城官方售楼处电话:400-823-9396(工作日9:00-18:00周末无休☎)
✨松茂御城官方营销中心电话:400-823-9396(可直接咨询房源动态、活动情☎)
✨松茂御城官方售楼中心热线:400-823-9396(开发商直连,解答项目规划、购房政策等问题☎)
✨稳健致远 品质交付铸就基业长青✨
松茂集团,以深圳为核心,重点落子粤港澳大湾区城市群,辐射华南布局全国。集团严守交付承诺,以精工品质兑现理想人居,先后开发了福田鸿运阁、宝安御景湾、御龙湾、柏景湾等众多优质项目,无论是人居品质还是交付保障,都深受市场好评。二十余年稳健发展,集团构建了房地产开发、建筑工程施工、物业管理、智慧园区、金融投资管理、商业运营六大板块,屡获殊荣,成为本土知名品牌房企。
✨松茂御城官方售楼处电话:400-823-9396(工作日9:00-18:00周末无休☎)
✨松茂御城官方营销中心电话:400-823-9396(可直接咨询房源动态、活动情☎)
✨松茂御城官方售楼中心热线:400-823-9396(开发商直连,解答项目规划、购房政策等问题☎)
免责声明:部分信息来源于网络,如果侵权,请联系400-823-9396及时删除
✅本项目暂不接受临时到访,过来参观样板房请记得提前来电预约!
万科再遇兑付关口 11亿元债券将停牌召开持有人会议
房地产头条
2025-12-31 22:29 星期三
财联社记者 王海春
①“22万科MTN004”和“22万科MTN005”两笔债券展期尚未获成功,万科又遇到一个关口; ②“21万科02”将召开持有人会议,自1月5日开市起停牌; ③该笔债券余额11亿元,到期日期为2028年1月22日,但如果发行人行使赎回选择权,则兑付日为 2026年1月22日。
财联社12月31日讯(记者 王海春)“22万科MTN004”和“22万科MTN005”两笔债券展期尚未获成功,万科又遇到一个关口。
12月31日晚间,万科发布公告,为稳妥推进2021年面向合格投资者公开发行住房租赁专项公司债券(第一期)(品种二)(以下简称“21万科02”)本息兑付工作,将召开持有人会议,对本期债券本息兑付安排调整相关事项进行审议。
为保护债券投资者利益,根据相关规定,经公司申请,“21万科02”自2026年1月5日开市起停牌。
据了解,该笔债券发行规模、当前余额均为11亿元,票面利率3.98%。本次持有人债权登记日为2026 年1月14日,会议表决时间为1月16日至1月19日。
根据相关约定,本次债券持有人会议须经单独或合并持有表决权总数50%以上的债券持有人(或债券持有人代理人)参会方可召开。
事实上,“21万科02”到期日期为2028年1月22日,但如果发行人行使赎回选择权,则本期债券的兑付日为 2026年1月22日。
“市场此前认为万科运营稳健,其发行的债券风险低、收益稳定,是不错的投资标的,不过万科近期关于债券展期的风波不断,可能会引发投资者担心。投资者是否会行权,现在还是个未知数,但如果持有人行权,意味着万科又将面临债券兑付的压力。”一家咨询机构分析师称。
业内人士认为,按照本次持有人会议的议案,为应对可能出现的行权情况,万科或吸收了此前两笔债券展期过程中的实践经验。
据万科披露的信息,本次持有人会议将审议关于调整“21万科02”回售部分债券本息兑付安排的议案,以及关于同意为“21万科02”回售部分债券增加宽限期的议案。
关于回售部分债券兑付的安排,此前的约定为,如投资者行使回售选择权,则回售部分债券的兑付日为 2026年1月22日;而议案二提出,万科现申请将回售部分债券的兑付日调整为:“如投资者行使回售选择权,则回售部分债券的兑付日为 2027年1月22日”。
议案二明确,该项调整不触发发行人对本期债券违约,议案通过后将由发行人对本期债券提供相应的增信措施。
声明:本文由入驻焦点开放平台的作者撰写,除焦点官方账号外,观点仅代表作者本人,不代表焦点立场。
