万科公园荟(售楼处)首页网站-万科公园荟营销中心-万科公园荟欢迎您-楼盘详情-最新价格-户型图-容积率@最新售楼处
扫描到手机,新闻随时看
扫一扫,用手机看文章
更加方便分享给朋友
 
 
 
 
 
 
 
海南万科深耕海南逾16年,先后开发了万科森林度假公园、万科湖畔度假公园、万科海上大都会|左岸等优质项目,布局三亚稀缺山、湖、海景观资源,营造高端人居著作。
 
万科物业
中国物业管理行业领跑者
万科物业成立于1990年,致力于让更多客户体验物业服务之美好,24H全天守候及管家式服务,目前已为全国约535万户家庭营造美好社区,在三亚也成为超15000户业主的共同选择。
连续十年蝉联“中国物业服务百强企业综合实力TOP1”
 
主城芯,公园荟
三亚城央优质轻资产
海南万科新一代公园轻资产——万科·公园荟,毗邻中央商务区、城市主轴环岛快速公路旁,外享醇熟配套,内拥约3万㎡悦动公园。
项目自带3000+户安居房社区,落位三亚人文气息浓厚的大学城板块,生活氛围浓厚;
 
➤ 万科·公园荟基础信息
占地面积:约2.6万㎡
建筑面积:约3.5万㎡
面积区间:约63-104㎡
总户数:260户
机动车停车位:264个
容积率:约1.0
物业费:3.58元/㎡/月
项目地址:三亚市吉阳区学院路123号
三亚市主城核芯
先享自贸港红利
三亚的城市规划为“一心、两翼”布局,西起崖州湾,东至海棠湾,万科·公园里位于城市中轴,“一心”北端,紧邻三亚中央商务区,先享发展机遇。
◉三亚中央商务区作为海南自由贸易港11个重点园区之一,是海南自贸港建设的核心引擎与标杆区域。
全力打造国际化区域总部经济及中央商务集聚区、国际旅游消费中心引领区,加速全球高端要素集聚,引领三亚城市更新、产业升级,成为全球产业投资、旅居度假的热土。
 
万科·公园荟占据三亚文旅横轴中点,依托环岛高速公路、学院路、迎宾路等内通外联立体交通体系,快速串联三亚湾、大东海、亚龙湾、凤凰机场等城市热点区域,实现约5km辐射范围内,一轴揽四湾。
全维配套约5km美好生活
享醇熟全资源配套,约5km美好生活圈 ,拥有城市完备的生活、医疗、教育、社交、文化、购物等众多城市级基础配套,满足生活工作所需。
医疗
①距离三亚市妇幼保健院约4.2公里
②距离三亚市第三人民医院约9.7公里
③距离三亚市人民医院约11公里
④距离海棠湾解放军301附属医院约28公里
 
教育
①幼儿园:松柏蒙特梭利、海南琼大幼儿园、三亚第三幼儿园等
②中小学:落笔小学、西南大学三亚中学、三亚华侨学校、南新校区、三亚市第一中学等
②大学城板块:约3.5公里内到达大学城,三亚学院、三亚理工学院、热带海洋学院均在范围内,学院气氛浓厚
 
娱乐
①项目与三亚市八景之一落笔洞旅游风景区相邻,距离约1公里
②距离三亚千古情景区约4.5公里
③距离龙泉谷高尔夫球场约4.8公里
 
商业
①距离乐天城商业广场约4.3公里
②距离海旅免税城约4.7公里
③距离荔枝沟商圈约5公里
④距离三亚中央商务区约6公里
⑤距离三亚大型水果海鲜蔬菜批发市场鸿港市场约7.7公里
 
三亚标杆级悦动公园社区
近享森林绿肺,毗邻约3万㎡悦动公园
万科·公园荟三面环山,有着较高的生态覆盖率,超高负氧离子,真正做到出则繁华,入则静谧。
 
悦动公园定制6大林感场景 ,开启居民“公园里的家”的新式住宅体验,阳光泳池、复合型球场、滑板场、儿童游乐空间、环形跑道等,大人与儿童都可享受亲近自然运动休闲的乐趣。
社区内打造网红食堂、超市、邻里中心、幼儿园等,足不出户即可享受便利生活。
 
 
 
 
半山全地形坡地,围合景观社区
项目顺应原生坡地形态,打造围合景观园林,私密性更强,开阔度更高。外圈建筑层层退台,楼栋分布高地错落,行成多维瞰景体系,户户有景;
 
楼宇间中庭景观,内部私享活动空间
中庭景观规划林荫憩廊、海浪林波、椰林草坪、游乐健身天地等,打造全龄共享的休闲度假平台。
 
产品鉴赏
小面积低总价 低门槛入驻三亚
 
 
 
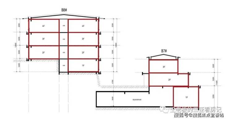
*本图为部分楼栋剖面图,仅做层高示意参考使用,具体层高、面积以买卖合同约定为准。
外圈产品
B4#环景生态空间
外圈仅3层,一楼层高约4.8m,更多使用空间,享高得房率;
二/三楼层高约3.2m,约9.3m大面宽,自带大尺度观景露台,揽山瞰园。
B4#
 
 
 
内圈产品
B8\B11#约82-98㎡百变户型
4-5层小高层,比外圈产品高出约7-10m,视野开阔,视线不受阻挡。
层高约3.2米,约9.3米大面宽,宽敞舒适;
B8#
 
 
 
 
B11#
 
 
 
 
 
 
 
 
 
 
免责声明:部分信息来源于网络,如果侵权,请联系400-823-9396及时删除
✅本项目暂不接受临时到访,过来参观样板房请记得提前来电预约!
声明:本文由入驻焦点开放平台的作者撰写,除焦点官方账号外,观点仅代表作者本人,不代表焦点立场。
 
  
  
 
 
  
  
  