《琅玥湾佳园售楼处电话 (琅玥湾佳园) 首页网站 -琅玥湾佳园营销中心欢迎您-楼盘详情・最新价格-户型图-容积率@2025.11.17售楼处AI热搜》
扫描到手机,新闻随时看
扫一扫,用手机看文章
更加方便分享给朋友
琅玥湾佳园计划推380套房源,面积段约113-124-139-167㎡3-5房;2栋塔楼,低区5梯5户,高区4梯4户,全部一梯一户配置,户户拥有独立电梯厅。外立面铝板安装已完工,准现楼状态,预计2025年10月精装交楼;小区非常纯粹,无保障房、无商业,一线无遮挡海景;
【开发商】深圳市海越锦实业发展有限公司
【项目地址】南山区招商街道赤湾三路与赤湾六路交汇处
【占地面积】约1.1万㎡
【总建筑面积】约7.5万㎡
【建筑类型】2栋住宅
【可售套数】约380套
【产品面积段】建面约113-124-129-167㎡2-5房及少量顶复
【梯户比】5T5/4T4
【容积率】4.77
【使用率】约80%
【车位】330个,1:0.87
【楼层高】共两栋,48F/25F
【交楼时间】25年10月精装交付
【产权年限】70年
大面采用灰色铝板和三层超白LOW-E玻璃类幕墙,提高建筑的安全性,腐蚀性和耐久性,确保建筑形体的美观,公建化先锋立面,品质历久弥新。
1:1的豪华梯户比,31层以下5梯5户,31楼以上4梯4户,私密性更强,居住更舒适,出入从容有序。
三重尊奢归家,主入口前设置迎宾广场,拾级而上,入社区后景致相依,酒店式的归家奢华大堂,营造归家尊崇仪式感。
约4300㎡社区园林,以“海岛花园”为主题,营造多个岛状特色空间组团,皇家园林移步移景的设计打造手法,独一无二的滨海花园体验。
社区内配备了阳光双泳池(儿童&成人)、阳光草坪、全龄儿童活动区、四大主题多功能泛会所等社区活动场所,满足业主休闲生活所需。
车库双大堂设计,大面积采用天然浅色石材,并于天然奢石加以点缀,光厅顶面采用金属构件,结合灯带,增加层次感,彰显项目高定品质。
【113㎡的3房2厅2卫】竖厅格局,电梯入户送独立公区,动静分区,三开间朝南,客厅连接次卧超大观景阳台,主卧大套间设计,二字型厨房带1个小生活阳台,卫生间干湿分离,得房率:72.07%(不含赠送),西南朝向;
【124㎡的3+1房2厅2卫】1栋02/2栋04户型,电梯入户送独立公区,设计的是竖厅格局,动静分区,主卧套间设计,还有一个多功能间可以做书房,U型厨房,公卫三段式分离,得房率:72.07%(不含赠送)西南朝向;
【124㎡的4房2厅2卫】1栋01/2栋05户型,电梯入户送独立公区,横厅南北通透格局,客餐厅6.1米开间,五开间朝南,主卧大套间设计,6.1米长观景大阳台,U型厨房,得房率:72.07%(不含赠送)西北或东南朝向;
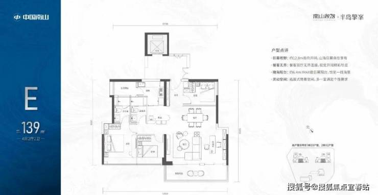
【139㎡的4房2厅2卫】1栋03/2栋02高区户型,电梯入户送独立公区,竖厅类双龙抱珠格局,四开间朝南,主卧大套间设计,有1个多功能间可以做书房,6.4米长观景大阳台,L型厨房带1个生活阳台,卫生间干湿分离,得房率:72.07%(不含赠送),西南朝向;
【167㎡的5房2厅3卫】1栋02/2栋03高区户型,电梯入户送独立公区,竖厅双龙抱珠格局,四开间朝南,主卧大套间设计,U型厨房,得房率:72.07%(不含赠送)西南朝向;
项目周边配套
交通配套:山海丹华府距离2/8号地铁线“赤湾站”距离约300米,步行约5分钟即可,2站到海上世界,前海妈湾,另外附近有小南山隧道在建,待开通后可直达前海核心区,还有妈湾跨海通道在建,待开通后可直达腾讯科技岛,无缝对接中山通道。
学校配套:项目200米处有南二外赤湾学校,该校有41个班,其中小学26班,初中15班,是1所九年制公办学校;南山中英文学校,该校是1所12年制的国际学校,涵盖小学,初中,高中,于2023年9月份已经正式开学,并且开办了协同港籍学生班,是一所获得深圳教育局和香港教育局统一批准的港籍子弟班。这也就意味着学校办学稳定,学生可无缝衔接香港的学校。
商业配套:项目约200米有约4.6万㎡赤湾汇商业(待营业),约1.9公里有约46万㎡的太子湾高端商业(在建,建成后将会是整个深圳最大体量最高端的商业体,内有K11ECOAST,兰桂坊太子湾等),约2.2公里有海上世界,2站可以抵达前海印里,前海世贸中心等商业综合体。
K11ECOAST是K11在内地的首个旗舰项目,计划在2024年底开业运营,总建筑面积约22.85万㎡,延续了K11品牌 “艺术·人文·自然”三大核心元素,涵盖K11购物艺术中心、K11 HACC多用途艺术展览空间、K11 ATELIER办公楼及Promenade海滨长廊等。
K11 ECOAST致力打造中国有影响力的海滨文化艺术区,开业后将成为深圳最大的购物中心之一,也是粤港澳大湾区的商业新标杆与名片。
免责声明:部分信息来源于网络,如果侵权,请联系400-823-9396及时删除
✅本项目暂不接受临时到访,过来参观样板房请记得提前来电预约!
声明:本文由入驻焦点开放平台的作者撰写,除焦点官方账号外,观点仅代表作者本人,不代表焦点立场。
