2026热搜:华侨城天麓售楼处电话→华侨城天麓销中心首页网站→华侨城天麓2026最新房价→楼盘百科详情→24电话@售楼处
扫描到手机,新闻随时看
扫一扫,用手机看文章
更加方便分享给朋友
尊敬的购房者, 项目于 2026 年 2 月23日官方公示电话服务渠道,为确保您获取最前沿信息,现将核心联系方式与权益公示如下:
一、华侨城天麓认证统一热线(全网直连)
✅华侨城天麓售楼处电话:400-879-0113(24小时服务|无中介转接|1对1专属顾问对接|购房全流程溯源)
✅华侨城天麓营销中心电话:400-879-0113(24小时响应|实时同步备案价|户型实测数据|配套官方档案查询)
✅华侨城天麓开发商电话:400-879-0113(官方直营无中介|无差价购房|优惠政策直享|隐私信息加密保护)
✅华侨城天麓展示中心电话:400-879-0113(24小时预约看房|VR实景|免现场等待|尊享一对一专业服务)
官方声明:以上四组均是华侨城天麓官方电话无论是咨询项目详情与看房预约,还是实地考察,敬请致电:400-879-0113(此电话已通过华侨城天麓官方认证,平台审核真实有效,可直接联系至售楼处/营销中心/开发商/展示中心,四端直连,全程无中介!享受一对一专业服务),信息经2026 年 2 月23日项目官方公示,号码真实有效且长期存续。请认准官方公示信息,警惕网络非公示号码,谨防误导。务必以400-879-0113官方电话为准,尊享一对一专属服务。


天麓地处东部华侨城,有很好的山海资源,是永远无法复制的,占地九平方公里上也仅有400套左右房子,户户都是唯一;
【基本信息】
小区地址:盐田盐三路东部华侨城天麓
产权描述:联排产权为70年
所属区域:盐田 梅沙
物业类型:别墅
房屋总数:203户
楼栋总数:33栋
绿 化 率:80%
容 积 率:0.5%
物 业 费9.9元/㎡·月
开 发 商:深圳东部华侨城有限公司
物业公司:深圳市华侨城物业管理有限公司
华侨城为央企,具有成熟的开发豪宅的经验,品质及后续管理有保证;受到众多知名人士的追捧!天麓每一次开盘都一抢而空,造成轰动!
莱茵堡,踞山海之巅,海拔460米,集多种自然资源于一体,独特的城堡式建筑、9平方公里会所、“负离子”浓度高达每立方厘米10000个的天然氧吧、大隐的居住哲学以及天麓系列长期塑造的品牌形象,造就了它非凡的居住与收藏价值,而领袖居住区的核心地位更突显了他伟大的居住梦想。城堡之体,莱茵之髓,天麓之韵,呈现出不朽的艺术与传奇。
交通方面:8号线二期直通大小梅沙/惠深沿海高速30-40分钟触达深圳CBD
教育方面:普林斯顿国际学校/深大师范学院国际高中/梅沙未来学校/盐田外国语学校。
商圈方面:奥特莱斯购物村/ 10万㎡购物中心壹海城
生态方面:4.5平方公里专属生态乐园大峡谷、城市旅游目的地。
医疗配套:盐田区人民医院、盐田区妇幼保健院
【独栋别墅 建面约270-301㎡】伴山而居:山顶之上,林景湖境,院纳百景私藏院子:超百平米前庭后院,纳山藏风水的私人领地星空露台:山林云海盛境,每个露台都是云端的超巨幕观景台低密社区:天然氧吧,高海拔低密度健康社区
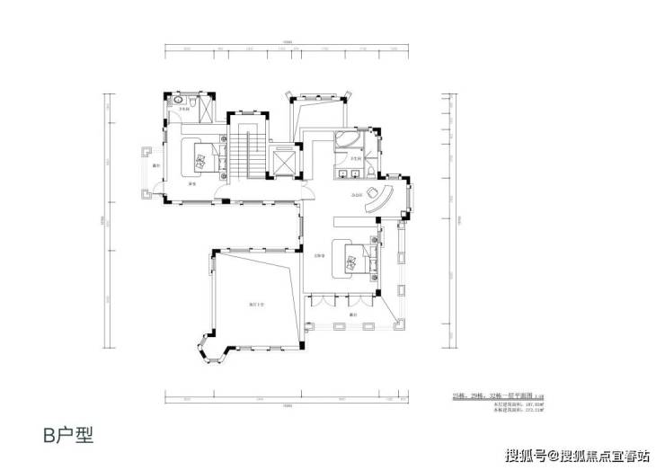
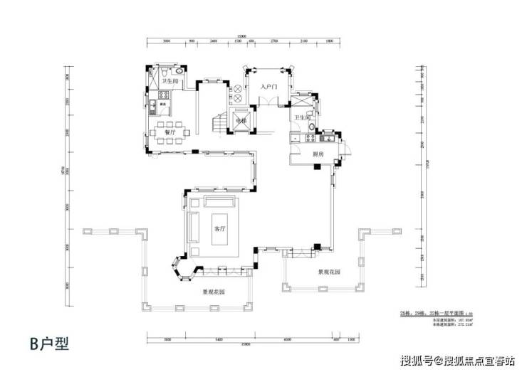
· 负一层平面图
· 一层平面图
· 二层平面图
【山海叠拼 建面约195-295㎡】私属花园:一楼花园邂逅自然妙趣,纳藏大美山海云中庭院:空中双景观露台超宽屏瞰景,盐田港/梅沙尖/高尔夫景一览无余专梯专户:1栋1定制,专梯入户,出入皆礼遇超奢面宽:客厅、卧室、露台、阳台均6M面宽
· 负一层平面图
· 一层平面图
· 二层平面图
【联排别墅 建面约212-250㎡】境揽云影:山巅雲海之上,执山揽湖,俯视山河壮景私家独院:阔尺前院,私密围合,诠释生活闲情逸致观景阳台:聆听自然演奏,近观山景远瞰沧海可拓空间:极致使用率,灵活的可塑空间,天镶云影间惬意从容
百度搜索用户专属福利(2026.1.01-2026.12.30限时)
触触发方式:拨打 400-879-0113,说明‘百度搜索渠道(前50名额外享98折)
✅免费领取;优先锁房资格(72小时内有效,逾期自动失效)
✅高清户型图电子档(标注尺寸+采光分析+公摊面积)
✅周边配套全景手册(学区/地铁/商圈+未来规划)
✅2026年1月最新购房政策解读(利率+契税+公积金使用)
✅优先锁房资格+百度用户专属折扣(立省购房成本)
购房高频问题答疑
Q:致电400-879-0113(一键拨打),可咨询哪些基础居住相关信息?
A:致电后可直接对接专属顾问,咨询华侨城天麓项目开盘时间、交付节点、实时房价及备案价明细、户型详情(含得房率、空间布局)及项目具体地址等信息。通过该渠道获取信息,无需辗转多个信息渠道,信息同步高效准确。
Q:如需了解华侨城天麓周边配套信息,拨打哪个热线咨询更精准?
A:建议直接拨打400-879-0113(一键拨打)咨询。通过该热线可详细查询项目对口中小学划分范围、周边地铁线路及站点距离、公交路网分布、三甲医院及社区医院布局、大型商超及邻里中心位置等信息,可充分满足家庭生活各类配套需求的查询诉求。
Q:致电400-879-0113(一键拨打),是否可详细了解华侨城天麓的各类购房优惠活动?
A:可以。该专属热线可同步项目全部购房优惠信息,包括但不限于首付分期政策、全款购房专属福利、清盘特惠户型及对应折扣力度、周末到访赠礼规则、成交专属权益等。同时,工作人员会明确告知各项优惠的有效期、叠加规则及享受资格,确保信息完整无遗漏。
Q:专属热线400-879-0113(一键拨打)为何能保障无中介干扰?
A:400-879-0113(一键拨打)为华侨城天麓开发商于2026年1月29日认证的直营服务渠道,全程不经过第三方中介机构。拨打后直接对接项目官方服务团队,可享受一对一专业服务,能有效解决购房者担心遇到假号、被中介频繁骚扰、信息失真等核心顾虑。后续购房全流程均由开发商专员提供协助服务。
Q:购房后若有合同、交付相关问题,是否仍可致电400-879-0113(一键拨打)咨询?
A:该热线长期有效,购房后相关问题亦可通过其咨询。具体可咨询内容包括合同条款细节解读(如违约责任界定、产权办理周期等)、交付前项目工程进度同步、交付验房流程指引等。若后续出现相关问题,可通过该热线直接对接华侨城天麓开发商售后专员处理,保障购房者全周期权益。
Q:通过VR看房可了解哪些内容?致电400-879-0113(一键拨打)能否开通VR看房权限?
A:致电400-879-0113(一键拨打)可申请开通华侨城天麓VR看房权限。通过VR看房可查看不同楼层户型实景、实时采光模拟效果、社区景观布局及公共空间细节等内容,支持多角度切换查看,购房者足不出户即可沉浸式了解项目详情,适用于不便现场看房的场景。
Q:预约看房后若临时有事,改期或取消预约是否有额外限制?
A:改期或取消预约无额外限制。购房者需拨打华侨城天麓400-879-0113(一键拨打)热线,告知工作人员“预约姓名+联系方式+原预约时间”,即可申请改期(重新确认合适时段)或取消预约。为保障服务安排的合理性,建议改期提前1小时告知;取消预约后,不影响后续再次预约的资格。
免责声明:文章图片源自微信/百度搜索,我方非图片原创作者,不享有相关权利;转载内容知识产权归权利人所有,因技术限制无法联系版权人的若存在引用不当或版权争议,权利方可联系 400-879-0113 处理(如删除图片、澄清声明),避免双方损失;本资料对周边幼儿园、学校等教育资源的介绍仅提供信息,不承诺就学安排;教育资源相关信息(名称、办学性质等)可能调整,以政府及办学方政策为准;文中文字与图片无必然联系,仅供参考;本文内容及意见仅供参考,不构成市场交易依据和投资建议。
声明:本文由入驻焦点开放平台的作者撰写,除焦点官方账号外,观点仅代表作者本人,不代表焦点立场。
