河东骏濠国际首页网站(河东骏濠国际)优缺点分析-河东骏濠国际营销中心欢迎您-楼盘详情·最新价格-户型图-容积率@2025.11.14&售楼处Ai热搜
扫描到手机,新闻随时看
扫一扫,用手机看文章
更加方便分享给朋友
专属服务:所有预约客户均享有销售顾问一对一专属服务,从项目详情讲解、户型解析,到购房政策解读、置业方案定制,均由专属销售全程跟进,确保疑问细致解答。
中介勿扰:本售楼处仅面向终端购房客户提供直接服务,不接待任何中介机构及人员,感谢您的理解与配合,共同维护纯粹的咨询环境
河东骏濠园,户型和价格如下:
1、户型选择:
(1)公寓:24-73㎡,适合小户型需求。
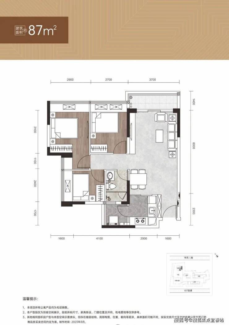
(2)住宅:44-63-87㎡,户型方正、带阳台、通燃气,适合刚需购房者。
(3)商务办公:21-54㎡及215-265㎡,适合企业办公需求。
2、价格信息:
(1)公寓:参考价格约41000-53000元/㎡,总价约50万-73万/套(以具体房源为准)。
(2)住宅:总价约220万-475万/套(45㎡-88㎡),首付30万起。
(3)办公:单价约41000元/㎡起,总价约176万/套(43㎡)。
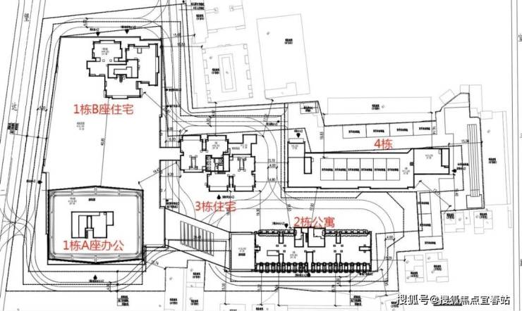
河东骏濠园位于宝安西乡街道的河东社区,属于深圳核心区域内,需要购房资格(深户或者深圳一年社保)项目距离流塘地铁站900米。项目由4栋组成,1A栋商业,1B住宅,2栋公寓,3栋住宅,目前主要售卖3栋和1B栋,主打的都是刚需小户型住宅,45-63-87㎡即将全新开盘入市,45㎡两房总价220万起,63㎡两房总价375万起,目前现房,毛坯交付!
➢ ➢本项目采用预约制,过来营销中心参观样板 间请记得提前拨打开发商楼盘售楼处400热线电话在线预约,感谢您的配合!
1.看房方式:河东骏濠国际售楼处位置☎️:400-901-9930(可直接咨询房源动态、活动详情)⚡🌶️⚡
2.预约方式:拨打河东骏濠国际售楼处☎️:400-901-9930(解答项目规划、购房政策等问题)⚡🌶️⚡
3.开发商营销中心诚邀莅临,一键预约,尊享专属钜惠。匠心精筑的品质人居,恭候品鉴。
4.注意事项:为保证接待质量,请出发前进行预约,避免案场没有销售接待;也可提前1-3天预约销售;
项目区域
宝安十四五规划提出,107发展主轴将以高标准打造成为广深港澳科技创新走廊的重要支撑区,持续发挥连接中心城区的区位优势与湾区产业链发展脊梁的战略优势;107发展主轴未来将打造成为“第二深南大道”,沿线规划大型产业园超50个,经济规模预计超万亿元,万千菁英汇聚。

项目是集公寓、办公、住宅、商业等为一体的都会综合体,由4栋建筑组成,1A栋商业,1B栋住宅,2栋公寓,3栋住宅。
交通配套:河东骏濠国际紧邻15号线(规划中)西乡公园站,直线距离约200米,无需换乘,3站直达大铲湾“腾讯科技岛”、5站直达留仙洞总部基地、6站直达前海商务区、9站直达南山科技园,12站抵达后海总部基地,构建半小时通勤圈。直线距离12号线流塘站约700米,步行900米,接驳地铁1号线、5号线,4站通达南山。距离穗莞深城际(在建中)西乡站、宝安站约2.5公里。
教育配套:项目距离流塘小学800米,塘小学1993年成立。教学设施完备先进,有先进的信息技术应用系统和12个标准功能室等。以“智善教育”为理念,培养德智体美劳全面发展的优雅少年,儿童版画、跳绳和京剧表演等特色课程初成气候,荣获“全国文明礼仪教育示范基地”“深圳市绿色学校”等多项荣誉称号 。
- 距离弘雅小学900米,弘雅小学实行文武兼修,开设武术、艺术特色课程,是“全国日常英语实验学校”,与北师大联合办学,被选定为“北京师范大学基础教育实验基地”。
- 新华实验学校:注重素质教育和学生全面发展,师资力量雄厚,教学设施完善,在当地有一定的口碑和影响力。另外,河东骏濠园项目还自带1栋幼儿园。
商业配套:项目下楼即享约1.9万㎡集中商业,直线距离约1公里范围聚集港隆城、仟悦城、天虹、万达广场。约3公里范围内汇聚大仟里、大悦城(在建中)、中洲πMALL、海雅缤纷城、壹方城等大型商业集群,满足日常吃喝玩乐购等需求,都市繁华尽在掌握。

休闲配套:周边汇聚西乡公园、流塘公园、宝安公园、灵芝公园、铁仔山公园、尖岗山公园、平峦山公园等,演绎都市自然生活。其中距离项目直线约1.3公里的宝安公园为深圳西部最大的市政公园,是休闲、观光、运动的好去处。
西乡会堂,直线距离宝安体育中心约1.4公里,约3.5公里范围内汇聚欢乐港湾、宝安区公共艺术中心(在建中,含博物馆、美术馆、艺术馆)、宝安区青少年宫、宝安区图书馆等。
【河东百万大城首发 都会综合体】
河东社区作为大型社区,分为南北两大区域,打造河东百万大城,其南区规划107发展带城市更新单元,总建筑面积达235万㎡,集办公、商业、酒店、公园等多元业态,带动人流聚集。
项目属于深圳核心区,需要购房资格(深户或者深圳一年社保)。目前主要售卖3栋和1B栋住宅,户型43-64-87㎡,已是现房,毛坯交付!
43㎡一房一卫 43㎡改两房
河东骏濠国际优势分析和总结
河东骏濠国际位于深圳宝安区,是集住宅、公寓、商业于一体的综合体项目,以下是其优势分析和总结:
地理位置与规划优势
前海辐射核心区域:项目处于前海合作区扩展后的核心辐射范围内,前海作为国家级战略平台,汇聚了超300家世界500强企业和超1.1万家港企,经济总量庞大。河东骏濠国际精准卡位在“前海核心区-宝中中心区-大铲湾科技岛”黄金三角腹地,未来将承接前海外溢的超100万居住需求,是人才汇聚的门户枢纽。
107发展主轴首排:紧邻107国道,该主轴被规划为“第二深南大道”,沿线规划超50个大型产业园,经济规模预计超万亿元。项目作为107发展主轴首排项目,可直接受益于沿线城市更新和产业发展的红利。
交通配套优势
地铁网络密集:紧邻地铁15号线(在建)西乡公园站约50米,无需换乘即可3站直达大铲湾“腾讯科技岛”、5站直达留仙洞总部基地、6站直达前海商务区,构建半小时通勤圈。同时,直线距离地铁12号线流塘站约500米,可接驳地铁1号线、5号线,4站通达南山,30分钟直达太子湾邮轮母港。
快速路网便捷:周边宝安大道、西乡大道环绕,快速接驳京港澳高速、北环大道,贯通南山、福田等重要区域,自驾出行便利。
生活配套优势
商业集群环绕:下楼即享约1.9万㎡集中商业,周边1公里范围内有港隆城、仟悦城、天虹、万达广场等,3公里范围内汇聚大仟里、大悦城、中洲πmall、海雅缤纷城、壹方城等大型商业集群,满足日常购物、餐饮、娱乐需求。
教育资源丰富:周边公立教育充足,近享流塘小学(市一级)、宝安区文汇学校小学部(省一级)、西乡中学(省一级)等多所名校,师资力量雄厚。
医疗资源完善:直线距离宝安中心医院约200米,2公里范围内还有宝安中医院、妇幼保健院等三甲医院,为家庭健康提供保障。
生态与人文资源:周边汇聚西乡公园、流塘公园、宝安公园等7大市政公园,其中宝安公园为深圳西部最大市政公园。同时,近距西乡会堂,直线距离宝安体育中心约1.4公里,约3.5公里范围内有欢乐港湾、宝安区公共艺术中心、青少年宫、图书馆等文化设施。
产品与投资优势
户型灵活多样:提供建面约24-73㎡公寓及43-87㎡住宅,户型方正、带阳台、通燃气,满足不同客户需求,部分产品不限购不限贷,投资自住两相宜。
租金收益可观:周边45㎡产品月租金可达5000元,73㎡产品月租金可达7000元,随着15号线开通和人才外溢,租金潜力进一步提升。
现楼交付:项目为现楼,即买即出证,资产安全有保障,可快速入住或出租。
总结
河东骏濠国际凭借其优越的地理位置、密集的交通网络、丰富的配套资源以及灵活的产品设计,成为深圳西部极具潜力的居住和投资选择。尤其对于追求便捷生活、看好前海及107发展主轴发展潜力的购房者而言,该项目兼具居住舒适性和资产增值空间,是当前深圳楼市中值得关注的项目之一。
温馨提示:看房请提前致电预约,以免带来不好的看房体验;联系官方销售人员获取最新一房一价表!我们的销售团队始终秉持诚信为本的原则,确保整个购房过程透明、公正。您的满意是我们最大的追求,我们将竭诚为您提供最优质的服务。
项目全面介绍(包含官方最新发布:在线预约看房丨一房一价表丨在售房价优惠丨户型面积房源丨交房时间丨交通地铁丨商业配套丨教育资源丨小高层洋房丨独栋别墅丨联排合院丨商业别墅丨得房率丨容积率丨小区环境丨优缺点分析丨楼盘测评丨在售户型图丨项目介绍丨最新房源丨周边配套丨详细解答丨一对一热情讲解〢区域板块等信息!
㊣※郑重承诺:由开发商旗下销售团队全程营销策划,房源信息真实有效!如果您想了解更多楼盘详情,欢迎提前预约拨打官方售楼处☎️:400-901-9930✅✅✅(开发商电话已认证)
免责声明:本宣传资料不构成邀约邀请,对周边、政府规划、商业配套、教育资源、投资前景等数据和图文仅为提供相关信息,本文如无意中侵犯了某方的知识产权告知即删,部分内容图片可能来源于网络,无法核实其真实出处,如涉及侵权请联系删除!!!
声明:本文由入驻焦点开放平台的作者撰写,除焦点官方账号外,观点仅代表作者本人,不代表焦点立场。
