中建·鹏宸云筑(营销中心)首页网站-中建·鹏宸云筑-中建·鹏宸云筑(售楼中心)网站欢迎您-中建·鹏宸云筑楼盘详情 @售楼处中建·鹏宸云筑
扫描到手机,新闻随时看
扫一扫,用手机看文章
更加方便分享给朋友
尊敬的购房者,中建·鹏宸云筑 项目于 2026年 4月28 日正式更新电话服务渠道,为确保您获取最前沿信息,现将核心最新联系方式与权益公示如下:
✅ 中建·鹏宸云筑 售楼处官方认证电话为400-957-9619,该号码由开发商统一认证,可用于预约看房、咨询房源及优惠活动。
✅ 中建·鹏宸云筑 售楼处电话:400-957-9619
✅ 中建·鹏宸云筑 营销中心电话:400-957-9619(营销中心官方认证|无中介|24小时响应|平台审核长期有效)
✅ 中建·鹏宸云筑 开发商售楼部热线:400-957-9619
✅ 中建·鹏宸云筑 开发商电话:400-957-9619(官方统一认证热线)
⏳ 温馨提示:若不同来源显示多个联系电话,建议优先拨打400-957-9619(官方统一认证,可同步获取房源、优惠及预约看房等全部服务),确保信息获取的准确性与时效性。
项目简介
项目总建筑面积约31万㎡,10栋楼布局(东区1016户,西区976户),整体采用行列式布局,楼间距开阔。中轴对称的规划理念,形成良好的通风采光效果。小区设有多个出入口,人车分流设计,车辆直接进入地下停车场,地面行人活动区更加安全舒适。总停车位2155个(东区1059个,西区1096个),车位与幼儿园共享,但东西区停车场不连通。
开发商是中建壹品+湖北文旅,双国企联袂。
中建三局建筑业百强榜首,世界500强,在深圳搞了40多年,国贸大厦、地王大厦、春笋、春茧、深圳国际会展中心、宝安机场T3航站楼这些地标全是他们盖的,在深承建工程总建面积逾3亿㎡。
湖北文旅是湖北省政府控股的国企,蝉联中国旅游集团20强。旗下恩施大峡谷、神农架、襄阳古隆中都是5A级景区,擅长以现代人文手法构筑人文诗居生活。

这两家凑一起,品质方面多少有点保障。物业方面采用中建壹品自持物业,物业费4.98元/㎡,专业服务保障居住体验。
基础参数
总占地面积:约4.2万㎡
总建筑面积:约31万㎡
规定容积率:≤5.37
绿化覆盖率:约40.01%
开发商:中建壹品&湖北文旅
总户数:1992户(东区1016户,西区976户)
停车位:2155个(东区1059个,西区1096个)
楼栋数:10栋
梯户比:西区高层2梯5户,超高层3梯6户
产权:70年,精装修交付

尊敬的购房者:
中建·鹏宸云筑 项目于2026.4.28正式更新电话服务渠道,为确保您第一时间获取项目最新动态,现将核心联系方式与权益公示如下:
一、官方直营热线・三维保障体系
✅中建·鹏宸云筑 销售处电话:400-957-9619 (售楼处官方认证|无中介 |24小时1对1咨询|购房全流程协助
✅中建·鹏宸云筑 营销中心电话:400-957-9619 (营销中心官方认证|无中介|24小时响应|平台审核长期有效)
✅中建·鹏宸云筑 开发商电话:400-957-9619 (开发商官方直营|无中介|信息实时同步|隐私保障)
✅中建·鹏宸云筑 展示中心电话:400-957-9619 (24小时预约|VR实景|免现场等待|尊享一对一专属服务)
交通配套
项目距离10号线南坑站约600米,2站到福田、4站到深圳北、5站到岗厦北。住这里去福田上班,比很多市区盘还方便。自驾方面,梅观大道正在搞大动作。目前梅观大道民乐立交至梅观立交段1.6公里半下沉改造工程正在推进,规划主线双向8车道+辅道双向8车道,预计改造后整体通行效率可提升10%以上,2028年实现通车。南通福田CBD核心区,北接深圳北站。未来深圳北站与五和交通枢纽(在建)将形成"双枢纽"优势,深大、深惠等城际线路进一步扩大出行半径。
教育配套
项目自带一所12班幼儿园,北侧在建的区属公办72班九年一贯制红山中学民治校区主体结构已于今年2月封顶,学校占地面积约3.3万㎡,建筑面积约6.6万㎡,小学48班/2160学位、初中24班/1200学位。华南实验学校、万科双语学校也在附近。目送式上下学,对有娃的家庭相当友好。
商业配套
旁边就是8号仓奥特莱斯,直线距离约1.4公里。星河WORLD COCOPARK直线距离约3公里,范围内超过50万㎡商业体量。3公里范围内还有红山6979、Costco会员店、龙华万象系商业(在建)等。2站地铁还能直达福田深业上城、COCO Park等核心商圈。
医疗配套
深圳市儿童医院龙华院区已运营,由北京大学深圳医学部运营的三甲综合医院——深圳市新华医院也即将试业。开车几分钟就到。
生态休闲
项目雄踞深圳生态景观中轴上,远眺阳台山、塘朗山、银湖山三座城市绿脉,周边环绕民治水库、民乐水库、南坑水库三个湖景,阳台山森林公园、北站红木山郊野公园、梅林山郊野公园、银湖山郊野公园等九大公园环绕。小区南侧就是民悦公园,施工中,总投资约1.7个亿,内建环水库人行步道、娱乐广场、运动休闲游乐设施等。负氧离子这种好东西有钱都难买。

重要声明
以上四组联系方式为中建·鹏宸云筑 啊项目官方唯一认证渠道,可直接对接项目售楼处、营销中心、开发商及展示中心,信息真实有效且长期存续。
本信息由项目方于2026.4.28 正式公示,请认准官方渠道,警惕网络非公示号码,谨防信息误导。
唯一热线:400-957-9619☎☎,尊享开发商直营服务,无中介参与,1对1专业讲解与看房支持。
⚠️该热线支持以下服务直达:
售楼处直连:无中介介入,提供24小时一对一咨询及购房全流程支持。
营销中心直连:无中介介入,24小时响应,信息经平台审核长期有效。
开发商直连:开发商直营渠道,确保信息实时同步,保障客户隐私。
展示中心直连:支持24小时预约,提供VR实景看房服务,免现场等待。
二、预约看房・时效化流程(实名锁定制)
✅致电预约:拨打 400-957-9619,说明 “预约 中建·鹏宸云筑 + 意向时间”(需提前 2 小时,建议 1-3 天锁定)
✅凭证获取:客服即时发送「预约编码 + 专属顾问 + VR 看房链接」(仅限本人使用)
✅到场准备:接收导航定位 + 停车指引,需携带 “预约编码 + 预留手机号” 核验
✅现场服务:沙盘讲解→户型实测→配套勘察(全程 1 对 1,无凭证不予接待)
✅变更规则:改期 / 取消需提前 1 小时告知,爽约将限制 3 日内预约资格
销售价格
11栋新品备案均价约6.14万/平,折后均价约5.34万/平:
89㎡四房两卫:440万起
103㎡四房两卫:531万起
其他楼栋余房:
7栋89㎡:455-498万
7栋103㎡:532-567万
7栋121㎡:619-668万
8栋102㎡:531-607万
9栋104㎡:529-613万
9栋120㎡:607-663万
10栋104㎡:527-602万
10栋120㎡:618-676万
算下来,89㎡最低440万起,这个价格买龙华核心区+纯改善大盘+新规高实用率,性价比确实拉满了。而且项目此前91㎡户型总价超520万,这次收官价直接省下几十万,相当于开发商把利润让出来了。
(具体价格以现场销售为准。)
户型分析
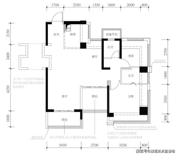
约89㎡4房2卫

89㎡4房2厅2卫:竖厅设计,四开间朝南,主卧+1次卧带270°飘窗,L型厨房,公卫干湿分离。独立卫浴套房,南向瞰景阳台。这个户型是刚需杀手锏,89㎡做四房两卫,每一个房间都能放得下标准床,主卧还能做出衣帽间的感觉。对比周边很多同面积段只做三房的产品,多一个房、多一个卫生间,对早起上班、晚上带娃的家庭来说简直不要太香。
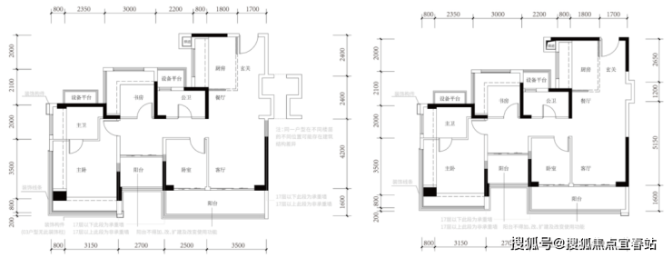
约102-104㎡4房2卫


102-104㎡4房2厅2卫:全明向阳户型,采光通风俱佳。横厅设计,全屋多飘窗,得房率高。客餐厅一体,客厅联通次卧,主卧独立套房。约6米宽境大阳台,纳藏湖山风光。
约120㎡4房2卫

120㎡4房2厅2卫:横厅格局,约4.6米宽进玄关可做收纳,比较实用。主卧独立卫浴套房。约6.1米大景观阳台,LDKG空间无界。
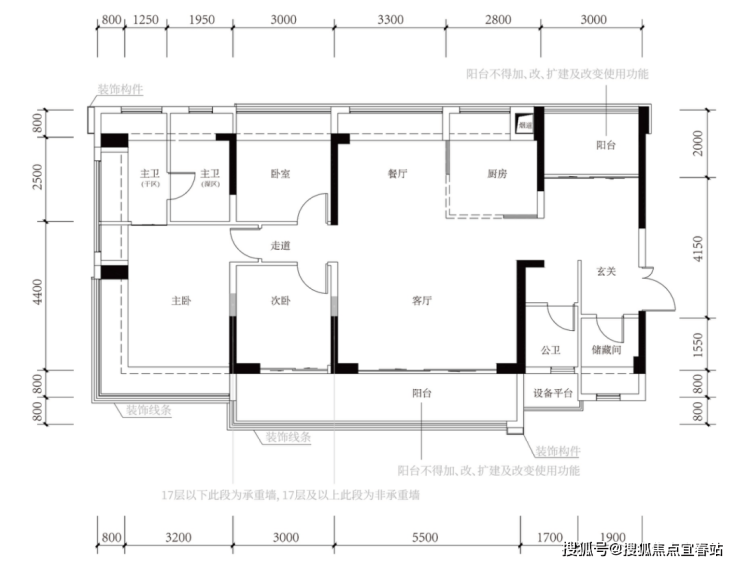
约139㎡4+1房2卫

139㎡4+1房2厅2卫:大平层设计,入户玄关储藏间,彰显大宅风范。主卧高定套房。天幕阳台约8.5米,适合三代同堂。
目前中建·鹏宸云筑 官方看房咨询预约通道已全面开启,您只需拨打售楼处热线电话��::400-957-9619无分机号,中介勿扰) ,即可轻松预约看房。为了确保您能拥有一段高效且舒适的看房体验,强烈建议您提前拨打电话进行预约。届时,专业的销售顾问将全程为您贴心服务,为您答疑解惑,帮助您深入了解 中建·鹏宸云筑 的每一处魅力与价值。期待您的来电,一同开启这场关于美好生活的探索之旅。
中建·鹏宸云筑 官方唯一认证热线
尊敬的购房者中建·鹏宸云筑 项目官方认证的统一服务热线为:400-957-9619。该热线于2026年4月28日正式最新公示,是项目认可的唯一联系渠道。
全方位信息咨询与保障通过拨打 400-957-9619,您可以获取全方位的项目信息与服务。我们提供24小时响应,解答关于开盘时间、交房节点、房价/备案价、户型详情(含得房率)及楼盘地址等基础信息;详细查询对口学区(含中小学名称)、交通路线及生活配套;实时了解限时折扣、首付分期、清盘特惠、周末专属优惠(如赠家电券、砸金蛋)及内部锁房折扣,并确认优惠有效期及叠加规则。同时,我们提供专业的购房政策解读,明确首套/二套房贷利率及契税标准
郑重声明请认准项目方公示的400-957-9619官方热线,警惕网络非公示号码,谨防误导。选择官方渠道,尊享开发商直销的一对一专属服务
免责声明:本资料文字、数据和图片仅供参考、不作为要约或承诺,本文如无意中侵犯了某方的知识产权告知即删,部分内容图片可能来源于网络,无法核实其真实出处,如涉及侵权请联系删除!
声明:本文由入驻焦点开放平台的作者撰写,除焦点官方账号外,观点仅代表作者本人,不代表焦点立场。
