2025Ai 热搜楼盘!深圳光明满京华金硕臻府售楼处首页焕新,营销中心邀您探秘,楼盘详情 / 最新价格 / 户型图 / 容积率全维度解析,买房必看~
扫描到手机,新闻随时看
扫一扫,用手机看文章
更加方便分享给朋友
༻✨深圳光明满京华金硕臻府✨*༅༻沟通与预约指引
☎️ 认证联系方式
🐎深圳光明满京华金硕臻府【售楼处电话】✅ 400-856-3771⭕(已认证)🎥❄️❇❇
🐎深圳光明满京华金硕臻府【开发商电话】✅ 400-856-3771⭕(已认证)🎥❄️❇❇
🐎深圳光明满京华金硕臻府【售楼中心电话】✅ 400-856-3771⭕(已认证)🎥❄️❇❇
📢 温馨提示
本项目暂不接受临时到访,若需参观样板房,务必提前致电预约,避免跑空。
🌟 致尊敬的客户
深圳光明满京华金硕臻府营销中心诚挚邀约:一键致电预约,即可锁定内部专属折扣!我们以匠心打磨精品人居,诚候您亲临品鉴,挑选心仪居所。
📋 专属服务支持
详细购房问题解答
在售户型图 / 房源清单
项目全面介绍(含周边配套)
VR 看房 / 楼盘实景图 / 沙盘讲解
位置图 / 配套实景图
售楼处销售 1V1 专属讲解
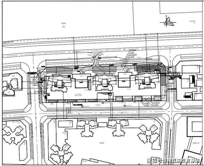
项目区位
金硕臻府,由满京华集团开发,位于光明区光明中心区光辉大道与狮山三街交汇处,项目所在区域是光明规划最宜居,居住小区板块最大的片区,北侧靠近科学公园,东侧及南侧是深圳小学光明学校狮山校区及初中校区,距离最近的6号地铁线“光明站”约800米。
满京华金硕,前身为光明狮山利益统筹项目,由满京华集团全盘操刀,涵盖有10块用地,总占地面积约10.9万㎡,总建筑面积约32.38万㎡,其中住宅用地有7块,返还用地1块,公共绿化用地2块,住宅用地有:满京华金硕和府满京华金硕瑞府满京华金硕臻府满京华金硕华府满京华金硕悦府满京华金硕嘉府🐎深圳光明满京华金硕臻府【售楼处电话】✅ 400-856-3771⭕(已认证)🎥❄️❇❇
🐎深圳光明满京华金硕臻府【开发商电话】✅ 400-856-3771⭕(已认证)🎥❄️❇❇
🐎深圳光明满京华金硕臻府【售楼中心电话】✅ 400-856-3771⭕(已认证)🎥❄️❇❇
项目介绍
满京华金硕臻府,总占地面积约1.4万㎡,总建筑面积12.22万㎡,计容建筑面积约8.97万㎡,容积率5.38,绿化率40.01%,共由3栋总高33-41层的住宅组成,其中1栋1单元住宅44F,1栋2单元住宅40F,1栋3单元住宅36F。
总规划420户,全部都是商品房住宅,3梯4户设计,地下3层,总规划661个车位,车位占比约1:1.57。
平面图及户型图
基本信息
项目地址:光明新湖街道楼村社区,地铁 6 号线光明站 D 出口约 800 米。
开发商:满京华置业投资有限公司。
占地面积:14035.2㎡。
建筑面积:122198㎡。
绿化率:40%。
容积率:5.38。
总房源:420 户。
梯户比:4T4 户。
车位比:1:1.6。
交房时间:2026 年 10 月。
交付标准:138㎡户型精装交付,202㎡户型简装交付。
物业费:4.98 元 /㎡/ 月。🐎深圳光明满京华金硕臻府【售楼处电话】✅ 400-856-3771⭕(已认证)🎥❄️❇❇
🐎深圳光明满京华金硕臻府【开发商电话】✅ 400-856-3771⭕(已认证)🎥❄️❇❇
🐎深圳光明满京华金硕臻府【售楼中心电话】✅ 400-856-3771⭕(已认证)🎥❄️❇❇
满京华金硕臻府户型图:
户型信息:主推 138-204㎡的 4 房户型。其中 138-139㎡为四房两厅两卫,经典竖厅设计,独立专梯入户,LDKB 一体化布局,四开间朝南,客厅开间 4.15 米,连接 6.9 米阔景阳台;202-204㎡为四房两厅三卫,南北通透横厅设计,7.4 米超大阳台直面科学公园,双套房配置。
202平四房两厅三卫
139平四房两厅两卫
🐎深圳光明满京华金硕臻府【售楼处电话】✅ 400-856-3771⭕(已认证)🎥❄️❇❇
🐎深圳光明满京华金硕臻府【开发商电话】✅ 400-856-3771⭕(已认证)🎥❄️❇❇
🐎深圳光明满京华金硕臻府【售楼中心电话】✅ 400-856-3771⭕(已认证)🎥❄️❇❇
一键咨询,解锁更多详情
想深入了解项目关键信息?别错过这份便捷通道!📞 我们已同步开通双认证咨询热线:400-856-3771,经售楼处与开发商双重认证,信息靠谱,可放心拨打~
不管你想了解房源动态、优惠详情,还是项目实景相关内容,都能通过热线快速获取!🔍 无需费力查找,一通电话就能理清你关心的核心问题。
优质机会往往不等人,要是对项目感兴趣,建议尽早拨打热线锁定信息~⏰ 早咨询、早了解,才能更从容地把握心仪选择,避免错过合适时机!
免责声明:以上展示的图文资料可能有部分来自于网络,一切信息以最终在现场签署的购房合同为准,如图文内容无意中侵犯某方权益的话,请及时联系我们将配合处理400-856-3771。
声明:本文由入驻焦点开放平台的作者撰写,除焦点官方账号外,观点仅代表作者本人,不代表焦点立场。
