珑远·印象翠珑湾售楼处电话(珑远·印象翠珑湾)首页网站-珑远·印象翠珑湾营销中心欢迎您-楼盘详情•最新价格-户型图-容积率@2025/10/10售楼处AI热搜
扫描到手机,新闻随时看
扫一扫,用手机看文章
更加方便分享给朋友
珑远·印象翠珑湾项目联系方式(2025年最新)
重要提醒
1,预约制要求
因近期看房客户较多,项目采取预约制,需提前拨打400-861-9050进行线上预约,避免临时到访无法接待。
2,实地考察建议
若选择线下看房,需注意:非预约客户可能被安保拦截,建议提前通过售楼处电话400-861-9050确认行程。
✨✨珑远·印象翠珑湾售楼处电话:400-861-9050(工作日9:00-21:00,周末无休)
✨✨珑远·印象翠珑湾营销中心电话:400-861-9050(可直接咨询房源动态、活动详情)
✨✨珑远·印象翠珑湾开发商电话:400-836-6879开发商直(连,解答项目规划、购房政策等问题)
珑远翠珑湾印象花园
珑远·印象翠珑湾项目位于粤港澳大湾区·水乡新城中心·TOD麻涌站,珠江口岸五大经济发展极之一,东莞城市副中心——水乡新城,距离佛莞城轨麻涌站以及东莞地铁R1线麻涌大道站(规划中)仅约500米,真正的双站口TOD低密湾居大盘.、
项目由珑远集团开发的TOP系豪宅“翠珑湾系”最新力作,品质体系全面升级——项目建面约25万㎡,浓厚居住氛围,毗邻水系广场,2.5低容积率,围合点式布局打造大中央园林,阔绰楼距视野;现代美学建筑立面设计,线条优美,简约大方;社区自带约4200㎡便捷商业配套,满足生活各种需求。
小区内部匠心巨制7万㎡现代水系园林,打造7大运动全龄场所。项目规划有95-143㎡全南低密阔景三、四房及34-55㎡臻装复式二、三室,洋房户户朝南,全系双阳台,采用“Y”型全南设计,通风采光俱佳,缔造全新豪宅人居标准。
物业类别:普通住宅,商住公寓
项目特色:品牌地产,花园洋房
建筑类别:塔楼
装修状况:精装修
产权年限:普通住宅:70年,商住公寓:40年
开发 商:珑远集团
占地面积:72439 ㎡
建筑面积:246554㎡
容积率:2.50
绿化率:31.33%
停车位:共有1811个地下停车位。
楼栋总数:17栋
总户数:2408户,共有洋房1196户,商办1212户
楼层状况:1-13栋是22-26层的高层住宅,14-17栋是16-17层的办公楼。
项目区位介绍
傲踞世界第一湾,绝对发展核心区
2017年两会后,粤港澳大湾区建设全面启动,继美国纽约湾区、旧金山湾区、日本东京湾区后世界第四大湾区,预计2022年经济总量达2.056万亿美元,成为世界第一湾!
珠江口东岸占据湾区74%经济总量,从人口、经济、区位定位、政策看,香港-深圳-东莞-广州是大湾区发展的黄金中轴线。

珠江口东岸四大经济引擎之一
粤港澳大湾区人口及产业主要集中在珠江口两岸,以前海自贸区、大空港、滨海湾新区、水乡新城中心区,这四大经济引擎共同构成了珠江口东岸经济发展带,是整个粤港澳大湾区的发展核心。
水乡新城以总部经济为核心,重点发展以国际交往、商务金融为核心,创新创意和综合服务为支撑的总部经济集聚区,定位为粤港澳大湾区及广深创新走廊的创新节点、对接穗深港台国际发展的合作门户、东莞城市副中心和水乡经济区核心。
水乡新城中心区经济政治文化中心。
围绕“一面一线两区三提升”发展规划,依托轻轨站点、莲花山过江通道等交通设施优势,打通对接广州的发展通道,发展创意研发、旅游、商住等产业,将新中心区打造成宜商宜居的“产城”融合大平台。
水乡新城中心规划面积约440万㎡,以TOD为核心区,规划建设水乡片区中心医院、文化艺术中心、北大嘉荣外国语学校等一批重大项目,以水乡新城未来经济政治文化中心为蓝图打造,集行政、居住、餐饮、购物、文娱、休闲、电子商贸于一体的新型城区。
产业升级加速世界级千亿产业汇聚。
世界500强巨头、20多个世界级产业项目云集,产业升级加速,阿里巴巴和京东华南总部落户麻涌,平安、中粮、中远船务等品牌巨头进驻,领航上百家下游企业争抢入驻。

项目交通介绍
双站口TOD,4轨交汇三站西平,一站广州。
东莞西站是珠三角重要的轨道交通枢纽站点,汇聚穗莞深城轨、莞惠城轨、佛莞城轨、东莞R1线,连接广深,珑远·印象翠珑湾500米涵盖佛莞城轨麻涌站及东莞R1线麻涌大道站,一站广州,三站西平,一轨直通深圳。
双高速,双主干道一桥广州,25分钟南城。
两大主干道:东莞大道延长线——水乡大道、麻涌大道 约25分钟直达南城CBD
两高速:广深高速和广深沿江高速 距沿江高速麻涌收费站约约5分钟车程,北往广州,约30分钟直达广州CBD,南往深圳宝安、前海,约40分钟到达宝安机场;
一通道:莲花山过江通道(过江大桥) 横跨珠江狮子洋水道,西接京珠高速和广州番禺莲花大道,加速穗莞无缝对接,预计2025年通车
项目周边配套
商业配套:完善一站式生活配套,10分钟水乡新城全系升级城市级配套。嘉荣商场(距离2公里)、星河城市广场(距离2公里)、创客坊、麻涌市场、希尔顿欢朋酒店等,精彩生活触手可及;
教育配套:项目周边3公里范围内有市一级中心小学、大步实验小学,古梅中学,麻涌中学、中国“211 工程”重点大学直属附属学校北大嘉荣外国语学校,全日制本科院校中山大学新华学院等,教育氛围十分浓厚,完全可以满足业主小孩从学前教育到大学的全龄段教育需求。

医疗配套:距项目约1公里是新水乡中心三甲医院,该医院是政府斥资5.1亿元建造,预计近两年投入使用;距项目约3.6公里的是麻涌医院,为您的健康保驾护航。 东莞市水乡三甲医院是全市第八家三甲医院,东莞目前仅七家三甲医院(市人民医院、松山湖中心医院、市中医院、东华医院、太平人民医院、厚街医院、市妇幼保健院)

生态配套:稀缺国家级资源约352万㎡华阳湖湿地公园,华阳湖国家湿地公园,国家4A级旅游景区,入选广东十大最美湿地公园,被誉为“东莞新十景”、“广东十大最美湿地”之一,其湿地覆盖率达83.91%,负氧离子高达3045个/cm³,为全市13个湿地公园之首,超世界有益标准的2倍多。 政府招商引资200亿元,将以华阳湖为核心助力打造“1亿人旅游经济圈”,建造国家级5A旅游景区,以生态带动产业,再造一个松山湖。
项目园林介绍
重金打造7万㎡水系中央园林四种情景,移步换景 园林的打造结合了东莞水乡文化与时代印象,采 取现代水系园林风格,以“水”为灵感主线演绎,将项目功能需求植入水的四种情景中,分别为:悦水、镜水、拂水、沁水,并以此打造四种场景主题园林组团空间,移步换景,彰显豪宅的风范和礼序。
项目推崇运动健康的豪宅生活理念,将园景串联起各个年龄段的功能活动区,打造亲子欢语乐园、全龄双泳池、热血球场、有氧健身区、萌宠乐园、环园悦动跑道、阳光草坪七大运动空间。
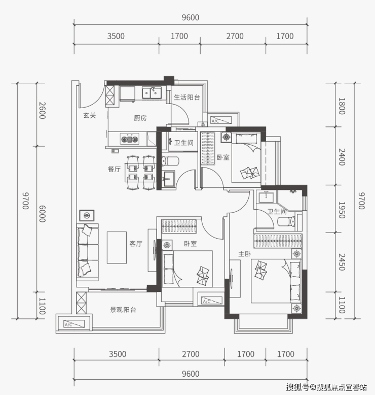
户型鉴赏
95㎡三房两厅两卫

113㎡四房两厅两卫

143㎡四房两厅三卫

【以租抵供】最强投资产品 租金抵月供 回报率5%起
33㎡复式两房,首期4万起,月供2000元/月起,而周边的两房两厅租金2000元/月,以租抵供,买到就是赚到!

【高拓产品】33-55㎡loft,买一层得两层,小面积,大空间
✅ 本项目暂不接受临时到访,过来参观样板房请记得提前来电预约!
✅ 为您安排楼盘现场销售全程接待并讲解,给您更贴心的看房体验!
如有问题欢迎来电咨询,来电即可享受买房优惠!400-861-9050
预约来电尊享购房优惠,可预约案场内部销售人员,专业一对一热情服务,让您用专业眼光去买房。
免责声明
1、文章图片来源于微信搜索或百度搜索引擎,我方非相关图片的原创作者,也不对相关图片及内容享有任何权利。
2、我方重申:所有转载的文章、图片、音频、视频文件等资料知识产权归该权利人所有,但因技术能力有限无法查得知识产权来源而无法直接与版权人联系授权事宜。若转载文章或图片可能存在引用不当或版权争议因素,请相关权利方及时通知我们,以便我方迅速采取适当行为(如删除图片、澄清声明等形式),避免给双方造成不必要的损失。
3、本宣传资料对项目周边幼儿园、学校等教育资源的介绍旨在提供相关信息,并不意味着我方对就学安排作出承诺。教育资源的名称、办学性质、办学规模、学位设置、开学(班)时间、招生条件、收费标准及招生区域存在调整的可能,应以政府教育主管部门及办学方颁布的政策规定为准。联系号码:4008366879
4、文章中文字和图片之间无必然联系,仅供读者参考。
5、本文所述内容和意见仅供参考,不构成市场交易依据和投资建议。
声明:本文由入驻焦点开放平台的作者撰写,除焦点官方账号外,观点仅代表作者本人,不代表焦点立场。
