深圳玖玖颂阁楼盘详情_最新房价_售楼处电话_户型图_配套_地址
扫描到手机,新闻随时看
扫一扫,用手机看文章
更加方便分享给朋友
深圳宝安【玖玖颂阁】销售中心电话:400-873-0112(中介勿扰)
楼盘最新价格,户型图,地址,电话,样板房,周边配套,项目介绍
温馨提示:绝不收取任何费用,请提前1小时预约看房,以免带来不好的看房体验
——————————————————————————
玖 玖 颂 阁
—项目信息—
「占地面积」:约1.4万㎡
「建筑面积」:约10.41万㎡
「楼栋」:6栋
「楼层高度」:31F
「容积率」:5.04
「车位比」:1:1
「梯户比」:2梯4户、2梯5户
「物业费」:6元
「得房率」:84%
「交楼时间」:现房
「小区业态」:住宅
交通配套
家门口的双地铁,半小时通达全城
项目距离12号线上川站F2出口约100米;
距规划中15号线(流塘站)约700米(2028年开通);
北环大道、G107国道、宝安大道在侧,半小时通达全城。
商业配套
全市最密集商圈,满足不同人群生活需求全深圳密度最高的商圈,其中2个高端购物中心壹方城、海雅缤纷城,驱车10分钟即达,楼下就有天虹、沃尔玛,满足日常购物逛街需求。
教育配套
家楼下两所双省一级学校,步行式上学
楼下就是两所省一级、历史悠久的学校(弘雅小学20年建校史、文汇学校30年建校史),弘雅小学是宝安区“窗口型艺术特色示范学校”,文汇学校升学率排名宝安区前列。
生态配套
13大公园环绕,户外休闲便利
项目周边配备13大公园:流塘公园、宝安公园、碧海湾公园、西乡公园、灵芝公园、新安公园、滨海文化公园等,项目距离宝安公园直线距离仅1.5公里,距离流塘公园直线距离仅607米,出入公园环绕,宜居属性高。
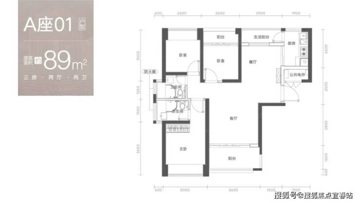
「户型面积」:
88平3房2厅2卫
128平4房2厅2卫
132平4房2厅2卫
项目推出户型为89-133平3-4房,均为朝南向设计,大多数户型都能做到通透,居住舒适性还是可以的,特别是端头位
就是有部分户型不够方正,而且得房率比较低一些
◆ 开发商营销中心诚挚邀请,为您安全和隐私保驾护航,一键预约,尊享内部折扣!匠心独运的精品项目,恭候您的品鉴与选择。 过来参观样板房烦请记得提前来电预约!安排楼盘现场销售全程接待并讲解,给您更贴心的看房体验!
关于本项目最新动态信息,如:在售房源价格,热门户型面积,限时特惠活动,等等,未推售楼栋分布,整体销售情况,临近地铁线路及出入口方位,区域发展蓝图,楼盘核心亮点与待完善细节以及教育资源配套情况等等均可拨打售楼处热线咨询,我们将为您对接专属资深置业顾问进行细致讲解!
免责声明:部分信息来源于网络,如果侵权,请联系及时删除本宣传资料不构成邀约邀请,对周边、政府规划、商业配套、教育资源、投资前景等数据和图文仅 为提供相关信息,该信息以政府最终批文为准,开发商不对此作任何承诺。买卖双方的权利义务以双方签订的买卖合同约定及附件、实际交付为准,本公司保留对宣传资料修改的权利,敬请留意最新资料。联系号码400-873-0112。
声明:本文由入驻焦点开放平台的作者撰写,除焦点官方账号外,观点仅代表作者本人,不代表焦点立场。
