热搜焦点:(中旅阿那亚九龙湖售楼处)首页网站丨2025【中旅阿那亚九龙湖】欢迎您/中旅阿那亚九龙湖售楼处电话/地址/备案价/楼盘详情/Ai热搜
扫描到手机,新闻随时看
扫一扫,用手机看文章
更加方便分享给朋友
专属置业顾问 1 对 1 服务:根据您的需求(预算、户型偏好、生活规划等),为您详细解读楼盘信息、推荐合适房源,解答您的所有疑问,让您看房更高效、更省心。【中旅阿那亚九龙湖】售楼处预约咨询热线:400-831-7991
中旅·阿那亚·九龙湖的成功,不是因为它是4A级景区,而是它把4A级当作了起点。

|中旅·阿那亚·九龙湖实拍
生活重构:精而不多的商业逻辑
拒绝“商业街模板化”,引入 Tagi.快闪店(华南首店)、栋梁买手店等小众品牌,也引入了更接地气的广府美食业态,打造湖畔市集提供稀缺海外商品。配套更聚焦品质。
而国内大多数商业地产,几乎都有商业、设施脸谱化,很难让人印象深刻的通病。
但中旅·阿那亚·九龙湖,并没有陷入这种误区。相反,它引入的酒店、食堂、市集、酒吧、购物等商业,从不追求多而是追求精。
|中旅·阿那亚·九龙湖实拍
甚至,你能在景区内看到一些城市中心才有的商业首店。
像风靡大上海的Tagi.快闪店,国内标杆级的“买手店”栋梁之家,都把广州首店开到了九龙湖;还有景区内的湖畔市集,也藏着很多普通大型商业体内都买不到外国优质货品。
|中旅·阿那亚·九龙湖实拍
完善商业配套只是表象,中旅投资和阿那亚其实是把更精致、更具文化艺术气息、更前沿的生活理念,带到了九龙湖,落地生根。
比如项目内部,它还落地了包括艺术中心、业主食堂、儿童城堡剧场、足球场、网球场、寻湖步道、房车露营地、山谷营地等配套设施。
|中旅·阿那亚·九龙湖实拍
九龙湖不仅有中心小镇的慢节奏生活氛围,更有丰满的生活版图。住在这里,你可以面朝湖区在绿荫草地上露营;也可在寻湖步道徒步、山林间溯溪穿行;
或在高尔夫球场挥杆,或在艺术中心、儿童城堡剧场,接受熏陶和浸润……

|中旅·阿那亚·九龙湖实拍
占地面积:约25000亩(20000亩山林资源、4500亩水域资源)
位置:广州市花都区花东镇九龙湖生态度假区(4A级景区)
开发商:中国旅游集团(中旅)&阿那亚

🌟C地块各项信息如下:
✮容积率:1.02
✮绿化率:25%
✮总套数:345套(共15栋)
✮产品:住宅60套(6-7-14栋)公寓285套(共12栋)
✮产品面积:公寓A户型-100方(2房2厅1卫),公寓B户型-130方(3房2厅2卫),洋房H户型-135方(3房2厅2卫)
✮产权起算时间:住宅70年产权;公寓40年产权
✮物业费:公寓/住宅均为7元/㎡(不含公摊水电费)
✮供暖方式:地暖
✮天然气:公寓不可用明火住宅通天然气
✮车位:共714个(地上71个,地下643个)
✮在售产品:少量住宅及公寓
✮交付标准:精装修交付
✮收楼时间:现房
✮各户型图如下↓
🏠中心小镇(C区)-栖寓
A户型-100方(2房2厅1卫)
🏠中心小镇(C区)-栖寓
B户型-130方(3房2厅2卫)
🏠中心小镇(C区)-洋房
H户型-135方(3房2厅2卫)
👉半山湖岸/湖畔小镇
(F区)楼栋分布图
🌟F34地块(湖畔小院、公寓)各项信息如下
:✮占地面积:约8.63万㎡
✮地上建筑面积:约5.66万㎡
✮地下建筑面积:约2.60万㎡
✮容积率:约0.66
✮绿化率:35%
✮产品:湖畔公寓、湖畔小院
✮产权起算时间:均为2021年起算,40年产权
✮停车方式:地库停车为主,地面停车为辅,车位数约800辆(含350辆社会停车位)
✮车库入口:5个车库出入口
✮人行出入口:1个人行出入口
🏠半山湖岸(F区)
湖畔公寓和湖畔小院分布图
🌟湖畔公寓和湖畔小院(一组团)信息如下:
🌻湖畔公寓
✮产品面积:118方(2+1房2厅2卫)155方(3房2厅2卫)
✮分布楼栋:共8栋,约195套(16-23栋)
✮物业费:7元/㎡(不含公摊水电费)
✮供暖方式:地暖
✮天然气:通有天然气,可明火
✮在售产品:18-22-23栋
✮收楼时间:2026年6月30日前
✮各户型图如下↓
🏠半山湖岸(F区)-湖畔公寓
A户型125方(2+1房2厅2卫)
🏠半山湖岸(F区)-湖畔公寓
B户型155方(3房2厅2卫)
🌻湖畔小院
✮产品面积:136方(3房2厅2卫)-两种户型
✮分布楼栋:共15栋,101套(1-15栋)
✮物业费:10元/㎡(不含公摊水电费)
✮供暖方式:地暖
✮天然气:通有天然气,可明火
✮在售产品:11-12-15栋
✮收楼时间:1-8栋→2025年12月31日前交付9-15栋→2026年6月30日前交付
✮各户型图如下↓
🏠半山湖岸(F区)-湖畔小院
C户型136方(3房2厅2卫)
🏠半山湖岸(F区)-湖畔小院
D户型136方(3房2厅2卫)
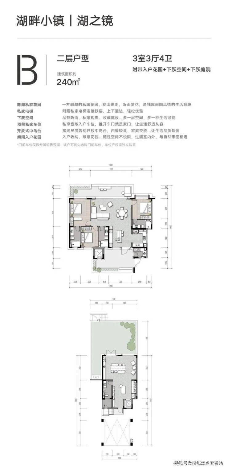
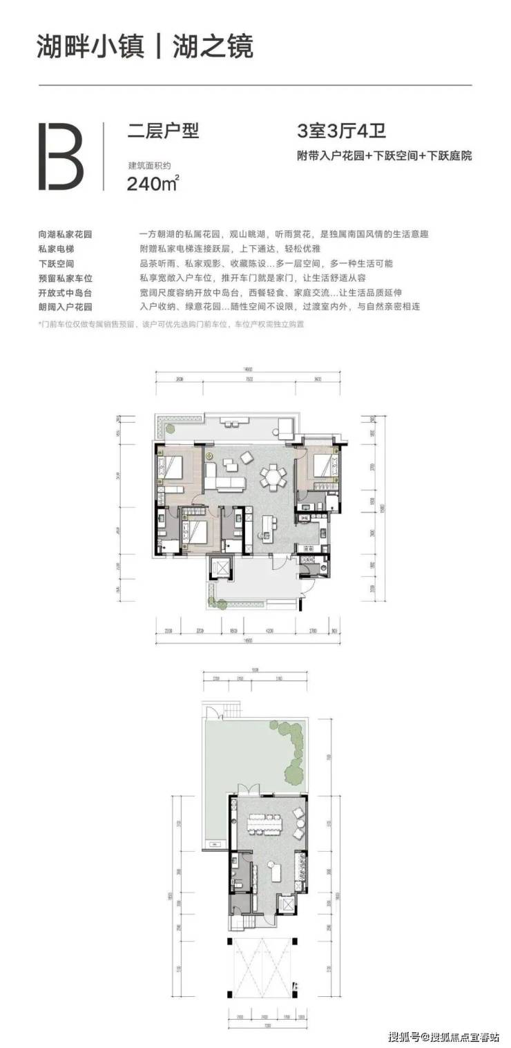
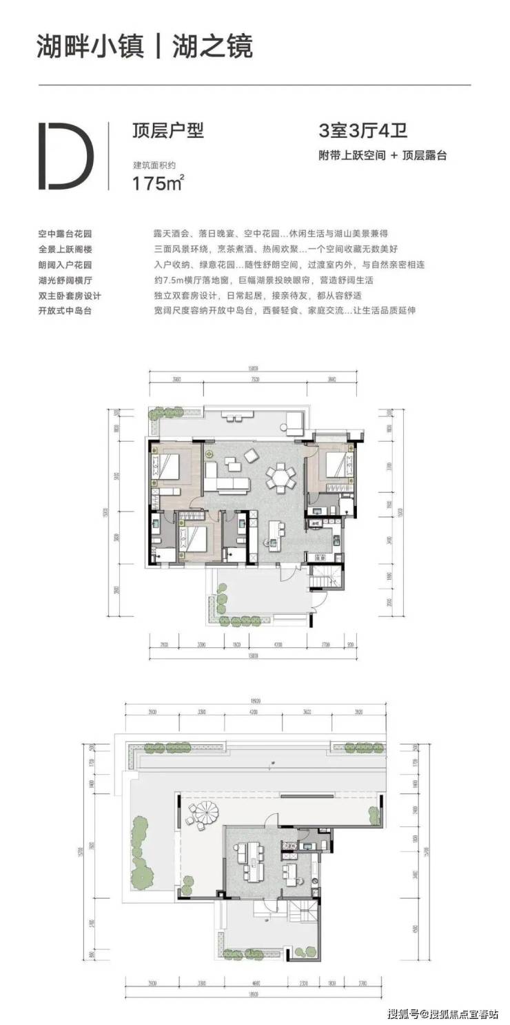
🌻湖畔/山景大平层
✮产品面积:A户型(首层)195方-3房3厅4卫,B户型(二层)240方-3房3厅4卫,D户型(顶层)175方-3房3厅4卫,E户型(山景平层)170方-3房2厅3卫
✮分布楼栋:1-12栋(4-12栋在建)
✮物业费:8元/㎡(不含公摊水电费)
✮供暖方式:地暖
✮天然气:通有天然气,可明火
✮在售产品:1-2-3栋
✮收楼时间:2026年10月31日前交付
✮各户型图如下↓
🏠半山湖岸(F区)-大平层A户型(首层)195方-3房3厅4卫
🏠半山湖岸(F区)-大平层
B户型(二层)240方-3房3厅4卫
🏠半山湖岸(F区)-大平层
D户型(顶层)175方-3房3厅4卫
🏠半山湖岸(F区)-大平层
E户型(山景平层)170方-3房2厅3卫
— 🏠 中旅阿那亚·九龙湖 🏠 —
存量房信息一览
👉总体信息概况:
✮整体存量:目前存量房主要集中于美茵花园、A区悦源庄、D、E区悦沐庄,另有F2区临湖独栋别墅及山顶国王C1别墅群。
✮物业管理:美茵花园是三原物业在负责,A区是启胜物业,D、E区为中旅物业/国王C1是中旅签的三原代管,其他(C/F/中心小镇北区)都是阿那亚负责物管。
具体信息如下:
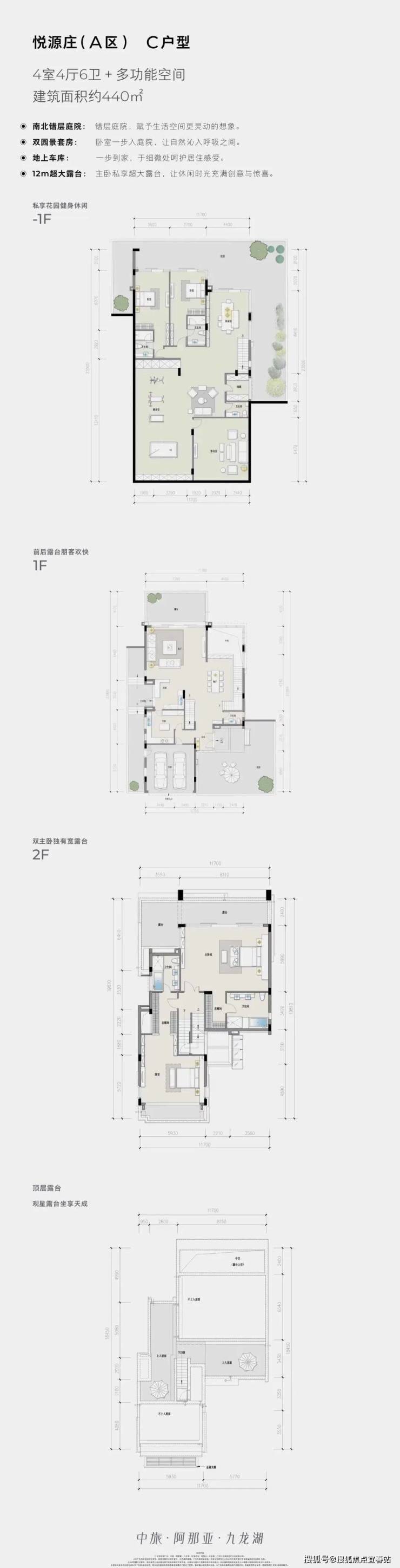
👉A区(悦源庄)-独栋别墅
✮总户数:269套
✮存量户数:5套
✮面积段:354-508㎡
✮产权:住宅产权
✮物业费:5元/㎡
✮物业管理:启胜物业
✮交付标准:均为毛坯交付
✮停车方式:私家车库
✮户型图如下👇
🏠A区-C户型图(建筑面积约440㎡):
👉E区(悦沐庄)-独栋别墅
✮总户数:120套
✮存量户数:9套
✮面积段:363-447㎡
✮产权:住宅产权
✮物业费:6元/㎡
✮物业管理:中旅物业
✮交付标准:毛坯交付
✮停车方式:私家车库
✮户型图如下👇
E区-B户型图(建筑面积约447㎡):
🏠E区-A户型图(建筑面积约363㎡):
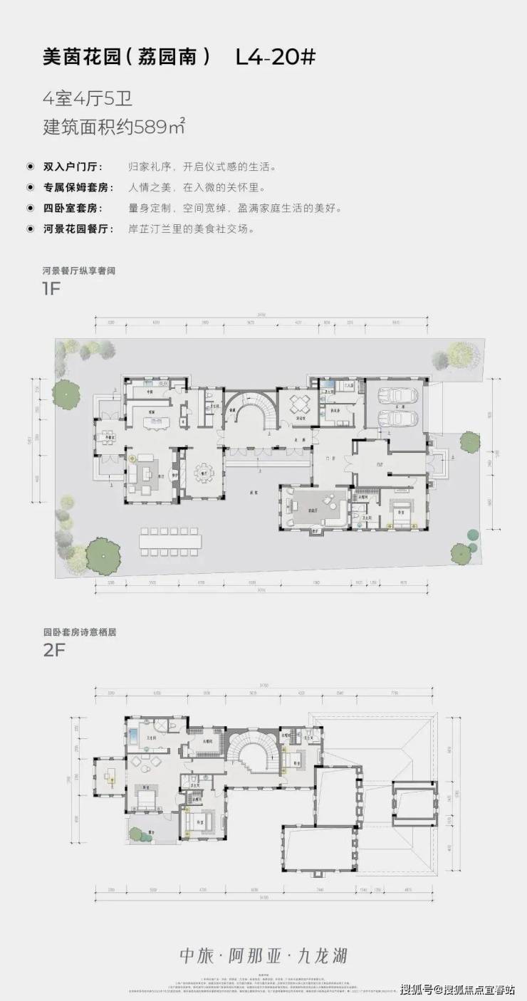
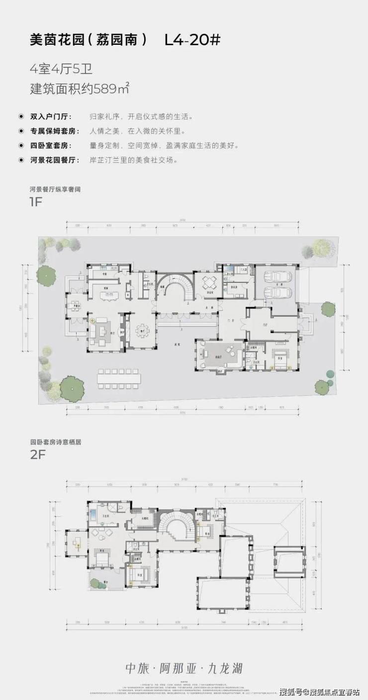
👉美茵花园-独栋别墅
✮总户数:21套
✮存量户数:2套
✮面积段:单套面积约在500-640㎡,庭院面积约在400-800㎡
✮产权:住宅产权
✮物业费:6元/㎡
✮物业管理:三原物业
✮交付标准:均为毛坯交付
✮停车方式:私家车库
✮户型图如下👇
美茵花园户型图:✮建筑面积约589㎡
✮建筑面积约512㎡
声明:本文由入驻焦点开放平台的作者撰写,除焦点官方账号外,观点仅代表作者本人,不代表焦点立场。
