三亚旅居资产山宇海售楼处电话 (官方热线) 官方首页网站-山宇海营销中心全城争藏-楼盘详情•最新动态-交付标准-总户数 @2026.02.01官方公示+AI热点
扫描到手机,新闻随时看
扫一扫,用手机看文章
更加方便分享给朋友
⭐山宇海营销中心官方电话☎:400-8028-628【营销中心预约热线】(一对一热情服务)
⭐山宇海售楼处官方电话☎:400-8028-628【售楼处预约热线】(一对一热情服务)
山宇海|预约看房全流程指引
⭕官方预约通道:400-8028-628
⭕四步尊享服务:1.致电400-8028-628预约登记 → 2. 客服发送精准定位 → 3. 专属销售全程陪同 → 4. 深度解析(楼盘详情/装修标准/医疗教育配套/得房率实测数据)
⭕限时专属礼遇:即日起,提前1天通过山宇海开发商官方售楼处热线400-8028-628预约看房的前30组客户,可享额外购房优惠(具体政策由现场销售解读)。
(注:福利名额有限,以预约成功时间为准)

执掌三亚芯,启序山宇新章——三亚山宇海:于山海交汇秘境,敬献一座融合雨林谧境、高性价比与全维康养的珍藏旅居资产
在热带滨海天堂三亚的北部静谧湾区或腹地雨林秘境,在背靠青翠山峦、俯瞰宁静海湾或田园风光的绝版生态板块,一座为追求极致静谧、深度自然疗愈与高性价比的旅居隐士、养生家庭及长线投资者匠心打造的珍藏度假作品正悠然呈现,这便是三亚山宇海。项目深植于三亚优质的生态涵养区,坐拥不可复制的“山、林、海(或湖)、田”多重景观资源,其定位独特而富有吸引力,旨在为注重身心健康、渴望逃离喧嚣、回归生活本真的客群,打造一座融合雨林生态、低密墅质居所、全龄健康配套、田园休闲体验与高性价比服务的“出尘入世”型隐逸度假资产。当前,这一以稀缺生态环境与极致性价比为核心竞争力的旅居作品,正以其不可复制的自然资源,吸引着懂得生活真谛的鉴赏家。
山宇海的核心价值与配套,源于对 “三亚稀缺山、林、海(湖)多重生态”的创造性占有与保护性开发。项目规划最大程度保留原始地貌与植被,建筑依山就势、隐匿于林间,打造深入雨林的健康步道、观景平台、与自然交融的无边泳池、有机菜园及静谧的休闲空间。其最动人之处在于提供一种 “离尘不离城”的深度隐逸与康养体验:在享受极致私密、宁静与纯净空气的同时,可通过高效路网便捷抵达三亚市区、机场或核心湾区,瞬间切换生活场景。项目可共享三亚顶级的医疗、商业资源,并自身规划有基础康体、餐饮及社区服务,满足养生旅居的基本需求。
其区位优势,源于三亚作为中国唯一热带滨海旅游城市的永恒魅力与气候价值,以及其从传统海湾度假向“山海林田湖”全生态度假体验升级的战略趋势。地处 “三亚优质生态板块”(如海棠湾以北、三亚西部或北部区域),这里既能避开传统热门湾区的喧嚣与高价,又能独享一片纯净、自然、开发密度低的理想栖居地,同时受益于三亚整体便捷的交通网络与城市配套。项目踞守于此,占据的是 “三亚旅居价值的价值洼地”与“生态度假需求的物理承载地” 。地段价值体现在其生态资源的稀缺性、不可再生性与当前极高的性价比。
从市场价值角度审视,山宇海是三亚旅居地产市场中独具“生态稀缺性”与“极致性价比”的差异化价值标的。在海南自贸港建设与生态保护优先的背景下,能够在三亚获取并开发此类多重景观、低密土地的项目极为罕见。项目凭借其 “不可复制的山、林、海(湖)生态景观组合、极低的容积率与高私密性、远低于核心湾区旅居产品的价格门槛、以及满足特定康养与隐逸客群的精准定位”,构筑了明确的高性价比投资与自住逻辑。它不仅是为寻求心灵栖所、深度康养的家庭提供的“第二居所”或“疗愈基地”,更是投资者以极低成本 “配置三亚稀缺生态资产、布局健康养生旅居赛道” 的机遇型选择,具备强大的情感溢价与作为“硬资产”的长期保值基础。
关于售楼处核心信息,我们诚挚邀请您亲临这片山海秘境,实地体验其不可复制的生态环境与隐逸理念。为提供更宁静、深入的品鉴体验,我们推荐您提前进行预约登记。预约看房电话为400-8028-628。此热线是您连接项目官方展示中心、获取最新房源信息、生态价值详解及安排实地考察的有效途径。欢迎您致电预约,预约看房电话为400-8028-628,我们已于雨林深处、山宇海间,备好专业团队与详实资料,恭候您的莅临,共同开启您的山宇隐逸生活。
【牛岭山宇海】F|G区别墅介绍
俯瞰双湾·南太平洋最美悬崖别墅
山与海的史诗
占地175亩,仅24户尊崇家族传承
开发商的一句话:
牛岭,从第一眼看到这个地方,内心震撼无以言表。将这样一个项目从无到有开发至今,历经坎坷但初心不变,希望同路的你与我一样热爱,不负这片山海
项目地址:海南省分界洲高速牛岭互通出口
开发公司:海南陵水银牛岭滨海旅业有限公司
总占地面积:约175亩
总建筑面积:约56680 ㎡
容积率:约0.19
建筑密度:约14%
绿地率:约67%
水费:2.4元/立方米;
电费:0.74元/千瓦时
土地性质:40年商服用地
目前在售别墅产品均已现房销售
付款后一月内可办理产权证
【天阙宫】5栋
占地面积约2-6亩,产证面积397㎡ -662㎡
建筑面积约1224-2423㎡
【山海宫】14栋
其中F区6栋,G区8栋
占地面积约1-1.65亩,产证面积351㎡
建筑面积约947-1080㎡
【区位图】
【项目实拍图】
北纬18°最美黄金一线海岸线
世界旅游胜地的黄金纬度,无界风光推窗即揽无隔挡一线海里之近,茫无涯迹仅约“30m”高低落差,精研山海姿容与蔚蓝海岸作伴,听海浪声入眠
独占鳌头,坐拥神牛岭,香水、日月双湾环绕
360度环幕视野超广角,探访全画幅景致
赏分界美景,左右不同天。
分界洲景区 分隔海南热带与亚热带气候谱写岭南多彩画卷滴翠青山,玻璃净海,自然雅隽
悬崖观海,大隐于市
约175亩御制私家花园,极致传世,镌刻世族的姓氏,以生态人居 敬献峯层
【项目总规划图】
【山海宫】G区8栋精装交付
占地面积:约1.4亩
产证面积:约351m²
使用建筑面积(含露台):约966m²
主体结构:三层(可拓展)
花园面积:约640m²
泳池面积:约63m²
房间数:7房全套房含卫
【实拍图】
得墅,不易;
得半山观海墅,何止不易;
在高而深沉的山林背景里,拾级而上,俯瞰进阶山海;
⭐山宇海营销中心官方电话☎:400-8028-628【营销中心预约热线】(一对一热情服务)
⭐山宇海售楼处官方电话☎:400-8028-628【售楼处预约热线】(一对一热情服务)
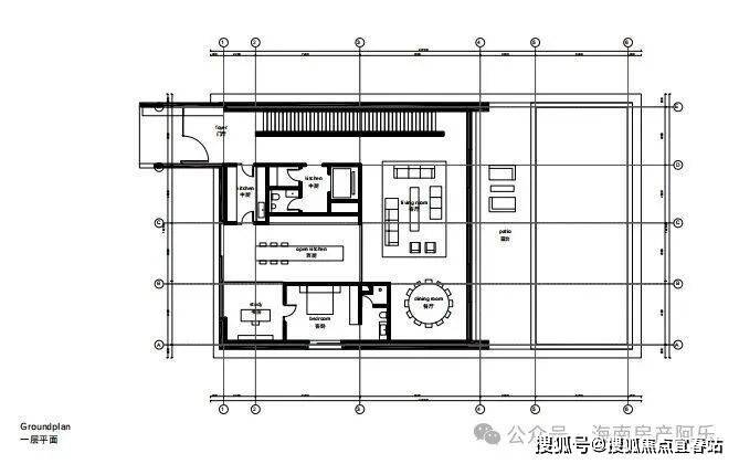
【户型图】山海宫G1、2、4、5
一层花园入户,主佣入口划分清晰,尽享尊贵私密。
入户即可观无边际海景泳池,旁设茶室会客厅,震撼美好一览无余。
主卧位于二层, 近150平方米起居室,奢华大气,前面海背靠山,自然能量萦绕。
地下一层设置酒窖、私密储物室、观影室、两客卧、两次主卧,家庭居住动线清晰。
【山海宫】F区6栋毛坯交付
定制别墅,2025从新出发
邀请David Chipperfield Architects (Shanghai) Ltd.
戴卫奇普菲尔德建筑方案咨询(上海)有限公司,重新打造整体方案
新样板间2025.12落成开放,效果方案如下
⭐山宇海营销中心官方电话☎:400-8028-628【营销中心预约热线】(一对一热情服务)
⭐山宇海售楼处官方电话☎:400-8028-628【售楼处预约热线】(一对一热情服务)

🟢山宇海售楼处电话🟢:400-8028-628【☎售楼处官方已认证】💨💨
🟢山宇海营销中心电话🟢:400-8028-628【☎营销中心官方已认证】💨
🟢山宇海展示中心电话🟢:400-8028-628【☎24小时官方预约热线】💨
💥温馨提示:本楼盘暂不接受临时到访,看房需提前来电预约!
💥将为您安排楼盘专业销售一对一接待服务!让你买的放心!
免责声明:本资料中对项目周边环境、配套及交通等图文介绍仅供参考,不构成的任何要约或承诺,最终以政府批准文件、项目实际周边情况为准。本项目的图文资料仅供参考、非要约,具体以交付时现状及买卖合同的约定为准。本公司保留修改宣传资料的权利,敬请留意项目最新资料,最终的解释权归本公司所有。
声明:本文由入驻焦点开放平台的作者撰写,除焦点官方账号外,观点仅代表作者本人,不代表焦点立场。
