绿景白石洲璟庭官方售楼处年底冲刺(绿景白石洲璟庭)营销中心欢迎您-绿景白石洲璟庭首页网站-楼盘详情·容积率-户型图@2025.12.11售楼处AI热搜
扫描到手机,新闻随时看
扫一扫,用手机看文章
更加方便分享给朋友
城市之心 超级十字轴
500万㎡无边界共享城
集商业、办公、酒店、文旅、居住于一体的城市目的地。
项目基础信息
首发一期|绿景白石洲·璟庭
建筑面积:约47.5万㎡
主力产品:建面约110-187㎡住宅
项目位置:深南大道以北、沙河东路以东
一期引入绿景智慧健康人居系统1.0,荣获国际 Fitwel 健康社区三星级认证。
在伦敦、纽约这样的超级城市,其城市主轴的黄金分割点上均屹立着城市超级影响力的项目,如伦敦金丝雀码头、纽约中央公园,而深圳的发展主轴深南大道从罗湖中心到前海中心,绿景白石洲正处于黄金分割点之上。
绿景白石洲位于深圳核心位置南山区的华侨城片区,深圳城市发展主轴——深南大道与大沙河创新走廊十字交汇点,依托华侨城人文艺术城区,链接后海总部基地、深圳湾超级总部基地、留仙洞总部基地、高新园总部基地四大总部基地。
区域•地段
绿景白石洲位于深圳南山区的核心地段华侨城片区,深圳城市发展主轴——深南大道横轴和大沙河科创走廊纵轴交汇的超级十字轴心,依托华侨城人文艺术城区,链接后海总部基地、深圳湾超级总部基地、留仙洞总部基地、高新园总部基地四大总部基地。聚合城市发展能量,为未来总部基地规划的精英技术人才打造高端生活配套区
交通配套
轨道交通——四线二站两枢纽,地铁1号线、2号线、20号线(建设中) 、29号线石洲北站(建设中),无缝覆盖更新片区。道路交通——项目自身三纵三横路网,对外连接深南大道、北环大道、沙河东路等城市干道。全球交通——快速畅达西丽高铁站(规划中)、福田高铁站、深圳北站、太子湾邮轮母港、宝安国际机场等,多枢纽立体交通,海陆空无界链接。
与罗宝线(1号线)白石洲地铁站相隔一个街口约600米,走过去不算太辛苦,有地下公共人行道就算下雨天也不会淋到雨。
教育配套
高标准打造共计57班幼儿园和共计90班的2所南山外国语集团九年一贯制学校可以跟住宅同步建成,现成的学校有南外沙河小学和南外第二实验。
休闲•生态
约3.4平方公里中央公园(规划中,包含大沙河公园、名商高尔夫、大沙河高尔夫)、约24万㎡燕晗山郊野公园、约 68.5万㎡华侨城国家湿地公园、约15公里深圳湾滨海长廊与华侨城三大主题公园(欢乐谷、世界之窗、锦绣中华民俗文化村)共同组成深圳超级公园带,每一次呼吸与远眺,都有来自国家级生态保护区的气息。
户型赏析
01
建筑面积约110㎡户型
瞰景三房,卧室标配飘窗,观景阳台展开风景画卷
餐客一体化,连通阳台,畅享全家欢聚时刻
动静分区舒适化营造,休慎与家庭活动互不干扰
主卧私享化,独立卫浴、衣帽间,自在天地一隅
02
建筑面积约118㎡户型
横向四开间设计,南向约13.4m奢华采光面,和光同悦
南向观景C位,客厅、卧室随心眺望窗外城市风景
奢享主卧,生活阳台、衣帽间、私人卫浴,独享非凡领地
餐客一体贯通阳台,打造舒适、宽敞的家庭欢聚天地
03
建筑面积约125㎡A户型
瞰景三房,飘窗、阳台拉开居住视野,主卧私享功能产备
LDK 一体化设计,打造无边界、社交化的餐客厨系统
动静分区舒适化营造,休慎与家庭活动互不干扰
双阳台设计,厨房连通生活阳台,延展更多空间,随心收纳
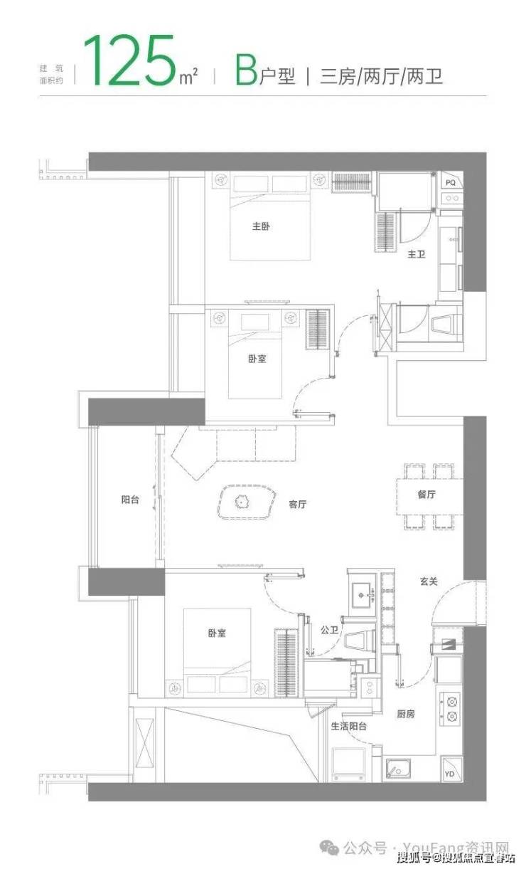
04
建筑面积约125㎡B户型
横向四开间设计,南向约14.1m奢华采光面,和光同悦
南向观景C位,客厅、卧室随处纵览非凡城市景观
奢享主卧,步入式衣帽间,私人卫浴,独享自我领地
双阳台设计,厨房连通生活阳台,延展更多空间,随心收纳
05
建筑面积约125㎡C户型
卧室标配飘窗,引入丰沛阳光,全家尽情舒展
餐客一体贯通阳台,打造舒适、宽敞的欢聚天地
奢享主卧,独享衣帽间、私人卫浴,自我非凡领地
双阳台设计,厨房连通生活阳台,延展更多空间,随心收纳
06
建筑面积约187㎡户型
横向创新户型,超宽向阳尺度,吸纳阳光新风
主卧私享化,独立卫浴、衣帽间,自在天地一隅
四开间朝南,卧室大飘窗,在阳光中享受美好栖居
南北双阳台,一面晾晒收纳,一面休闲享受,精彩不止。
【绿景白石洲】城市更新巅峰之作
以超越时代的视野,引领深圳迈向未来
全新生活方式范本,致献每一个相信深圳的人
【白石洲】城市更新馆
深圳中轴的最后一笔
启航,无界之城
未来深派生活示范样板区即将开放
绿景白石洲璟庭,作为深圳市南山区白石洲片区的一项重大城市更新项目,自规划之初便备受瞩目。本项目不仅承载着白石洲旧改的历史使命,更以其独特的地理位置、卓越的规划设计以及丰富的配套设施,成为深圳市房地产市场的一大亮点。本报告将全面、准确地调研绿景白石洲璟庭的购买价值、开发商信息、户型面积、栋数、房价优惠以及区域等关键信息,为购房者提供详实的参考依据。
综上所述,绿景白石洲璟庭作为深圳市南山区的重大城市更新项目,具有得天独厚的地理位置和资源优势。项目在购买价值、开发商实力、户型面积与栋数、房价优惠以及区域等方面都表现出色。对于有意在深圳市南山区购房的购房者来说,绿景白石洲璟庭无疑是一个值得考虑的选择。
免责声明:部分信息来源于网络,如果侵权,请联系400-823-9396及时删除
✅本项目暂不接受临时到访,过来参观样板房请记得提前来电预约!
万达商管再遇债务考验:4亿美元债拟延至2028年 核心商业资产腾挪能否换来喘息空间?
房地产头条
2025-12-08 21:07 星期一
财联社记者 李洁
①万达商管计划对一笔4亿美元、票面利率11%的境外美元债提出展期两年的方案。 ②万达商管在展期方案中坦言道,“如果该议案未能批准,发行人及附属担保人可能无法在原到期日偿还债券本金及利息,且集团其它现有债务中的交叉违约条款可能被触发。”
财联社12月8日讯(记者 李洁)
面对迫在眉睫的境外债务到期压力,大连万达商管集团一笔债券选择寻求展期。
记者12月8日获悉,大连万达商管集团就一笔美元债提出特别决议案,该方案寻求批准对其2026年2月13日到期的美元债券进行修订和豁免,该债券共计4亿美元,票面利率11%,发行人为万达地产环球有限公司。
据了解,万达商管寻求将这笔债券到期日延至2028年2月13日,债券票面利率维持年息11%不变,延长期内利息按半年支付。
“万达商管对这笔4亿美元债展期,根本原因是企业缺少现金,并面临再融资难题。”中国企业资本联盟中国区首席经济学家柏文喜告诉记者,随着行业销售下滑、融资窗口基本关闭,万达商管近一年靠卖资产、提前回购债券、支付Pre-IPO投资者款项消耗了大量流动性,目前账上现金还需优先保证2026年1月另一笔3亿美元债兑付,对2月这笔债券,只能谋求展期。
展期前景
记者拿到的这笔债券展期方案显示,万达商管计划于2026年1月5日召开债券持有人会议,以审议并酌情通过特别决议案。
这笔债券为何要展期?对此,万达商管方面在展期方案中坦陈,集团融资能力尚未完全恢复,近期其他房地产开发商的信用风险事件进一步挫伤了投资者信心与风险偏好,导致包括集团在内的行业内企业境内外融资难度加剧。
“多重因素对集团经营造成不利影响,尤其体现在现金流层面,并加大了集团短期流动性压力。”万达商管方面进一步表示,鉴于上述挑战,发行人特此征求债券持有人同意,以批准本次拟议修订及豁免事项。
记者了解到,万达的展期方案包含一些对债券持有人相对友好的条款。除维持11%的高票息,该方案还增设了强制部分赎回条款,赎回日分别为2026年1月30日、2026年8月13日、2027年2月13日及2027年8月13日。
展期方案同时赋予发行人在任何时间全额或部分按面值赎回债券的权利,并将万达香港的最低净资产要求由8亿港元调整为3亿港元。
“展期方案维持11%票息不变,但增设‘随时可按面值部分或全部赎回’的早偿条款,并下调香港平台最低股本要求,给债权人留足收益和退出通道,以提高同意率。”柏文喜在接受记者采访时说。
万达商管方面表示,此举将帮助集团缓解短期流动性压力,为有序推进业务规划及资产处置策略、实现资产价值最大化争取更多时间,并使债券偿还节奏与集团实际现金流生成能力相匹配。
而延长期内偿还债券的主要资金来源,将包括资产处置所得款、业务运营产生的经营现金流,以及来自万达商管子公司和联营公司的股息或其它分配。
事实上,这并非万达首次尝试美元债展期。
2024年12月,万达曾成功将一笔4亿美元债券的到期日从2025年1月20日延长至2026年1月12日,当时该展期方案获得了超96%债券持有人的支持,同意率极高。
对于该笔展期方案能否通过,柏文喜告诉记者,参考之前美元债展期获通过的记录,加上本次条款对债权人更友好,预计本次展期成功的概率较大,但前提是其不出现新的债务违约或重大资产查封等黑天鹅事件。
58安居客研究院院长张波也认为,万达仍持有数十座核心城市万达广场,这些资产均具备租金稳定的特点,是后续变现的重要支撑,这也为债务偿还提供了较大确定性,有助于提高持有人信心,因此预计本次展期成功的概率较大。
值得关注的是,万达商管在展期方案中坦言道,“如果该议案未能批准,发行人及附属担保人可能无法在原到期日偿还债券本金及利息,且集团其它现有债务中的交叉违约条款可能被触发。”
业内人士认为,如果出现这种情况,该公司的财务状况和运营能力可能会受到重大不利影响,债券持有人可能会损失其在债券中的大部分或全部投资。
资产腾挪背后
就在债务展期消息公布前,万达完成了一笔引人关注的资产“先赎回再卖出”操作。
12月2日,万达从新华保险旗下坤华投资手中赎回了烟台芝罘万达广场的全部股权。仅仅一天后,万达就将该广场转手出售给了中联基金。
这一快速操作被市场解读为,万达为发行消费基础设施REITs做准备的关键步骤。
“万达赎回烟台万达广场后立即转手卖给中联基金,这笔‘过桥’操作的核心目的,大概率是为发行REITs做准备。烟台芝罘广场年租金约1.2亿元、出租率接近100%,属于适合做消费基础设施REITs的标杆资产。”柏文喜告诉记者。
一位熟悉万达的人士向记者表示,万达把该广场卖给新华保险时,合同里嵌入了“优先回购权”,因此现在只能先“赎回”再过户,否则险资与国资背景的中联基金无法直接交易。
其进一步指出,中联基金专注REITs,已接盘多个万达广场,并持有国内半数类REITs产品份额;万达则继续轻资产运营并收取管理费,双方形成“金融+运营”的分工,最后以REITs方式退出。
“万达先赎回再过户,一方面解决了险资回购条款障碍,另一方面把资产转到专业证券化机构手中,为下一步发行 REITs 扫清权属与定价合规问题。”柏文喜称。
张波也认为,REITs 对底层资产的核心要求是现金流稳定、运营成熟并且产权清晰,烟台万达从出租率和租金水平来看,的确符合国内公募 REITs 对商业不动产的准入标准,这也是中联基金选择接手的重要考量因素。
而对于万达来说,随着2026年1月5日债券持有人会议的临近,万达能否复制去年96.32%的高同意率成功展期,尚未可知。
分析人士指出,若展期顺利通过,配合烟台万达等资产的REITs推进,或能为企业争取喘息空间。但战投落地的持续迟滞与债务压力的长期存在,仍在影响这家商业地产巨头未来的命运走向。
声明:本文由入驻焦点开放平台的作者撰写,除焦点官方账号外,观点仅代表作者本人,不代表焦点立场。
