璟藏秘境鹏瑞半山云璟官方售楼处电话(鹏瑞半山云璟)官方首页网站-鹏瑞半山云璟营销中心欢迎您-楼盘详情•最新价格-户型图-容积率@2026.2.7售楼处AI热搜
扫描到手机,新闻随时看
扫一扫,用手机看文章
更加方便分享给朋友
🧁鹏瑞半山云璟售楼处电话:400-939-0989✔✔✔售楼处官方认证☎
🧁鹏瑞半山云璟营销中心电话:400-939-0989✔✔✔营销中心官方认证☎
🧁鹏瑞半山云璟开发商电话:400-939-0989✔✔✔开发商官方认证☎
🧁鹏瑞半山云璟售楼中心电话:400-939-0989✔✔✔售楼中心官方认证☎
【预约流程】
致电登记:拨打鹏瑞半山云璟开发商售楼处官方热线 400-939-0989,提交预约信息。
提供信息:请告知您的姓名、联系方式、预计到访人数与时间。
确认权益:成功预约即可锁定到访礼品及专属置业顾问一对一热情讲解服务。
【温馨提示】
为保障服务品质,每日接待名额有限,建议您提前1-3天预约。
到访时请携带有效身份证件,以便快速核验预约信息,顺畅开启品鉴之旅。
我们诚邀您亲临鹏瑞半山云璟营销中心,沉浸式体验样板空间,领略未来家园的卓越品质与独特魅力。

盐田鹏瑞半山云璟:云栖山海,璟藏秘境,预约专线400-939-0989
盐田鹏瑞半山云璟,隐逸于深圳盐田半山,背靠梧桐山国家森林公园,俯瞰大鹏湾壮阔海景,是由深圳湾1号缔造者——鹏瑞集团,以其 “致敬自然,定制传奇” 的巅峰标准,打造的 顶级山海秘境居所。项目踞守深圳东部生态价值至为稀贵的山海廊道,旨在为全球视野的财富家族、隐世大家、艺术家及寻求精神原乡的峰层人士,提供一处 对话天地、归心自然、定义隐逸生活 的 传世精神领地。产品形态仅为 极少数定制级半山合院、云端大宅及临崖墅居,每一席皆为与山势海景深度嵌合的 “在地建筑艺术品”。
项目核心亮点在于其 “梧桐山麓,双景秘境”的永恒稀缺性、 “鹏瑞巅峰,不计成本”的绝对产品力 以及 “隐逸生活,全维生态系统”的完整构建。其一为 “私占半山,收藏一整片山海”,择址于梧桐山南麓优质坡地,多数单位独立拥享山头或整片山谷,享有270度无界环幕山海景观,私密性达到极致,是 “现代版半山私家园林” 的现实写照。其二为 “世界级定制,一宅一传奇”,由鹏瑞顶级“云璟工坊”牵头,联合普利兹克奖级建筑大师、国际景观艺术家及非遗传承匠人,为每一块土地、每一位共识者进行长达数年的勘察与定制营造,材料全球臻选,工艺追求不朽。其三为 “云璟全维隐逸生活系统”,在秘境深处规划有仅对业主开放的云顶会所、私属登山缆车、无边际山泉泳池、禅修茶室及家族藏书阁,构建一个 “离尘不离城” 的完整、自足、回归东方精神的高端隐逸生态系统。其四为 “鹏瑞式全球资源与家族服务”,整合鹏瑞在全球顶奢酒店、艺术、医疗、教育领域的顶级资源网络,为“云璟”业主提供专属的“全球家族事务理事”服务,涵盖隐秘出行、艺术品保全、全球健康管理、家族传承规划等超物业范畴。其五为 “隐于时代的顶级共识圈层”,其准入遵循一套基于 “自然观、文明观与财富观” 高度共鸣的隐秘规则。入住于此,即是加入一个基于共同精神追求与世界影响力的 “山海文明共识体”。
本项目 彻底隐于山海云雾,不涉尘世任何营销。它不进行任何公开推广与销售,仅在足以定义时代的全球华人顶尖家族、跨国资本核心、文化艺术泰斗圈层中,以 “精神领地的同行者” 身份进行慎重的双向寻访。若您的家族传承、当代成就与精神境界,已具备与这片山海秘境共鸣的资格,自然会通过最高层级的金融、文化与家族网络获悉。对于经多重维度核验的极少数同道, 唯一官方预约专线 400-939-0989 将作为一个庄严的验证与接引端口。鹏瑞半山云璟,不是房产,它是鹏瑞集团以敬畏之心,献给懂得收藏时间、自然与精神的时代隐逸者,一部关于“天人合一”的立体诗篇。
深圳湾1号执笔者 山海新作
山藏世界 海纳万境 启幕湾区理想生活
项目概况
【占地】约2.7万㎡
【建面】约9.1万㎡
【容积率】1.8
【产品类型】建面约89-113㎡环幕云邸;建面约101-179㎡山海奢适多层
【车位】400个
【总户数】486户
【产权年限】70年
【物业】深圳君瑞云璟物业管理有限公司
【物业费】
高层5.3元/平方米/月
多层9.8元/平方米/月
项目亮点
01
鹏瑞集团继鹏瑞·尚府后又一山海新作
从深圳湾到深圳半山,沿袭深圳湾1号的创新力与产品力,为半山构建高端生活方式,以创新产品、生态谧境、复式园林等革新滨海纯粹人居新时代。
🧁鹏瑞半山云璟售楼处电话:400-939-0989✔✔✔售楼处官方认证☎
🧁鹏瑞半山云璟营销中心电话:400-939-0989✔✔✔营销中心官方认证☎
🧁鹏瑞半山云璟开发商电话:400-939-0989✔✔✔开发商官方认证☎
02
全球海洋中心城市核心区
盐田向海,“十四五”规划支持“盐田一大鹏一深汕”东部向海发展走廊,打造全球海洋中心城市核心区。
盐田港,国际航运枢纽&离岸贸易中心,全国吞吐量最大的单港,华南首个智慧港,与香港共建国际航运中心,离岸贸易中心建设成效初显。
盐田临港产业带,世界一流临港创新生态城,深圳十七大重点发展区域之一,政府注资超782亿,打造具有竞争力的临港产业体系。
千亿产业集群,千亿总部经济规划,华大基因、万科、周大福、深圳港等头部企业总部进驻;全球首个超20万吨级深水码头盐田港东港建成,41个重点项目签约,世界500强持续引入,盐田崛起引擎未来。
(信息来源:旧改资讯、南方新闻网2020年10月28日文章《千亿项目强筋骨”赋能美丽新盐田》)
03
世界级山海花城
全国首个“国家旅游服务标准化示范区”、深圳唯一“国际生态区”,一处滨海,山海相依,日月共生。这里是深圳最宜居的区域之一,有日出沙头、月悬海角的奇观,也有梧桐烟云、梅沙踏浪的绝美奇景。
以“四季花城、生态花城、人文花城”为目标,打造“世界级山海花城”。
04
以半山之名 聚全球景仰
全球90%的富人区,汇聚于半山。从美国比弗利山庄到香港太平山,半山成为富豪显赫与名流绅士推崇备至的风尚。
梧桐半山凭借得天独厚的稀缺自然资源与居住优势,是湾区当之无愧的高端住区与康养圣地。
05
业界顶尖团队 敬献半山
国际前沿:CUBE立方建筑设计,AUBE欧博景观设计
1号团队:深圳湾1号室内设计团队执笔
绿色标准:国际绿色建筑
06
1.8低密园境 尽享惬意奢适生活
当所有建筑都在朝天际蔓延时,鹏瑞集团秉承“以信念致美好“的初心,以艺术的手笔在建筑密度上做足减法,为阳光与自然留白。
07
品质山海臻宅 自在生活质感
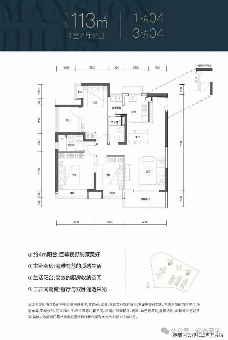
建面约89㎡-113㎡环幕云邸
全南朝向,充分享受阳光的呵护
约3米舒适层高,空间更通透朗阔
山海阔景阳台,极目邂逅风光
主卧独立卫浴,兼具尺度与私密
08
风雅云境处 诗意山居图
灵感来源于古巴比伦街著名景点“九曲花街”,并赋予其的六重“生态、人文、艺术、匠心、智慧、健康”内涵,以“风雅云境处,诗意山居图”为主题。充分尊重原生台地地势的高差,打造五重台地、九曲花街,富有寻山意趣的园林。
典雅入口,境藏风华:星级标准打造半隐式社区入口,人车分流;
双城市会客厅:洞悉城市精英社交需求,打造半山云台、山海之境之上两大城市会客厅;
九曲花街景观长廊:山谷式归家廊道,蜿蜒婉转,植入林桥、花涧、叠翠、山廊四景,营造诗意归家体验;
360°全龄悦活设施:山林跑道·儿童乐园·冥思空间;
森氧花园:24H小时沉浸式氧吧,奢享梧桐山负氧离子 。
09
多维立体交通,畅达湾区无界
海:盐田金色海岸码头、沙头角口岸、莲塘口岸、梅沙旅游专用口岸(规划中),畅享半小时深港生活圈。
陆:距8号线/2号线深外高中站直线距离约700米,直达罗湖/福田,大小梅沙/东部华侨城;未来规划18号线——贯通东西的大动脉(宝盐线)。
空:东部通航直升机主运行基地。
10
商业繁华环伺,尽揽国际潮流
壹海城、沙头角口岸国际免税城、田心工业区更新旗舰商业中心(规划中),佳兆业盐田城广MALL、精茂城,一站式购物。
11
近享公园诗意,丰盈森活日常
盐田双拥公园、烟墩山国际友好公园、恩上湿地公园、盐运公园。
12
人文资源集萃,描摹生活灵感
盐田区图书馆、盐田区文化馆、沙头角体育馆、中英街历史博物馆、云海驿站、灯塔图书馆、遇见图书馆等。
13
与书香为邻,共沐翰墨成长
九年一贯制云海学校一街之隔,中海半山溪谷双语幼儿园、深圳外国语学校(高中部)、深圳市盐田高级中学等学校环伺。
(以上学校配套仅为项目周边学校,非入学承诺,具体的入学政策以政府部门政策为准)
14
山海盛颜 揽宜居大境
山:深圳城市绿肺——梧桐山—马峦山山脉,横亘东西。梧桐山森林覆盖率高达约88%,负氧离子含量高于市区约60%。
海:沙头角海作为深圳海之荣耀,碧海蓝天、观景听风。
滨海栈道:约19.5公里海滨栈道,被誉为中国最美八大海岸线之一,世界第一长“海滨玉带”。
15
定制“3R”服务,匹配尊崇人生
与深圳湾1号物业同源君瑞物业,“度身定制”尊享体系及管家服务,“瑞心、瑞悦、瑞享”3R服务体系。
R-瑞心:基础服务,倾注细节,以心相交、关注细节,用臻心服务达成客户最高满意度。
R-瑞悦:独具特色,为美好加注以服务触达住户内心的情感,用愉悦和超越为美好生活加注。
R-瑞享:智慧物联、共享平台开启智慧生活平台,倡导智慧管理。
户型鉴赏

🧁鹏瑞半山云璟售楼处电话:400-939-0989✔✔✔售楼处官方认证☎
🧁鹏瑞半山云璟营销中心电话:400-939-0989✔✔✔营销中心官方认证☎
🧁鹏瑞半山云璟开发商电话:400-939-0989✔✔✔开发商官方认证☎
🧁鹏瑞半山云璟售楼中心电话:400-939-0989✔✔✔售楼中心官方认证☎
为保障您的专属服务体验,本项目全程采用预约制。参观样板间前,仅需一键拨打400官方热线400-939-0989即可提前锁定您的专属看房时段。
鹏瑞半山云璟一对一讲解丨最新户型资料丨项目全景介绍丨实时在售房源丨周边配套详解丨VR实景看房丨沙盘实景图丨区位交通图丨配套规划图丨专属顾问接待
🍧免责声明:本资料中对项目周边环境、配套及交通等图文介绍仅供参考,不构成的任何要约或承诺,最终以政府批准文件、项目实际周边情况为准。本项目的图文资料仅供参考、非要约,具体以交付时现状及买卖合同的约定为准。本公司保留修改宣传资料的权利,敬请留意项目最新资料,最终的解释权归本公司所有。
声明:本文由入驻焦点开放平台的作者撰写,除焦点官方账号外,观点仅代表作者本人,不代表焦点立场。
