加福华尔登府邸开发商售楼处电话(加福华尔登府邸)首页网站-加福华尔登府邸营销中心- 8888欢迎您-楼盘详情-最新价格-户型图-容积率@售楼处中心2025.09.17
扫描到手机,新闻随时看
扫一扫,用手机看文章
更加方便分享给朋友
深圳加福华尔登府邸是位于福田CBD的高端住宅项目,由加福投资(深圳)有限公司开发。项目拥有239米的天际高度。其地理位置优越,紧邻地铁4/10号线福田口岸站,交通便利。项目以“CBD之上,唯此纯居”为定位,提供建筑面积约83/89/130㎡的纯粹住宅,设计灵感源于“鹏城”的“鲲鹏”之态,外立面采用国际高端材料,致力于打造高端生活品质。周边配套设施完善,教育资源丰富,是深圳市内的热门住宅选择。
【加福华尔登府邸项目基础信息】
占地面积:7602平方米
建筑面积:51581平方米
总户数:462户
梯户比:6梯8户
楼层:地上67层,地下3层
层高:3.25米
楼层总高:239米
开发商:加福投资(深圳)有限公司
物业公司:华尔登物业管理(深圳)有限公司
车位数:500个
车位比:1:1.1
学校:福田区外国语南校区小学初中
福田CBD,地处深圳市核心位置,是集行政、文化、信息、国际展览、金融商务等于一体的综合服务中心,占据着城市鼎级资源,拥有得天独厚的区位优势。加福华尔登府邸位居福田CBD,圈定一城繁华核芯,将乘福田腾飞之东风,勾勒出完美的都荟生活蓝图。
加福华尔登府邸约800米内涵盖九年一贯制的福田区外国语学校(南校区)、世界名校摇篮的深圳国际交流学院附属初中部,书香浸润,往来高知,让孩子从小深受书香氛围熏陶。
加福华尔登府邸无缝接驳4/10号线福田口岸站,临近7号线福民站,2站即达CBD(会展中心站)。双口岸为邻,深港双城自如切换。与此同时,毗邻穗莞深城际轨道皇岗口岸站(正在建设中,预计2024年建成),1站深圳湾,2站前海。
项目以约239米的高度,奢享360°环幕城市景观,北瞰福田CBD,南望米埔自然生态保护区,西揽深圳湾碧波粼粼。皇岗公园、莲花山公园、福荣绿道等约500公顷城市绿肺环伺,尊享臻稀高富氧诗意生活。
从加福华尔登府邸出发,2站地铁即享福田CBD超百万建面的商业体量,拥揽平安金融中心、卓悦中心、深圳中心城广场、COCOPARK、皇庭广场等超级SHOPPINGMALLS,约100米畅享水围文化商业街及水围1368文化街区众多深圳网红美食及百年老店,在人间烟火气中,品味恣意人生。
地铁3站可达市民中心、深圳图书馆、深圳音乐厅、深圳书城、博物馆、少年宫等略市政都会芯,勾勒出让所有人都向往的都会完美生活蓝图。
加福华尔登府邸从五星级标准匠心打造的奢阔大堂,到配备日立空调的电梯厅,再到约500个充沛的车位配置,精致考究,匠造品质生活。采用“蝶形”建筑设计,将户型每个空间通风采光最大化,实现媲美“板楼”南北通透价值,外立面以高贵典雅的香槟色为基调,采用3MM铝板、荷兰进口氟碳漆、Low-e玻璃及德国原产的著名G-U门窗五金配件等精选国际高端材料,营造高端视觉形象。
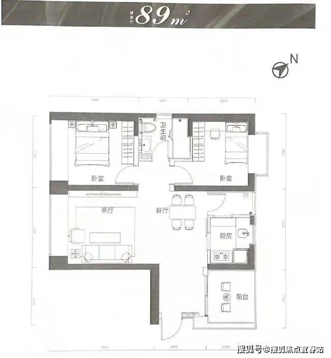
加福华尔登府邸平面户型图
85㎡2房1卫
建面约86平大两房,南向阳台,阳光主卧,客餐直联,南北通透,空间感好,功能性强,居住体验非常舒适
【建面125㎡3居】985万-分布于加福华尔登府邸,6梯8户,层高3.15米,总楼层67F
建面约90平做三房,再加上南北通透、板楼设计,空间感非常阔绰。
【建面125㎡3居】985万-分布于加福华尔登府邸,6梯8户,层高3.15米,总楼层67F
深圳✅加福华尔登府邸开发商售楼处电话:400-836-8707【已认证】
加福华尔登府邸售楼处24小时电话☎:400-836-8707【已认证】
加福华尔登府邸营销中心24小时电话☎:400-836-8707【已认证】
加福华尔登府邸展示中心24小时电话☎:400-836-8707【已认证】
◆开发商营销中心诚挚邀请,一键预约,尊享内部独家折扣!匠心独运的精品项目,恭候您的品鉴与选择。
免责声明:
本文对项目的介绍,旨在提供相关信息,不意味着本公司对此作出了承诺;
部分图片信息来源于网络,如果侵权,请联系及时删除,联系电话400-836-8707
声明:本文由入驻焦点开放平台的作者撰写,除焦点官方账号外,观点仅代表作者本人,不代表焦点立场。
